11624 Peach Grove Lane Orlando, FL 32821
For Sale MLS# TB8435383
2 beds 2 baths 1,450 sq ft Single Family
Details for 11624 Peach Grove Lane
MLS# TB8435383
Description for 11624 Peach Grove Lane, Orlando, FL, 32821
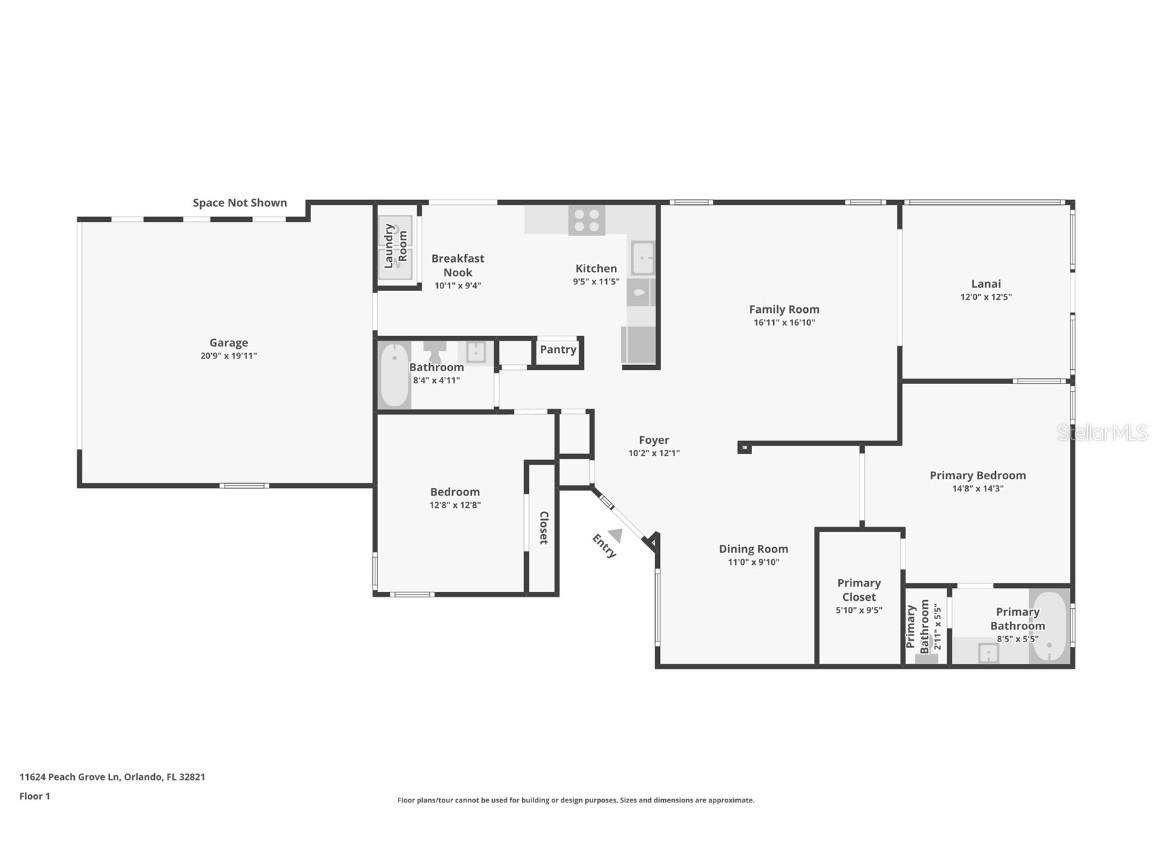
Wait Until You See This One! This stunning 2-bedroom, 2-bath home offers comfort, convenience, and peace of mind—all wrapped in a setting near golf course and a low-maintenance lifestyle. With a NEW roof (2023), a whole-house generator, and newer stainless steel appliances (2024–2025), this home is truly move-in ready! Step inside to a bright and open layout, featuring a formal dining room for hosting family dinners and a spacious great room that’s ideal for everyday living and entertaining. The kitchen is both stylish and functional, complete with a pantry, and a new air-fryer convection range—perfect for the home chef! The eat-in breakfast nook offers casual dining space. The split-bedroom layout ensures privacy, with a generous primary suite featuring a walk-in closet and a private bath. The secondary bedroom and full guest bath are perfect for visitors or a home office. A 2-car garage with built-in storage add to the home’s thoughtful design. Step outside to your screened lanai overlooking the golf course—perfect for relaxing evenings and weekend get-togethers. Lawn care is included in your monthly fees, giving you more time to enjoy the resort-style community amenities, including a pool, fitness center, tennis courts, and clubhouse. Located in a prime Orlando area, you’ll be close to everything Central Florida has to offer—just minutes from SeaWorld, Universal Studios, the new Epic Universe, shopping, dining, outlet malls, and Orlando International Airport. This home combines peace of mind, modern comfort, and the Florida lifestyle you’ve been dreaming of. Come see it today—and start packing!
Listing Information
Property Type: Residential, Single Family Residence
Status: Active
Bedrooms: 2
Bathrooms: 2
Lot Size: 0.13 Acres
Square Feet: 1,450 sq ft
Year Built: 1991
Garage: Yes
Stories: 1 Story
Construction: Block,Stucco
Subdivision: Parkview Pointe Sec 02
Foundation: Slab
County: Orange
Room Information
Main Floor
Bedroom 2: 12x12
Primary Bedroom: 14x14
Dinette: 9x10
Kitchen: 11x9
Dining Room: 9x11
Great Room: 16x16
Bathrooms
Full Baths: 2
Additonal Room Information
Laundry: Laundry Closet, Inside
Interior Features
Appliances: Gas Water Heater, Washer, Dishwasher, Disposal, Dryer, Microwave, Range, Refrigerator
Flooring: Carpet,Ceramic Tile
Additional Interior Features: Walk-In Closet(s), High Ceilings, Open Floorplan, Ceiling Fan(s), Vaulted Ceiling(s), Eat-In Kitchen, Main Level Primary
Utilities
Water: Public
Sewer: Public Sewer
Other Utilities: Electricity Connected,Natural Gas Connected,Municipal Utilities
Cooling: Ceiling Fan(s), Central Air
Heating: Natural Gas, Central
Exterior / Lot Features
Attached Garage: Attached Garage
Garage Spaces: 2
Roof: Shingle
Pool: Community
Lot View: Golf Course
Additional Exterior/Lot Features: Rear Porch, Enclosed, Landscaped, Near Golf Course
Community Features
Community Features: Fitness, Pool, Tennis Court(s), Sidewalks, Clubhouse
HOA Dues Include: Recreation Facilities, Maintenance Grounds, Pool(s)
Homeowners Association: Yes
HOA Dues: $105 / Monthly
Driving Directions
From I4 - Take exit 71 toward Sea World. Merge onto Central Florida Pkwy, Turn right onto Orangewood Blvd, Turn right onto Parkview Point Dr, Turn left onto Peach Grove Ln - house will be on the right
Financial Considerations
Terms: Cash,Conventional,FHA,VA Loan
Tax/Property ID: 18-24-29-6709-02-890
Tax Amount: 2296.24
Tax Year: 2024
A broker reciprocity listing courtesy: KELLER WILLIAMS SUBURBAN TAMPA
Based on information provided by Stellar MLS as distributed by the MLS GRID. Information from the Internet Data Exchange is provided exclusively for consumers’ personal, non-commercial use, and such information may not be used for any purpose other than to identify prospective properties consumers may be interested in purchasing. This data is deemed reliable but is not guaranteed to be accurate by Edina Realty, Inc., or by the MLS. Edina Realty, Inc., is not a multiple listing service (MLS), nor does it offer MLS access.
Copyright 2026 Stellar MLS as distributed by the MLS GRID. All Rights Reserved.
Payment Calculator
Interest rate and annual percentage rate (APR) are based on current market conditions, are for informational purposes only, are subject to change without notice and may be subject to pricing add-ons related to property type, loan amount, loan-to-value, credit score and other variables. Estimated closing costs used in the APR calculation are assumed to be paid by the borrower at closing. If the closing costs are financed, the loan, APR and payment amounts will be higher. If the down payment is less than 20%, mortgage insurance may be required and could increase the monthly payment and APR. Contact us for details. Additional loan programs may be available. Accuracy is not guaranteed, and all products may not be available in all borrower's geographical areas and are based on their individual situation. This is not a credit decision or a commitment to lend.
Sales History & Tax Summary for 11624 Peach Grove Lane
Sales History
| Date | Price | |
|---|---|---|
| Currently not available. | ||
Tax Summary
| Tax Year | Estimated Market Value | Total Tax |
|---|---|---|
| Currently not available. | ||
Data powered by ATTOM Data Solutions. Copyright© 2026. Information deemed reliable but not guaranteed.
Schools
Schools nearby 11624 Peach Grove Lane
| Schools in attendance boundaries | Grades | Distance | Rating |
|---|---|---|---|
| Loading... | |||
| Schools nearby | Grades | Distance | Rating |
|---|---|---|---|
| Loading... | |||
Data powered by ATTOM Data Solutions. Copyright© 2026. Information deemed reliable but not guaranteed.
The schools shown represent both the assigned schools and schools by distance based on local school and district attendance boundaries. Attendance boundaries change based on various factors and proximity does not guarantee enrollment eligibility. Please consult your real estate agent and/or the school district to confirm the schools this property is zoned to attend. Information is deemed reliable but not guaranteed.
SchoolDigger ® Rating
The SchoolDigger rating system is a 1-5 scale with 5 as the highest rating. SchoolDigger ranks schools based on test scores supplied by each state's Department of Education. They calculate an average standard score by normalizing and averaging each school's test scores across all tests and grades.
Coming soon properties will soon be on the market, but are not yet available for showings.