$360,000
1168 Sherman Way Hastings, MN 55033
For Sale MLS# 7028317
3 beds 2 baths 1,614 sq ft Single Family
Details for 1168 Sherman Way
MLS# 7028317
Description for 1168 Sherman Way, Hastings, MN, 55033
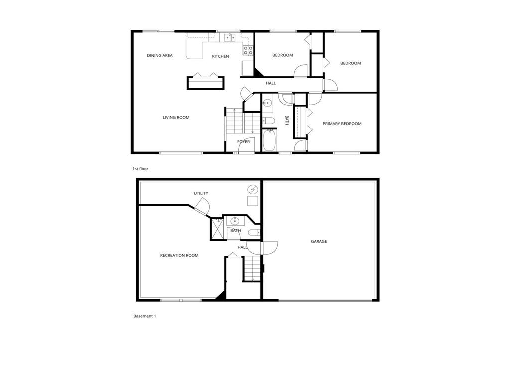
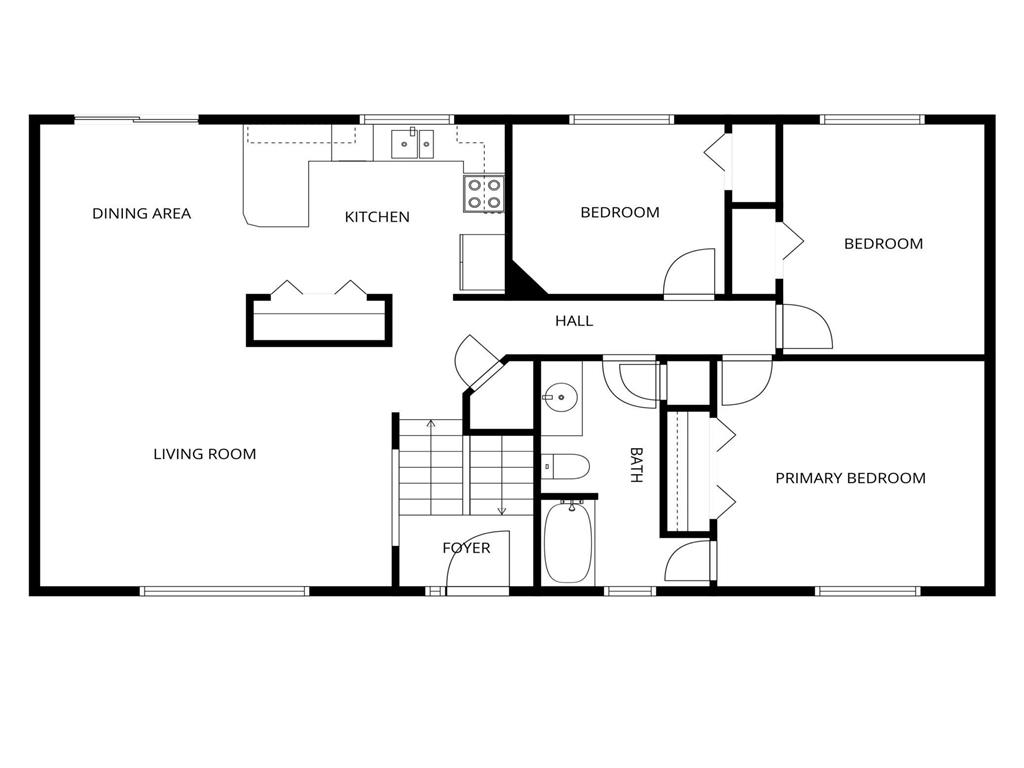
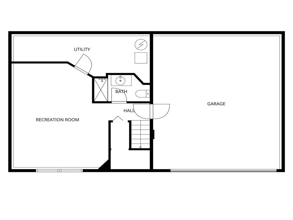
Welcome to 1168 Sherman Way in Hastings — a beautifully refreshed home offering the perfect blend of comfort, functionality, and thoughtful updates.The main level features three bedrooms — with flexibility for a home office — along with a bright, open living space designed for everyday living and easy entertaining. The kitchen shines with new countertops and flooring, while fresh paint, new carpet, and updated flooring throughout create a fresh, welcoming feel from the moment you walk in.The primary suite includes a convenient walk-through bath for added privacy, complete with a new vanity and updated tub surround for a modern touch.Downstairs, the spacious family room provides the ideal second living area — perfect for movie nights,hosting guests, or creating a playroom, workout space, or hobby zone. The laundry room offers generous storage and built-in organization to keep life running smoothly.Outside, the fully fenced backyard is ready to enjoy — whether you're relaxing on the newer deck,gardening, or letting kids and pets roam freely. A large shed adds valuable storage, and with a 2022 roof and siding, newer windows, and a new garage door, the big-ticket updates are already done.Located in historic Hastings, you’ll enjoy a charming small-town feel with convenient access to dining, shopping, parks, and scenic trails along the Mississippi River. With schools and community amenities nearby, this home offers a lifestyle that feels connected, comfortable, and easy to enjoy. Move-in ready, well cared for, and ready for its next chapter.
Listing Information
Property Type: Residential, Single Family
Status: Active
Bedrooms: 3
Bathrooms: 2
Lot Size: 0.20 Acres
Square Feet: 1,614 sq ft
Year Built: 1989
Foundation: 1,190 sq ft
Garage: Yes
Stories: Split Entry (Bi-Level)
County: Dakota
Days On Market: 2
Construction Status: Previously Owned
School Information
District: 200 - Hastings
Room Information
Main Floor
Bedroom 1: 13x13
Bedroom 2: 12x10
Bedroom 3: 10x9
Deck: 14x10
Dining Room: 11X10
Kitchen: 13x9
Living Room: 17X14
Lower Floor
Family Room: 19x17
Bathrooms
Full Baths: 1
3/4 Baths: 1
Additonal Room Information
Family: Lower Level
Dining: Kitchen/Dining Room
Laundry: Washer Hookup, Electric Dryer Hookup
Bath Description: 3/4 Basement,Main Floor Full Bath,Primary Walk-Thru
Interior Features
Square Footage above: 1,190 sq ft
Square Footage below: 424 sq ft
Appliances: Gas Water Heater, Dishwasher, Microwave, Range, Refrigerator
Basement: Finished (Livable), Daylight/Lookout Windows
Additional Interior Features: Ceiling Fan(s), Kitchen Window, 3 BR on One Level, Main Floor Bedroom, Washer/Dryer Hookup, Main Floor Primary
Utilities
Water: City Water/Connected
Sewer: City Sewer/Connected
Cooling: Central
Heating: Natural Gas, Forced Air
Exterior / Lot Features
Attached Garage: Attached Garage
Garage Spaces: 2
Parking Description: Attached Garage, Garage Sq Ft - 400.0
Exterior: Vinyl
Roof: Age 8 Years or Less
Lot Dimensions: 135X66
Zoning: Residential-Single Family
Fencing: Chain Link, Wood
Additional Exterior/Lot Features: Deck
Out Buildings: Shed - Storage
Driving Directions
Hwy 61 to west on Hwy 46 to south on Riverwood to Sherman Way
Financial Considerations
Tax/Property ID: 196437801040
Tax Amount: 3684
Tax Year: 2025
HomeStead Description: Non-Homesteaded
A broker reciprocity listing courtesy: RE/MAX Advantage Plus
The data relating to real estate for sale on this web site comes in part from the Broker Reciprocity℠ Program of the Regional Multiple Listing Service of Minnesota, Inc. Real estate listings held by brokerage firms other than Edina Realty, Inc. are marked with the Broker Reciprocity℠ logo or the Broker Reciprocity℠ thumbnail and detailed information about them includes the name of the listing brokers. Edina Realty, Inc. is not a Multiple Listing Service (MLS), nor does it offer MLS access. This website is a service of Edina Realty, Inc., a broker Participant of the Regional Multiple Listing Service of Minnesota, Inc. IDX information is provided exclusively for consumers personal, non-commercial use and may not be used for any purpose other than to identify prospective properties consumers may be interested in purchasing. Open House information is subject to change without notice. Information deemed reliable but not guaranteed.
Copyright 2026 Regional Multiple Listing Service of Minnesota, Inc. All Rights Reserved.
Payment Calculator
Interest rate and annual percentage rate (APR) are based on current market conditions, are for informational purposes only, are subject to change without notice and may be subject to pricing add-ons related to property type, loan amount, loan-to-value, credit score and other variables. Estimated closing costs used in the APR calculation are assumed to be paid by the borrower at closing. If the closing costs are financed, the loan, APR and payment amounts will be higher. If the down payment is less than 20%, mortgage insurance may be required and could increase the monthly payment and APR. Contact us for details. Additional loan programs may be available. Accuracy is not guaranteed, and all products may not be available in all borrower's geographical areas and are based on their individual situation. This is not a credit decision or a commitment to lend.
Sales History & Tax Summary for 1168 Sherman Way
Sales History
| Date | Price | |
|---|---|---|
| Currently not available. | ||
Tax Summary
| Tax Year | Estimated Market Value | Total Tax |
|---|---|---|
| Currently not available. | ||
Data powered by ATTOM Data Solutions. Copyright© 2026. Information deemed reliable but not guaranteed.
Schools
Schools nearby 1168 Sherman Way
| Schools in attendance boundaries | Grades | Distance | Rating |
|---|---|---|---|
| Loading... | |||
| Schools nearby | Grades | Distance | Rating |
|---|---|---|---|
| Loading... | |||
Data powered by ATTOM Data Solutions. Copyright© 2026. Information deemed reliable but not guaranteed.
The schools shown represent both the assigned schools and schools by distance based on local school and district attendance boundaries. Attendance boundaries change based on various factors and proximity does not guarantee enrollment eligibility. Please consult your real estate agent and/or the school district to confirm the schools this property is zoned to attend. Information is deemed reliable but not guaranteed.
SchoolDigger ® Rating
The SchoolDigger rating system is a 1-5 scale with 5 as the highest rating. SchoolDigger ranks schools based on test scores supplied by each state's Department of Education. They calculate an average standard score by normalizing and averaging each school's test scores across all tests and grades.
Coming soon properties will soon be on the market, but are not yet available for showings.