11726 Boldface Drive Orlando, FL 32832
For Sale MLS# O6365089
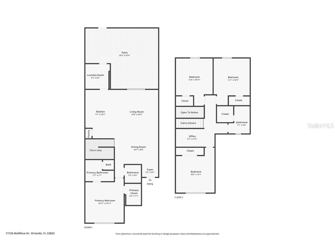
4 beds 3 baths 1,863 sq ft Townhouse/Twinhome
Details for 11726 Boldface Drive
MLS# O6365089
Description for 11726 Boldface Drive, Orlando, FL, 32832
Stunning 4-Bedrooms, 2.5-Bathrooms Townhome Located in the Highly Desirable Storey Park Community in Lake Nona. This Home Boasts the Rare Advantage of Having the Primary Suite Conveniently Situated on the First Floor, Offering Privacy, Comfort, And Accessibility. Enjoy an Open-Concept Layout That Seamlessly Connects the Kitchen, Living, and Dining Areas, Creating the Perfect Space for Everyday Living and Entertaining. Upstairs, You’ll Find a Spacious Loft, Three Additional Bedrooms, and a Full Bathroom. All Bedrooms Feature Electric Blockouts to Provide More Privacy. Additional Features Include a Two-Car Garage with Space for Two More Vehicles on the Driveway, Plus A Private Courtyard-Style Patio Separating the Home from The Garage. Ideally Positioned Just Minutes from Orlando International Airport, Lake Nona’s Medical City, And Top-Rated Schools, This Residence Sits in One of the Most Sought-After Areas on The East Side of Orlando. Storey Park is a Vibrant, Family-Friendly Community Offering Resort-Style Amenities Including a Clubhouse, Fitness Center, Business Center, Swimming Pool, Tennis and Basketball Courts, And More. This is More Than a Home it’s A Lifestyle.
Listing Information
Property Type: Residential, Townhouse
Status: Active
Bedrooms: 4
Bathrooms: 3
Lot Size: 0.07 Acres
Square Feet: 1,863 sq ft
Year Built: 2024
Garage: Yes
Stories: 2 Story
Construction: Block,Stucco
Subdivision: F Storey Pk-Pcl K Ph 3
Foundation: Slab
County: Orange
School Information
Elementary: Sun Blaze Elementary
Middle: Innovation Middle School
Room Information
Main Floor
Laundry: 8x8
Dining Room: 9x14
Living Room: 16x14
Kitchen: 16x10
Primary Bedroom: 15x13
Upper Floor
Loft: 6x10
Bedroom 4: 15x12
Bedroom 3: 15x12
Bedroom 2: 15x13
Bathrooms
Full Baths: 2
1/2 Baths: 1
Additonal Room Information
Laundry: Laundry Room
Interior Features
Appliances: Microwave, Range, Refrigerator, Dishwasher, Disposal
Flooring: Carpet,Ceramic Tile
Additional Interior Features: Ceiling Fan(s), Walk-In Closet(s), Built-in Features, Main Level Primary, Solid Surface Counters, Wood Cabinets
Utilities
Water: Public
Sewer: Public Sewer
Other Utilities: Municipal Utilities
Cooling: Central Air, Ceiling Fan(s)
Heating: Central
Exterior / Lot Features
Attached Garage: Attached Garage
Garage Spaces: 2
Parking Description: Garage Faces Rear, Garage Door Opener, Garage
Roof: Shingle
Pool: Community
Additional Exterior/Lot Features: Sprinkler/Irrigation
Community Features
Community Features: Pool, Playground, Clubhouse, Dog Park, Fitness, Community Mailbox
HOA Dues Include: Cable TV, Pool(s)
Homeowners Association: Yes
HOA Dues: $307 / Monthly
Driving Directions
Take on FL-417 S Towards Tampa; Take Exit 24 for Dowden Rd Toward Innovation Way; Turn Left onto Dowden Rd; Turn Left onto Bella Maisons Dr/Belle Maisons Dr; Property will be Located on the Left Side.
Financial Considerations
Tax/Property ID: 33-23-31-2004-04-770
Tax Amount: 2289
Tax Year: 2024
A broker reciprocity listing courtesy: OUTLET REALTY
Based on information provided by Stellar MLS as distributed by the MLS GRID. Information from the Internet Data Exchange is provided exclusively for consumers’ personal, non-commercial use, and such information may not be used for any purpose other than to identify prospective properties consumers may be interested in purchasing. This data is deemed reliable but is not guaranteed to be accurate by Edina Realty, Inc., or by the MLS. Edina Realty, Inc., is not a multiple listing service (MLS), nor does it offer MLS access.
Copyright 2026 Stellar MLS as distributed by the MLS GRID. All Rights Reserved.
Payment Calculator
Interest rate and annual percentage rate (APR) are based on current market conditions, are for informational purposes only, are subject to change without notice and may be subject to pricing add-ons related to property type, loan amount, loan-to-value, credit score and other variables. Estimated closing costs used in the APR calculation are assumed to be paid by the borrower at closing. If the closing costs are financed, the loan, APR and payment amounts will be higher. If the down payment is less than 20%, mortgage insurance may be required and could increase the monthly payment and APR. Contact us for details. Additional loan programs may be available. Accuracy is not guaranteed, and all products may not be available in all borrower's geographical areas and are based on their individual situation. This is not a credit decision or a commitment to lend.
Sales History & Tax Summary for 11726 Boldface Drive
Sales History
| Date | Price | |
|---|---|---|
| Currently not available. | ||
Tax Summary
| Tax Year | Estimated Market Value | Total Tax |
|---|---|---|
| Currently not available. | ||
Data powered by ATTOM Data Solutions. Copyright© 2026. Information deemed reliable but not guaranteed.
Schools
Schools nearby 11726 Boldface Drive
| Schools in attendance boundaries | Grades | Distance | Rating |
|---|---|---|---|
| Loading... | |||
| Schools nearby | Grades | Distance | Rating |
|---|---|---|---|
| Loading... | |||
Data powered by ATTOM Data Solutions. Copyright© 2026. Information deemed reliable but not guaranteed.
The schools shown represent both the assigned schools and schools by distance based on local school and district attendance boundaries. Attendance boundaries change based on various factors and proximity does not guarantee enrollment eligibility. Please consult your real estate agent and/or the school district to confirm the schools this property is zoned to attend. Information is deemed reliable but not guaranteed.
SchoolDigger ® Rating
The SchoolDigger rating system is a 1-5 scale with 5 as the highest rating. SchoolDigger ranks schools based on test scores supplied by each state's Department of Education. They calculate an average standard score by normalizing and averaging each school's test scores across all tests and grades.
Coming soon properties will soon be on the market, but are not yet available for showings.