11910 Philosophy Way Orlando, FL 32832
For Sale MLS# O6360391
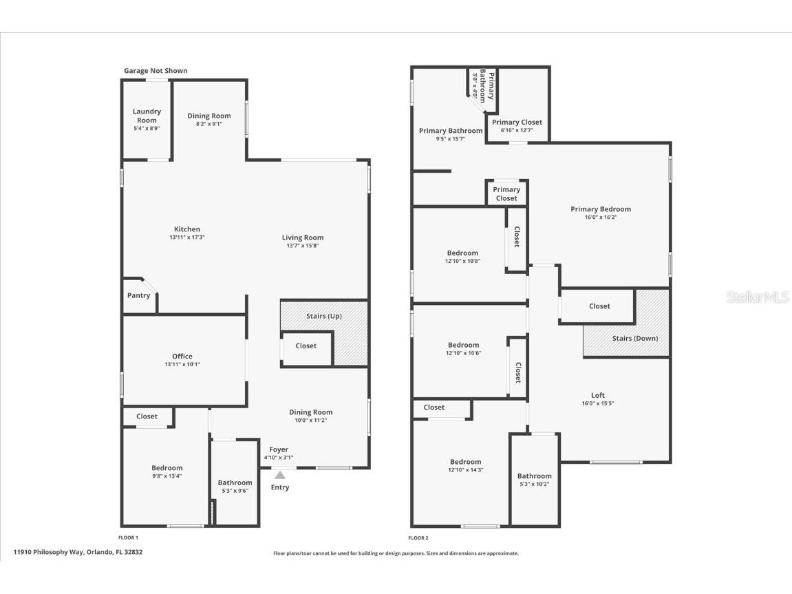
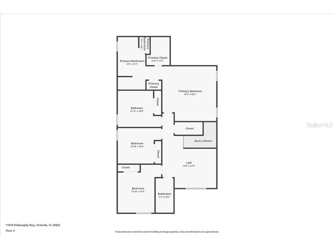
5 beds 3 baths 2,638 sq ft Single Family
Details for 11910 Philosophy Way
MLS# O6360391
Description for 11910 Philosophy Way, Orlando, FL, 32832
***BACK ON MARKET - Buyer Financing Fell Through*** Nestled in Lake Nona’s highly sought-after Storey Park community, this beautifully maintained 5-bedroom, 3-bath residence is truly move-in ready. The first floor offers exceptional flexibility with a full bedroom and bath, plus a den perfect for a home office or optional sixth bedroom. The open-concept kitchen, dining, and family room are filled with natural light—ideal for both everyday living and entertaining. Upstairs, enjoy a spacious loft, a generous primary suite featuring a walk-in closet and dual sinks, along with three additional bedrooms and a full bath. Recent upgrades include fresh interior paint, a whole-home water filtration system with reverse osmosis, rain gutters, and a newer water heater. The home also features a two-car garage and an extended driveway for added parking. Residents of Storey Park enjoy resort-style amenities including pools, fitness centers, playgrounds, dog parks, sports courts, and scenic trails. HOA dues include high-speed internet and cable. Conveniently located near Medical City, major highways, top-rated schools, dining, and Orlando International Airport. What are you waiting for, SCHEDULE YOUR PRIVATE SHOWING TODAY! All information pertaining to the property is deemed reliable, but not guaranteed. Information to be verified by the Buyer. Be advised that cameras may exist recording audio and video inside/outside the property, such as ring doorbells. Photos are digitally enhanced and could be altered, please verify.
Listing Information
Property Type: Residential, Single Family Residence
Status: Active
Bedrooms: 5
Bathrooms: 3
Lot Size: 0.11 Acres
Square Feet: 2,638 sq ft
Year Built: 2018
Garage: Yes
Stories: 2 Story
Construction: Block,Stucco
Subdivision: Storey Park-Ph 4
Foundation: Slab
County: Orange
School Information
Elementary: Sun Blaze Elementary
Middle: Innovation Middle School
Room Information
Main Floor
Kitchen:
Living Room:
Upper Floor
Primary Bedroom:
Bathrooms
Full Baths: 3
Additonal Room Information
Laundry: Inside, Washer Hookup, Electric Dryer Hookup
Interior Features
Appliances: Electric Water Heater, Dishwasher, Disposal, Microwave, Range, Refrigerator
Flooring: Carpet,Ceramic Tile
Additional Interior Features: Eat-In Kitchen, Ceiling Fan(s), Kitchen/Family Room Combo, Open Floorplan, Upper Level Primary, Walk-In Closet(s), Tray Ceiling(s)
Utilities
Water: Public
Sewer: Public Sewer
Other Utilities: Electricity Connected,Sewer Connected,Water Connected
Cooling: Ceiling Fan(s), Central Air
Heating: Central
Exterior / Lot Features
Attached Garage: Attached Garage
Garage Spaces: 2
Parking Description: Garage, Garage Door Opener, driveway, Garage Faces Rear
Roof: Shingle
Pool: Community
Additional Exterior/Lot Features: Sprinkler/Irrigation
Community Features
Community Features: Sidewalks, Pool, Tennis Court(s), Clubhouse, Dog Park, Park, Fitness
HOA Dues Include: Internet, Cable TV, Recreation Facilities, Pool(s)
Homeowners Association: Yes
HOA Dues: $104 / Monthly
Driving Directions
From I-4, take exit 72 onto FL-528 E, then exit 11 for Narcoossee Rd. Turn right, then left on Kirby Smith Rd, and left on Philosophy Way. The destination will be on your right.
Financial Considerations
Terms: Cash,Conventional,FHA,VA Loan
Tax/Property ID: 04-24-31-8984-04-180
Tax Amount: 1865
Tax Year: 2024
A broker reciprocity listing courtesy: DJ & LINDSEY REAL ESTATE
Based on information provided by Stellar MLS as distributed by the MLS GRID. Information from the Internet Data Exchange is provided exclusively for consumers’ personal, non-commercial use, and such information may not be used for any purpose other than to identify prospective properties consumers may be interested in purchasing. This data is deemed reliable but is not guaranteed to be accurate by Edina Realty, Inc., or by the MLS. Edina Realty, Inc., is not a multiple listing service (MLS), nor does it offer MLS access.
Copyright 2026 Stellar MLS as distributed by the MLS GRID. All Rights Reserved.
Payment Calculator
Interest rate and annual percentage rate (APR) are based on current market conditions, are for informational purposes only, are subject to change without notice and may be subject to pricing add-ons related to property type, loan amount, loan-to-value, credit score and other variables. Estimated closing costs used in the APR calculation are assumed to be paid by the borrower at closing. If the closing costs are financed, the loan, APR and payment amounts will be higher. If the down payment is less than 20%, mortgage insurance may be required and could increase the monthly payment and APR. Contact us for details. Additional loan programs may be available. Accuracy is not guaranteed, and all products may not be available in all borrower's geographical areas and are based on their individual situation. This is not a credit decision or a commitment to lend.
Sales History & Tax Summary for 11910 Philosophy Way
Sales History
| Date | Price | |
|---|---|---|
| Currently not available. | ||
Tax Summary
| Tax Year | Estimated Market Value | Total Tax |
|---|---|---|
| Currently not available. | ||
Data powered by ATTOM Data Solutions. Copyright© 2026. Information deemed reliable but not guaranteed.
Schools
Schools nearby 11910 Philosophy Way
| Schools in attendance boundaries | Grades | Distance | Rating |
|---|---|---|---|
| Loading... | |||
| Schools nearby | Grades | Distance | Rating |
|---|---|---|---|
| Loading... | |||
Data powered by ATTOM Data Solutions. Copyright© 2026. Information deemed reliable but not guaranteed.
The schools shown represent both the assigned schools and schools by distance based on local school and district attendance boundaries. Attendance boundaries change based on various factors and proximity does not guarantee enrollment eligibility. Please consult your real estate agent and/or the school district to confirm the schools this property is zoned to attend. Information is deemed reliable but not guaranteed.
SchoolDigger ® Rating
The SchoolDigger rating system is a 1-5 scale with 5 as the highest rating. SchoolDigger ranks schools based on test scores supplied by each state's Department of Education. They calculate an average standard score by normalizing and averaging each school's test scores across all tests and grades.
Coming soon properties will soon be on the market, but are not yet available for showings.