11922 Angle Pond Avenue Windermere, FL 34786
For Sale MLS# O6328443
4 beds 4 baths 3,382 sq ft Single Family
Details for 11922 Angle Pond Avenue
MLS# O6328443
Description for 11922 Angle Pond Avenue, Windermere, FL, 34786
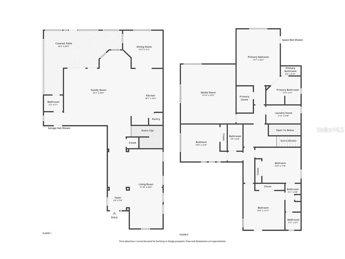
One or more photo(s) has been virtually staged. Welcome to this beautifully maintained four-bedroom, three-and-a-half-bath home in the highly sought-after Windermere Trails community, located less than two minutes from Walt Disney World. The front of the home offers multiple flexible living spaces ideal for a home office, sitting room, or hobby area. The open family room flows into a spacious kitchen featuring a large quartz island, brand-new stainless steel appliances, ample cabinetry, and tasteful modern finishes. An additional flex space near the kitchen can serve as formal dining or an additional gathering area. Upstairs, the primary suite provides a peaceful retreat with two walk-in closets and a spa-style bathroom with dual vanities and an oversized walk-in shower. Two bedrooms share a Jack-and-Jill bathroom, while the fourth bedroom has its own private, upgraded bath. A large bonus room with a built-in movie screen adds extra space for entertainment. Step onto the upstairs balcony to enjoy morning coffee or evening breezes. The fully fenced backyard features a screened patio and mature banana, mango, lemon, and orange trees, creating a private tropical setting. Luxury vinyl flooring runs throughout the home, with no carpet. Major updates include a new HVAC system in 2023, whole-home water softener, and fresh interior and exterior paint in 2025. Windermere Trails offers walking trails, lakes, and a resort-style pool. Lakeside Village is less than a mile away with grocery stores, shopping, and restaurants, along with close proximity to downtown Windermere, top-rated A schools, boat ramps, major highways, and Orlando’s best dining and entertainment.
Listing Information
Property Type: Residential, Single Family Residence
Status: Active
Bedrooms: 4
Bathrooms: 4
Lot Size: 0.15 Acres
Square Feet: 3,382 sq ft
Year Built: 2013
Garage: Yes
Stories: 2 Story
Construction: Block,Concrete,Stucco
Subdivision: Windermere Trls Ph 1b
Builder: Meritage Homes
Foundation: Slab
County: Orange
School Information
Elementary: Bay Lake Elementary
Middle: Horizon West Middle School
High: Windermere High School
Room Information
Main Floor
Porch: 12x24
Living Room: 11x13
Dinette: 10x10
Family Room: 12x19
Den: 12x12
Kitchen: 10x17
Dining Room: 12x13
Upper Floor
Laundry: 6x11
Primary Bedroom: 14x18
Media Room: 18x19
Bedroom 3: 12x12
Bedroom 2: 11x13
Bedroom 1: 13x13
Bathrooms
Full Baths: 3
1/2 Baths: 1
Additonal Room Information
Laundry: Upper Level, Inside, Laundry Room
Interior Features
Appliances: Microwave, Range, Refrigerator, Dishwasher, Disposal, Electric Water Heater, Water Softener
Flooring: Ceramic Tile,Luxury Vinyl
Doors/Windows: Double Pane Windows, Blinds, Window Treatments, ENERGY STAR Qualified Windows
Additional Interior Features: Walk-In Closet(s), Window Treatments, Ceiling Fan(s), Eat-In Kitchen, Open Floorplan, Separate/Formal Dining Room, Separate/Formal Living Room, High Ceilings, Upper Level Primary
Utilities
Water: Public
Sewer: Public Sewer
Other Utilities: Cable Connected,Electricity Connected,High Speed Internet Available,Sewer Connected,Water Connected
Cooling: Ceiling Fan(s), Central Air
Heating: Electric, Central, Exhaust Fan
Exterior / Lot Features
Attached Garage: Attached Garage
Garage Spaces: 2
Parking Description: Guest, driveway, on street, Garage, Garage Door Opener
Roof: Shingle
Pool: Community
Fencing: fenced, Vinyl
Additional Exterior/Lot Features: Sprinkler/Irrigation, Rain Gutters, French Patio Doors, Balcony, Balcony, Covered, Screened, Front Porch, Rear Porch, Landscaped
Community Features
Community Features: Pool, Sidewalks, Playground, Street Lights, Park
Security Features: Security System, Closed Circuit Camera(s), Smoke Detector(s)
HOA Dues Include: Pool(s)
Homeowners Association: Yes
HOA Dues: $244 / Quarterly
Driving Directions
From Winter Garden Vineland Road turn right onto Silverlake Park Dr, At the roundabout, take the second exit to continue onto Silverlake Park Dr. Take a left onto Northstar Trail, then take a right onto Angle Pond Dr. House will be on your right.
Financial Considerations
Terms: Cash,Conventional,FHA,VA Loan
Tax/Property ID: 36-23-27-9158-03-940
Tax Amount: 8155
Tax Year: 2024
A broker reciprocity listing courtesy: HOMEVEST REALTY
Based on information provided by Stellar MLS as distributed by the MLS GRID. Information from the Internet Data Exchange is provided exclusively for consumers’ personal, non-commercial use, and such information may not be used for any purpose other than to identify prospective properties consumers may be interested in purchasing. This data is deemed reliable but is not guaranteed to be accurate by Edina Realty, Inc., or by the MLS. Edina Realty, Inc., is not a multiple listing service (MLS), nor does it offer MLS access.
Copyright 2026 Stellar MLS as distributed by the MLS GRID. All Rights Reserved.
Payment Calculator
Interest rate and annual percentage rate (APR) are based on current market conditions, are for informational purposes only, are subject to change without notice and may be subject to pricing add-ons related to property type, loan amount, loan-to-value, credit score and other variables. Estimated closing costs used in the APR calculation are assumed to be paid by the borrower at closing. If the closing costs are financed, the loan, APR and payment amounts will be higher. If the down payment is less than 20%, mortgage insurance may be required and could increase the monthly payment and APR. Contact us for details. Additional loan programs may be available. Accuracy is not guaranteed, and all products may not be available in all borrower's geographical areas and are based on their individual situation. This is not a credit decision or a commitment to lend.
Sales History & Tax Summary for 11922 Angle Pond Avenue
Sales History
| Date | Price | |
|---|---|---|
| Currently not available. | ||
Tax Summary
| Tax Year | Estimated Market Value | Total Tax |
|---|---|---|
| Currently not available. | ||
Data powered by ATTOM Data Solutions. Copyright© 2026. Information deemed reliable but not guaranteed.
Schools
Schools nearby 11922 Angle Pond Avenue
| Schools in attendance boundaries | Grades | Distance | Rating |
|---|---|---|---|
| Loading... | |||
| Schools nearby | Grades | Distance | Rating |
|---|---|---|---|
| Loading... | |||
Data powered by ATTOM Data Solutions. Copyright© 2026. Information deemed reliable but not guaranteed.
The schools shown represent both the assigned schools and schools by distance based on local school and district attendance boundaries. Attendance boundaries change based on various factors and proximity does not guarantee enrollment eligibility. Please consult your real estate agent and/or the school district to confirm the schools this property is zoned to attend. Information is deemed reliable but not guaranteed.
SchoolDigger ® Rating
The SchoolDigger rating system is a 1-5 scale with 5 as the highest rating. SchoolDigger ranks schools based on test scores supplied by each state's Department of Education. They calculate an average standard score by normalizing and averaging each school's test scores across all tests and grades.
Coming soon properties will soon be on the market, but are not yet available for showings.