11934 Meadowgate Place Lakewood Ranch, FL 34211
Pending MLS# A4660460
3 beds 3 baths 1,758 sq ft Townhouse/Twinhome
Details for 11934 Meadowgate Place
MLS# A4660460
Description for 11934 Meadowgate Place, Lakewood Ranch, FL, 34211
Under contract-accepting backup offers. One or more photo(s) has been virtually staged. This end-unit townhome in the sought-after community of Harmony at Lakewood Ranch offers exceptional privacy and a prime location at the end of a quiet cul-de-sac. This maintenance-free, move-in ready home features 3 bedrooms, 3 full bathrooms, a 2-car garage, and a new roof. The light-filled first floor boasts an open-concept layout connecting the kitchen, living, and dining areas .. ideal for both everyday living and entertaining. Upstairs, the loft has been transformed into a spacious guest suite and media room complete with an en-suite bathroom, wet bar, walk-in closet, and a large storage room .. perfect for guests or multigenerational living. Enjoy access to community walking and biking trails, as well as resort-style amenities including a clubhouse, fitness center, playground, and a newly renovated pool. Conveniently located near SR-70, I-75, Lakewood Ranch Blvd, and minutes from top-rated schools, LECOM, Main Street at Lakewood Ranch, UTC, and the lively Waterside district. Don’t miss your opportunity to live or invest in the nation’s #1 multigenerational master-planned community!
Listing Information
Property Type: Residential, Townhouse
Status: Pending
Bedrooms: 3
Bathrooms: 3
Lot Size: 0.11 Acres
Square Feet: 1,758 sq ft
Year Built: 2016
Garage: Yes
Stories: 2 Story
Construction: Stone,Stucco
Construction Display: New Construction
Subdivision: Harmony At Lakewood Ranch Ph I
Foundation: Slab
County: Manatee
Construction Status: New Construction
School Information
Elementary: Gullett Elementary
Middle: Dr Mona Jain Middle
High: Lakewood Ranch High
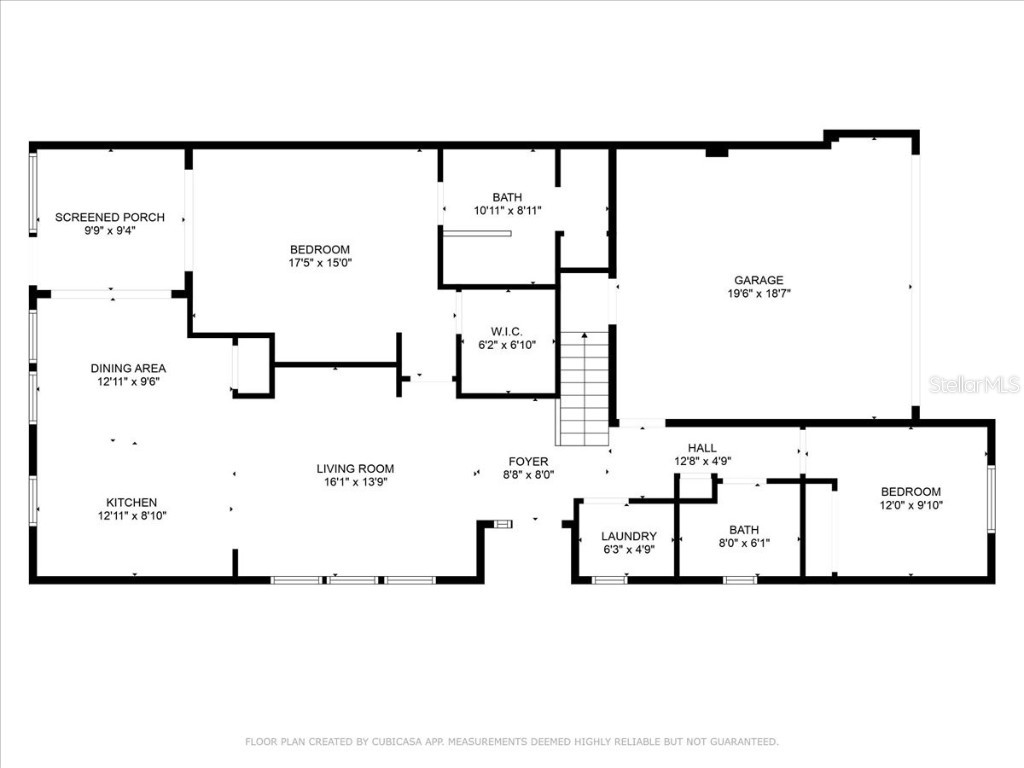
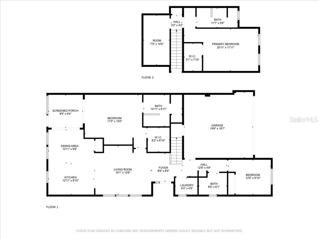
Room Information
Main Floor
Living Room:
Primary Bedroom:
Porch:
Bathroom 1:
Bedroom 1:
Laundry:
Family Room:
Kitchen:
Primary Bathroom:
Upper Floor
Loft:
Bathroom 2:
Bathrooms
Full Baths: 3
Additonal Room Information
Laundry: Laundry Room
Interior Features
Appliances: Built-In Oven, Refrigerator, Electric Water Heater, Washer, Microwave, Dishwasher, Disposal, Dryer
Flooring: Engineered Hardwood,Tile
Doors/Windows: Blinds, Window Treatments
Additional Interior Features: Loft, Walk-In Closet(s), Window Treatments, Ceiling Fan(s), Wet Bar, Open Floorplan, Built-in Features, High Ceilings, Solid Surface Counters, Main Level Primary, Wood Cabinets
Utilities
Water: Public
Sewer: Public Sewer
Other Utilities: Cable Connected,Electricity Connected,Fiber Optic Available,Sewer Connected,Underground Utilities,Water Connected
Cooling: Ceiling Fan(s), Central Air
Heating: Central
Exterior / Lot Features
Attached Garage: Attached Garage
Garage Spaces: 2
Parking Description: Garage, driveway, Garage Door Opener
Roof: Shingle
Pool: Community, Association
Lot View: Water
Additional Exterior/Lot Features: Storm/Security Shutters, Rain Gutters, In-Wall Pest Control System, Sprinkler/Irrigation, Garden, Enclosed, Screened, Patio, Covered, Landscaped, Cul-de-Sac
Community Features
Community Features: Playground, Clubhouse, Pool, Sidewalks, Park, Fitness, Golf Carts OK, Community Mailbox
Security Features: Smoke Detector(s)
Association Amenities: Trail(s), Park, Pool, Fitness Center, Clubhouse, Playground
HOA Dues Include: Maintenance Structure, Maintenance Grounds, Association Management, Pool(s)
Homeowners Association: Yes
HOA Dues: $322 / Monthly
Driving Directions
From I-75 take SR 70 East - Left on Lakewood Ranch Blvd, right on Rangeland, left on New Haven, right on Brookside Dr, left on Bentgrass Way, and right on Meadowgate Pl and property will be the last townhouse on the right in the cul-de-sac by the mailboxes.
Financial Considerations
Tax/Property ID: 583219859
Tax Amount: 5806.67
Tax Year: 2024
A broker reciprocity listing courtesy: KW COASTAL LIVING III
Based on information provided by Stellar MLS as distributed by the MLS GRID. Information from the Internet Data Exchange is provided exclusively for consumers’ personal, non-commercial use, and such information may not be used for any purpose other than to identify prospective properties consumers may be interested in purchasing. This data is deemed reliable but is not guaranteed to be accurate by Edina Realty, Inc., or by the MLS. Edina Realty, Inc., is not a multiple listing service (MLS), nor does it offer MLS access.
Copyright 2026 Stellar MLS as distributed by the MLS GRID. All Rights Reserved.
Sales History & Tax Summary for 11934 Meadowgate Place
Sales History
| Date | Price | |
|---|---|---|
| Currently not available. | ||
Tax Summary
| Tax Year | Estimated Market Value | Total Tax |
|---|---|---|
| Currently not available. | ||
Data powered by ATTOM Data Solutions. Copyright© 2026. Information deemed reliable but not guaranteed.
Schools
Schools nearby 11934 Meadowgate Place
| Schools in attendance boundaries | Grades | Distance | Rating |
|---|---|---|---|
| Loading... | |||
| Schools nearby | Grades | Distance | Rating |
|---|---|---|---|
| Loading... | |||
Data powered by ATTOM Data Solutions. Copyright© 2026. Information deemed reliable but not guaranteed.
The schools shown represent both the assigned schools and schools by distance based on local school and district attendance boundaries. Attendance boundaries change based on various factors and proximity does not guarantee enrollment eligibility. Please consult your real estate agent and/or the school district to confirm the schools this property is zoned to attend. Information is deemed reliable but not guaranteed.
SchoolDigger ® Rating
The SchoolDigger rating system is a 1-5 scale with 5 as the highest rating. SchoolDigger ranks schools based on test scores supplied by each state's Department of Education. They calculate an average standard score by normalizing and averaging each school's test scores across all tests and grades.
Coming soon properties will soon be on the market, but are not yet available for showings.