$325,000
Off-Market Date: 01/11/202611939 Citruswood Drive Orlando, FL 32832
Pending MLS# O6370116
3 beds 3 baths 1,816 sq ft Townhouse/Twinhome
Details for 11939 Citruswood Drive
MLS# O6370116
Description for 11939 Citruswood Drive, Orlando, FL, 32832
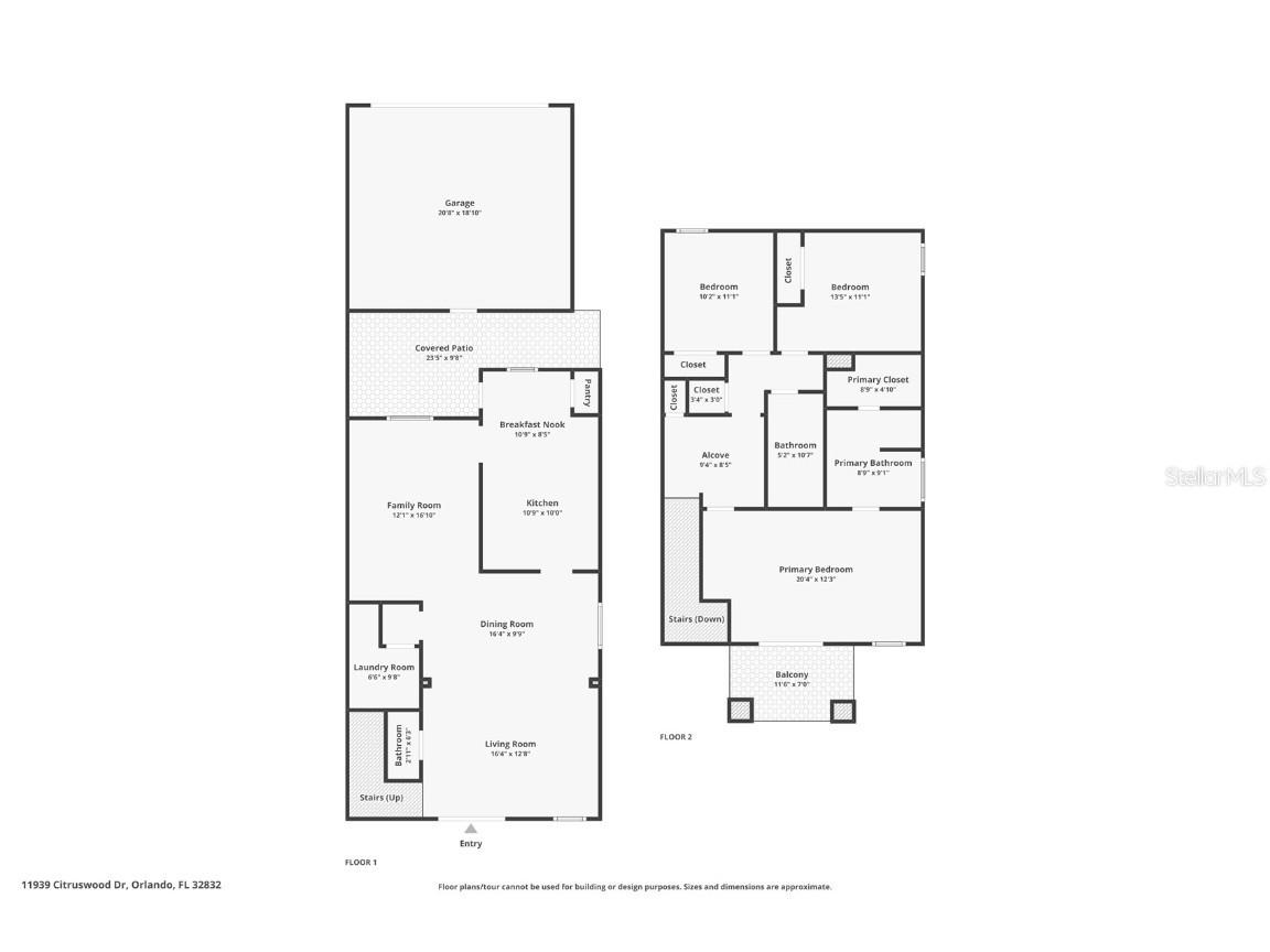
Under contract-accepting backup offers. THIS is your chance to GRAB a Lake Nona BARGAIN! Whether you’ve been waiting for the perfect opportunity to move into Lake Nona at an INCREDIBLY AFFORDABLE price or you’re an investor hunting a rental or flip—LOOK NO FURTHER! With your vision and a touch of know-how, this PRIVATE END UNIT 3-bedroom, 2.1-bath, 2-CAR GARAGE townhouse can go from an unpolished gem to a true Show Stopper. Larger than many 3-bedroom single-family homes. Check out the included link to a3D Walk through and look at the floor plan found in photos. You'll see this unit's downstairs sports LIVING and DINING spaces, FAMILY ROOM and an EAT-IN KITCHEN perfect for kicking back in while your washer and dryer are doing their thing in the EXTRA LARGE LAUNDRY ROOM. Upstairs, you’ll find a super lush primary suite bedroom with FRENCH DOOR access to your PRIVATE BALCONY perfect for morning coffee or reflecting on the day. In the PRIMARY ensuite you'll find a DUAL SINK VANITY, a separate GARDEN TUB for long soaks and separate SHOWER when time is short. There's a large WALK-IN CLOSET for you here too. Two more SPACIOUS BEDROOMS, shared bath with LOTS OF COUNTER SPACE and an ALCOVE perfect for COMPUTER DESK complete upstairs. A PRIVATE pavered COURTYARD PATIO connects the kitchen to the 2 CAR GARAGE—yes, your BBQ dreams are possible here! Perfectly located across from community amenities including CLUBHOUSE, POOL, COVERED PLAYGROUND, BASKETBALL, SIDEWALKS and large GREEN PARKS for 2 legged and 4 legged family member romps. CORNER location adds PRIVACY and EXTRA easy GUEST PARKING. Updates include: 2025 HVAC and thermostat; 2025 LUXURY VINYL installed downstairs; HOA recently RE-ROOFED;WATER SOFTENER;Garage WORK BENCH. Fridge in garage conveys. NO CDD and REASONABLE HOA dues—NO kidding! Enclave at Moss Park is quiet yet super convenient, close to Lake Nona, the up-and-coming Sunbridge, 417, Beachline, USTA, Medical City, KPMG, Lake Nona Town Center, OI Airport, and the Brightline train to Miami. Priced to reward your sweat equity and vision—your simple updates will bring BIG payoffs. Opportunities like this VANISH fast—see it and make it yours TODAY! You Don’t want to kick yourself later. START 2026 RIGHT!
Listing Information
Property Type: Residential, Townhouse
Status: Pending
Bedrooms: 3
Bathrooms: 3
Lot Size: 0.08 Acres
Square Feet: 1,816 sq ft
Year Built: 2007
Garage: Yes
Stories: 2 Story
Construction: Block,Stucco
Construction Display: New Construction
Subdivision: Enclave/Moss Park
Foundation: Slab
County: Orange
Construction Status: Fixer
School Information
Elementary: Moss Park Elementary
Middle: Innovation Middle School
Room Information
Main Floor
Porch: 10x23
Utility Room: 10x7
Family Room: 17x12
Living Room: 13x16
Dining Room: 10x16
Dinette: 8x11
Kitchen: 10x11
Upper Floor
Porch: 7x12
Bedroom 2: 11x10
Primary Bedroom: 12x20
Bedroom 3: 11x13
Bathrooms
Full Baths: 2
1/2 Baths: 1
Additonal Room Information
Laundry: Inside, Laundry Room
Interior Features
Appliances: Water Softener, Washer, Range, Refrigerator, Dishwasher, Disposal, Dryer, Microwave
Flooring: Carpet,Ceramic Tile,Luxury Vinyl
Doors/Windows: Blinds
Additional Interior Features: Eat-In Kitchen, Ceiling Fan(s), Walk-In Closet(s), Living/Dining Room, Built-in Features, High Ceilings, Kitchen/Family Room Combo, Open Floorplan, Separate/Formal Living Room, Solid Surface Counters, Wood Cabinets, Upper Level Primary
Utilities
Water: Public
Sewer: Public Sewer
Other Utilities: Electricity Connected,High Speed Internet Available,Municipal Utilities,Sewer Connected,Underground Utilities,Water Connected
Cooling: Ceiling Fan(s), Central Air
Heating: Electric
Exterior / Lot Features
Garage Spaces: 2
Parking Description: Garage Door Opener, Garage, Garage Faces Rear
Roof: Shingle
Pool: Community
Fencing: Vinyl
Additional Exterior/Lot Features: Courtyard, Patio, Front Porch, Corner Lot, Landscaped, Outside City Limits
Community Features
Community Features: Pool, Playground, Sidewalks, Clubhouse, Street Lights
Security Features: Security System, Fire Hydrant(s)
HOA Dues Include: Maintenance Grounds
Homeowners Association: Yes
HOA Dues: $330 / Monthly
Driving Directions
417 to exit 23 Moss Park Road; turn East; at light turn to continue east on Moss Park Road; follow to left on to John Wycliffe Blvd; left on Great Commission Way; right on Mossy Oak Dr - pass the Clubhouse and amenity center; left on Oak Commons Way; left on Citruswood. Unit will be on right at corner of Citruswood Dr. and Milbury Dr.
Financial Considerations
Terms: Cash,Conventional
Tax/Property ID: 10-24-31-2666-02-060
Tax Amount: 5852.78
Tax Year: 2025
A broker reciprocity listing courtesy: KELLER WILLIAMS ADVANTAGE III
Based on information provided by Stellar MLS as distributed by the MLS GRID. Information from the Internet Data Exchange is provided exclusively for consumers’ personal, non-commercial use, and such information may not be used for any purpose other than to identify prospective properties consumers may be interested in purchasing. This data is deemed reliable but is not guaranteed to be accurate by Edina Realty, Inc., or by the MLS. Edina Realty, Inc., is not a multiple listing service (MLS), nor does it offer MLS access.
Copyright 2026 Stellar MLS as distributed by the MLS GRID. All Rights Reserved.
Sales History & Tax Summary for 11939 Citruswood Drive
Sales History
| Date | Price | Change |
|---|---|---|
| Currently not available. | ||
Tax Summary
| Tax Year | Estimated Market Value | Total Tax |
|---|---|---|
| Currently not available. | ||
Data powered by ATTOM Data Solutions. Copyright© 2026. Information deemed reliable but not guaranteed.
Schools
Schools nearby 11939 Citruswood Drive
| Schools in attendance boundaries | Grades | Distance | Rating |
|---|---|---|---|
| Loading... | |||
| Schools nearby | Grades | Distance | Rating |
|---|---|---|---|
| Loading... | |||
Data powered by ATTOM Data Solutions. Copyright© 2026. Information deemed reliable but not guaranteed.
The schools shown represent both the assigned schools and schools by distance based on local school and district attendance boundaries. Attendance boundaries change based on various factors and proximity does not guarantee enrollment eligibility. Please consult your real estate agent and/or the school district to confirm the schools this property is zoned to attend. Information is deemed reliable but not guaranteed.
SchoolDigger ® Rating
The SchoolDigger rating system is a 1-5 scale with 5 as the highest rating. SchoolDigger ranks schools based on test scores supplied by each state's Department of Education. They calculate an average standard score by normalizing and averaging each school's test scores across all tests and grades.
Coming soon properties will soon be on the market, but are not yet available for showings.