11951 Sheldon Road Tampa, FL 33626
Pending MLS# TB8472501
2 beds 2 baths 1,393 sq ft Single Family
Details for 11951 Sheldon Road
MLS# TB8472501
Description for 11951 Sheldon Road, Tampa, FL, 33626
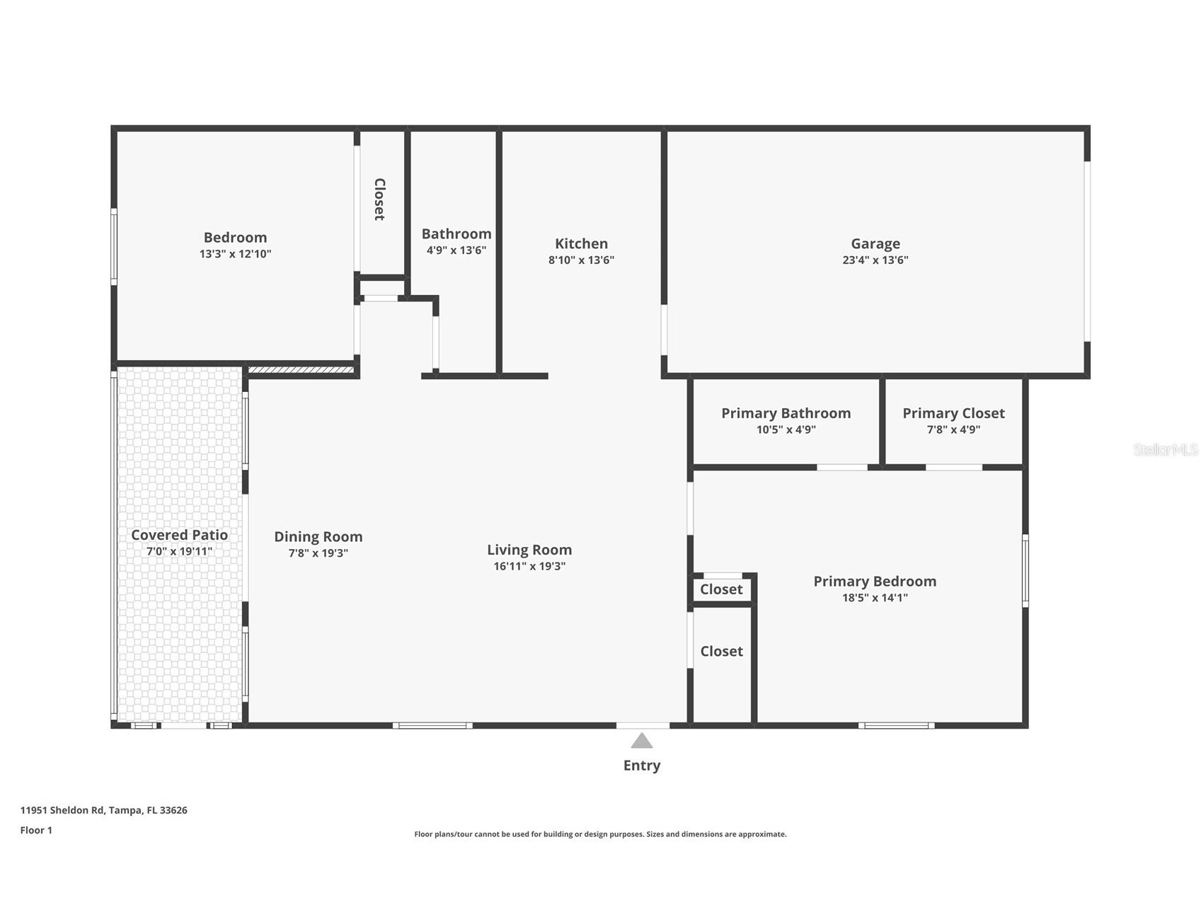
Under contract-accepting backup offers. Welcome to this beautifully maintained 2 bedroom, 2 bathroom villa tucked away in a quiet and charming Westchase community. Thoughtfully designed, the home features a clever open floor plan that seamlessly combines the living room, dining area, and kitchen, creating a comfortable space for everyday living and easy entertaining. Elegant touches throughout include crown molding and hardwood floors, adding warmth and character to the home. The primary bedroom offers generous storage and closet space along with a private en suite bathroom featuring a walk in shower. The secondary bedroom is conveniently located near the second full bathroom, which includes a shower tub combination. Large French doors lead to the private lanai, filling the home with natural light and offering peaceful views of trees and conservation for complete privacy. Additional highlights include a one car garage and a well cared for interior that reflects pride of ownership. This cozy villa is located in a very quiet community while still being just minutes from popular restaurants, shopping, and everything Westchase has to offer. A perfect blend of comfort, privacy, and convenience.
Listing Information
Property Type: Residential, Villa
Status: Pending
Bedrooms: 2
Bathrooms: 2
Lot Size: 0.06 Acres
Square Feet: 1,393 sq ft
Year Built: 2005
Garage: Yes
Stories: 1 Story
Construction: Block,Stucco
Subdivision: Citrus Falls Commons Villas
Foundation: Slab
County: Hillsborough
School Information
Elementary: Westchase-Hb
Middle: Sergeant Smith Middle-Hb
High: Sickles-Hb
Room Information
Main Floor
Bedroom 2: 13x13
Primary Bedroom: 15x14
Dining Room: 7x19
Kitchen: 8x14
Living Room: 20x25
Bathrooms
Full Baths: 2
Additonal Room Information
Laundry: Inside
Interior Features
Appliances: Refrigerator, Dishwasher, Disposal, Microwave
Flooring: Carpet,Ceramic Tile,Wood
Doors/Windows: Blinds
Accessibility: Enhanced Accessible
Additional Interior Features: Ceiling Fan(s)
Utilities
Water: Public
Sewer: Public Sewer
Other Utilities: Cable Connected
Cooling: Ceiling Fan(s), Central Air
Heating: Central
Exterior / Lot Features
Attached Garage: Attached Garage
Garage Spaces: 1
Parking Description: driveway, Assigned
Roof: Shingle
Lot View: Trees/Woods
Additional Exterior/Lot Features: Deck, Patio, Porch, Screened, Landscaped, Conservation Area
Community Features
Community Features: Street Lights, Sidewalks
HOA Dues Include: Other, Sewer, Trash, Water, Pest Control
Homeowners Association: Yes
HOA Dues: $250 / Monthly
Driving Directions
Traveling west on W Hillsborough Ave, make a right on Sheldon Rd. Turn right onto Westward Dr. You will find the house on your right side.
Financial Considerations
Terms: Cash,Conventional,FHA,VA Loan
Tax/Property ID: U-11-28-17-ZZZ-000000-27876.0
Tax Amount: 2685
Tax Year: 2025
A broker reciprocity listing courtesy: KELLER WILLIAMS TAMPA PROP.
Based on information provided by Stellar MLS as distributed by the MLS GRID. Information from the Internet Data Exchange is provided exclusively for consumers’ personal, non-commercial use, and such information may not be used for any purpose other than to identify prospective properties consumers may be interested in purchasing. This data is deemed reliable but is not guaranteed to be accurate by Edina Realty, Inc., or by the MLS. Edina Realty, Inc., is not a multiple listing service (MLS), nor does it offer MLS access.
Copyright 2026 Stellar MLS as distributed by the MLS GRID. All Rights Reserved.
Sales History & Tax Summary for 11951 Sheldon Road
Sales History
| Date | Price | |
|---|---|---|
| Currently not available. | ||
Tax Summary
| Tax Year | Estimated Market Value | Total Tax |
|---|---|---|
| Currently not available. | ||
Data powered by ATTOM Data Solutions. Copyright© 2026. Information deemed reliable but not guaranteed.
Schools
Schools nearby 11951 Sheldon Road
| Schools in attendance boundaries | Grades | Distance | Rating |
|---|---|---|---|
| Loading... | |||
| Schools nearby | Grades | Distance | Rating |
|---|---|---|---|
| Loading... | |||
Data powered by ATTOM Data Solutions. Copyright© 2026. Information deemed reliable but not guaranteed.
The schools shown represent both the assigned schools and schools by distance based on local school and district attendance boundaries. Attendance boundaries change based on various factors and proximity does not guarantee enrollment eligibility. Please consult your real estate agent and/or the school district to confirm the schools this property is zoned to attend. Information is deemed reliable but not guaranteed.
SchoolDigger ® Rating
The SchoolDigger rating system is a 1-5 scale with 5 as the highest rating. SchoolDigger ranks schools based on test scores supplied by each state's Department of Education. They calculate an average standard score by normalizing and averaging each school's test scores across all tests and grades.
Coming soon properties will soon be on the market, but are not yet available for showings.