1196 Pearl Tree Road Deltona, FL 32725
For Sale MLS# V4945246
4 beds 2 baths 1,890 sq ft Single Family
OPEN HOUSE: Saturday, 5/2 11:00 AM - 02:00 PM
Details for 1196 Pearl Tree Road
MLS# V4945246
Description for 1196 Pearl Tree Road, Deltona, FL, 32725
Owners are motivated. Don’t miss this beautiful home in one of the sought-after Hampton Oaks neighborhoods with low HOA fees. This stunning home offers modern elegance and spacious living. Step inside to find beautiful wood-look flooring throughout. Enter your open-concept family room and beautifully designed kitchen. This chef's kitchen, in the heart of the home, features quartz countertops, 42” cabinets, stainless steel appliances, a pantry closet, a large center island, and ample counter and cabinet space. Overlooking a perfectly appointed dinette area, the kitchen features a French door with built-in blinds and access to a screened-in, epoxy-floored lanai with expansive views of the backyard, ideal for entertaining or relaxing. An outdoor kitchen stubout is in place, and a gazebo offers a perfect place to relax and enjoy the beautiful breeze all year, as you look out to the view of the water/conservation area. The primary en-suite offers a private retreat with plenty of natural light, dual sinks, an enclosed shower with a rain showerhead, and a water closet. The three additional bedrooms (one currently set up with speakers for a movie room) are located in the front of the house. This split-floor plan is ideal for any growing family or a work-from-home office. Schedule your viewing today. Hampton Oaks is conveniently located with quick access to I-4 via Saxon Blvd and an easy commute to Orlando or Daytona Beach. This home is minutes from local shopping, dining, and scenic lakes.
Listing Information
Property Type: Residential, Single Family Residence
Status: Active
Bedrooms: 4
Bathrooms: 2
Lot Size: 0.16 Acres
Square Feet: 1,890 sq ft
Year Built: 2023
Garage: Yes
Stories: 1 Story
Construction: Stucco
Subdivision: Hampton Oaks
Foundation: Slab
County: Volusia
School Information
Elementary: Spirit Elem
Middle: Deltona Middle
High: Deland High
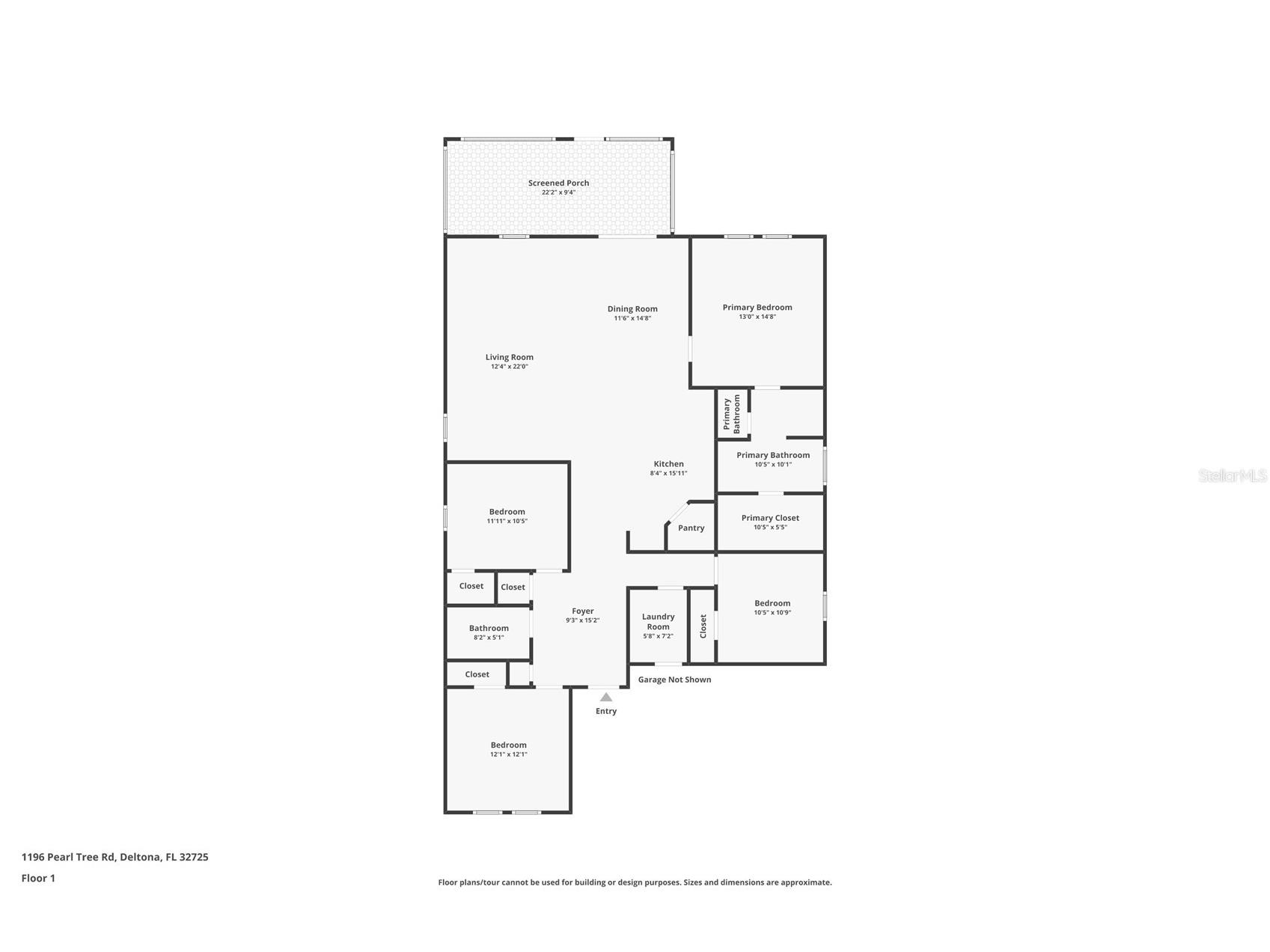
Room Information
Main Floor
Kitchen: 15.11x8.4
Bedroom 4: 10.9x10.5
Bedroom 3: 10.5x11.11
Bedroom 2: 12.1x12.1
Dining Room: 14.8x11.6
Great Room: 22x12.4
Primary Bedroom: 14.8x13
Bathrooms
Full Baths: 2
Additonal Room Information
Laundry: Inside, Washer Hookup, Laundry Room, Electric Dryer Hookup
Interior Features
Appliances: Electric Water Heater, Dishwasher, Disposal, Dryer, Microwave, Range, Refrigerator, Washer
Flooring: Ceramic Tile,Luxury Vinyl
Additional Interior Features: Ceiling Fan(s), Living/Dining Room
Utilities
Water: Public
Sewer: Public Sewer
Other Utilities: Cable Connected,Electricity Connected,Phone Available,Sewer Connected,Water Connected
Cooling: Ceiling Fan(s), Central Air
Heating: Central
Exterior / Lot Features
Attached Garage: Attached Garage
Garage Spaces: 2
Roof: Shingle
Additional Exterior/Lot Features: French Patio Doors, Screened
Community Features
Homeowners Association: Yes
HOA Dues: $212 / Quarterly
Driving Directions
Take Saxon Blvd to Sterling Silver Blvd. Take Left onto Sterling Silver Blvd and then right onto Pearl Tree Rd. Home is located on the left side.
Financial Considerations
Terms: Cash,Conventional,FHA,VA Loan
Tax/Property ID: 81-20-09-00-0190
Tax Amount: 4697
Tax Year: 2024
A broker reciprocity listing courtesy: THE KEYES COMPANY
Based on information provided by Stellar MLS as distributed by the MLS GRID. Information from the Internet Data Exchange is provided exclusively for consumers’ personal, non-commercial use, and such information may not be used for any purpose other than to identify prospective properties consumers may be interested in purchasing. This data is deemed reliable but is not guaranteed to be accurate by Edina Realty, Inc., or by the MLS. Edina Realty, Inc., is not a multiple listing service (MLS), nor does it offer MLS access.
Copyright 2026 Stellar MLS as distributed by the MLS GRID. All Rights Reserved.
Payment Calculator
Interest rate and annual percentage rate (APR) are based on current market conditions, are for informational purposes only, are subject to change without notice and may be subject to pricing add-ons related to property type, loan amount, loan-to-value, credit score and other variables. Estimated closing costs used in the APR calculation are assumed to be paid by the borrower at closing. If the closing costs are financed, the loan, APR and payment amounts will be higher. If the down payment is less than 20%, mortgage insurance may be required and could increase the monthly payment and APR. Contact us for details. Additional loan programs may be available. Accuracy is not guaranteed, and all products may not be available in all borrower's geographical areas and are based on their individual situation. This is not a credit decision or a commitment to lend.
Sales History & Tax Summary for 1196 Pearl Tree Road
Sales History
| Date | Price | |
|---|---|---|
| Currently not available. | ||
Tax Summary
| Tax Year | Estimated Market Value | Total Tax |
|---|---|---|
| Currently not available. | ||
Data powered by ATTOM Data Solutions. Copyright© 2026. Information deemed reliable but not guaranteed.
Schools
Schools nearby 1196 Pearl Tree Road
| Schools in attendance boundaries | Grades | Distance | Rating |
|---|---|---|---|
| Loading... | |||
| Schools nearby | Grades | Distance | Rating |
|---|---|---|---|
| Loading... | |||
Data powered by ATTOM Data Solutions. Copyright© 2026. Information deemed reliable but not guaranteed.
The schools shown represent both the assigned schools and schools by distance based on local school and district attendance boundaries. Attendance boundaries change based on various factors and proximity does not guarantee enrollment eligibility. Please consult your real estate agent and/or the school district to confirm the schools this property is zoned to attend. Information is deemed reliable but not guaranteed.
SchoolDigger ® Rating
The SchoolDigger rating system is a 1-5 scale with 5 as the highest rating. SchoolDigger ranks schools based on test scores supplied by each state's Department of Education. They calculate an average standard score by normalizing and averaging each school's test scores across all tests and grades.
Coming soon properties will soon be on the market, but are not yet available for showings.