12 Big Buck Trail Ormond Beach, FL 32174
For Sale MLS# FC310269
4 beds 3 baths 2,698 sq ft Townhouse/Twinhome
Details for 12 Big Buck Trail
MLS# FC310269
Description for 12 Big Buck Trail, Ormond Beach, FL, 32174
SPACIOUS, UPDATED TOWNHOME IN THE HEART OF ORMOND BEACH! This 4-bedroom, 3-bath, 2-car garage townhome offers room to grow, thoughtful updates, and a versatile layout—all tucked into a quiet community in central Ormond Beach, close to everything! Inside, you’ll find soaring ceilings, a striking wood-burning fireplace, and a modern, light-filled kitchen renovation. The primary suite and a second bedroom are located downstairs, while upstairs you’ll find a second primary suite, an additional bedroom/flex room, and a spacious bonus living area perfect for a home office, den, or playroom. Major updates and features include: Impact-rated hurricane windows. Updated kitchen, flooring, and fixtures (2017–2023). Roof, HVAC & Water Heater all 2017. Electric garage screen (2017) and patio windows (2018). Leaf Filter gutters (2015) and energy-saving attic insulation + solar fan (2014) Enjoy multiple inviting outdoor spaces. A welcoming back courtyard with paver patio and fenced lanai. A cozy enclosed front porch between the garage and entry—perfect for morning coffee or greeting guests HOA: $600/quarter, covering Cable TV, Clubhouse, Pool, Grounds/Structure Maintenance, Pickleball, Shuffleboard & Tennis. Recent homeowners insurance quote: Approx. $1,963.54/year. All information has been provided by the seller and sourced from public records where available. While believed to be accurate, it is not guaranteed. Buyers and their agents are encouraged to independently verify all details.
Listing Information
Property Type: Residential, Townhouse
Status: Active
Bedrooms: 4
Bathrooms: 3
Lot Size: 0.08 Acres
Square Feet: 2,698 sq ft
Year Built: 1984
Garage: Yes
Stories: 2 Story
Construction: Block,Concrete,Stucco
Subdivision: Trails North Forty Rep
Foundation: Slab
County: Volusia
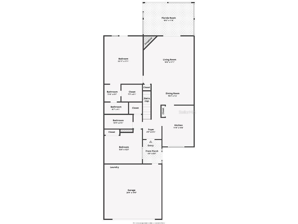
Room Information
Main Floor
Dining Room: 7x15
Living Room: 17x18
Porch:
Bedroom 2: 12x13
Primary Bedroom: 17x13
Florida Room: 11x18
Kitchen: 14x11
Upper Floor
Porch: 6x12
Bedroom 4: 15x11
Bedroom 3: 24x13
Family Room: 12x18
Bathrooms
Full Baths: 3
Additonal Room Information
Laundry: In Garage, Washer Hookup, Electric Dryer Hookup
Interior Features
Appliances: Washer, Dishwasher, Dryer, Microwave, Range, Refrigerator
Flooring: Carpet,Laminate
Fireplaces: Wood Burning, Living Room
Additional Interior Features: Split Bedrooms, Walk-In Closet(s), Main Level Primary, Ceiling Fan(s), Eat-In Kitchen, Vaulted Ceiling(s)
Utilities
Water: Public
Sewer: Public Sewer
Other Utilities: Cable Available,Electricity Connected,Sewer Connected,Water Connected
Cooling: Ceiling Fan(s), Central Air
Heating: Central, Electric
Exterior / Lot Features
Attached Garage: Attached Garage
Garage Spaces: 2
Roof: Shingle
Pool: Community
Additional Exterior/Lot Features: Tennis Court(s), Rain Gutters
Community Features
Community Features: Pool, Tennis Court(s)
HOA Dues Include: Cable TV, Maintenance Structure, Pool(s), Maintenance Grounds
Homeowners Association: Yes
HOA Dues: $600 / Quarterly
Driving Directions
From I-95 exit 268 go east on Granada Blvd 1.5 miles to left on Deer Lake Rd; to left on Deer Lake Cir; to left on Big Buck Trl; go to 12 on left.
Financial Considerations
Terms: Cash,Conventional,FHA,VA Loan
Tax/Property ID: 4220-24-00-1470
Tax Amount: 2986
Tax Year: 2024
A broker reciprocity listing courtesy: SIMPLY REAL ESTATE
Based on information provided by Stellar MLS as distributed by the MLS GRID. Information from the Internet Data Exchange is provided exclusively for consumers’ personal, non-commercial use, and such information may not be used for any purpose other than to identify prospective properties consumers may be interested in purchasing. This data is deemed reliable but is not guaranteed to be accurate by Edina Realty, Inc., or by the MLS. Edina Realty, Inc., is not a multiple listing service (MLS), nor does it offer MLS access.
Copyright 2025 Stellar MLS as distributed by the MLS GRID. All Rights Reserved.
Payment Calculator
Interest rate and annual percentage rate (APR) are based on current market conditions, are for informational purposes only, are subject to change without notice and may be subject to pricing add-ons related to property type, loan amount, loan-to-value, credit score and other variables. Estimated closing costs used in the APR calculation are assumed to be paid by the borrower at closing. If the closing costs are financed, the loan, APR and payment amounts will be higher. If the down payment is less than 20%, mortgage insurance may be required and could increase the monthly payment and APR. Contact us for details. Additional loan programs may be available. Accuracy is not guaranteed, and all products may not be available in all borrower's geographical areas and are based on their individual situation. This is not a credit decision or a commitment to lend.
Sales History & Tax Summary for 12 Big Buck Trail
Sales History
| Date | Price | Change |
|---|---|---|
| Currently not available. | ||
Tax Summary
| Tax Year | Estimated Market Value | Total Tax |
|---|---|---|
| Currently not available. | ||
Data powered by ATTOM Data Solutions. Copyright© 2025. Information deemed reliable but not guaranteed.
Schools
Schools nearby 12 Big Buck Trail
| Schools in attendance boundaries | Grades | Distance | Rating |
|---|---|---|---|
| Loading... | |||
| Schools nearby | Grades | Distance | Rating |
|---|---|---|---|
| Loading... | |||
Data powered by ATTOM Data Solutions. Copyright© 2025. Information deemed reliable but not guaranteed.
The schools shown represent both the assigned schools and schools by distance based on local school and district attendance boundaries. Attendance boundaries change based on various factors and proximity does not guarantee enrollment eligibility. Please consult your real estate agent and/or the school district to confirm the schools this property is zoned to attend. Information is deemed reliable but not guaranteed.
SchoolDigger ® Rating
The SchoolDigger rating system is a 1-5 scale with 5 as the highest rating. SchoolDigger ranks schools based on test scores supplied by each state's Department of Education. They calculate an average standard score by normalizing and averaging each school's test scores across all tests and grades.
Coming soon properties will soon be on the market, but are not yet available for showings.