120 Hibiscus Woods Court #1D Deltona, FL 32725
Pending MLS# V4944850
2 beds 2 baths 897 sq ft Condo
Details for 120 Hibiscus Woods Court #1D
MLS# V4944850
Description for 120 Hibiscus Woods Court #1D, Deltona, FL, 32725
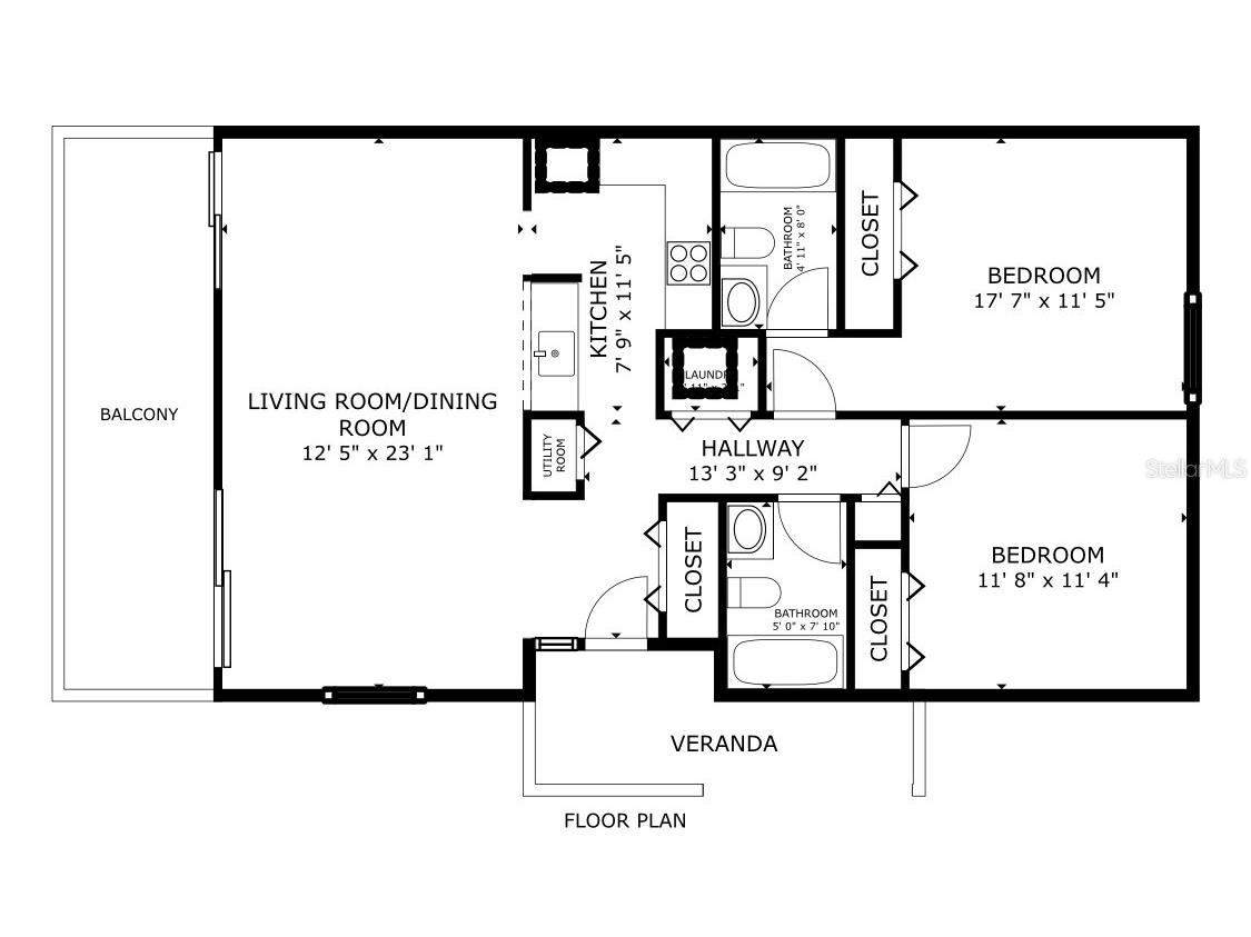
Welcome to this 2-bedroom, 2-bath condo on the second floor of the sought-after Lakeside Condo community. Relax on your private screened balcony or enjoy the community amenities, including a sparkling pool, tennis courts, and beautifully maintained grounds. This location offers the best of convenience and recreation. You’ll be just steps from Lake Monroe, Thornby Park, Green Springs Park, and the East Central Regional Rail Trail. Shopping, dining, and Publix are nearby, with easy access to I-4 and 17-92. From here, Downtown Sanford is a short drive, New Smyrna Beach and Daytona Beach are less than an hour away, and Orlando is within comfortable reach — making it an ideal spot for both work and play. Leasing is permitted, though this is a no-pet community. Association approval is required for both buyers and renters, ensuring a well-maintained and welcoming neighborhood. Schedule your private showing today!
Listing Information
Property Type: Residential, Condominium
Status: Pending
Bedrooms: 2
Bathrooms: 2
Lot Size: 14.07 Acres
Square Feet: 897 sq ft
Year Built: 1979
Stories: 1 Story
Construction: Block,Concrete
Subdivision: Lakeside Condo Apts
Foundation: Slab
County: Volusia
Room Information
Main Floor
Porch: 6x22
Bedroom 2: 11x11
Primary Bedroom: 8x11
Kitchen: 8x11
Living Room: 12x22
Bathrooms
Full Baths: 2
Additonal Room Information
Laundry: Laundry Closet
Interior Features
Appliances: Range Hood, Washer, Dishwasher, Disposal, Dryer, Range, Refrigerator
Flooring: Carpet,Vinyl
Additional Interior Features: Living/Dining Room
Utilities
Water: Public
Sewer: Public Sewer
Other Utilities: Electricity Connected,Sewer Connected,Water Connected
Cooling: Central Air
Heating: Central
Exterior / Lot Features
Roof: Shingle
Pool: Association, Community
Additional Exterior/Lot Features: Tennis Court(s)
Community Features
Community Features: Sidewalks, Pool, Tennis Court(s), Clubhouse
Association Amenities: Pool
HOA Dues Include: Sewer
Homeowners Association: Yes
HOA Dues: $300 / Monthly
Driving Directions
From Doyle Road, head south on Providence Blvd (you’ll pass Publix and 7-Eleven), then turn left onto Lakeshore Drive. Next, take a left on Perimeter Drive to enter Lakeside Condos. Continue around and turn Right onto Hibiscus Woods Court. Funiture are uptional
Financial Considerations
Terms: Cash,Conventional
Tax/Property ID: 9106-06-02-001D
Tax Amount: 703
Tax Year: 2024
A broker reciprocity listing courtesy: IRON VALLEY REAL ESTATE DELTONA LAKES
Based on information provided by Stellar MLS as distributed by the MLS GRID. Information from the Internet Data Exchange is provided exclusively for consumers’ personal, non-commercial use, and such information may not be used for any purpose other than to identify prospective properties consumers may be interested in purchasing. This data is deemed reliable but is not guaranteed to be accurate by Edina Realty, Inc., or by the MLS. Edina Realty, Inc., is not a multiple listing service (MLS), nor does it offer MLS access.
Copyright 2026 Stellar MLS as distributed by the MLS GRID. All Rights Reserved.
Sales History & Tax Summary for 120 Hibiscus Woods Court #1D
Sales History
| Date | Price | |
|---|---|---|
| Currently not available. | ||
Tax Summary
| Tax Year | Estimated Market Value | Total Tax |
|---|---|---|
| Currently not available. | ||
Data powered by ATTOM Data Solutions. Copyright© 2026. Information deemed reliable but not guaranteed.
Schools
Schools nearby 120 Hibiscus Woods Court #1D
| Schools in attendance boundaries | Grades | Distance | Rating |
|---|---|---|---|
| Loading... | |||
| Schools nearby | Grades | Distance | Rating |
|---|---|---|---|
| Loading... | |||
Data powered by ATTOM Data Solutions. Copyright© 2026. Information deemed reliable but not guaranteed.
The schools shown represent both the assigned schools and schools by distance based on local school and district attendance boundaries. Attendance boundaries change based on various factors and proximity does not guarantee enrollment eligibility. Please consult your real estate agent and/or the school district to confirm the schools this property is zoned to attend. Information is deemed reliable but not guaranteed.
SchoolDigger ® Rating
The SchoolDigger rating system is a 1-5 scale with 5 as the highest rating. SchoolDigger ranks schools based on test scores supplied by each state's Department of Education. They calculate an average standard score by normalizing and averaging each school's test scores across all tests and grades.
Coming soon properties will soon be on the market, but are not yet available for showings.