12011 Seabrook Avenue Bradenton, FL 34211
For Sale MLS# A4669949
3 beds 2 baths 2,000 sq ft Single Family
Details for 12011 Seabrook Avenue
MLS# A4669949
Description for 12011 Seabrook Avenue, Bradenton, FL, 34211
Experience stunning water views from this beautifully updated home in the desirable Mallory Park community, just steps from the pool, clubhouse, fitness center, and children’s park, offering all the benefits without the upkeep or expense of a private pool. Located in the heart of Lakewood Ranch, this property offers the perfect blend of lifestyle, location, and low maintenance. Enjoy beautiful morning sunrises from the screened lanai, overlooking a serene natural wooded landscape, lake, and community pier. The open-concept floor plan features a great room with a custom mirrored wall, tray ceilings with contrast paint, crown molding, and ceiling fans in every room for efficient cooling. The home includes three bedrooms plus a versatile den, all with upgraded luxury vinyl floors. The kitchen is outfitted with granite countertops, dark painted cabinetry, upgraded appliances, and plenty of storage. Every closet, the pantry, laundry room, and garage have custom built-in cabinetry, adding convenience and organization throughout. Mallory Park residents enjoy top-notch amenities including a gated entrance, pool, clubhouse, pickleball courts, playground, and easy access to Bob Gardner Park, perfect for walks, runs, frisbee golf, or time with kids and pets. Low-cost HOA fees include lawn care, adding to the low-maintenance appeal. Located near A-rated schools and all that Lakewood Ranch has to offer, this home delivers an unbeatable combination of comfort, convenience, and community. Be sure to view the 3D virtual tour and schedule your private showing today!
Listing Information
Property Type: Residential, Single Family Residence
Status: Active
Bedrooms: 3
Bathrooms: 2
Lot Size: 0.19 Acres
Square Feet: 2,000 sq ft
Year Built: 2017
Garage: Yes
Stories: 1 Story
Construction: Block,Stucco
Construction Display: New Construction
Subdivision: Mallory Park Ph I A, C & E
Foundation: Slab
County: Manatee
Construction Status: New Construction
School Information
Elementary: Gullett Elementary
Middle: Dr Mona Jain Middle
High: Lakewood Ranch High
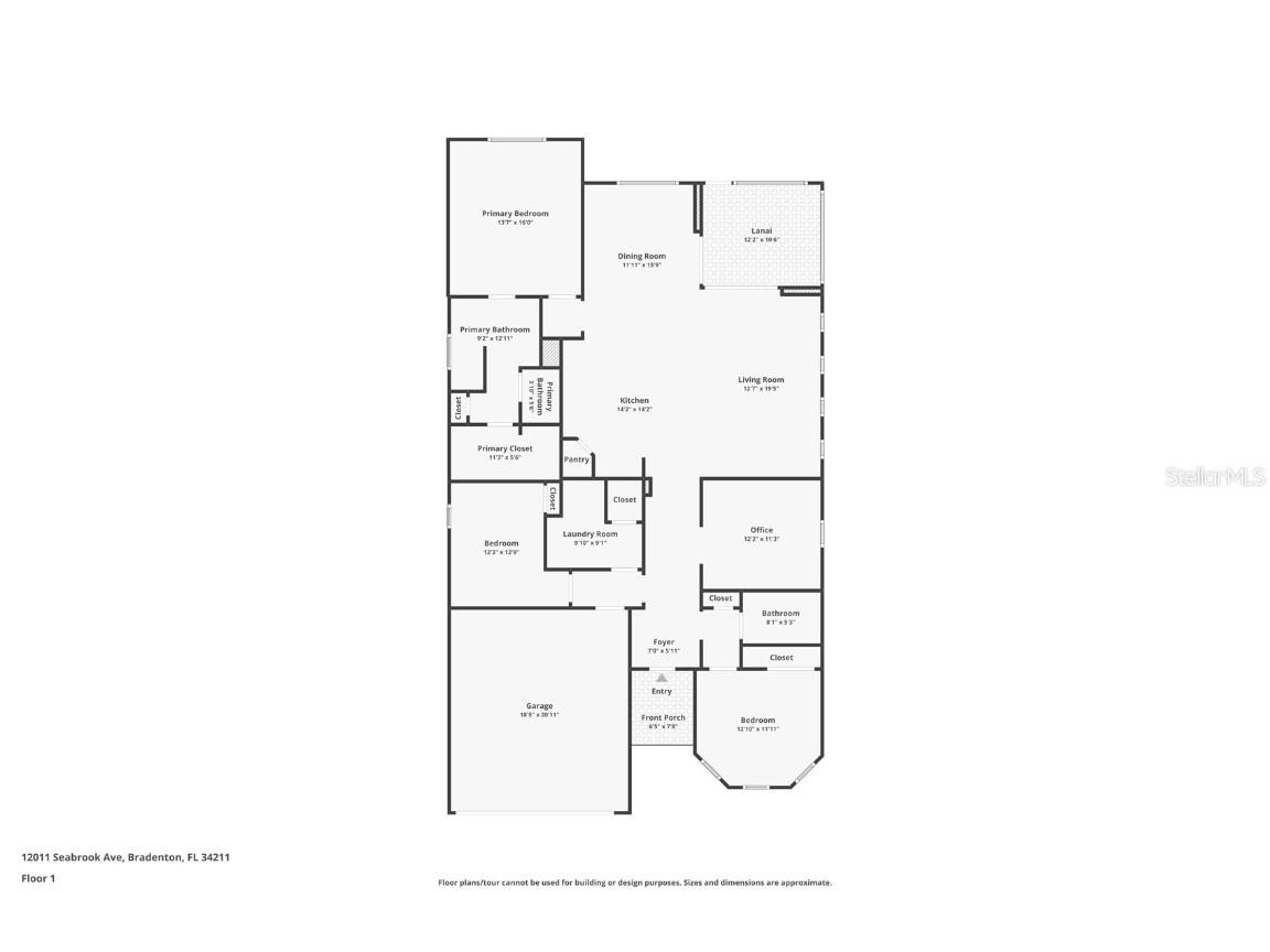
Room Information
Main Floor
Bedroom 3: 12x12
Bedroom 2: 12x12
Office: 11x12
Dining Room: 11x12
Primary Bathroom: 10x18
Primary Bedroom: 13x15
Living Room: 18x18
Kitchen: 18x11
Bathrooms
Full Baths: 2
Additonal Room Information
Laundry: Inside
Interior Features
Appliances: Washer, Gas Water Heater, Dryer, Dishwasher, Disposal, Microwave, Range, Refrigerator
Flooring: Carpet,Tile
Doors/Windows: Window Treatments
Additional Interior Features: Walk-In Closet(s), Split Bedrooms, Tray Ceiling(s), Window Treatments, Ceiling Fan(s), High Ceilings, Main Level Primary, Crown Molding, Coffered Ceiling(s), Kitchen/Family Room Combo, Open Floorplan, Solid Surface Counters, Stone Counters
Utilities
Water: Public
Sewer: Public Sewer
Other Utilities: Cable Connected,Electricity Connected,Fiber Optic Available,Natural Gas Connected,Sewer Connected
Cooling: Ceiling Fan(s), Central Air
Heating: Electric, Central
Exterior / Lot Features
Attached Garage: Attached Garage
Garage Spaces: 2
Roof: Tile
Pool: Community, Association
Lot View: Lake,Water
Additional Exterior/Lot Features: Storm/Security Shutters, Rain Gutters, Sprinkler/Irrigation, In-Wall Pest Control System, Covered, Screened, Landscaped
Waterfront Details
Water Front Features: Lake Front
Community Features
Community Features: Pool, Sidewalks, Dock, Playground, Gated, Park, Fitness, Golf Carts OK
Security Features: Gated Community
Association Amenities: Playground, Clubhouse, Fitness Center, Basketball Court, Pool, Pickleball, Maintenance Grounds, Gated
HOA Dues Include: Maintenance Grounds, Reserve Fund, Pool(s), Association Management, Security, Recreation Facilities
Homeowners Association: Yes
HOA Dues: $1,118 / Quarterly
Driving Directions
Head east on SR 70 (Lakewood Ranch Blvd) toward Lakewood Ranch. Turn right onto Lorainne Rd. Continue on Lorainne Rd, then turn left onto Mallory Ln. Follow Mallory Ln, then turn right onto Seabrook Ave. The destination, 12011 Seabrook Ave, will be on your right.
Financial Considerations
Terms: Cash,Conventional,VA Loan
Tax/Property ID: 590001609
Tax Amount: 9197.1
Tax Year: 2024
A broker reciprocity listing courtesy: COLDWELL BANKER REALTY
Based on information provided by Stellar MLS as distributed by the MLS GRID. Information from the Internet Data Exchange is provided exclusively for consumers’ personal, non-commercial use, and such information may not be used for any purpose other than to identify prospective properties consumers may be interested in purchasing. This data is deemed reliable but is not guaranteed to be accurate by Edina Realty, Inc., or by the MLS. Edina Realty, Inc., is not a multiple listing service (MLS), nor does it offer MLS access.
Copyright 2025 Stellar MLS as distributed by the MLS GRID. All Rights Reserved.
Payment Calculator
Interest rate and annual percentage rate (APR) are based on current market conditions, are for informational purposes only, are subject to change without notice and may be subject to pricing add-ons related to property type, loan amount, loan-to-value, credit score and other variables. Estimated closing costs used in the APR calculation are assumed to be paid by the borrower at closing. If the closing costs are financed, the loan, APR and payment amounts will be higher. If the down payment is less than 20%, mortgage insurance may be required and could increase the monthly payment and APR. Contact us for details. Additional loan programs may be available. Accuracy is not guaranteed, and all products may not be available in all borrower's geographical areas and are based on their individual situation. This is not a credit decision or a commitment to lend.
Sales History & Tax Summary for 12011 Seabrook Avenue
Sales History
| Date | Price | Change |
|---|---|---|
| Currently not available. | ||
Tax Summary
| Tax Year | Estimated Market Value | Total Tax |
|---|---|---|
| Currently not available. | ||
Data powered by ATTOM Data Solutions. Copyright© 2025. Information deemed reliable but not guaranteed.
Schools
Schools nearby 12011 Seabrook Avenue
| Schools in attendance boundaries | Grades | Distance | Rating |
|---|---|---|---|
| Loading... | |||
| Schools nearby | Grades | Distance | Rating |
|---|---|---|---|
| Loading... | |||
Data powered by ATTOM Data Solutions. Copyright© 2025. Information deemed reliable but not guaranteed.
The schools shown represent both the assigned schools and schools by distance based on local school and district attendance boundaries. Attendance boundaries change based on various factors and proximity does not guarantee enrollment eligibility. Please consult your real estate agent and/or the school district to confirm the schools this property is zoned to attend. Information is deemed reliable but not guaranteed.
SchoolDigger ® Rating
The SchoolDigger rating system is a 1-5 scale with 5 as the highest rating. SchoolDigger ranks schools based on test scores supplied by each state's Department of Education. They calculate an average standard score by normalizing and averaging each school's test scores across all tests and grades.
Coming soon properties will soon be on the market, but are not yet available for showings.