1209 E Washington Street Orlando, FL 32801
For Sale MLS# O6339986
2 beds 1 baths 1,071 sq ft Single Family
Details for 1209 E Washington Street
MLS# O6339986
Description for 1209 E Washington Street, Orlando, FL, 32801
LOCATION LOCATION LOCATION! In the heart of Thornton Park on an historic brick paver street welcome to your newly remodeled sanctuary! Step inside this fully remodeled home, where every detail has been thoughtfully designed and upgraded for modern comfort and efficiency. The beautiful windows and the natural light is breathtaking! The interior has been completely rebuilt from the studs out, featuring brand-new framing, drywall, fresh paint, updated electrical, plumbing, and a new HVAC system. A new roof with CertainTeed Architectural shingles comes with a 25-year manufacturer warranty and 7-year workmanship warranty. Enjoy the durability and beauty of Lifeproof Dusk Cherry waterproof luxury vinyl plank flooring throughout, paired with energy-efficient JELD-WEN W-5500 windows with SunResist HeatSave technology. The gourmet kitchen is equipped with premium LG stainless steel appliances, quartz countertops, tile backsplash, and high-quality cabinetry with dovetail wood drawers and soft-close finishes. Additional features include recessed LED lighting, fans with remote controls, new energy-efficient insulation, a tankless EcoSmart water heater, and a 4-zone mini-split AC system for customizable comfort. Outdoors, you’ll find fresh exterior paint, a new driveway, updated landscaping, and a mature starfruit tree that produces twice a year. This home combines high-end finishes with practical upgrades, and right in the heart of Thornton Park with easy access to everything you love about DTO from the Farmer's markets and events around Lake Eola to theatre at Dr. Phillips center of performing arts and beyond.
Listing Information
Property Type: Residential, Single Family Residence
Status: Active
Bedrooms: 2
Bathrooms: 1
Lot Size: 0.15 Acres
Square Feet: 1,071 sq ft
Year Built: 1940
Stories: 1 Story
Construction: Stucco
Construction Display: New Construction
Subdivision: Eola Rose Annex
Foundation: Slab
County: Orange
Construction Status: New Construction
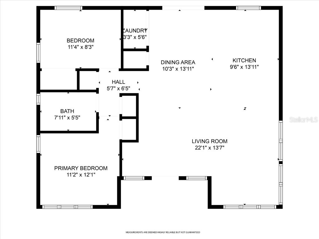
Room Information
Main Floor
Kitchen: 13x10
Living Room: 14x22
Bathroom 1: 6x8
Primary Bedroom: 12x11
Bathrooms
Full Baths: 1
Additonal Room Information
Laundry: In Kitchen, Inside
Interior Features
Appliances: Electric Water Heater, Built-In Oven, Dishwasher, Disposal, Microwave, Range, Refrigerator
Flooring: Luxury Vinyl
Additional Interior Features: Main Level Primary, Kitchen/Family Room Combo, Open Floorplan, Stone Counters, Ceiling Fan(s), Cathedral Ceiling(s), High Ceilings, Vaulted Ceiling(s), Eat-In Kitchen
Utilities
Sewer: Public Sewer
Other Utilities: Cable Available,Electricity Connected,High Speed Internet Available,Municipal Utilities,Water Connected,Water Not Available
Cooling: Ceiling Fan(s), Ductless
Heating: Electric
Exterior / Lot Features
Roof: Shingle
Additional Exterior/Lot Features: Covered, Front Porch, Landscaped
Community Features
Community Features: Sidewalks, Street Lights
Driving Directions
Mills south from Robertson to left on Washington to home on left.
Financial Considerations
Terms: Cash,Conventional,FHA
Tax/Property ID: 25-22-29-2516-00-120
Tax Amount: 5120.55
Tax Year: 2024
A broker reciprocity listing courtesy: KELLER WILLIAMS REALTY AT THE PARKS
Based on information provided by Stellar MLS as distributed by the MLS GRID. Information from the Internet Data Exchange is provided exclusively for consumers’ personal, non-commercial use, and such information may not be used for any purpose other than to identify prospective properties consumers may be interested in purchasing. This data is deemed reliable but is not guaranteed to be accurate by Edina Realty, Inc., or by the MLS. Edina Realty, Inc., is not a multiple listing service (MLS), nor does it offer MLS access.
Copyright 2025 Stellar MLS as distributed by the MLS GRID. All Rights Reserved.
Payment Calculator
Interest rate and annual percentage rate (APR) are based on current market conditions, are for informational purposes only, are subject to change without notice and may be subject to pricing add-ons related to property type, loan amount, loan-to-value, credit score and other variables. Estimated closing costs used in the APR calculation are assumed to be paid by the borrower at closing. If the closing costs are financed, the loan, APR and payment amounts will be higher. If the down payment is less than 20%, mortgage insurance may be required and could increase the monthly payment and APR. Contact us for details. Additional loan programs may be available. Accuracy is not guaranteed, and all products may not be available in all borrower's geographical areas and are based on their individual situation. This is not a credit decision or a commitment to lend.
Sales History & Tax Summary for 1209 E Washington Street
Sales History
| Date | Price | Change |
|---|---|---|
| Currently not available. | ||
Tax Summary
| Tax Year | Estimated Market Value | Total Tax |
|---|---|---|
| Currently not available. | ||
Data powered by ATTOM Data Solutions. Copyright© 2025. Information deemed reliable but not guaranteed.
Schools
Schools nearby 1209 E Washington Street
| Schools in attendance boundaries | Grades | Distance | Rating |
|---|---|---|---|
| Loading... | |||
| Schools nearby | Grades | Distance | Rating |
|---|---|---|---|
| Loading... | |||
Data powered by ATTOM Data Solutions. Copyright© 2025. Information deemed reliable but not guaranteed.
The schools shown represent both the assigned schools and schools by distance based on local school and district attendance boundaries. Attendance boundaries change based on various factors and proximity does not guarantee enrollment eligibility. Please consult your real estate agent and/or the school district to confirm the schools this property is zoned to attend. Information is deemed reliable but not guaranteed.
SchoolDigger ® Rating
The SchoolDigger rating system is a 1-5 scale with 5 as the highest rating. SchoolDigger ranks schools based on test scores supplied by each state's Department of Education. They calculate an average standard score by normalizing and averaging each school's test scores across all tests and grades.
Coming soon properties will soon be on the market, but are not yet available for showings.