12130 Sara Street Brooksville, FL 34613
For Sale MLS# TB8411129
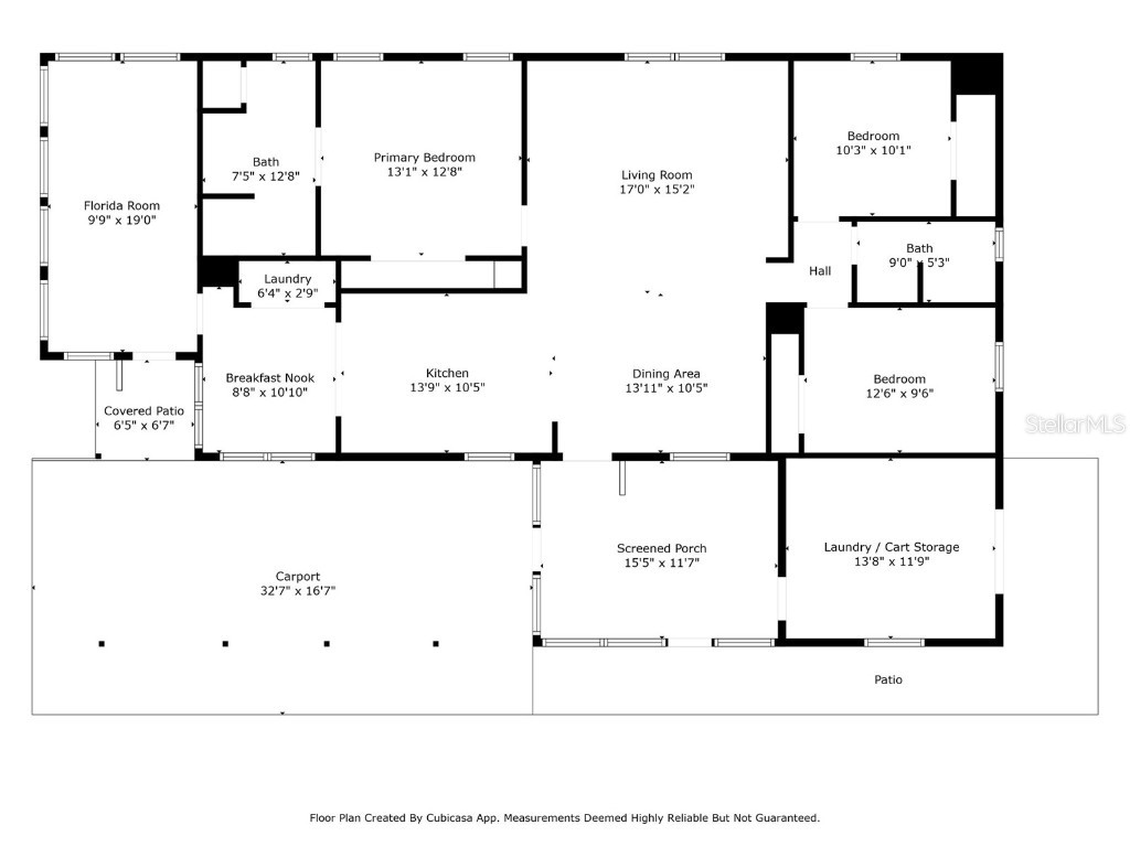
3 beds 2 baths 1,404 sq ft Single Family
Details for 12130 Sara Street
MLS# TB8411129
Description for 12130 Sara Street, Brooksville, FL, 34613
Step into this FULL RENOVATED 3-BEDROOM, 2-bath home featuring brand new LVP hybrid flooring and trim throughout, ALL NEW DESIGNER FIXTURES, LED LIGHTING, and fresh interior paint. The expansive kitchen is a chef's dream, offering an abundance of ALL WOOD/SOFT CLOSE cabinets, ample counter space, a pantry, and BRAND NEW APPLIANCES. Cathedral ceilings enhance the bright, open feel of the home, while the nearly 200 SQUARE FOOT GLASS ENCLOSED & TILED FLORIDA ROOM provides the perfect spot to relax or entertain. Tons of curb appeal of a FRESHLY PAINTED EXTERIOR AND DRIVEWAY. Enjoy the convenience of an INSIDE LAUNDRY. GOLF CART STORAGE NEW WATER HEATER 2025 RE-PLUMBED 2025 (NO GRAY PIPE) ROOF INSTALLED 2015 HVAC INSTALLED 2016 Ask your agent about the SELLER-OFFERED 2-YEAR HOME WARRANTY. Located in the vibrant High Point Golf Community, this home offers resort-style living in a friendly, active 55+ neighborhood. The High Point Community offers tons of amenities such as Golf, tennis, pickleball, heated pool, social events and so much more. High Point is located close to shopping, restaurants, entertainment, and medical facilities. Low HOA fees and you OWN YOUR OWN LAND.Don't miss this move-in-ready opportunity!
Listing Information
Property Type: Residential, Manufactured Home
Status: Active
Bedrooms: 3
Bathrooms: 2
Lot Size: 0.14 Acres
Square Feet: 1,404 sq ft
Year Built: 1993
Stories: 1 Story
Construction: Vinyl Siding
Construction Display: New Construction
Subdivision: High Point Mh Sub
Foundation: Pillar/Post/Pier
County: Hernando
Construction Status: New Construction
School Information
Elementary: Pine Grove Elementary School
Middle: West Hernando Middle School
High: Central High School
Room Information
Main Floor
Primary Bedroom: 13x13
Dining Room: 10x14
Living Room: 15x17
Kitchen: 14x10
Bathrooms
Full Baths: 2
Additonal Room Information
Laundry: Inside
Interior Features
Appliances: Range Hood, Dishwasher, Dryer, Microwave, Range, Refrigerator, Washer, Ice Maker
Flooring: Laminate,Luxury Vinyl
Basement: Crawl Space
Doors/Windows: Skylight(s)
Additional Interior Features: Living/Dining Room, High Ceilings, Skylights, Built-in Features, Cathedral Ceiling(s), Open Floorplan, Wood Cabinets
Utilities
Water: Public
Sewer: Public Sewer
Other Utilities: Electricity Connected
Cooling: Central Air
Heating: Electric, Central
Exterior / Lot Features
Roof: Shingle
Pool: Community, Association
Additional Exterior/Lot Features: Lighting, Enclosed, Screened, Front Porch, Side Porch
Community Features
Community Features: Pool, Tennis Court(s), Clubhouse, Golf, Golf Carts OK
Association Amenities: Recreation Facilities, Tennis Court(s), Pool, Clubhouse, Shuffleboard Court, Pickleball
HOA Dues Include: Pool(s), Recreation Facilities
Homeowners Association: Yes
HOA Dues: $44 / Monthly
Driving Directions
From Cortez Blvd/FL 50, enter the High Point Community. Follow Highpoint Blvd to the left to right on Diplomacy Ave, to left on Little Tee Lane, to right on Sara Street, home is on the right.
Financial Considerations
Terms: Cash,Conventional,FHA,VA Loan
Tax/Property ID: R29-222-18-2550-0520-0160
Tax Amount: 2983
Tax Year: 2024
A broker reciprocity listing courtesy: THE ATLAS GROUP
Based on information provided by Stellar MLS as distributed by the MLS GRID. Information from the Internet Data Exchange is provided exclusively for consumers’ personal, non-commercial use, and such information may not be used for any purpose other than to identify prospective properties consumers may be interested in purchasing. This data is deemed reliable but is not guaranteed to be accurate by Edina Realty, Inc., or by the MLS. Edina Realty, Inc., is not a multiple listing service (MLS), nor does it offer MLS access.
Copyright 2025 Stellar MLS as distributed by the MLS GRID. All Rights Reserved.
Payment Calculator
Interest rate and annual percentage rate (APR) are based on current market conditions, are for informational purposes only, are subject to change without notice and may be subject to pricing add-ons related to property type, loan amount, loan-to-value, credit score and other variables. Estimated closing costs used in the APR calculation are assumed to be paid by the borrower at closing. If the closing costs are financed, the loan, APR and payment amounts will be higher. If the down payment is less than 20%, mortgage insurance may be required and could increase the monthly payment and APR. Contact us for details. Additional loan programs may be available. Accuracy is not guaranteed, and all products may not be available in all borrower's geographical areas and are based on their individual situation. This is not a credit decision or a commitment to lend.
Sales History & Tax Summary for 12130 Sara Street
Sales History
| Date | Price | Change |
|---|---|---|
| Currently not available. | ||
Tax Summary
| Tax Year | Estimated Market Value | Total Tax |
|---|---|---|
| Currently not available. | ||
Data powered by ATTOM Data Solutions. Copyright© 2025. Information deemed reliable but not guaranteed.
Schools
Schools nearby 12130 Sara Street
| Schools in attendance boundaries | Grades | Distance | Rating |
|---|---|---|---|
| Loading... | |||
| Schools nearby | Grades | Distance | Rating |
|---|---|---|---|
| Loading... | |||
Data powered by ATTOM Data Solutions. Copyright© 2025. Information deemed reliable but not guaranteed.
The schools shown represent both the assigned schools and schools by distance based on local school and district attendance boundaries. Attendance boundaries change based on various factors and proximity does not guarantee enrollment eligibility. Please consult your real estate agent and/or the school district to confirm the schools this property is zoned to attend. Information is deemed reliable but not guaranteed.
SchoolDigger ® Rating
The SchoolDigger rating system is a 1-5 scale with 5 as the highest rating. SchoolDigger ranks schools based on test scores supplied by each state's Department of Education. They calculate an average standard score by normalizing and averaging each school's test scores across all tests and grades.
Coming soon properties will soon be on the market, but are not yet available for showings.