$325,990
Off-Market Date: 01/29/20261220 12th Avenue SE Ruskin, FL 33570
Pending MLS# TB8463694
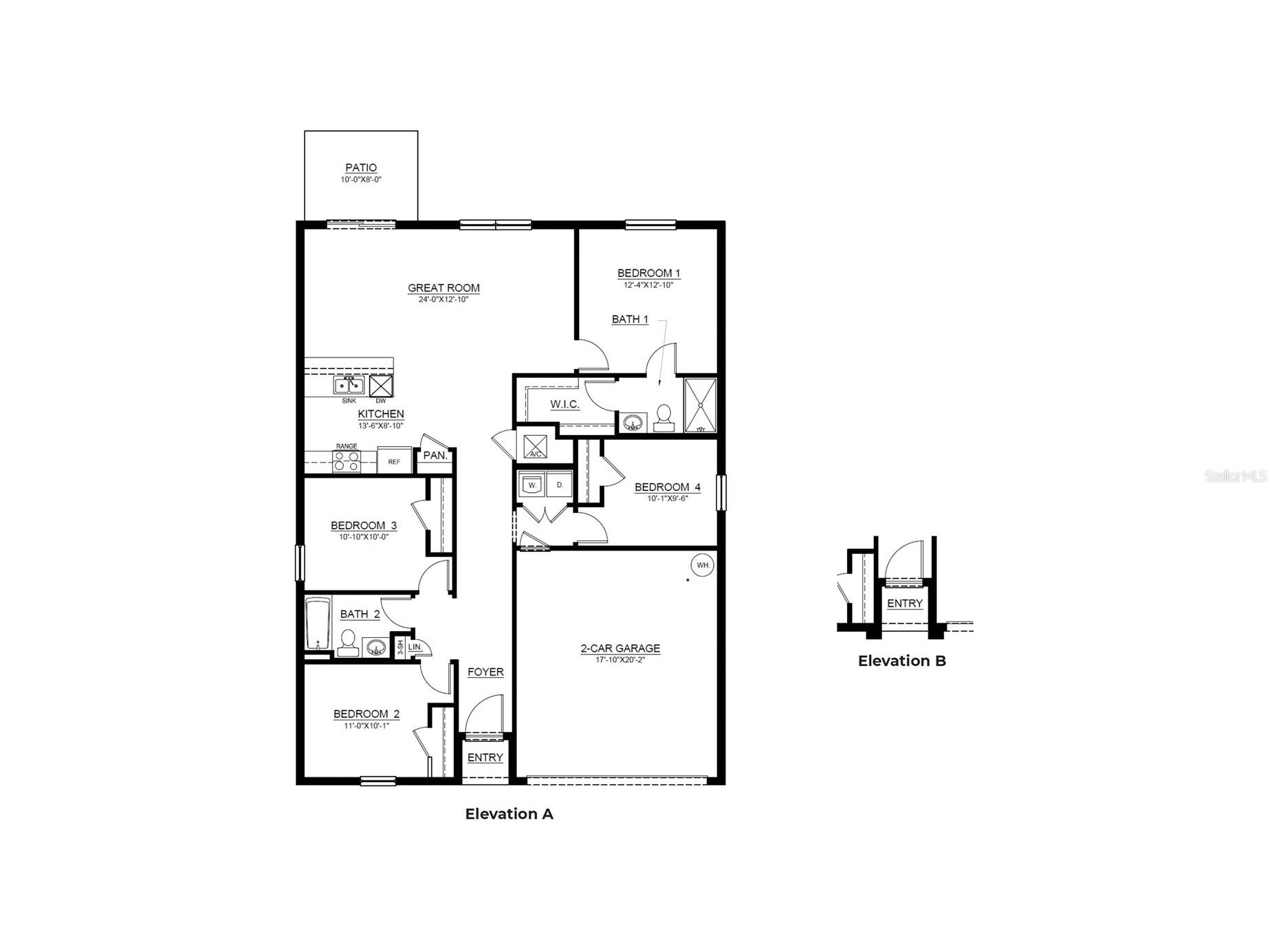
4 beds 2 baths 1,498 sq ft Single Family
Details for 1220 12th Avenue SE
MLS# TB8463694
Description for 1220 12th Avenue SE, Ruskin, FL, 33570
One or more photo(s) has been virtually staged. Under Construction. The builder is offering buyers up to $25,000 towards closing costs with the use of a preferred lender and title company. Nicely tucked away in the quaint town of Ruskin, you will find Brookside. Ruskin is home to the Tomato festival and is also known for its rich agriculture. This location will give you the small-town feel, while being centrally located between Tampa and Sarasota and minutes to I-75, allows you easy access to many local attractions and gulf coast beaches. The community, consisting of 243 homesites, includes one and two-story, single-family, all concrete-constructed homes. Each home comes equipped with Home is Connected, America’s Smart home package, an energy-efficient appliances, quartz countertops in the kitchen, and a blinds package. Residents will enjoy amenities such as a community pool, clubhouse, half basketball court, tot lot, and dog park. Other inventory options may be available in this community. Please reach out for list of availability Pictures, photographs, colors, features, and sizes are for illustration purposes only and will vary from the homes as built. Home and community information, including pricing, included features, terms, availability, and amenities, are subject to change and prior sale at any time without notice or obligation. Materials may vary based on availability. D.R. Horton Reserves all Rights.
Listing Information
Property Type: Residential, Single Family Residence
Status: Pending
Bedrooms: 4
Bathrooms: 2
Lot Size: 0.16 Acres
Square Feet: 1,498 sq ft
Year Built: 2026
Garage: Yes
Stories: 1 Story
Construction: Block,Stucco
Construction Display: New Construction
Subdivision: Brookside
Builder: D.R. Horton
Foundation: Slab
County: Hillsborough
Construction Status: Under Construction
School Information
Elementary: Ruskin-Hb
Middle: Shields-Hb
High: Lennard-Hb
Room Information
Main Floor
Kitchen: 8x13
Primary Bedroom: 12x12
Great Room: 12x24
Bathrooms
Full Baths: 2
Additonal Room Information
Laundry: Laundry Room
Interior Features
Appliances: Dishwasher, Dryer, Microwave, Range, Refrigerator, Washer
Flooring: Carpet,Luxury Vinyl
Doors/Windows: Low-Emissivity Windows, Blinds, Double Pane Windows
Additional Interior Features: Open Floorplan
Utilities
Water: Public
Sewer: Public Sewer
Other Utilities: Underground Utilities
Cooling: Central Air
Heating: Central, Heat Pump
Exterior / Lot Features
Attached Garage: Attached Garage
Garage Spaces: 2
Roof: Shingle
Pool: Community
Community Features
Community Features: Pool, Clubhouse
Association Amenities: Basketball Court
Homeowners Association: Yes
HOA Dues: $8 / Monthly
Driving Directions
From I-75, take exit 240B for FL-674 W/College Ave toward Ruskin. Turn left onto 15th Street SE. Turn right onto 14th Avenue SE. Turn left at the 1st cross street onto 12th St SE, left on Club Bayou and left onto Sourwood DR. the Brookside Sales Information Center will be immediately on your left.
Financial Considerations
Tax/Property ID: U 09 32 19 D52 000000 00120.0
Tax Year: 2025
A broker reciprocity listing courtesy: D R HORTON REALTY OF TAMPA LLC
Based on information provided by Stellar MLS as distributed by the MLS GRID. Information from the Internet Data Exchange is provided exclusively for consumers’ personal, non-commercial use, and such information may not be used for any purpose other than to identify prospective properties consumers may be interested in purchasing. This data is deemed reliable but is not guaranteed to be accurate by Edina Realty, Inc., or by the MLS. Edina Realty, Inc., is not a multiple listing service (MLS), nor does it offer MLS access.
Copyright 2026 Stellar MLS as distributed by the MLS GRID. All Rights Reserved.
Sales History & Tax Summary for 1220 12th Avenue SE
Sales History
| Date | Price | |
|---|---|---|
| Currently not available. | ||
Tax Summary
| Tax Year | Estimated Market Value | Total Tax |
|---|---|---|
| Currently not available. | ||
Data powered by ATTOM Data Solutions. Copyright© 2026. Information deemed reliable but not guaranteed.
Schools
Schools nearby 1220 12th Avenue SE
| Schools in attendance boundaries | Grades | Distance | Rating |
|---|---|---|---|
| Loading... | |||
| Schools nearby | Grades | Distance | Rating |
|---|---|---|---|
| Loading... | |||
Data powered by ATTOM Data Solutions. Copyright© 2026. Information deemed reliable but not guaranteed.
The schools shown represent both the assigned schools and schools by distance based on local school and district attendance boundaries. Attendance boundaries change based on various factors and proximity does not guarantee enrollment eligibility. Please consult your real estate agent and/or the school district to confirm the schools this property is zoned to attend. Information is deemed reliable but not guaranteed.
SchoolDigger ® Rating
The SchoolDigger rating system is a 1-5 scale with 5 as the highest rating. SchoolDigger ranks schools based on test scores supplied by each state's Department of Education. They calculate an average standard score by normalizing and averaging each school's test scores across all tests and grades.
Coming soon properties will soon be on the market, but are not yet available for showings.