12210 State Street Tampa, FL 33635
Pending MLS# TB8444961
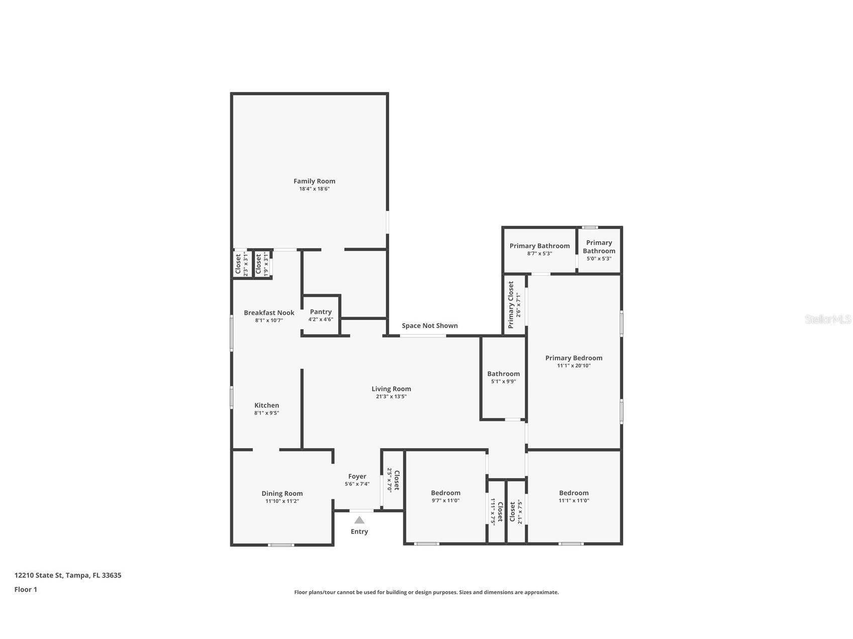
3 beds 2 baths 1,934 sq ft Single Family
Details for 12210 State Street
MLS# TB8444961
Description for 12210 State Street, Tampa, FL, 33635
Under contract-accepting backup offers. One or more photo(s) has been virtually staged. *PRICE REDUCED* Beautifully Renovated One-Level Home on 2 Acres Near Tampa Bay. This move-in ready 3-bedroom, 2-bath home offers the perfect blend of comfort, space, and opportunity. The property features a spacious layout on a private 2-acre lot. Drive through the gate up the sprawling driveway or even to your over sized detached 2 car garage. The house offers New appliances, New HVAC, New cabinets (soft close), granite counters, porcelain floors throughout the entire house and a wood burning fire place. The garage was converted into a large family room with an entrance to your deck and patio area. Lots of room for gardening and homesteading as the property is fully fenced. Two fenced in areas for your animals, including a large air conditioned dog house. This home has a brand new septic system and is ZONED AGRICULTURAL. -Large Pole Barn and shed -Separate Detached 2 car garage with electric and water. -Second pole barn area off the garage -Above ground pool with brand new pump available for the new owner to have installed. -Exfiltration system underground It even has a zipline and tower that convey with the sale. Lot's of outdoor fun can be had on or off the property. The home is located around the corner from Upper Tampa Bay county park with beautiful trails, a playground, picnic shelters and canoe rentals. The end of State Street is a small boat and canoe launch to the Tampa Bay Waterways and Surrounded by luxury homes.
Listing Information
Property Type: Residential, Single Family Residence
Status: Pending
Bedrooms: 3
Bathrooms: 2
Lot Size: 1.94 Acres
Square Feet: 1,934 sq ft
Year Built: 1981
Garage: Yes
Stories: 1 Story
Construction: Stucco
Subdivision: Oldsmar Farm 4
Foundation: Block,Slab
County: Hillsborough
Room Information
Main Floor
Dining Room:
Great Room:
Bathroom 2:
Bedroom 1:
Living Room:
Primary Bedroom:
Kitchen:
Bathrooms
Full Baths: 2
Additonal Room Information
Laundry: In Garage
Interior Features
Appliances: Electric Water Heater, Dishwasher, Microwave, Range, Refrigerator
Flooring: Porcelain Tile
Fireplaces: Living Room
Additional Interior Features: Ceiling Fan(s), Separate/Formal Dining Room
Utilities
Water: Public
Sewer: Septic Tank
Other Utilities: Electricity Connected,Water Connected
Cooling: Ceiling Fan(s), Central Air
Heating: Central
Exterior / Lot Features
Garage Spaces: 2
Roof: Shingle
Pool: Above Ground
Lot Dimensions: 245x345
Additional Exterior/Lot Features: Courtyard, Garden, Patio, Flat, Level, Private, Cleared, Pasture, Oversized Lot, Outside City Limits
Out Buildings: Shed(s), Kennel/Dog Run
Driving Directions
FL 580/Hillsborough Ave to Double Branch Rd, left on State Street
Financial Considerations
Terms: Cash,Conventional,FHA,VA Loan
Tax/Property ID: U-30-28-17-0B5-000000-00010.0
Tax Amount: 3826.99
Tax Year: 2024
A broker reciprocity listing courtesy: KELLER WILLIAMS REALTY- PALM H
Based on information provided by Stellar MLS as distributed by the MLS GRID. Information from the Internet Data Exchange is provided exclusively for consumers’ personal, non-commercial use, and such information may not be used for any purpose other than to identify prospective properties consumers may be interested in purchasing. This data is deemed reliable but is not guaranteed to be accurate by Edina Realty, Inc., or by the MLS. Edina Realty, Inc., is not a multiple listing service (MLS), nor does it offer MLS access.
Copyright 2026 Stellar MLS as distributed by the MLS GRID. All Rights Reserved.
Sales History & Tax Summary for 12210 State Street
Sales History
| Date | Price | |
|---|---|---|
| Currently not available. | ||
Tax Summary
| Tax Year | Estimated Market Value | Total Tax |
|---|---|---|
| Currently not available. | ||
Data powered by ATTOM Data Solutions. Copyright© 2026. Information deemed reliable but not guaranteed.
Schools
Schools nearby 12210 State Street
| Schools in attendance boundaries | Grades | Distance | Rating |
|---|---|---|---|
| Loading... | |||
| Schools nearby | Grades | Distance | Rating |
|---|---|---|---|
| Loading... | |||
Data powered by ATTOM Data Solutions. Copyright© 2026. Information deemed reliable but not guaranteed.
The schools shown represent both the assigned schools and schools by distance based on local school and district attendance boundaries. Attendance boundaries change based on various factors and proximity does not guarantee enrollment eligibility. Please consult your real estate agent and/or the school district to confirm the schools this property is zoned to attend. Information is deemed reliable but not guaranteed.
SchoolDigger ® Rating
The SchoolDigger rating system is a 1-5 scale with 5 as the highest rating. SchoolDigger ranks schools based on test scores supplied by each state's Department of Education. They calculate an average standard score by normalizing and averaging each school's test scores across all tests and grades.
Coming soon properties will soon be on the market, but are not yet available for showings.