1222 Rowell Street Auburndale, FL 33823
For Sale MLS# TB8402626
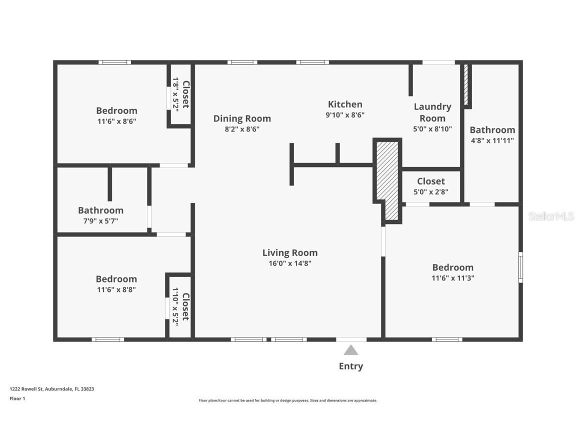
3 beds 2 baths 1,296 sq ft Single Family
Details for 1222 Rowell Street
MLS# TB8402626
Description for 1222 Rowell Street, Auburndale, FL, 33823
One or more photo(s) has been virtually staged. Short Sale. ***SHORT SALE*** One or more photo(s) has been virtually staged. AS IS and FHA 203k loan or cash only! (There are some dips in the floors) Motivated Sellers!!! Come see this well-maintained 3-bedroom, 2-bathroom manufactured home in a peaceful, county-like setting in Auburndale, FL. Conveniently located near Highway 92 with quick access to both Lakeland and Winter Haven, this property offers the perfect blend of space, comfort, and freedom—with no HOA and no lot rent. The open split floor plan features vinyl flooring throughout, and comes complete with all appliances, a water filtration system, and a recently serviced septic system (cleaned just 6 months ago). The roof, privacy fencing, and storage shed are all less than 5 years old, and the A/C was installed in 2019, giving you peace of mind for years to come. Sitting on a spacious lot, there’s plenty of room to park your RV, boat, trailer, and multiple vehicles. Whether you’re looking for your first home, a place to downsize, or just want a little more space without all the restrictions, this property checks all the boxes. The sellers are motivated and ready to move on to their dream destination—don’t miss your chance to make this home yours before it’s gone! (some areas of the floor dip)
Listing Information
Property Type: Residential, Manufactured Home
Status: Active
Bedrooms: 3
Bathrooms: 2
Lot Size: 0.18 Acres
Square Feet: 1,296 sq ft
Year Built: 2001
Stories: 1 Story
Construction: Vinyl Siding
Subdivision: Kossuthville Sub
Foundation: Crawlspace
County: Polk
Room Information
Main Floor
Primary Bedroom: 13x12
Living Room: 14x12
Kitchen: 12x10
Bathrooms
Full Baths: 2
Additonal Room Information
Laundry: Inside
Interior Features
Appliances: Electric Water Heater, Dishwasher, Dryer, Microwave, Range, Refrigerator, Washer, Water Purifier
Flooring: Vinyl
Basement: Crawl Space
Additional Interior Features: Eat-In Kitchen, Split Bedrooms, Ceiling Fan(s), Main Level Primary, Open Floorplan, Solid Surface Counters
Utilities
Water: Well
Sewer: Septic Tank
Other Utilities: Cable Connected,Electricity Connected,Municipal Utilities
Cooling: Ceiling Fan(s), Central Air
Heating: Central
Exterior / Lot Features
Roof: Shingle
Lot Dimensions: 99x78
Additional Exterior/Lot Features: Storage
Driving Directions
DRIVING EAST ON AUBURNDALE HWY, TURN RIGHT ONTO PAYNE ST., TURN LEFT ONTO BLUE JAY AVE., TURN RIGHT ONTO ROWELL ST, TO ADDRESS
Financial Considerations
Terms: Cash,VA Loan
Tax/Property ID: 25-28-18-347000-003108
Tax Amount: 2109.31
Tax Year: 2024
A broker reciprocity listing courtesy: RE/MAX COLLECTIVE
Based on information provided by Stellar MLS as distributed by the MLS GRID. Information from the Internet Data Exchange is provided exclusively for consumers’ personal, non-commercial use, and such information may not be used for any purpose other than to identify prospective properties consumers may be interested in purchasing. This data is deemed reliable but is not guaranteed to be accurate by Edina Realty, Inc., or by the MLS. Edina Realty, Inc., is not a multiple listing service (MLS), nor does it offer MLS access.
Copyright 2025 Stellar MLS as distributed by the MLS GRID. All Rights Reserved.
Payment Calculator
Interest rate and annual percentage rate (APR) are based on current market conditions, are for informational purposes only, are subject to change without notice and may be subject to pricing add-ons related to property type, loan amount, loan-to-value, credit score and other variables. Estimated closing costs used in the APR calculation are assumed to be paid by the borrower at closing. If the closing costs are financed, the loan, APR and payment amounts will be higher. If the down payment is less than 20%, mortgage insurance may be required and could increase the monthly payment and APR. Contact us for details. Additional loan programs may be available. Accuracy is not guaranteed, and all products may not be available in all borrower's geographical areas and are based on their individual situation. This is not a credit decision or a commitment to lend.
Sales History & Tax Summary for 1222 Rowell Street
Sales History
| Date | Price | Change |
|---|---|---|
| Currently not available. | ||
Tax Summary
| Tax Year | Estimated Market Value | Total Tax |
|---|---|---|
| Currently not available. | ||
Data powered by ATTOM Data Solutions. Copyright© 2025. Information deemed reliable but not guaranteed.
Schools
Schools nearby 1222 Rowell Street
| Schools in attendance boundaries | Grades | Distance | Rating |
|---|---|---|---|
| Loading... | |||
| Schools nearby | Grades | Distance | Rating |
|---|---|---|---|
| Loading... | |||
Data powered by ATTOM Data Solutions. Copyright© 2025. Information deemed reliable but not guaranteed.
The schools shown represent both the assigned schools and schools by distance based on local school and district attendance boundaries. Attendance boundaries change based on various factors and proximity does not guarantee enrollment eligibility. Please consult your real estate agent and/or the school district to confirm the schools this property is zoned to attend. Information is deemed reliable but not guaranteed.
SchoolDigger ® Rating
The SchoolDigger rating system is a 1-5 scale with 5 as the highest rating. SchoolDigger ranks schools based on test scores supplied by each state's Department of Education. They calculate an average standard score by normalizing and averaging each school's test scores across all tests and grades.
Coming soon properties will soon be on the market, but are not yet available for showings.