12234 Cider Mill Lane Hudson, FL 34667
For Sale MLS# TB8444696
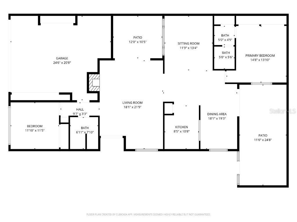
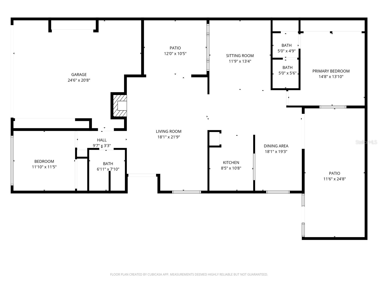
2 beds 2 baths 1,452 sq ft Single Family
Details for 12234 Cider Mill Lane
MLS# TB8444696
Description for 12234 Cider Mill Lane, Hudson, FL, 34667
Welcome to this charming home tucked away on a cul-de-sac in the desirable Beacon Woods Village community of Hudson, where sidewalks and nearby green spaces offer convenient options for outdoor enjoyment. This 2 bedroom, 2 bathroom residence offers a comfortable layout and a peaceful setting with thoughtful updates throughout. Inside, you’ll find a bright living and dining area that opens to a functional kitchen with stainless steel appliances, a reverse osmosis drinking water system and a serve-over window into the dining room. The home has been well maintained with a new roof in 2022, a new AC system in 2021, and a whole home water softener system. The primary suite features its own private bath, while the second bedroom provides flexibility for guests, hobbies, or a home office. A fully enclosed patio at the back of the home provides a great space to relax or entertain. Beacon Woods Village residents enjoy access to a community pool, clubhouse, tennis courts, and golf course. Located just minutes from Hudson Beach Park, Werner Boyce Salt Springs State Park, and SunWest Park, this home offers the best of coastal Florida living. Schedule your showing today and experience all that Beacon Woods Village has to offer.
Listing Information
Property Type: Residential, Single Family Residence
Status: Active
Bedrooms: 2
Bathrooms: 2
Lot Size: 0.08 Acres
Square Feet: 1,452 sq ft
Year Built: 1979
Garage: Yes
Stories: 1 Story
Construction: Block,Concrete,Stucco
Subdivision: Beacon Woods Cider Mill
Foundation: Slab
County: Pasco
Room Information
Main Floor
Porch: 10x13
Living Room: 22x18
Primary Bathroom: 6x10
Primary Bedroom: 14x15
Porch: 25x12
Dining Room: 19x18
Family Room: 13x12
Bedroom 2: 11x12
Primary Bedroom:
Kitchen: 11x8
Bathrooms
Full Baths: 2
Additonal Room Information
Laundry: In Garage, None
Interior Features
Appliances: Dishwasher, Dryer, Range, Refrigerator, Washer, Microwave, Water Softener
Flooring: Tile,Wood
Fireplaces: Family Room, Wood Burning
Additional Interior Features: Main Level Primary, Ceiling Fan(s)
Utilities
Water: Public
Sewer: Public Sewer
Other Utilities: Cable Available,Electricity Connected,Municipal Utilities,Phone Available,Sewer Connected,Water Connected
Cooling: Ceiling Fan(s), Central Air
Heating: Central
Exterior / Lot Features
Attached Garage: Attached Garage
Garage Spaces: 2
Roof: Shingle
Pool: Association
Additional Exterior/Lot Features: French Patio Doors, Lighting, Covered, Patio, Landscaped, Cul-de-Sac
Community Features
Association Amenities: Recreation Facilities, Pool, Tennis Court(s), Clubhouse, Fitness Center
HOA Dues Include: Recreation Facilities
Homeowners Association: Yes
HOA Dues: $85 / Quarterly
Driving Directions
From US Highway 19 N, turn east onto Beacon Woods Drive. Continue straight, then turn right onto Clock Tower Parkway. Turn right onto Cider Mill Lane and follow to the end of the cul de sac. Home will be on the right.
Financial Considerations
Terms: Cash,Conventional,FHA,VA Loan
Tax/Property ID: 03-25-16-0910-00000-3630
Tax Amount: 2674
Tax Year: 2025
A broker reciprocity listing courtesy: KELLER WILLIAMS REALTY- PALM H
Based on information provided by Stellar MLS as distributed by the MLS GRID. Information from the Internet Data Exchange is provided exclusively for consumers’ personal, non-commercial use, and such information may not be used for any purpose other than to identify prospective properties consumers may be interested in purchasing. This data is deemed reliable but is not guaranteed to be accurate by Edina Realty, Inc., or by the MLS. Edina Realty, Inc., is not a multiple listing service (MLS), nor does it offer MLS access.
Copyright 2026 Stellar MLS as distributed by the MLS GRID. All Rights Reserved.
Payment Calculator
Interest rate and annual percentage rate (APR) are based on current market conditions, are for informational purposes only, are subject to change without notice and may be subject to pricing add-ons related to property type, loan amount, loan-to-value, credit score and other variables. Estimated closing costs used in the APR calculation are assumed to be paid by the borrower at closing. If the closing costs are financed, the loan, APR and payment amounts will be higher. If the down payment is less than 20%, mortgage insurance may be required and could increase the monthly payment and APR. Contact us for details. Additional loan programs may be available. Accuracy is not guaranteed, and all products may not be available in all borrower's geographical areas and are based on their individual situation. This is not a credit decision or a commitment to lend.
Sales History & Tax Summary for 12234 Cider Mill Lane
Sales History
| Date | Price | |
|---|---|---|
| Currently not available. | ||
Tax Summary
| Tax Year | Estimated Market Value | Total Tax |
|---|---|---|
| Currently not available. | ||
Data powered by ATTOM Data Solutions. Copyright© 2026. Information deemed reliable but not guaranteed.
Schools
Schools nearby 12234 Cider Mill Lane
| Schools in attendance boundaries | Grades | Distance | Rating |
|---|---|---|---|
| Loading... | |||
| Schools nearby | Grades | Distance | Rating |
|---|---|---|---|
| Loading... | |||
Data powered by ATTOM Data Solutions. Copyright© 2026. Information deemed reliable but not guaranteed.
The schools shown represent both the assigned schools and schools by distance based on local school and district attendance boundaries. Attendance boundaries change based on various factors and proximity does not guarantee enrollment eligibility. Please consult your real estate agent and/or the school district to confirm the schools this property is zoned to attend. Information is deemed reliable but not guaranteed.
SchoolDigger ® Rating
The SchoolDigger rating system is a 1-5 scale with 5 as the highest rating. SchoolDigger ranks schools based on test scores supplied by each state's Department of Education. They calculate an average standard score by normalizing and averaging each school's test scores across all tests and grades.
Coming soon properties will soon be on the market, but are not yet available for showings.