1227 Birchcrest Boulevard Port Charlotte, FL 33952
For Sale MLS# C7519682
3 beds 2 baths 1,104 sq ft Single Family
Details for 1227 Birchcrest Boulevard
MLS# C7519682
Description for 1227 Birchcrest Boulevard, Port Charlotte, FL, 33952
Home Warranty Included!! Inviting 3 bedroom, 2 bath home designed for relaxed Florida living. Located in a desirable Non Flood Zone (X) area near Peachland Blvd- you won't need to worry about extra insurances costs! This well-maintained residence features a one-car garage with screened front entry, tile flooring throughout, and a kitchen appointed with stainless steel appliances. Enjoy indoor-outdoor living from the spacious screened lanai overlooking the backyard and above-ground spa—ideal for unwinding or entertaining. Additional upgrades include an 8' x 10' storage shed with electricity, hurricane shutters, and a newer roof installed in 2023. A home warranty has just recently been purchased. Seller is offering to extend the warranty coverage an additional year for the buyer, offering added peace of mind! Centrally located, the home is close to everything - hospitals, restaurants, entertainment, shopping and easy access to both I75 and Hwy 41 (Tamiami Trl). Seller is ready to move-bring all offers!
Listing Information
Property Type: Residential, Single Family Residence
Status: Active
Bedrooms: 3
Bathrooms: 2
Lot Size: 0.25 Acres
Square Feet: 1,104 sq ft
Year Built: 1987
Garage: Yes
Stories: 1 Story
Construction: Stucco,Wood Frame
Subdivision: Port Charlotte Sec 027
Foundation: Slab
County: Charlotte
School Information
Elementary: Neil Armstrong Elementary
Middle: Port Charlotte Middle
High: Port Charlotte High
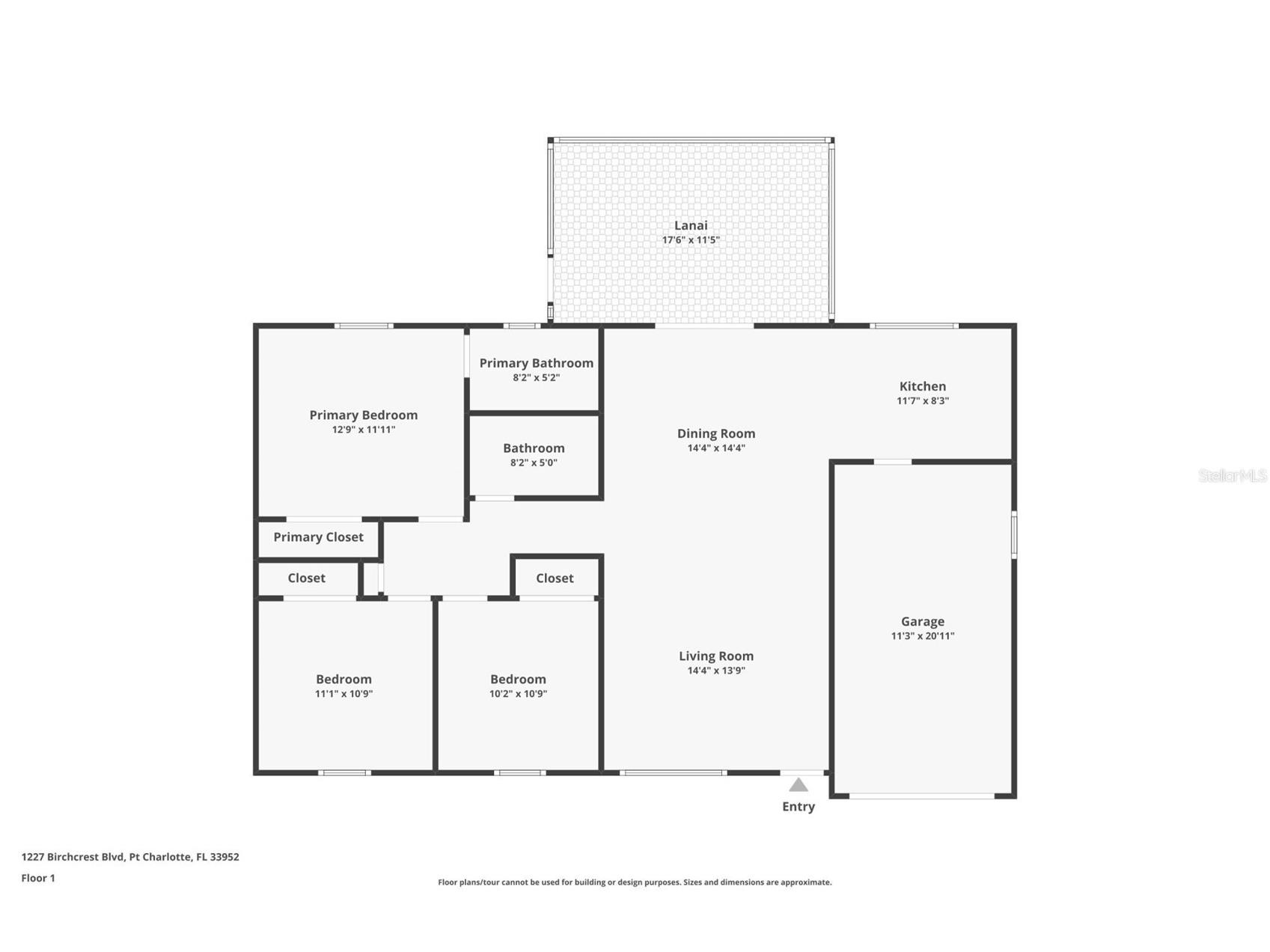
Room Information
Main Floor
Porch: 18x14
Bedroom 3: 10x11
Bedroom 2: 10x11
Dinette: 8x8
Primary Bedroom: 13x14
Kitchen: 9x10
Bathroom 2: 8x5
Bathroom 1: 8x5
Living Room: 14x17
Bathrooms
Full Baths: 2
Additonal Room Information
Laundry: In Garage
Interior Features
Appliances: Electric Water Heater, Cooktop, Range, Refrigerator, Washer, Dishwasher, Dryer
Flooring: Tile
Doors/Windows: Window Treatments, Shutters
Additional Interior Features: Ceiling Fan(s), Main Level Primary, Kitchen/Family Room Combo, Open Floorplan, Solid Surface Counters, Window Treatments, Living/Dining Room
Utilities
Water: Public
Sewer: Septic Tank
Other Utilities: Cable Connected,Electricity Connected,Phone Available
Cooling: Central Air, Ceiling Fan(s)
Heating: Central
Exterior / Lot Features
Attached Garage: Attached Garage
Garage Spaces: 1
Roof: Shingle
Additional Exterior/Lot Features: Storm/Security Shutters, Private Yard, Rear Porch, Front Porch, Enclosed, Screened, Covered, Patio, Porch, Flat, Level
Out Buildings: Shed(s)
Community Features
Security Features: Security System Owned
Driving Directions
From Port Charlotte Town Center Mall area--Take Hwy 41 South Bound to Left on Midway Blvd, Drive for approx 1.5 miles to Left on Birchcrest. Go past first stop sign and home will be just up on your Left. OR From Kings Hwy or I75 Take Kings Hwy to Right on Veterans, Left on Peachland. Drive approx 1 mile to Left on Birchcrest. If you hit the stop light at Harbor you have gone too far.
Financial Considerations
Terms: Cash,Conventional,FHA
Tax/Property ID: 0030618-000000-1
Tax Amount: 2248
Tax Year: 2025
A broker reciprocity listing courtesy: RE/MAX PALM REALTY
Based on information provided by Stellar MLS as distributed by the MLS GRID. Information from the Internet Data Exchange is provided exclusively for consumers’ personal, non-commercial use, and such information may not be used for any purpose other than to identify prospective properties consumers may be interested in purchasing. This data is deemed reliable but is not guaranteed to be accurate by Edina Realty, Inc., or by the MLS. Edina Realty, Inc., is not a multiple listing service (MLS), nor does it offer MLS access.
Copyright 2026 Stellar MLS as distributed by the MLS GRID. All Rights Reserved.
Payment Calculator
Interest rate and annual percentage rate (APR) are based on current market conditions, are for informational purposes only, are subject to change without notice and may be subject to pricing add-ons related to property type, loan amount, loan-to-value, credit score and other variables. Estimated closing costs used in the APR calculation are assumed to be paid by the borrower at closing. If the closing costs are financed, the loan, APR and payment amounts will be higher. If the down payment is less than 20%, mortgage insurance may be required and could increase the monthly payment and APR. Contact us for details. Additional loan programs may be available. Accuracy is not guaranteed, and all products may not be available in all borrower's geographical areas and are based on their individual situation. This is not a credit decision or a commitment to lend.
Sales History & Tax Summary for 1227 Birchcrest Boulevard
Sales History
| Date | Price | |
|---|---|---|
| Currently not available. | ||
Tax Summary
| Tax Year | Estimated Market Value | Total Tax |
|---|---|---|
| Currently not available. | ||
Data powered by ATTOM Data Solutions. Copyright© 2026. Information deemed reliable but not guaranteed.
Schools
Schools nearby 1227 Birchcrest Boulevard
| Schools in attendance boundaries | Grades | Distance | Rating |
|---|---|---|---|
| Loading... | |||
| Schools nearby | Grades | Distance | Rating |
|---|---|---|---|
| Loading... | |||
Data powered by ATTOM Data Solutions. Copyright© 2026. Information deemed reliable but not guaranteed.
The schools shown represent both the assigned schools and schools by distance based on local school and district attendance boundaries. Attendance boundaries change based on various factors and proximity does not guarantee enrollment eligibility. Please consult your real estate agent and/or the school district to confirm the schools this property is zoned to attend. Information is deemed reliable but not guaranteed.
SchoolDigger ® Rating
The SchoolDigger rating system is a 1-5 scale with 5 as the highest rating. SchoolDigger ranks schools based on test scores supplied by each state's Department of Education. They calculate an average standard score by normalizing and averaging each school's test scores across all tests and grades.
Coming soon properties will soon be on the market, but are not yet available for showings.