12326 Blue Pacific Drive Riverview, FL 33579
For Sale MLS# TB8451168
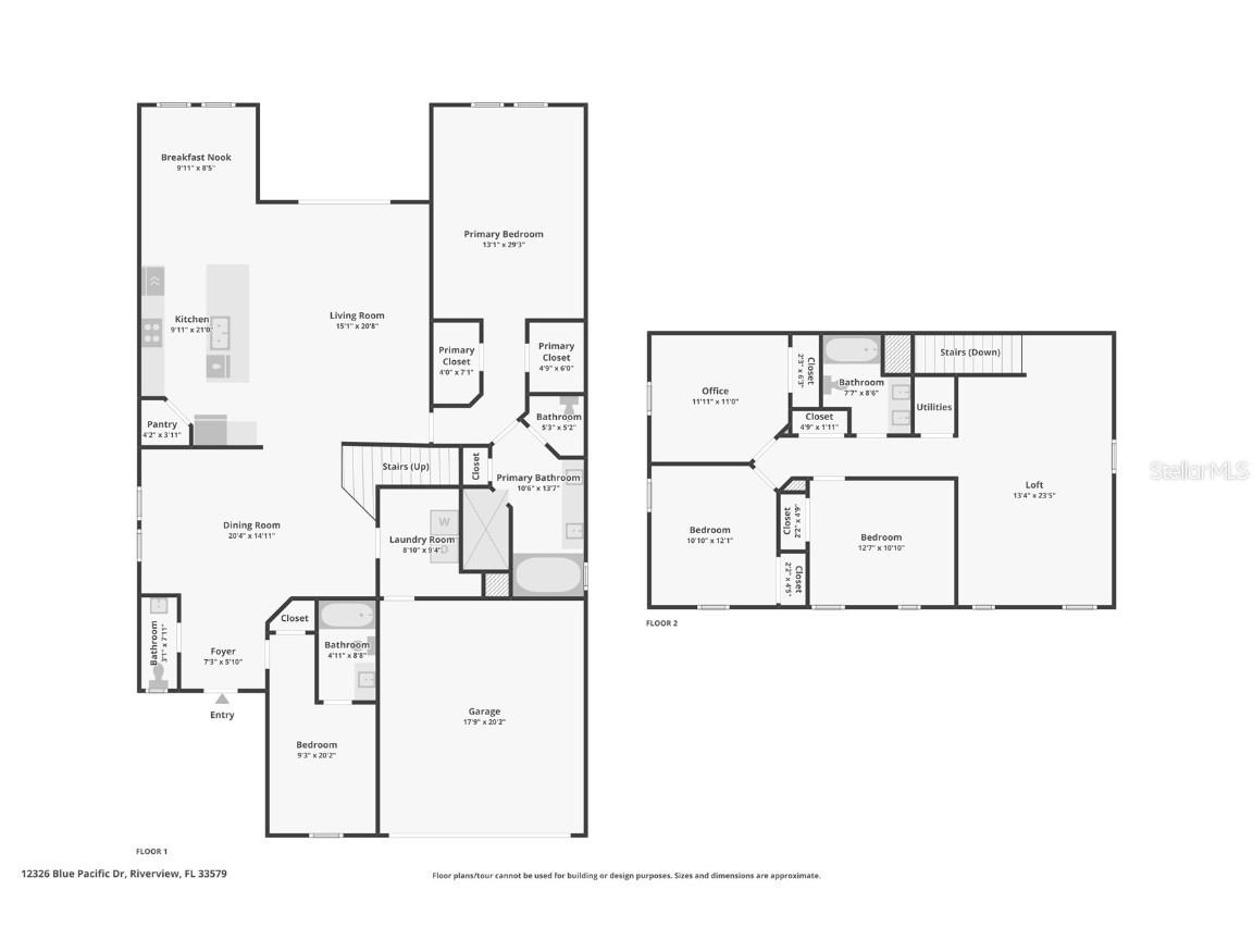
5 beds 4 baths 2,906 sq ft Single Family
Details for 12326 Blue Pacific Drive
MLS# TB8451168
Description for 12326 Blue Pacific Drive, Riverview, FL, 33579
Welcome to this inviting 5-bed, 3½-bath residence in the blossoming community of Lucaya Lake Club — where natural-gas living meets lakeside charm. Inside you’ll find a well-appointed gourmet kitchen featuring 42-inch upgraded cabinets, gleaming granite countertops, a generous island and stainless steel appliances, all flowing seamlessly into the family room and out to the covered lanai—perfect for gathering friends or simply relaxing with loved ones. On the first floor you’ll have the convenience of the primary suite that offers plenty of space for a full bedroom setup, dual walk-in closets and a luxurious bathroom with dual vanities, while upstairs the remaining bedrooms offers plenty of space for for everyone to spread out. Designed for comfort and energy efficiency, the home is built with R-38 insulation, low-E double-pane windows, paid off solar panels, and durable HardieBoard siding on the second floor; smart-home features include WiFi-enabled garage door openers and smart thermostats. Outside the community amenities read like a vacation retreat: a clubhouse, fitness center, splash park, playground and swimming pool, all centered around a scenic 78-acre boat-friendly lake awaiting canoeing, kayaking or paddle-boarding. It’s a place where everyday living feels like something special—come see how this home and this community fit together.
Listing Information
Property Type: Residential, Single Family Residence
Status: Active
Bedrooms: 5
Bathrooms: 4
Lot Size: 0.14 Acres
Square Feet: 2,906 sq ft
Year Built: 2020
Garage: Yes
Stories: 2 Story
Construction: Stucco
Subdivision: Lucaya Lake Club Ph 4c
Foundation: Slab
County: Hillsborough
School Information
Elementary: Collins Prek-8 School
High: Riverview-Hb
Room Information
Main Floor
Primary Bedroom:
Living Room:
Kitchen:
Bathrooms
Full Baths: 3
1/2 Baths: 1
Additonal Room Information
Laundry: Inside, Laundry Room
Interior Features
Appliances: Built-In Oven, Electric Water Heater, Dishwasher, Microwave, Refrigerator
Flooring: Carpet,Luxury Vinyl
Doors/Windows: Blinds
Additional Interior Features: Ceiling Fan(s), Eat-In Kitchen, Walk-In Closet(s), Tray Ceiling(s), Built-in Features, High Ceilings, Living/Dining Room, Open Floorplan, Solid Surface Counters, Stone Counters, Main Level Primary, Crown Molding
Utilities
Water: Public
Sewer: Public Sewer
Other Utilities: Electricity Connected,Natural Gas Available,Municipal Utilities,Sewer Connected,Underground Utilities,Water Connected
Cooling: Central Air, Ceiling Fan(s)
Heating: Electric, Central
Exterior / Lot Features
Attached Garage: Attached Garage
Garage Spaces: 2
Parking Description: driveway, Covered
Roof: Shingle
Pool: Community
Lot View: Pond,Water
Lot Dimensions: 50x120
Additional Exterior/Lot Features: Sprinkler/Irrigation, Covered, Front Porch, Rear Porch, Landscaped
Community Features
Community Features: Pool, Sidewalks, Clubhouse, Street Lights, Gated, Park, Fitness, Recreation Area
Security Features: Gated Community, Secured Garage/Parking
Homeowners Association: Yes
HOA Dues: $110 / Monthly
Driving Directions
I-75 S to Gibsonton Drive/Boyette Rd to HWY 301 S to Rhodine Rd to Summerfield Blvd to Lake Lycaya Drive to Blyee Pacific Drive.
Financial Considerations
Terms: Cash,Conventional,FHA,VA Loan
Tax/Property ID: U-04-31-20-B6V-I00000-00067.0
Tax Amount: 8870.41
Tax Year: 2024
A broker reciprocity listing courtesy: REDFIN CORPORATION
Based on information provided by Stellar MLS as distributed by the MLS GRID. Information from the Internet Data Exchange is provided exclusively for consumers’ personal, non-commercial use, and such information may not be used for any purpose other than to identify prospective properties consumers may be interested in purchasing. This data is deemed reliable but is not guaranteed to be accurate by Edina Realty, Inc., or by the MLS. Edina Realty, Inc., is not a multiple listing service (MLS), nor does it offer MLS access.
Copyright 2026 Stellar MLS as distributed by the MLS GRID. All Rights Reserved.
Payment Calculator
Interest rate and annual percentage rate (APR) are based on current market conditions, are for informational purposes only, are subject to change without notice and may be subject to pricing add-ons related to property type, loan amount, loan-to-value, credit score and other variables. Estimated closing costs used in the APR calculation are assumed to be paid by the borrower at closing. If the closing costs are financed, the loan, APR and payment amounts will be higher. If the down payment is less than 20%, mortgage insurance may be required and could increase the monthly payment and APR. Contact us for details. Additional loan programs may be available. Accuracy is not guaranteed, and all products may not be available in all borrower's geographical areas and are based on their individual situation. This is not a credit decision or a commitment to lend.
Sales History & Tax Summary for 12326 Blue Pacific Drive
Sales History
| Date | Price | |
|---|---|---|
| Currently not available. | ||
Tax Summary
| Tax Year | Estimated Market Value | Total Tax |
|---|---|---|
| Currently not available. | ||
Data powered by ATTOM Data Solutions. Copyright© 2026. Information deemed reliable but not guaranteed.
Schools
Schools nearby 12326 Blue Pacific Drive
| Schools in attendance boundaries | Grades | Distance | Rating |
|---|---|---|---|
| Loading... | |||
| Schools nearby | Grades | Distance | Rating |
|---|---|---|---|
| Loading... | |||
Data powered by ATTOM Data Solutions. Copyright© 2026. Information deemed reliable but not guaranteed.
The schools shown represent both the assigned schools and schools by distance based on local school and district attendance boundaries. Attendance boundaries change based on various factors and proximity does not guarantee enrollment eligibility. Please consult your real estate agent and/or the school district to confirm the schools this property is zoned to attend. Information is deemed reliable but not guaranteed.
SchoolDigger ® Rating
The SchoolDigger rating system is a 1-5 scale with 5 as the highest rating. SchoolDigger ranks schools based on test scores supplied by each state's Department of Education. They calculate an average standard score by normalizing and averaging each school's test scores across all tests and grades.
Coming soon properties will soon be on the market, but are not yet available for showings.