12392 Cumberland Drive Largo, FL 33773
Pending MLS# TB8460268
3 beds 2 baths 1,296 sq ft Single Family
Details for 12392 Cumberland Drive
MLS# TB8460268
Description for 12392 Cumberland Drive, Largo, FL, 33773
Under contract-accepting backup offers. Fully renovated from top to bottom and truly move-in ready. This stunning single-family home features a brand-new kitchen with sleek quartz countertops and stainless steel appliances, beautifully updated bathrooms, and luxury vinyl plank flooring throughout. Major upgrades include a new roof installed in November 2025, fresh interior and exterior paint, new windows in the kitchen and both bathrooms, and two new sliding glass doors that flood the home with natural light and open to the backyard. The HVAC system was replaced in 2022, offering modern comfort and efficiency. No HOA. No CDD. Just a beautifully upgraded home ready to enjoy.
Listing Information
Property Type: Residential, Single Family Residence
Status: Pending
Bedrooms: 3
Bathrooms: 2
Lot Size: 0.15 Acres
Square Feet: 1,296 sq ft
Year Built: 1979
Garage: Yes
Stories: 1 Story
Construction: Block,Stucco
Subdivision: Cumberland Park 1st Add
Foundation: Slab
County: Pinellas
School Information
Elementary: Walsingham Elementary-Pn
Middle: Osceola Middle-Pn
High: Pinellas Park High-Pn
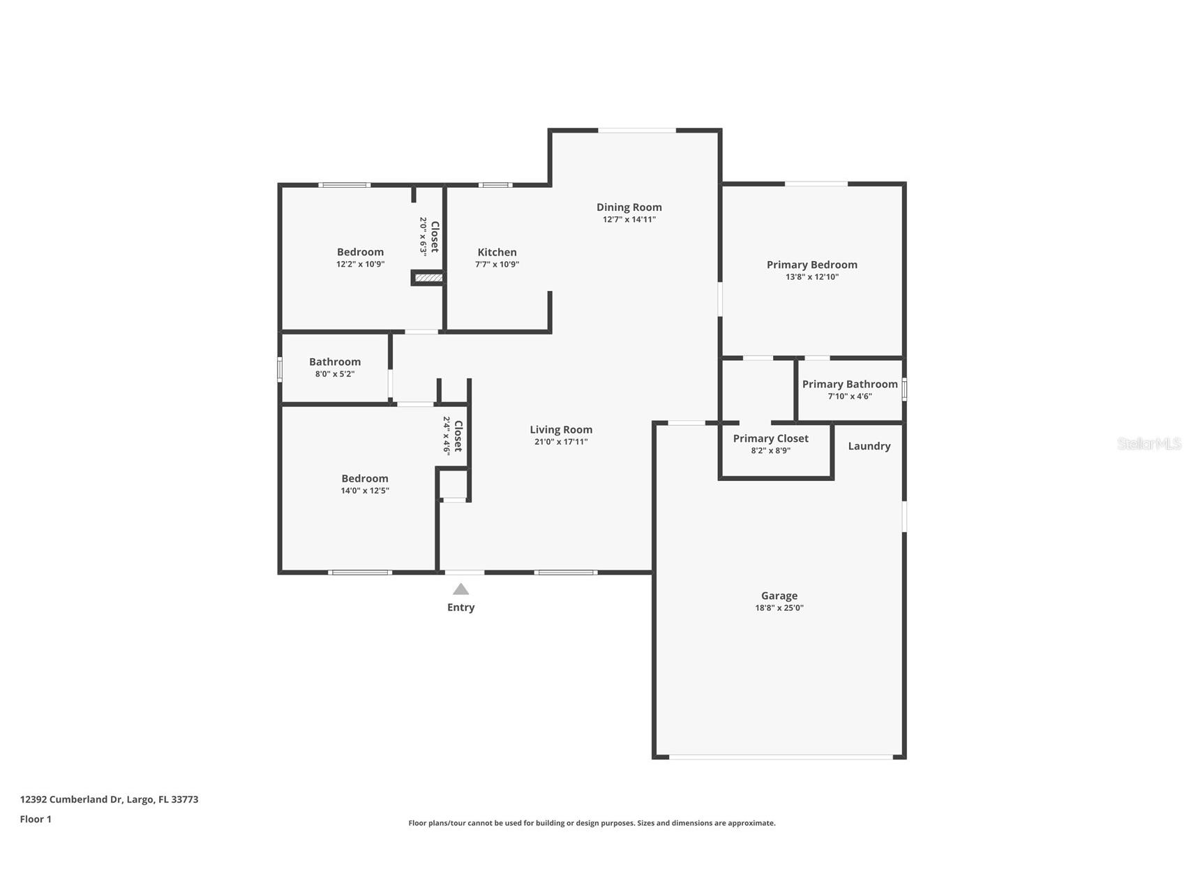
Room Information
Main Floor
Kitchen: 10x7
Bedroom 3: 10x12
Bedroom 2: 12x14
Primary Bedroom: 12x13
Living Room: 17x21
Bathrooms
Full Baths: 2
Additonal Room Information
Laundry: In Garage
Interior Features
Appliances: Washer, Electric Water Heater, Disposal, Dryer, Microwave, Range, Refrigerator
Flooring: Tile
Additional Interior Features: Ceiling Fan(s), Walk-In Closet(s), Main Level Primary
Utilities
Water: Public
Sewer: Public Sewer
Other Utilities: Cable Connected,Electricity Connected,High Speed Internet Available,Municipal Utilities,Sewer Connected,Water Connected
Cooling: Central Air, Ceiling Fan(s)
Heating: Electric, Heat Pump, Central
Exterior / Lot Features
Attached Garage: Attached Garage
Garage Spaces: 2
Roof: Shingle
Lot Dimensions: 64x99
Additional Exterior/Lot Features: Rain Gutters, Private Yard, Storage
Community Features
Community Features: Sidewalks
Driving Directions
From the intersection of Belcher Rd and Ulmerton Rd: Head east on Ulmerton Rd, turn right onto Cumberland Dr, and continue to 12392 Cumberland Dr. The property will be on your right.
Financial Considerations
Tax/Property ID: 12-30-15-20062-010-0050
Tax Amount: 5535.75
Tax Year: 2024
A broker reciprocity listing courtesy: REALTY ONE GROUP ADVANTAGE
Based on information provided by Stellar MLS as distributed by the MLS GRID. Information from the Internet Data Exchange is provided exclusively for consumers’ personal, non-commercial use, and such information may not be used for any purpose other than to identify prospective properties consumers may be interested in purchasing. This data is deemed reliable but is not guaranteed to be accurate by Edina Realty, Inc., or by the MLS. Edina Realty, Inc., is not a multiple listing service (MLS), nor does it offer MLS access.
Copyright 2026 Stellar MLS as distributed by the MLS GRID. All Rights Reserved.
Sales History & Tax Summary for 12392 Cumberland Drive
Sales History
| Date | Price | |
|---|---|---|
| Currently not available. | ||
Tax Summary
| Tax Year | Estimated Market Value | Total Tax |
|---|---|---|
| Currently not available. | ||
Data powered by ATTOM Data Solutions. Copyright© 2026. Information deemed reliable but not guaranteed.
Schools
Schools nearby 12392 Cumberland Drive
| Schools in attendance boundaries | Grades | Distance | Rating |
|---|---|---|---|
| Loading... | |||
| Schools nearby | Grades | Distance | Rating |
|---|---|---|---|
| Loading... | |||
Data powered by ATTOM Data Solutions. Copyright© 2026. Information deemed reliable but not guaranteed.
The schools shown represent both the assigned schools and schools by distance based on local school and district attendance boundaries. Attendance boundaries change based on various factors and proximity does not guarantee enrollment eligibility. Please consult your real estate agent and/or the school district to confirm the schools this property is zoned to attend. Information is deemed reliable but not guaranteed.
SchoolDigger ® Rating
The SchoolDigger rating system is a 1-5 scale with 5 as the highest rating. SchoolDigger ranks schools based on test scores supplied by each state's Department of Education. They calculate an average standard score by normalizing and averaging each school's test scores across all tests and grades.
Coming soon properties will soon be on the market, but are not yet available for showings.