$1,450,000
124 13th Avenue Indian Rocks Beach, FL 33785
For Sale MLS# TB8442041
3 beds 3 baths 2,080 sq ft Single Family
Details for 124 13th Avenue
MLS# TB8442041
Description for 124 13th Avenue, Indian Rocks Beach, FL, 33785
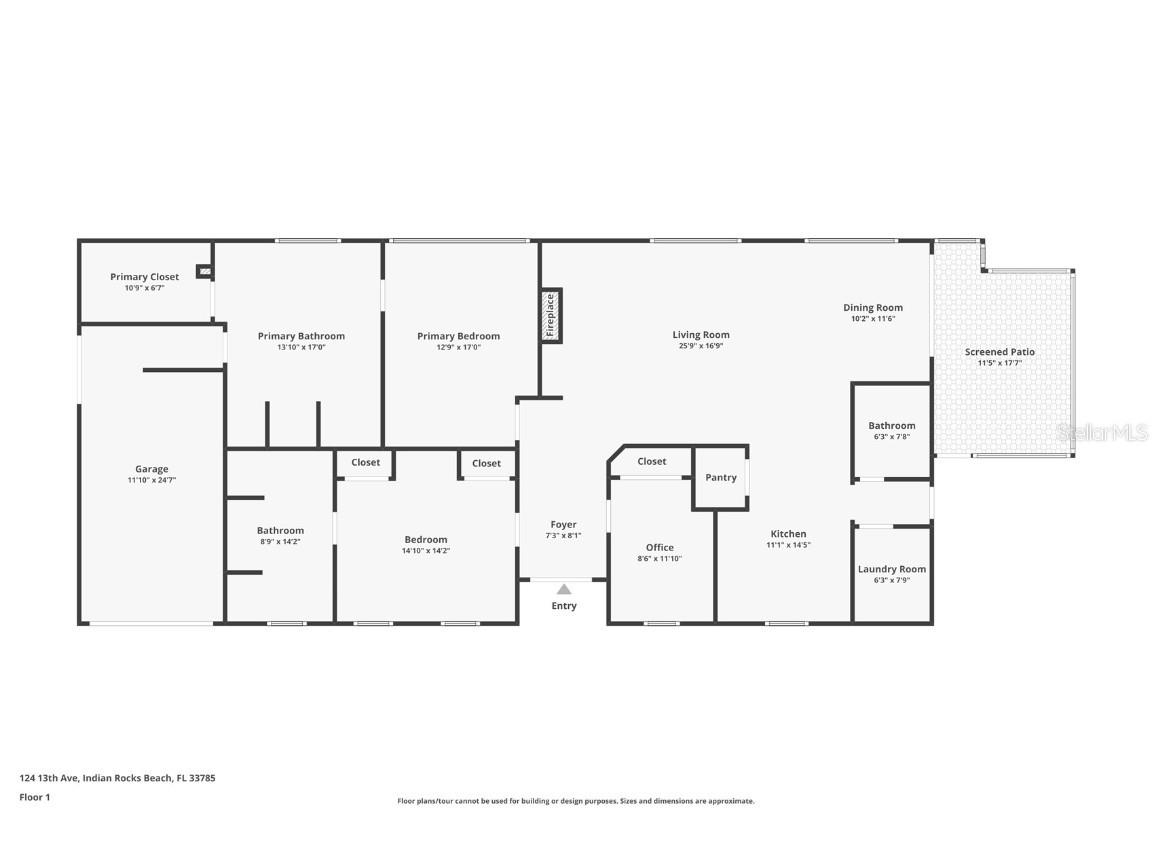
Live the Dream just a short stroll to sunsets on the beach! Remarkable POOL Home in Indian Rocks Beach - 3 Bedrooms (two en-suites) and 3 Baths! Welcome to a one-of-a-kind, designer-touched home in Indian Rocks Beach, where you can literally live where others vacation. This elegant, elevated residence offers a seamless blend of luxury, durability, and a coveted coastal lifestyle, all just a walk away from the wide, sandy beaches of the Gulf Coast! You'll find peace of mind in this home's elevated construction (a significant advantage with No flooding in the home with the 2024 storms) and its recent, major upgrades, including a New Roof (2025), New HVAC (2024), and New Water Heater (2024), new windows - everything has been done for you! Step through the stylish double-door entry into a welcoming foyer that sets the tone for the quality within. The bright, open living room flows into an elegant dining room, all framed by durable, stylish porcelain wood-look tile that extends throughout the home. The Living Room is anchored by a fully tiled fireplace flanked by custom built-in cabinets, creating a chic focal point. The home is protected and energy-efficient with hurricane-rated windows and beautiful plantation shutters. Prepare to be wowed by the exquisite kitchen, a chef’s delight featuring stunning quartz countertops, a Sub-Zero refrigerator, a Scotsman nugget ice maker, and a dedicated Sub-Zero beverage station. This spacious floor plan features three bedrooms and three full baths, including TWO private suites. The spectacular Primary Suite boasts a luxury upgraded bath with dual sinks, a vanity area, a full-length mirror, a soaking tub, and a large shower, plus a custom walk-in closet. The second suite offers a private bath with dual sinks and dual closets, perfect for guests. A third room provides flexibility for a guest room or a dedicated home office. A convenient laundry room with a sink completes the interior. Outside, your private retreat awaits. The screened lanai provides a perfect shaded space for relaxing, leading out to the incredible pool area with plenty of room to relax poolside. Salt water pool features an in-pool table for those hot Florida days, or a perfect spot to unwind in the open spa. Indian Rocks Beach is more than just a town; it’s a destination. Kolb Park is a great spot for pickleball, basketball, skatepark, baseball/softball and a playground to enjoy the outdoors. Located on a pristine barrier island between the Gulf and the Intracoastal Waterway, you are minutes away from boutique shopping and tasty restaurants. Enjoy being approximately 40 minutes to Tampa International Airport and conveniently close to Clearwater Beach, St. Pete Beach, and all major Florida attractions. This is your chance to own a piece of paradise and live like a vacationer year-round!
Listing Information
Property Type: Residential, Single Family Residence
Status: Active
Bedrooms: 3
Bathrooms: 3
Lot Size: 0.14 Acres
Square Feet: 2,080 sq ft
Year Built: 2005
Garage: Yes
Stories: 1 Story
Construction: Block,Stucco,Wood Frame
Subdivision: Indian Beach Re-Revised 1st Add
Foundation: Slab
County: Pinellas
School Information
Elementary: Anona Elementary-Pn
Middle: Seminole Middle-Pn
High: Largo High-Pn
Room Information
Main Floor
Bedroom 3: 11x8
Primary Bedroom: 14x14
Primary Bedroom: 17x12
Kitchen: 14x11
Dining Room: 11x10
Living Room: 16x25
Bathrooms
Full Baths: 3
Additonal Room Information
Laundry: Laundry Room, Inside
Interior Features
Appliances: Bar Fridge, Wine Refrigerator, Dishwasher, Microwave, Range, Refrigerator
Flooring: Porcelain Tile
Doors/Windows: Shutters
Fireplaces: Living Room
Additional Interior Features: Ceiling Fan(s), Walk-In Closet(s), Built-in Features, High Ceilings, Living/Dining Room, Open Floorplan, Main Level Primary
Utilities
Water: Public
Sewer: Public Sewer
Other Utilities: Electricity Connected,Municipal Utilities
Cooling: Central Air, Ceiling Fan(s)
Heating: Central
Exterior / Lot Features
Attached Garage: Attached Garage
Garage Spaces: 1
Roof: Shingle
Pool: In Ground, Salt Water
Lot Dimensions: 50x119
Additional Exterior/Lot Features: Other, Corner Lot, Landscaped
Driving Directions
From Roosevelt Blvd/FL-686 W/E Bay Dr, Continue onto Belleair Bluffs/S Belleair Causeway, Use the left 2 lanes to turn left onto Gulf Blvd, Turn left onto 14th Ave N, Turn right onto 1st St- house will be on the right
Financial Considerations
Terms: Cash,Conventional,FHA,VA Loan
Tax/Property ID: 01-30-14-42048-078-0110
Tax Amount: 5781.59
Tax Year: 2024
A broker reciprocity listing courtesy: KELLER WILLIAMS SUBURBAN TAMPA
Based on information provided by Stellar MLS as distributed by the MLS GRID. Information from the Internet Data Exchange is provided exclusively for consumers’ personal, non-commercial use, and such information may not be used for any purpose other than to identify prospective properties consumers may be interested in purchasing. This data is deemed reliable but is not guaranteed to be accurate by Edina Realty, Inc., or by the MLS. Edina Realty, Inc., is not a multiple listing service (MLS), nor does it offer MLS access.
Copyright 2026 Stellar MLS as distributed by the MLS GRID. All Rights Reserved.
Payment Calculator
Interest rate and annual percentage rate (APR) are based on current market conditions, are for informational purposes only, are subject to change without notice and may be subject to pricing add-ons related to property type, loan amount, loan-to-value, credit score and other variables. Estimated closing costs used in the APR calculation are assumed to be paid by the borrower at closing. If the closing costs are financed, the loan, APR and payment amounts will be higher. If the down payment is less than 20%, mortgage insurance may be required and could increase the monthly payment and APR. Contact us for details. Additional loan programs may be available. Accuracy is not guaranteed, and all products may not be available in all borrower's geographical areas and are based on their individual situation. This is not a credit decision or a commitment to lend.
Sales History & Tax Summary for 124 13th Avenue
Sales History
| Date | Price | Change |
|---|---|---|
| Currently not available. | ||
Tax Summary
| Tax Year | Estimated Market Value | Total Tax |
|---|---|---|
| Currently not available. | ||
Data powered by ATTOM Data Solutions. Copyright© 2026. Information deemed reliable but not guaranteed.
Schools
Schools nearby 124 13th Avenue
| Schools in attendance boundaries | Grades | Distance | Rating |
|---|---|---|---|
| Loading... | |||
| Schools nearby | Grades | Distance | Rating |
|---|---|---|---|
| Loading... | |||
Data powered by ATTOM Data Solutions. Copyright© 2026. Information deemed reliable but not guaranteed.
The schools shown represent both the assigned schools and schools by distance based on local school and district attendance boundaries. Attendance boundaries change based on various factors and proximity does not guarantee enrollment eligibility. Please consult your real estate agent and/or the school district to confirm the schools this property is zoned to attend. Information is deemed reliable but not guaranteed.
SchoolDigger ® Rating
The SchoolDigger rating system is a 1-5 scale with 5 as the highest rating. SchoolDigger ranks schools based on test scores supplied by each state's Department of Education. They calculate an average standard score by normalizing and averaging each school's test scores across all tests and grades.
Coming soon properties will soon be on the market, but are not yet available for showings.