$175,000
12404 Eagleswood Drive #D Hudson, FL 34667
For Sale MLS# TB8453837
2 beds 2 baths 1,144 sq ft Condo
Details for 12404 Eagleswood Drive #D
MLS# TB8453837
Description for 12404 Eagleswood Drive #D, Hudson, FL, 34667
This beautifully updated 2 bedroom 2 bath condo is THE NICEST UNIT available in Eagleswood and stands out immediately for its quality and care. The seller invested over $30,000 in new impact windows and an impact door, giving the home a higher level of comfort, security, and energy efficiency that you will not find in other units. The interior was freshly painted, bedroom carpet was removed and replaced with new flooring, and the refrigerator, microwave and range have been replaced, bringing a clean, modern feel throughout. The layout features a large living area with beautiful wood floors, a separate dining room, and an open kitchen with solid surface counters. Crown molding, updated interior doors, and a California Closet system in the primary suite add to the polished and upscale feel. The screened porch off the living room provides a quiet place to relax. Both bathrooms offer generous storage with large capacity medicine cabinets, and every room feels bright, fresh, and move in ready. Compared to other units in the community, this home offers a noticeably higher level of finish and quality. Eagleswood provides a low maintenance lifestyle with exterior maintenance included, a community pool, and access to all Beacon Woods amenities including tennis, shuffleboard, golf, and the Eagleswood clubhouse located just across the road. If you want a premium updated condo in a quiet and friendly 55 plus community, this is the one to see first.
Listing Information
Property Type: Residential, Condominium
Status: Active
Bedrooms: 2
Bathrooms: 2
Lot Size: 11.88 Acres
Square Feet: 1,144 sq ft
Year Built: 1987
Stories: 1 Story
Construction: Block
Subdivision: Eagleswood Condo
Foundation: Slab
County: Pasco
School Information
Elementary: Gulf Highland Elementary
Middle: Hudson Middle-Po
High: Fivay High-Po
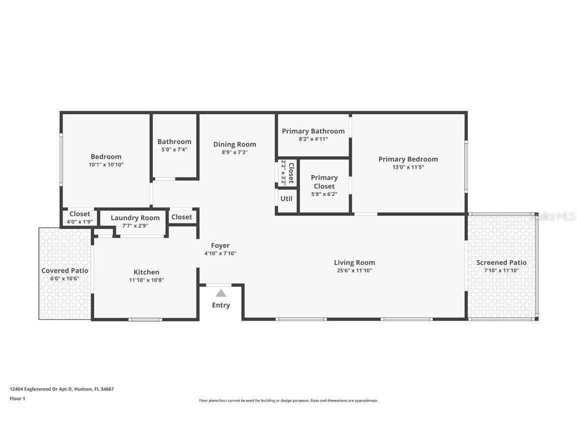
Room Information
Main Floor
Living Room: 11x25
Primary Bedroom: 11x13
Primary Bathroom: 4x8
Dining Room: 7x8
Bathroom 1: 7x5
Bedroom 1: 10x10
Laundry: 2x7
Kitchen: 10x11
Foyer: 7x4
Bathrooms
Full Baths: 2
Additonal Room Information
Laundry: Laundry Room
Interior Features
Appliances: Range, Refrigerator, Dishwasher, Microwave
Flooring: Ceramic Tile,Laminate
Additional Interior Features: Other, Walk-In Closet(s)
Utilities
Water: Public
Sewer: Public Sewer
Other Utilities: Cable Available,Electricity Connected,Municipal Utilities,Sewer Connected,Water Connected
Cooling: Central Air
Heating: Central
Exterior / Lot Features
Roof: Shingle
Pool: Community
Additional Exterior/Lot Features: Balcony, Balcony, Buyer Approval Required
Community Features
Community Features: Sidewalks, Pool, Clubhouse
HOA Dues Include: Other, Cable TV, Trash, Water, Recreation Facilities, Maintenance Structure, Pool(s), Maintenance Grounds, Sewer
Homeowners Association: Yes
HOA Dues: $465 / Monthly
Driving Directions
From State Road 52, Turn N into Beacon Woods, Majestic Blvd, turn right onto Clocktower Parkway, right onto Split Rail Lane, Left on Eagleswood Dr, condo on right. All parking is assigned, please park in front of clubhouse and walk to building.
Financial Considerations
Terms: Cash,Conventional,FHA,VA Loan
Tax/Property ID: 16-25-02-001C-12470-00D0
Tax Amount: 631.71
Tax Year: 2024
A broker reciprocity listing courtesy: EXP REALTY LLC
Based on information provided by Stellar MLS as distributed by the MLS GRID. Information from the Internet Data Exchange is provided exclusively for consumers’ personal, non-commercial use, and such information may not be used for any purpose other than to identify prospective properties consumers may be interested in purchasing. This data is deemed reliable but is not guaranteed to be accurate by Edina Realty, Inc., or by the MLS. Edina Realty, Inc., is not a multiple listing service (MLS), nor does it offer MLS access.
Copyright 2025 Stellar MLS as distributed by the MLS GRID. All Rights Reserved.
Payment Calculator
Interest rate and annual percentage rate (APR) are based on current market conditions, are for informational purposes only, are subject to change without notice and may be subject to pricing add-ons related to property type, loan amount, loan-to-value, credit score and other variables. Estimated closing costs used in the APR calculation are assumed to be paid by the borrower at closing. If the closing costs are financed, the loan, APR and payment amounts will be higher. If the down payment is less than 20%, mortgage insurance may be required and could increase the monthly payment and APR. Contact us for details. Additional loan programs may be available. Accuracy is not guaranteed, and all products may not be available in all borrower's geographical areas and are based on their individual situation. This is not a credit decision or a commitment to lend.
Sales History & Tax Summary for 12404 Eagleswood Drive #D
Sales History
| Date | Price | Change |
|---|---|---|
| Currently not available. | ||
Tax Summary
| Tax Year | Estimated Market Value | Total Tax |
|---|---|---|
| Currently not available. | ||
Data powered by ATTOM Data Solutions. Copyright© 2025. Information deemed reliable but not guaranteed.
Schools
Schools nearby 12404 Eagleswood Drive #D
| Schools in attendance boundaries | Grades | Distance | Rating |
|---|---|---|---|
| Loading... | |||
| Schools nearby | Grades | Distance | Rating |
|---|---|---|---|
| Loading... | |||
Data powered by ATTOM Data Solutions. Copyright© 2025. Information deemed reliable but not guaranteed.
The schools shown represent both the assigned schools and schools by distance based on local school and district attendance boundaries. Attendance boundaries change based on various factors and proximity does not guarantee enrollment eligibility. Please consult your real estate agent and/or the school district to confirm the schools this property is zoned to attend. Information is deemed reliable but not guaranteed.
SchoolDigger ® Rating
The SchoolDigger rating system is a 1-5 scale with 5 as the highest rating. SchoolDigger ranks schools based on test scores supplied by each state's Department of Education. They calculate an average standard score by normalizing and averaging each school's test scores across all tests and grades.
Coming soon properties will soon be on the market, but are not yet available for showings.