$299,999
12430 Mcgregor Boulevard Fort Myers, FL 33919
For Sale MLS# 2025019835
4 beds 3 baths 2,589 sq ft Single Family
Details for 12430 Mcgregor Boulevard
MLS# 2025019835
Description for 12430 Mcgregor Boulevard, Fort Myers, FL, 33919
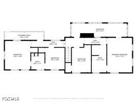
Own a piece of history on the palm tree-lined street of McGregor! This property sits on over half an acre in the heart of Fort Myers. This historic home is called the Powell-Dean House. This home is ready for the right buyer to undertake an extensive renovation and restore its Old Florida charm. The home features 2,589 square feet of living space. On the main level, you'll find a kitchen, dining room, a spacious living room with a brick fireplace, and a private office with a half bath downstairs. Upstairs, there are four bedrooms. The primary bedroom is located at one end of the hallway and includes an updated en-suite bathroom with a walk-in shower. Down the hall, you'll find three additional bedrooms—two of which share a Jack-and-Jill bathroom featuring a classic clawfoot tub. Outside, the home boasts a new metal roof and plenty of space for parking and all your toys. There’s also room to add a pool or garage.
Listing Information
Property Type: Residential, Single Family Residence
Status: Active
Bedrooms: 4
Bathrooms: 3
Lot Size: 0.58 Acres
Square Feet: 2,589 sq ft
Year Built: 1930
Stories: 2 Story
Construction: Wood Siding,Wood Frame
Construction Display: New Construction
Subdivision: Bayshore Park
Furnished: Yes
County: Lee
Days On Market: 21
Construction Status: Known Damage
Room Information
Bathrooms
Full Baths: 2
1/2 Baths: 1
Additonal Room Information
Other: Bedroom, Bedroom, Primary Bedroom, Bedroom, Utility Room, Kitchen, Dining Room, Living Room
Laundry: Dryer Hookup, Inside, Washer Hookup
Interior Features
Appliances: Dishwasher, Microwave, Range, Refrigerator
Flooring: Wood
Doors/Windows: Other
Additional Interior Features: Separate Shower, Separate/Formal Dining Room, Shower Only, Vaulted Ceiling(s), Pantry
Utilities
Water: Assessment Paid
Sewer: Assessment Paid
Other Utilities: Cable Available
Cooling: Electric, Central Air
Heating: Central, Electric
Exterior / Lot Features
Parking Description: Unpaved, driveway, Attached Carport
Roof: Metal
Lot Dimensions: 135 x 188 x 134 x 188
Zoning: RS-1
Additional Exterior/Lot Features: Balcony, Multiple lots, Oversized Lot
Driving Directions
Collage Parkway to McGregor BLVD,go N on McGregor BLVD home will be on the left. With the big tree
Financial Considerations
Terms: All Financing Considered,Cash
Tax/Property ID: 16-45-24-01-00000.036E
Tax Amount: 3937.9
Tax Year: 2024
A broker reciprocity listing courtesy: Keller Williams Realty Fort Myers and the Islands
Based on information provided by FGCMLS. Internet Data Exchange information is provided exclusively for consumers’ personal, non-commercial use, and such information may not be used for any purpose other than to identify prospective properties consumers may be interested in purchasing. This data is deemed reliable but is not guaranteed to be accurate by Edina Realty, Inc., or by the MLS. Edina Realty, Inc., is not a multiple listing service (MLS), nor does it offer MLS access.
Copyright 2025 FGCMLS. All Rights Reserved.
Payment Calculator
Interest rate and annual percentage rate (APR) are based on current market conditions, are for informational purposes only, are subject to change without notice and may be subject to pricing add-ons related to property type, loan amount, loan-to-value, credit score and other variables. Estimated closing costs used in the APR calculation are assumed to be paid by the borrower at closing. If the closing costs are financed, the loan, APR and payment amounts will be higher. If the down payment is less than 20%, mortgage insurance may be required and could increase the monthly payment and APR. Contact us for details. Additional loan programs may be available. Accuracy is not guaranteed, and all products may not be available in all borrower's geographical areas and are based on their individual situation. This is not a credit decision or a commitment to lend.
Sales History & Tax Summary for 12430 Mcgregor Boulevard
Sales History
| Date | Price | Change |
|---|---|---|
| Currently not available. | ||
Tax Summary
| Tax Year | Estimated Market Value | Total Tax |
|---|---|---|
| Currently not available. | ||
Data powered by ATTOM Data Solutions. Copyright© 2025. Information deemed reliable but not guaranteed.
Schools
Schools nearby 12430 Mcgregor Boulevard
| Schools in attendance boundaries | Grades | Distance | Rating |
|---|---|---|---|
| Loading... | |||
| Schools nearby | Grades | Distance | Rating |
|---|---|---|---|
| Loading... | |||
Data powered by ATTOM Data Solutions. Copyright© 2025. Information deemed reliable but not guaranteed.
The schools shown represent both the assigned schools and schools by distance based on local school and district attendance boundaries. Attendance boundaries change based on various factors and proximity does not guarantee enrollment eligibility. Please consult your real estate agent and/or the school district to confirm the schools this property is zoned to attend. Information is deemed reliable but not guaranteed.
SchoolDigger ® Rating
The SchoolDigger rating system is a 1-5 scale with 5 as the highest rating. SchoolDigger ranks schools based on test scores supplied by each state's Department of Education. They calculate an average standard score by normalizing and averaging each school's test scores across all tests and grades.
Coming soon properties will soon be on the market, but are not yet available for showings.