$376,939
Off-Market Date: 02/09/202612462 Whisk Court Hudson, FL 34669
Pending MLS# TB8423509
5 beds 4 baths 2,516 sq ft Single Family
Details for 12462 Whisk Court
MLS# TB8423509
Description for 12462 Whisk Court, Hudson, FL, 34669
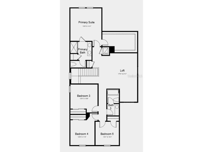
New Construction – Ready Now! Built by Taylor Morrison, America’s Most Trusted Homebuilder. Welcome to the Sherwood at 12462 Whisk Court in Palm Wind! This home offers an open-concept main floor filled with natural light, where the great room, casual dining area, and modern kitchen flow together seamlessly. A main-floor bedroom with a private full bath is tucked just off the kitchen for convenience. Upstairs, a spacious loft adds extra living space alongside three secondary bedrooms with a shared bath. The private primary suite features a spa-inspired bathroom with dual sinks, a walk-in shower, and an oversized closet. Palm Wind in Hudson, Florida blends small-town coastal charm with modern living, offering planned amenities like a pool, cabana, tot lot, butterfly garden, and dog park. Enjoy life along Florida’s nature coast with easy access to natural escapes and a welcoming community atmosphere. Additional highlights include: all appliances included, all window blinds throughout, quartz countertops, and ceramic tile flooring. MLS#TB8423509
Listing Information
Property Type: Residential, Single Family Residence
Status: Pending
Bedrooms: 5
Bathrooms: 4
Lot Size: 0.14 Acres
Square Feet: 2,516 sq ft
Year Built: 2025
Garage: Yes
Stories: 2 Story
Construction: Block,Stucco,Vinyl Siding
Construction Display: New Construction
Subdivision: Palm Wind
Builder: Taylor Morrison
Foundation: Slab
County: Pasco
Construction Status: New Construction
School Information
Elementary: Moon Lake-Po
Middle: Crews Lake Middle-Po
High: Hudson High-Po
Room Information
Main Floor
Bedroom 2:
Great Room:
Dining Room:
Kitchen:
Upper Floor
Loft:
Bedroom 5:
Bedroom 4:
Bedroom 3:
Primary Bedroom:
Bathrooms
Full Baths: 3
1/2 Baths: 1
Additonal Room Information
Laundry: Inside, Laundry Room
Interior Features
Appliances: Exhaust Fan, Microwave, Range, Refrigerator, Dishwasher, Disposal, Dryer, Washer
Flooring: Carpet,Tile
Doors/Windows: Window Treatments, Blinds
Additional Interior Features: Loft, Walk-In Closet(s), High Ceilings, Window Treatments
Utilities
Water: Public
Sewer: Public Sewer
Other Utilities: Cable Available,Electricity Available,Fiber Optic Available,Municipal Utilities,Phone Available,Sewer Available,Underground Utilities,Water Available
Cooling: Central Air
Heating: Central
Exterior / Lot Features
Attached Garage: Attached Garage
Garage Spaces: 2
Parking Description: Garage, Garage Door Opener, Common, driveway
Roof: Shingle
Pool: Community, Association
Additional Exterior/Lot Features: Storm/Security Shutters, Sprinkler/Irrigation, Cul-de-Sac
Community Features
Community Features: Playground, Pool, Sidewalks, Street Lights, Dog Park, Community Mailbox
Association Amenities: Pool, Playground
HOA Dues Include: Trash, Pool(s)
Homeowners Association: Yes
HOA Dues: $517 / Quarterly
Driving Directions
From I-75, take exit 285 toward Dade City/San Antonio. Turn left onto State Road 52 W and head west for 18 miles. Turn right onto Hays Road and continue for approximately 2 miles, then turn left onto Hudson Avenue. Continue on Hudson Avenue for approximately 3 miles and the entrance for Palm Wind will be on the left. Turn left on Tropical Breeze Way and follow the signs to the model center.
Financial Considerations
Terms: Cash,Conventional,FHA,VA Loan
Tax/Property ID: NALOT263
Tax Amount: 4500
Tax Year: 2025
A broker reciprocity listing courtesy: TAYLOR MORRISON REALTY OF FL
Based on information provided by Stellar MLS as distributed by the MLS GRID. Information from the Internet Data Exchange is provided exclusively for consumers’ personal, non-commercial use, and such information may not be used for any purpose other than to identify prospective properties consumers may be interested in purchasing. This data is deemed reliable but is not guaranteed to be accurate by Edina Realty, Inc., or by the MLS. Edina Realty, Inc., is not a multiple listing service (MLS), nor does it offer MLS access.
Copyright 2026 Stellar MLS as distributed by the MLS GRID. All Rights Reserved.
Sales History & Tax Summary for 12462 Whisk Court
Sales History
| Date | Price | |
|---|---|---|
| Currently not available. | ||
Tax Summary
| Tax Year | Estimated Market Value | Total Tax |
|---|---|---|
| Currently not available. | ||
Data powered by ATTOM Data Solutions. Copyright© 2026. Information deemed reliable but not guaranteed.
Schools
Schools nearby 12462 Whisk Court
| Schools in attendance boundaries | Grades | Distance | Rating |
|---|---|---|---|
| Loading... | |||
| Schools nearby | Grades | Distance | Rating |
|---|---|---|---|
| Loading... | |||
Data powered by ATTOM Data Solutions. Copyright© 2026. Information deemed reliable but not guaranteed.
The schools shown represent both the assigned schools and schools by distance based on local school and district attendance boundaries. Attendance boundaries change based on various factors and proximity does not guarantee enrollment eligibility. Please consult your real estate agent and/or the school district to confirm the schools this property is zoned to attend. Information is deemed reliable but not guaranteed.
SchoolDigger ® Rating
The SchoolDigger rating system is a 1-5 scale with 5 as the highest rating. SchoolDigger ranks schools based on test scores supplied by each state's Department of Education. They calculate an average standard score by normalizing and averaging each school's test scores across all tests and grades.
Coming soon properties will soon be on the market, but are not yet available for showings.