1250 W Marion Avenue #333 Punta Gorda, FL 33950
For Sale MLS# C7511473
3 beds 2 baths 1,988 sq ft Condo
Details for 1250 W Marion Avenue #333
MLS# C7511473
Description for 1250 W Marion Avenue #333, Punta Gorda, FL, 33950
Discover a rare gem in Starboard Point with this 3-bedroom, 2-bathroom condo boasting elegance, class, and an unparalleled view of Charlotte Harbor. Located on the 3rd floor with elevator access and a deeded boat slip just steps away, this home offers the ultimate waterfront lifestyle.Upon entry, a welcoming foyer leads to a separate utility and laundry room featuring stone countertops and ample storage. The open concept living and dining area is perfect for entertaining, complemented by a chef's kitchen featuring a large island, granite countertops, wine refrigerator, and stylish pearl mosaic backsplash. Hurricane impact sliders open to reveal breathtaking views of Charlotte Harbor, with battery-operated roll-down sunshades for comfort. The master bedroom offers a tranquil harbor view and includes a walk-in closet with custom cabinetry and an en suite bathroom featuring dual sinks and a tiled shower. The spacious second bedroom doubles as a study or office, while the third bedroom enjoys easy access to a shared bathroom. Additional features include hurricane impact windows throughout and a DEEDED BOAT SLIP with a 10,000lb lift. Residents enjoy amenities such as parking, storage, a community library, pickleball and tennis courts, walking and bike paths, and a community pool. Ideally located near dining, shopping, entertainment, Fishermen’s Village, historic downtown, Gilchrist Park, and the Visual Arts building, with easy access to US-41 and I-75. Experience waterfront living at its finest in this paradise oasis, where every day offers wonder, adventure, and the best of southwest Florida. Don’t miss out—schedule your showing today
Listing Information
Property Type: Residential, Condominium
Status: Active
Bedrooms: 3
Bathrooms: 2
Lot Size: 0.05 Acres
Square Feet: 1,988 sq ft
Year Built: 1997
Stories: 1 Story
Construction: Block,Stucco
Subdivision: Starboard Point Ph 01 Bldg 03
Foundation: Slab
County: Charlotte
School Information
Elementary: Sallie Jones Elementary
Middle: Punta Gorda Middle
High: Charlotte High
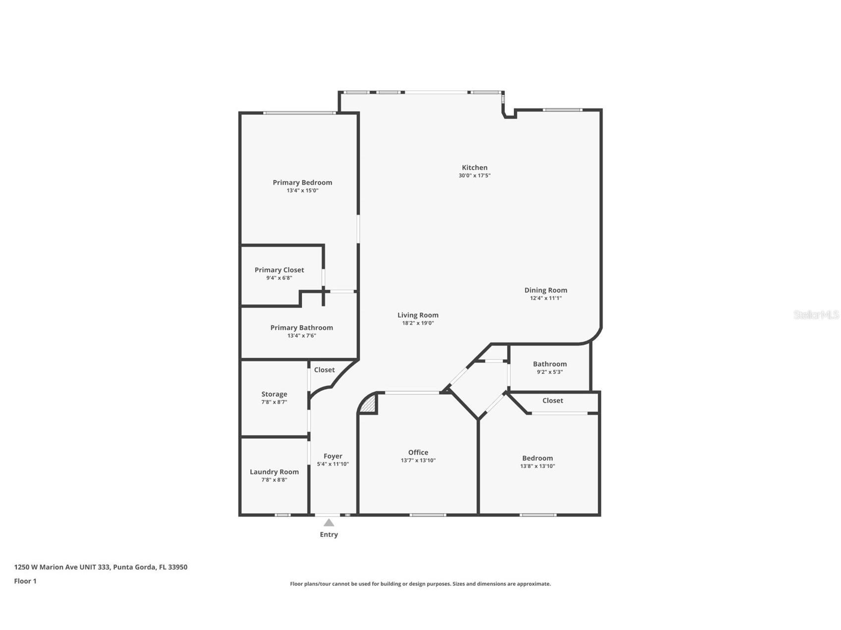
Room Information
Main Floor
Den: 13x13
Dining Room: 13x12
Bedroom 2: 13x11
Living Room: 35x15
Primary Bedroom: 6x13
Kitchen: 12x12
Bathrooms
Full Baths: 2
Additonal Room Information
Laundry: Laundry Room
Interior Features
Appliances: Wine Refrigerator, Built-In Oven, Exhaust Fan, Microwave, Refrigerator, Washer, Cooktop, Dishwasher, Disposal, Dryer, Water Softener, Tankless Water Heater
Flooring: Carpet,Ceramic Tile
Doors/Windows: Window Treatments, Storm Window(s)
Additional Interior Features: Eat-In Kitchen, Walk-In Closet(s), Window Treatments, Ceiling Fan(s), Open Floorplan, Kitchen/Family Room Combo, Solid Surface Counters, Stone Counters, Living/Dining Room
Utilities
Water: Public
Sewer: Public Sewer
Other Utilities: Cable Available,Electricity Connected,High Speed Internet Available,Sewer Connected,Water Connected
Cooling: Ceiling Fan(s), Central Air
Heating: Central
Exterior / Lot Features
Parking Description: Covered, Assigned, Open
Roof: Tile
Pool: Gunite, Community, In Ground, Outside Bath Access, Heated
Lot View: Bay,Water
Additional Exterior/Lot Features: Lighting, Storage, Tennis Court(s)
Out Buildings: Gazebo, Storage
Waterfront Details
Water Front Features: Bay Access
Community Features
Community Features: Sidewalks, Pool, Tennis Court(s), Waterfront, Fishing, Water Access
HOA Dues Include: Recreation Facilities, Sewer, Water, Trash, Maintenance Grounds, Pest Control, Insurance, Pool(s), Maintenance Structure
Homeowners Association: Yes
HOA Dues: $1,184 / Monthly
Driving Directions
US 41 W on Marion Ave. Right into Starboard Point condos. Unit is 3rd building
Financial Considerations
Tax/Property ID: 412212581006
Tax Amount: 8893.37
Tax Year: 2024
A broker reciprocity listing courtesy: SELLSTATE VISION REALTY
Based on information provided by Stellar MLS as distributed by the MLS GRID. Information from the Internet Data Exchange is provided exclusively for consumers’ personal, non-commercial use, and such information may not be used for any purpose other than to identify prospective properties consumers may be interested in purchasing. This data is deemed reliable but is not guaranteed to be accurate by Edina Realty, Inc., or by the MLS. Edina Realty, Inc., is not a multiple listing service (MLS), nor does it offer MLS access.
Copyright 2026 Stellar MLS as distributed by the MLS GRID. All Rights Reserved.
Payment Calculator
Interest rate and annual percentage rate (APR) are based on current market conditions, are for informational purposes only, are subject to change without notice and may be subject to pricing add-ons related to property type, loan amount, loan-to-value, credit score and other variables. Estimated closing costs used in the APR calculation are assumed to be paid by the borrower at closing. If the closing costs are financed, the loan, APR and payment amounts will be higher. If the down payment is less than 20%, mortgage insurance may be required and could increase the monthly payment and APR. Contact us for details. Additional loan programs may be available. Accuracy is not guaranteed, and all products may not be available in all borrower's geographical areas and are based on their individual situation. This is not a credit decision or a commitment to lend.
Sales History & Tax Summary for 1250 W Marion Avenue #333
Sales History
| Date | Price | |
|---|---|---|
| Currently not available. | ||
Tax Summary
| Tax Year | Estimated Market Value | Total Tax |
|---|---|---|
| Currently not available. | ||
Data powered by ATTOM Data Solutions. Copyright© 2026. Information deemed reliable but not guaranteed.
Schools
Schools nearby 1250 W Marion Avenue #333
| Schools in attendance boundaries | Grades | Distance | Rating |
|---|---|---|---|
| Loading... | |||
| Schools nearby | Grades | Distance | Rating |
|---|---|---|---|
| Loading... | |||
Data powered by ATTOM Data Solutions. Copyright© 2026. Information deemed reliable but not guaranteed.
The schools shown represent both the assigned schools and schools by distance based on local school and district attendance boundaries. Attendance boundaries change based on various factors and proximity does not guarantee enrollment eligibility. Please consult your real estate agent and/or the school district to confirm the schools this property is zoned to attend. Information is deemed reliable but not guaranteed.
SchoolDigger ® Rating
The SchoolDigger rating system is a 1-5 scale with 5 as the highest rating. SchoolDigger ranks schools based on test scores supplied by each state's Department of Education. They calculate an average standard score by normalizing and averaging each school's test scores across all tests and grades.
Coming soon properties will soon be on the market, but are not yet available for showings.