1250 W Marion Avenue #341 Punta Gorda, FL 33950
For Sale MLS# C7513227
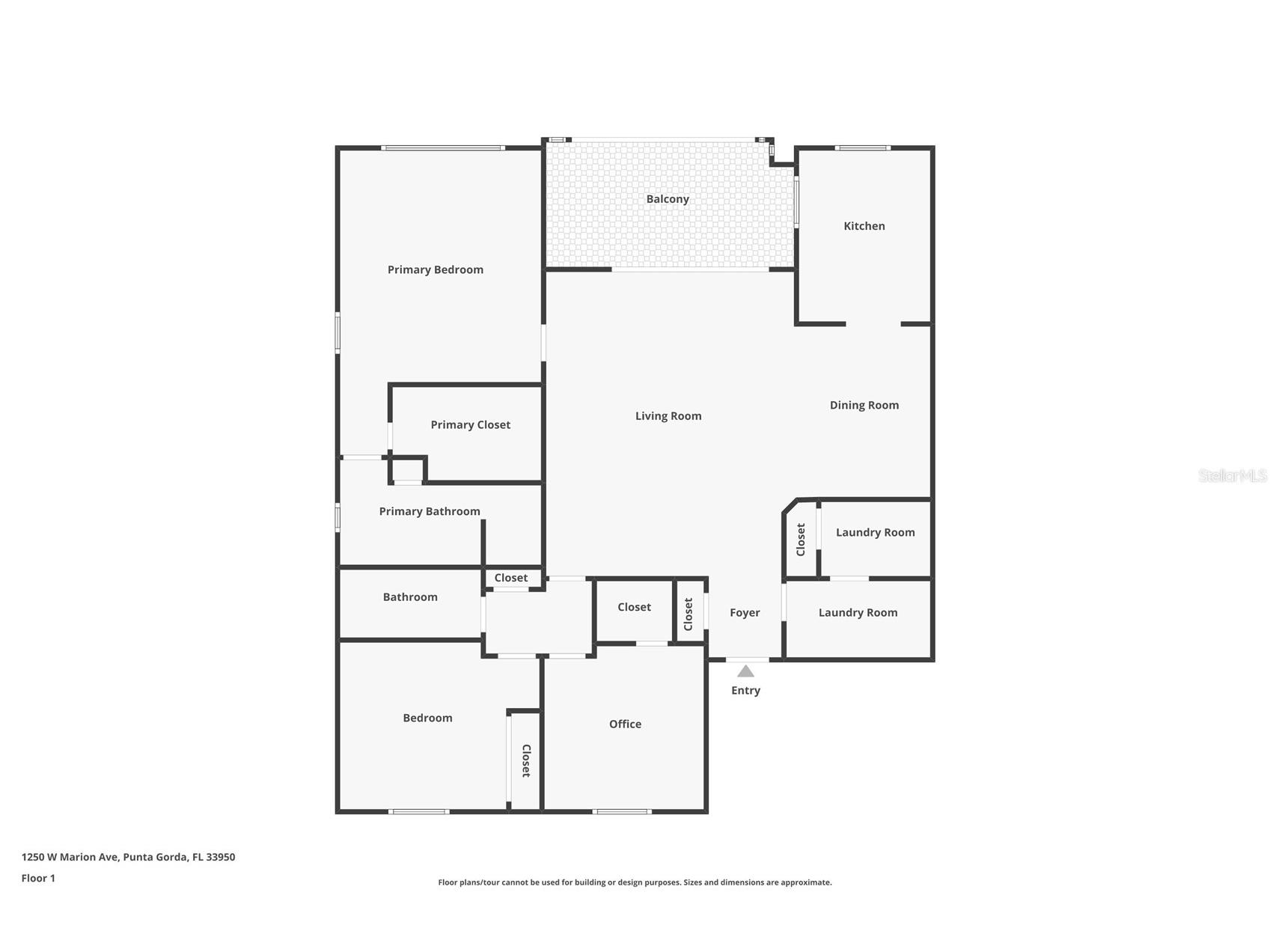
3 beds 2 baths 1,838 sq ft Condo
Details for 1250 W Marion Avenue #341
MLS# C7513227
Description for 1250 W Marion Avenue #341, Punta Gorda, FL, 33950
Prepare to be captivated by panoramic, 180-degree views of Charlotte Harbor from this stunning corner-unit penthouse—a rare opportunity to own a true piece of paradise. From the moment you enter, you'll be surrounded by custom finishes, abundant natural light, and the tranquil elegance of coastal living at its finest. This spacious 3-bedroom, 2-bath residence, with elevator access and a deeded dock, offers a thoughtfully designed layout with oversized tile flooring, LVP flooring in the bedrooms, and soaring vaulted ceilings that enhance the open, airy feel. The expansive primary suite overlooks the water and features an updated modern bathroom with a dual vanity, vanity tower, walk-in tiled shower, and a large walk-in closet. The gourmet kitchen features solid surface countertops, rich solid wood cabinetry, custom built-ins, and a designer tile backsplash. A convenient pass-through window opens to the fully enclosed, climate-controlled balcony—an ideal space to take in stunning views of Charlotte Harbor. Whether you're entertaining guests or unwinding with a glass of wine, you'll enjoy watching boats glide by and taking in breathtaking sunsets each evening. Enjoy year-round comfort and safety with hurricane-rated windows, brand-new hurricane sliders, and a whole-house water treatment system. Each room is equipped with a ceiling fan, while the separate laundry room includes a utility sink, drying rod, and extra cabinets for storage. And don't miss the oversized storage room with a workshop located next to your covered parking. This one-of-a-kind penthouse combines luxury, location, and lifestyle—and is truly a must-see. Adjacent to Fisherman's Village it is walking distance to Punta Gorda Village, the History Park, the Military Museum, the library, the Harbor Walk, Gichrist Park, and all of the festivals throughout the year! Amenities include a heated pool, tennis courts, pickleball courts, walking paths, and a gazebo located overlooking Charlotte Harbor. Don’t miss this opportunity to own a show stopping penthouse overlooking Charlotte Harbor and keep Chasing Summer! Schedule your private tour today!
Listing Information
Property Type: Residential, Condominium
Status: Active
Bedrooms: 3
Bathrooms: 2
Lot Size: 0.05 Acres
Square Feet: 1,838 sq ft
Year Built: 1997
Stories: 1 Story
Construction: Stucco
Subdivision: Starboard Point Ph 01 Bldg 03
Foundation: Slab
County: Charlotte
Room Information
Main Floor
Porch: 9x18
Bedroom 3: 12x11
Bedroom 2: 12x14
Primary Bathroom:
Primary Bedroom: 22x14
Kitchen: 12x9
Dining Room: 12x9
Living Room: 22x18
Foyer:
Bathrooms
Full Baths: 2
Additonal Room Information
Laundry: Inside, Laundry Room
Interior Features
Appliances: Dishwasher, Microwave, Range, Refrigerator
Flooring: Tile
Doors/Windows: Window Treatments, Blinds
Additional Interior Features: Ceiling Fan(s), Vaulted Ceiling(s), Walk-In Closet(s), Window Treatments
Utilities
Water: Public
Sewer: Public Sewer
Other Utilities: Cable Available,Electricity Connected,High Speed Internet Available,Municipal Utilities,Sewer Connected,Water Connected
Cooling: Central Air, Ceiling Fan(s)
Heating: Central
Exterior / Lot Features
Roof: Tile
Pool: Community
Lot View: Ocean,Water
Additional Exterior/Lot Features: Other
Community Features
Community Features: Pool, Tennis Court(s), Waterfront, Fishing, Water Access
HOA Dues Include: Trash, Recreation Facilities, Taxes, Water, Maintenance Structure, Pool(s), Sewer, Reserve Fund, Common Areas, Maintenance Grounds, Pest Control
Homeowners Association: Yes
HOA Dues: $1,186 / Monthly
Driving Directions
South on I-75, take Exit 164 for US-17 toward Punta Gorda. Head west on US-17, which becomes Marion Avenue as you enter downtown Punta Gorda. Continue on Marion Avenue for approximately 3 miles, passing through the historic downtown area. Stay on Marion Avenue until you reach 1250 W Marion Avenue, and turn into the complex. Unit #341 will be located within the community.
Financial Considerations
Tax/Property ID: 412212581007
Tax Amount: 3092
Tax Year: 2024
A broker reciprocity listing courtesy: COLDWELL BANKER REALTY
Based on information provided by Stellar MLS as distributed by the MLS GRID. Information from the Internet Data Exchange is provided exclusively for consumers’ personal, non-commercial use, and such information may not be used for any purpose other than to identify prospective properties consumers may be interested in purchasing. This data is deemed reliable but is not guaranteed to be accurate by Edina Realty, Inc., or by the MLS. Edina Realty, Inc., is not a multiple listing service (MLS), nor does it offer MLS access.
Copyright 2025 Stellar MLS as distributed by the MLS GRID. All Rights Reserved.
Payment Calculator
Interest rate and annual percentage rate (APR) are based on current market conditions, are for informational purposes only, are subject to change without notice and may be subject to pricing add-ons related to property type, loan amount, loan-to-value, credit score and other variables. Estimated closing costs used in the APR calculation are assumed to be paid by the borrower at closing. If the closing costs are financed, the loan, APR and payment amounts will be higher. If the down payment is less than 20%, mortgage insurance may be required and could increase the monthly payment and APR. Contact us for details. Additional loan programs may be available. Accuracy is not guaranteed, and all products may not be available in all borrower's geographical areas and are based on their individual situation. This is not a credit decision or a commitment to lend.
Sales History & Tax Summary for 1250 W Marion Avenue #341
Sales History
| Date | Price | Change |
|---|---|---|
| Currently not available. | ||
Tax Summary
| Tax Year | Estimated Market Value | Total Tax |
|---|---|---|
| Currently not available. | ||
Data powered by ATTOM Data Solutions. Copyright© 2025. Information deemed reliable but not guaranteed.
Schools
Schools nearby 1250 W Marion Avenue #341
| Schools in attendance boundaries | Grades | Distance | Rating |
|---|---|---|---|
| Loading... | |||
| Schools nearby | Grades | Distance | Rating |
|---|---|---|---|
| Loading... | |||
Data powered by ATTOM Data Solutions. Copyright© 2025. Information deemed reliable but not guaranteed.
The schools shown represent both the assigned schools and schools by distance based on local school and district attendance boundaries. Attendance boundaries change based on various factors and proximity does not guarantee enrollment eligibility. Please consult your real estate agent and/or the school district to confirm the schools this property is zoned to attend. Information is deemed reliable but not guaranteed.
SchoolDigger ® Rating
The SchoolDigger rating system is a 1-5 scale with 5 as the highest rating. SchoolDigger ranks schools based on test scores supplied by each state's Department of Education. They calculate an average standard score by normalizing and averaging each school's test scores across all tests and grades.
Coming soon properties will soon be on the market, but are not yet available for showings.