$315,000
12541 Kelly Sands Way #15 Fort Myers, FL 33908
For Sale MLS# 2025016199
2 beds 2 baths 1,336 sq ft Condo
Details for 12541 Kelly Sands Way #15
MLS# 2025016199
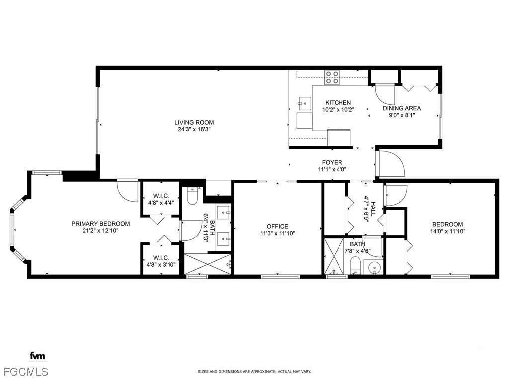
Description for 12541 Kelly Sands Way #15, Fort Myers, FL, 33908
Experience comfortable Florida living in this sought-after 1st-floor end unit Veranda with a den. Situated on the 15th fairway of the acclaimed Kelly Greens Golf & Country Club, this unit offers breathtaking panoramic views of the sunrise over the pristine fairway. Designed by Gordon Lewis, the championship course provides a serene and idyllic backdrop. Inside, you'll find quartz countertops on top of shaker cabinetry, tiled flooring and crown molding throughout, stainless steel appliances, new A/C and water heater, and front and back screened lanais with electric storm shutters for added peace of mind. Owner's Suite with hurricane impact resistant windows and a one-car detached garage with new doors and an opener complete the package. Enjoy an effortless lifestyle with access to an array of amenities. These include championship golf, tennis, a state-of-the-art fitness center, an engaging activities center, and a welcoming clubhouse with a delightful restaurant. All of this is just moments away from pristine beaches and vibrant nightlife. Live the dream in this unparalleled location. Just steps away from your community pool and spa, this spacious unit is perfect for entertaining. For the active adventurer, a network of trails on Southwest Florida's Barrier Islands of Sanibel & Captiva beckons for biking and jogging amidst the natural beauty. If you have the opportunity to live in Paradise, Why Not! Contact your agent today to schedule a viewing of this Veranda unit!
Listing Information
Property Type: Residential, Condominium
Status: Active
Bedrooms: 2
Bathrooms: 2
Square Feet: 1,336 sq ft
Year Built: 1988
Garage: Yes
Stories: 2 Story
Construction: Block,Concrete,Stucco
Subdivision: Verandas
Furnished: Yes
County: Lee
Days On Market: 28
Construction Status: Resale
Room Information
Bathrooms
Full Baths: 2
Additonal Room Information
Laundry: Dryer Hookup, Inside, Washer Hookup
Interior Features
Appliances: Range, Refrigerator, Dishwasher, Disposal, Freezer, Microwave
Flooring: Tile
Doors/Windows: Double Hung, Impact Glass
Additional Interior Features: Eat-In Kitchen, Pantry, Cable TV, Living/Dining Room, Separate Shower, Shower Only, High Speed Internet, Tray Ceiling(s), Split Bedrooms, Dual Sinks
Utilities
Water: Public
Sewer: Public Sewer
Other Utilities: Cable Available,High Speed Internet Available,Underground Utilities
Cooling: Electric, Central Air
Heating: Central, Electric
Exterior / Lot Features
Garage Spaces: 1
Parking Description: One Space, Garage Door Opener, Assigned, Detached, Paved, Garage
Roof: Shingle
Pool: Community
Lot View: Golf Course,Landscaped,Lake
Additional Exterior/Lot Features: Courtyard, Shutters Electric, Shutters Manual, Patio, Patio, Porch, Screened, Lanai, Zero Lot Line
Community Features
Community Features: Golf, Tennis Court(s), Gated
Security Features: Security Gate, Gated Community, Smoke Detector(s)
Association Amenities: Clubhouse, Fitness Center, Sidewalks, Tennis Court(s), Management, Private Membership, Putting Green(s), Restaurant, Spa/Hot Tub, Golf Course, Pool, Guest Suites
HOA Dues Include: Sewer, Street Lights, Reserve Fund, Road Maintenance, Insurance, Association Management, Maintenance Grounds, Pest Control, Internet, Cable TV, Trash, Water, Golf
Homeowners Association: Yes
HOA Dues: $2,202 / Quarterly
Driving Directions
Summerlin Rd to Kelly Greens Golf and Country Club [Main Entrance 12300 Kelly Greens Blvd] to 12541 Kelly Sands Way Unit #15, 1st Floor. Note: main community gate may be open if not call Tim for gate code.
Financial Considerations
Terms: All Financing Considered,Cash
Tax/Property ID: 01-46-23-06-00002.0150
Tax Amount: 2851.22
Tax Year: 2025
A broker reciprocity listing courtesy: Century 21 Allpoints Realty
Based on information provided by FGCMLS. Internet Data Exchange information is provided exclusively for consumers’ personal, non-commercial use, and such information may not be used for any purpose other than to identify prospective properties consumers may be interested in purchasing. This data is deemed reliable but is not guaranteed to be accurate by Edina Realty, Inc., or by the MLS. Edina Realty, Inc., is not a multiple listing service (MLS), nor does it offer MLS access.
Copyright 2025 FGCMLS. All Rights Reserved.
Payment Calculator
Interest rate and annual percentage rate (APR) are based on current market conditions, are for informational purposes only, are subject to change without notice and may be subject to pricing add-ons related to property type, loan amount, loan-to-value, credit score and other variables. Estimated closing costs used in the APR calculation are assumed to be paid by the borrower at closing. If the closing costs are financed, the loan, APR and payment amounts will be higher. If the down payment is less than 20%, mortgage insurance may be required and could increase the monthly payment and APR. Contact us for details. Additional loan programs may be available. Accuracy is not guaranteed, and all products may not be available in all borrower's geographical areas and are based on their individual situation. This is not a credit decision or a commitment to lend.
Sales History & Tax Summary for 12541 Kelly Sands Way #15
Sales History
| Date | Price | Change |
|---|---|---|
| Currently not available. | ||
Tax Summary
| Tax Year | Estimated Market Value | Total Tax |
|---|---|---|
| Currently not available. | ||
Data powered by ATTOM Data Solutions. Copyright© 2025. Information deemed reliable but not guaranteed.
Schools
Schools nearby 12541 Kelly Sands Way #15
| Schools in attendance boundaries | Grades | Distance | Rating |
|---|---|---|---|
| Loading... | |||
| Schools nearby | Grades | Distance | Rating |
|---|---|---|---|
| Loading... | |||
Data powered by ATTOM Data Solutions. Copyright© 2025. Information deemed reliable but not guaranteed.
The schools shown represent both the assigned schools and schools by distance based on local school and district attendance boundaries. Attendance boundaries change based on various factors and proximity does not guarantee enrollment eligibility. Please consult your real estate agent and/or the school district to confirm the schools this property is zoned to attend. Information is deemed reliable but not guaranteed.
SchoolDigger ® Rating
The SchoolDigger rating system is a 1-5 scale with 5 as the highest rating. SchoolDigger ranks schools based on test scores supplied by each state's Department of Education. They calculate an average standard score by normalizing and averaging each school's test scores across all tests and grades.
Coming soon properties will soon be on the market, but are not yet available for showings.