$249,900
12628 Fort King Road Dade City, FL 33525 - TANK LAKE
For Sale MLS# TB8458392
3 beds 2 baths 1,568 sq ft Single Family
Details for 12628 Fort King Road
MLS# TB8458392
Description for 12628 Fort King Road, Dade City, FL, 33525 - TANK LAKE
One of the most affordable WATERFRONT homes in the Dade City area! This doublewide PALM HARBOR home has been refreshed with new interior paint, new laminate flooring, and new exterior vinyl skirting. VERY SECLUDED with very few neighbors. If you love nature then this home will provide endless bird watching opportunities while siting on the expansive front or grilling on the spacious back porch. Situated on 5 waterfront acres on Tank Lake. Grow your own vegetables and raise your own chickens in the very fertile soil. Located just 2 miles from local hospital and high school. Vibrant downtown Dade City is only 3.5 miles away offering dining, breweries, year round events and festivals.
Listing Information
Property Type: Residential, Manufactured Home
Status: Active
Bedrooms: 3
Bathrooms: 2
Lot Size: 5 Acres
Square Feet: 1,568 sq ft
Year Built: 1995
Stories: 1 Story
Construction: Vinyl Siding,Wood Frame
Subdivision: Metes And Bounds
Foundation: Crawlspace
County: Pasco
School Information
Elementary: Pasco Elementary School-Po
Middle: Centennial Middle-Po
High: Pasco High-Po
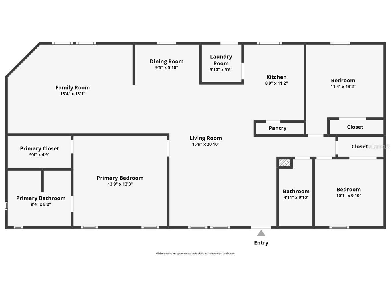
Room Information
Main Floor
Utility Room:
Primary Bedroom:
Kitchen:
Family Room:
Dining Room:
Living Room:
Bathroom 2:
Bedroom 3:
Bedroom 2:
Primary Bathroom:
Bathrooms
Full Baths: 2
Additonal Room Information
Laundry: Inside
Interior Features
Appliances: Dishwasher, Disposal, Range, Refrigerator, Range Hood
Flooring: Laminate,Tile
Basement: Crawl Space
Fireplaces: Wood Burning
Additional Interior Features: Vaulted Ceiling(s)
Utilities
Water: Well
Sewer: Septic Tank
Other Utilities: Electricity Connected,Water Connected
Cooling: Central Air
Heating: Electric, Central
Exterior / Lot Features
Roof: Shingle
Lot View: Lake,Water
Additional Exterior/Lot Features: Other
Waterfront Details
Standard Water Body: TANK LAKE
Water Front Features: Lake Privileges, Lake Front
Driving Directions
I-75 to east on SR52 then left on Fort King Rd to driveway on right at address 12546 FORT KING ROAD follow driveway to 1st left turn then follow to dead end at the home.
Financial Considerations
Terms: Cash,Conventional,FHA,USDA Loan,VA Loan
Tax/Property ID: 21-25-03-000.0-008.00-002.0
Tax Amount: 417.37
Tax Year: 2024
A broker reciprocity listing courtesy: KELLER WILLIAMS RLTY NEW TAMPA
Based on information provided by Stellar MLS as distributed by the MLS GRID. Information from the Internet Data Exchange is provided exclusively for consumers’ personal, non-commercial use, and such information may not be used for any purpose other than to identify prospective properties consumers may be interested in purchasing. This data is deemed reliable but is not guaranteed to be accurate by Edina Realty, Inc., or by the MLS. Edina Realty, Inc., is not a multiple listing service (MLS), nor does it offer MLS access.
Copyright 2025 Stellar MLS as distributed by the MLS GRID. All Rights Reserved.
Payment Calculator
Interest rate and annual percentage rate (APR) are based on current market conditions, are for informational purposes only, are subject to change without notice and may be subject to pricing add-ons related to property type, loan amount, loan-to-value, credit score and other variables. Estimated closing costs used in the APR calculation are assumed to be paid by the borrower at closing. If the closing costs are financed, the loan, APR and payment amounts will be higher. If the down payment is less than 20%, mortgage insurance may be required and could increase the monthly payment and APR. Contact us for details. Additional loan programs may be available. Accuracy is not guaranteed, and all products may not be available in all borrower's geographical areas and are based on their individual situation. This is not a credit decision or a commitment to lend.
Sales History & Tax Summary for 12628 Fort King Road
Sales History
| Date | Price | Change |
|---|---|---|
| Currently not available. | ||
Tax Summary
| Tax Year | Estimated Market Value | Total Tax |
|---|---|---|
| Currently not available. | ||
Data powered by ATTOM Data Solutions. Copyright© 2025. Information deemed reliable but not guaranteed.
Schools
Schools nearby 12628 Fort King Road
| Schools in attendance boundaries | Grades | Distance | Rating |
|---|---|---|---|
| Loading... | |||
| Schools nearby | Grades | Distance | Rating |
|---|---|---|---|
| Loading... | |||
Data powered by ATTOM Data Solutions. Copyright© 2025. Information deemed reliable but not guaranteed.
The schools shown represent both the assigned schools and schools by distance based on local school and district attendance boundaries. Attendance boundaries change based on various factors and proximity does not guarantee enrollment eligibility. Please consult your real estate agent and/or the school district to confirm the schools this property is zoned to attend. Information is deemed reliable but not guaranteed.
SchoolDigger ® Rating
The SchoolDigger rating system is a 1-5 scale with 5 as the highest rating. SchoolDigger ranks schools based on test scores supplied by each state's Department of Education. They calculate an average standard score by normalizing and averaging each school's test scores across all tests and grades.
Coming soon properties will soon be on the market, but are not yet available for showings.