12680 Richezza Drive Venice, FL 34293
For Sale MLS# A4663297
5 beds 4 baths 3,385 sq ft Single Family
Details for 12680 Richezza Drive
MLS# A4663297
Description for 12680 Richezza Drive, Venice, FL, 34293
Big price improvement! Seller wants offers! Spacious Multi-Generational Home in Sought-After Gran Paradiso! This home is eligible for a 2/1 rate buy down with our preferred lender. Enjoy a 2% discount on your interest rate year 1 and and 1% discount in year 2, lender paid! Welcome to this beautifully designed 3,385 sq ft residence located in the luxurious, resort-style community of Gran Paradiso in Venice, FL. Perfectly suited for multi-generational living, this unique floor plan includes a private in-law suite with its own separate entrance, full kitchen, living room, bedroom, and bathroom — ideal for extended family, guests, or rental flexibility. The main level showcases a bright open-concept design, featuring a spacious kitchen with counter seating that flows seamlessly into the dining area and living room — ideal for everyday living and entertaining. Sliding glass doors open to a screened lanai, creating the perfect spot to enjoy your morning coffee or the peaceful Florida evenings. The backyard offers added privacy and plenty of room to build your dream pool. Upstairs, you’ll find four generously sized bedrooms and a versatile loft, perfect for a lounge, gaming area, or media room. The expansive primary suite includes a huge walk-in closet and plenty of space for a private seating area. The ensuite bathroom is complete with a soaking tub, walk-in shower, and dual sinks. A full guest bathroom serves the other 3 bedrooms, all generously sized with plenty of closet storage. This home has been recently upgraded with brand-new laminate flooring throughout — no carpet anywhere! Storm-ready and secure, the home includes a whole-home generator powered by a 500-gallon buried propane tank, along with hurricane shutters for added peace of mind. A 3-car garage with a tandem space provides ample room for vehicles, storage, or a workshop. Gran Paradiso is a gated, amenity-rich community offering residents access to a beach-entry resort-style pool, spa, state-of-the-art fitness center, sauna, clubhouse, tennis and pickleball courts, basketball court, playground, miles of walking trails, and a full-time activities director organizing events and social gatherings year-round. Located just minutes from Wellen Park, the Atlanta Braves Stadium, Gulf Coast beaches, and historic downtown Venice, this home offers the best of Florida living — convenience, community, and comfort. Don’t miss this rare opportunity in one of Southwest Florida’s most desirable communities. Call today to schedule your private tour!
Listing Information
Property Type: Residential, Single Family Residence
Status: Active
Bedrooms: 5
Bathrooms: 4
Lot Size: 0.15 Acres
Square Feet: 3,385 sq ft
Year Built: 2016
Garage: Yes
Stories: 2 Story
Construction: Block,Stucco
Construction Display: New Construction
Subdivision: Gran Paradiso Ph 1
Foundation: Slab
County: Sarasota
Construction Status: New Construction
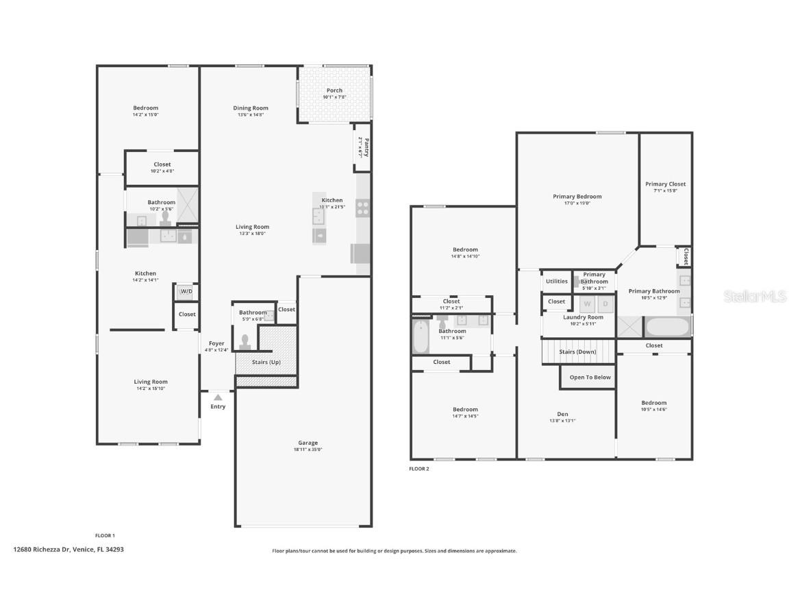
Room Information
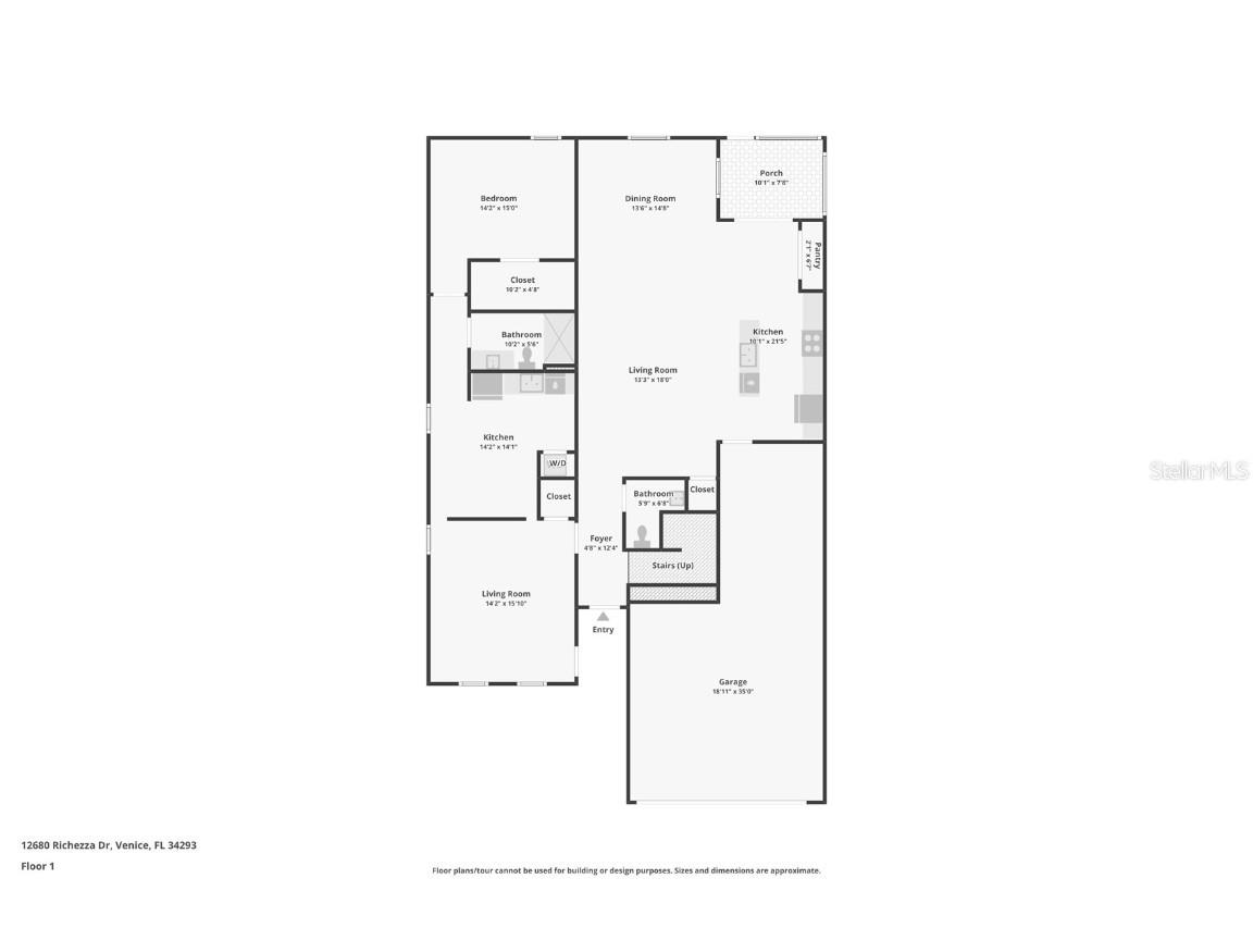
Main Floor
Primary Bedroom: 15x14
Kitchen: 22x10
Great Room: 18x13
Kitchen: 14x14
Living Room: 16x14
Dining Room: 15x14
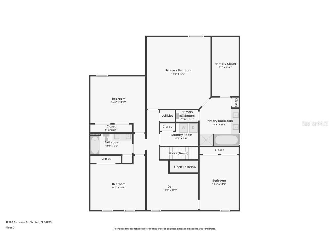
Upper Floor
Loft: 13x14
Bedroom 4: 15x11
Bedroom 3: 15x15
Bedroom 2: 15x15
Primary Bedroom: 19x17
Bathrooms
Full Baths: 3
1/2 Baths: 1
Additonal Room Information
Laundry: Laundry Room
Interior Features
Appliances: Electric Water Heater, Range, Refrigerator, Washer, Microwave, Dishwasher, Dryer
Flooring: Laminate,Tile
Doors/Windows: Window Treatments, Shutters
Additional Interior Features: Loft, Walk-In Closet(s), Living/Dining Room, Built-in Features, Wood Cabinets, Solid Surface Counters, Stone Counters, Open Floorplan, Upper Level Primary, Kitchen/Family Room Combo
Utilities
Water: Public
Sewer: Public Sewer
Other Utilities: Cable Available,Electricity Connected,High Speed Internet Available,Propane,Sewer Connected,Underground Utilities,Water Connected
Cooling: Central Air
Heating: Central, Electric, Propane
Exterior / Lot Features
Attached Garage: Attached Garage
Garage Spaces: 3
Roof: Tile
Pool: Association, Community
Lot View: Garden
Additional Exterior/Lot Features: Rain Gutters, Storm/Security Shutters, Sprinkler/Irrigation, Screened, Rear Porch, Flat, Level, Landscaped, Private Road
Community Features
Community Features: Street Lights, Gated, Fitness, Golf Carts OK, Recreation Area, Community Mailbox, Pool, Lake, Sidewalks, Tennis Court(s), Playground, Clubhouse
Security Features: Gated Community, Gated with Guard
Association Amenities: Security, Clubhouse, Fitness Center, Recreation Facilities, Tennis Court(s), Playground, Cable TV, Pool, Maintenance Grounds, Gated
HOA Dues Include: Maintenance Grounds, Reserve Fund, Road Maintenance, Association Management, Pool(s), Common Areas, Cable TV, Recreation Facilities, Taxes, Security
Homeowners Association: Yes
HOA Dues: $988 / Quarterly
Driving Directions
From Hwy 41, turn east into the community onto Galleria Blvd and stop at guard gate. Turn right onto Renaissance Blvd, left onto Prestigio Blvd, right onto Canavese Ln, left onto Richezza Dr. The home is on the right, 12680.
Financial Considerations
Terms: Cash,Conventional,FHA,VA Loan
Tax/Property ID: 0777025580
Tax Amount: 9521
Tax Year: 2025
A broker reciprocity listing courtesy: EXP REALTY LLC
Based on information provided by Stellar MLS as distributed by the MLS GRID. Information from the Internet Data Exchange is provided exclusively for consumers’ personal, non-commercial use, and such information may not be used for any purpose other than to identify prospective properties consumers may be interested in purchasing. This data is deemed reliable but is not guaranteed to be accurate by Edina Realty, Inc., or by the MLS. Edina Realty, Inc., is not a multiple listing service (MLS), nor does it offer MLS access.
Copyright 2026 Stellar MLS as distributed by the MLS GRID. All Rights Reserved.
Payment Calculator
Interest rate and annual percentage rate (APR) are based on current market conditions, are for informational purposes only, are subject to change without notice and may be subject to pricing add-ons related to property type, loan amount, loan-to-value, credit score and other variables. Estimated closing costs used in the APR calculation are assumed to be paid by the borrower at closing. If the closing costs are financed, the loan, APR and payment amounts will be higher. If the down payment is less than 20%, mortgage insurance may be required and could increase the monthly payment and APR. Contact us for details. Additional loan programs may be available. Accuracy is not guaranteed, and all products may not be available in all borrower's geographical areas and are based on their individual situation. This is not a credit decision or a commitment to lend.
Sales History & Tax Summary for 12680 Richezza Drive
Sales History
| Date | Price | |
|---|---|---|
| Currently not available. | ||
Tax Summary
| Tax Year | Estimated Market Value | Total Tax |
|---|---|---|
| Currently not available. | ||
Data powered by ATTOM Data Solutions. Copyright© 2026. Information deemed reliable but not guaranteed.
Schools
Schools nearby 12680 Richezza Drive
| Schools in attendance boundaries | Grades | Distance | Rating |
|---|---|---|---|
| Loading... | |||
| Schools nearby | Grades | Distance | Rating |
|---|---|---|---|
| Loading... | |||
Data powered by ATTOM Data Solutions. Copyright© 2026. Information deemed reliable but not guaranteed.
The schools shown represent both the assigned schools and schools by distance based on local school and district attendance boundaries. Attendance boundaries change based on various factors and proximity does not guarantee enrollment eligibility. Please consult your real estate agent and/or the school district to confirm the schools this property is zoned to attend. Information is deemed reliable but not guaranteed.
SchoolDigger ® Rating
The SchoolDigger rating system is a 1-5 scale with 5 as the highest rating. SchoolDigger ranks schools based on test scores supplied by each state's Department of Education. They calculate an average standard score by normalizing and averaging each school's test scores across all tests and grades.
Coming soon properties will soon be on the market, but are not yet available for showings.