$249,000
Off-Market Date: 03/23/20261280 Inverness Street Port Charlotte, FL 33952
Pending MLS# C7522692
3 beds 2 baths 1,545 sq ft Single Family
Details for 1280 Inverness Street
MLS# C7522692
Description for 1280 Inverness Street, Port Charlotte, FL, 33952
Under contract-accepting backup offers. Spacious 3/2/2 on Freshwater Canal – X Flood Zone with Major Updates! This light-filled 3-bedroom, 2-bath, 2-car garage home offers an abundance of natural light and a desirable split floor plan for added privacy. Generous closet space throughout the home ensures plenty of storage. The large eat-in kitchen flows seamlessly to a covered and screened patio—perfect for morning coffee or evening relaxation. Mature landscaping enhances privacy, while the expansive backyard offers endless potential to create your own outdoor entertainment paradise. Situated on a peaceful freshwater canal, enjoy tranquil water views, fishing, and Florida wildlife right from your backyard. Best of all, this home is located in an X flood zone, allowing you to enjoy the water without the requirement of flood insurance. Major updates provide peace of mind: 2018: Roof, 2022: Septic tank, 2023: HVAC & impact garage door, 2024: Accordion shutters on all doors and windows, plus stainless steel refrigerator & dishwasher, 2026: Interior and exterior paint, new bedroom carpet, new thermostat, and a brand-new stainless steel stove. Conveniently located just 4 miles from Peachland Promenade and minutes to I-75 for easy commuting. All major big-box stores including Walmart, Target, Home Goods and Home Depot are less than 6 miles away in Murdock Circle, along with additional grocery shopping, drug stores, banking, dining, and entertainment options. This home blends space, updates, location, and true Florida outdoor living—schedule your showing today!
Listing Information
Property Type: Residential, Single Family Residence
Status: Pending
Bedrooms: 3
Bathrooms: 2
Lot Size: 0.23 Acres
Square Feet: 1,545 sq ft
Year Built: 1986
Garage: Yes
Stories: 1 Story
Construction: Block,Stucco
Subdivision: Port Charlotte Sec 012
Foundation: Slab
County: Charlotte
School Information
Elementary: Kingsway
Middle: Port Charlotte Middle
High: Port Charlotte High
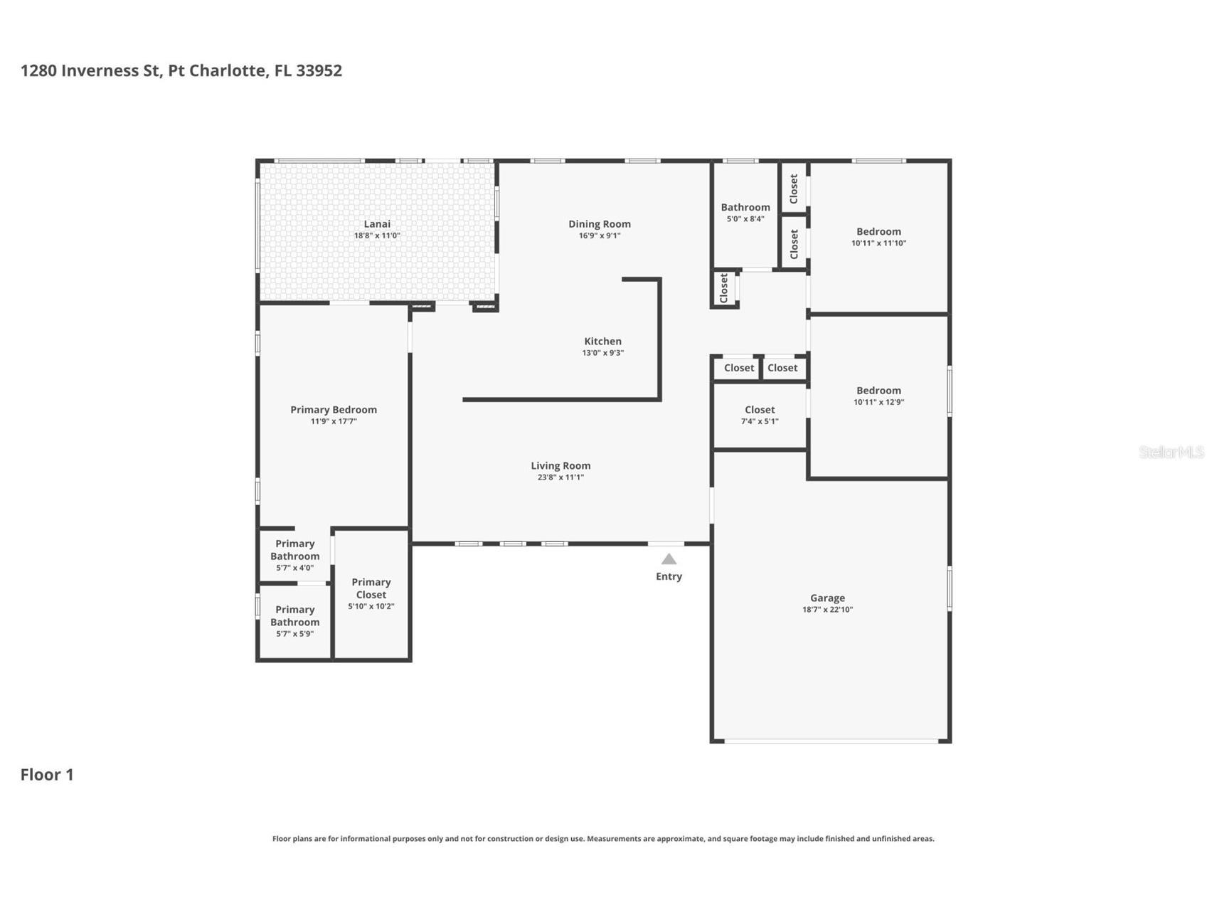
Room Information
Main Floor
Porch: 11x18
Bathroom 2: 8x5
Bedroom 3: 11x10
Bedroom 2: 12x10
Primary Bathroom: 9x10
Primary Bedroom: 17x11
Dining Room: 9x16
Kitchen: 9x13
Living Room: 11x23
Bathrooms
Full Baths: 2
Additonal Room Information
Laundry: In Garage
Interior Features
Appliances: Electric Water Heater, Dishwasher, Range, Refrigerator
Flooring: Carpet,Tile
Doors/Windows: Skylight(s)
Additional Interior Features: Eat-In Kitchen, Split Bedrooms, Walk-In Closet(s), Ceiling Fan(s), Vaulted Ceiling(s), Skylights, Main Level Primary
Utilities
Water: Public
Sewer: Septic Tank
Other Utilities: Cable Available,Electricity Connected,High Speed Internet Available,Water Connected
Cooling: Ceiling Fan(s), Central Air
Heating: Electric, Central
Exterior / Lot Features
Attached Garage: Attached Garage
Garage Spaces: 2
Roof: Shingle
Lot Dimensions: 80x125
Additional Exterior/Lot Features: Storm/Security Shutters, Lighting, Enclosed, Screened, Covered, Rear Porch, Landscaped
Waterfront Details
Water Front Features: Canal Access
Driving Directions
US41S - turn left on Midway, Left on Orlando, Right on Inverness St. - the house is on the left.
Financial Considerations
Terms: Cash,Conventional,FHA,VA Loan
Tax/Property ID: 402212306002
Tax Amount: 4227.05
Tax Year: 2025
A broker reciprocity listing courtesy: REAL BROKER, LLC
Based on information provided by Stellar MLS as distributed by the MLS GRID. Information from the Internet Data Exchange is provided exclusively for consumers’ personal, non-commercial use, and such information may not be used for any purpose other than to identify prospective properties consumers may be interested in purchasing. This data is deemed reliable but is not guaranteed to be accurate by Edina Realty, Inc., or by the MLS. Edina Realty, Inc., is not a multiple listing service (MLS), nor does it offer MLS access.
Copyright 2026 Stellar MLS as distributed by the MLS GRID. All Rights Reserved.
Sales History & Tax Summary for 1280 Inverness Street
Sales History
| Date | Price | |
|---|---|---|
| Currently not available. | ||
Tax Summary
| Tax Year | Estimated Market Value | Total Tax |
|---|---|---|
| Currently not available. | ||
Data powered by ATTOM Data Solutions. Copyright© 2026. Information deemed reliable but not guaranteed.
Schools
Schools nearby 1280 Inverness Street
| Schools in attendance boundaries | Grades | Distance | Rating |
|---|---|---|---|
| Loading... | |||
| Schools nearby | Grades | Distance | Rating |
|---|---|---|---|
| Loading... | |||
Data powered by ATTOM Data Solutions. Copyright© 2026. Information deemed reliable but not guaranteed.
The schools shown represent both the assigned schools and schools by distance based on local school and district attendance boundaries. Attendance boundaries change based on various factors and proximity does not guarantee enrollment eligibility. Please consult your real estate agent and/or the school district to confirm the schools this property is zoned to attend. Information is deemed reliable but not guaranteed.
SchoolDigger ® Rating
The SchoolDigger rating system is a 1-5 scale with 5 as the highest rating. SchoolDigger ranks schools based on test scores supplied by each state's Department of Education. They calculate an average standard score by normalizing and averaging each school's test scores across all tests and grades.
Coming soon properties will soon be on the market, but are not yet available for showings.