$845,000
12803 Darby Ridge Drive Tampa, FL 33624
For Sale MLS# TB8442211
4 beds 3 baths 3,513 sq ft Single Family
Details for 12803 Darby Ridge Drive
MLS# TB8442211
Description for 12803 Darby Ridge Drive, Tampa, FL, 33624
One or more photo(s) has been virtually staged. Discover refined living in the prestigious Carrollwood Crossing community, where this exceptional residence blends timeless design with serene natural surroundings. Perfectly positioned on a private pond conservation lot, the home offers peaceful views and a sense of seclusion rarely found in suburban Tampa. With over 3,500 square feet of thoughtfully designed space, this four-bedroom, three-bathroom home includes a dedicated office, expansive bonus room, and a three-car garage. The open-concept layout is ideal for both intimate gatherings and grand entertaining, with seamless transitions between indoor and outdoor living. The chef’s kitchen is a statement in sophistication, featuring custom cabinetry, granite countertops, stainless steel appliances, recessed lighting, and a generous breakfast bar. Sunlight pours into the adjoining family room, where panoramic views of the pool and conservation create a tranquil backdrop. Retreat to the expansive primary suite, where soaring ceilings and ample space accommodate any design vision. The recently renovated en-suite bath offers spa-like indulgence with dual floating vanities, a soaking tub, a walk-in closet, and a glass-enclosed shower. Step outside to a screened lanai that spans the length of the home, framing a resort-style pool and spa with captivating views of the pond and surrounding greenery. Additional highlights include two brand new HVAC's replaced in 2025, new pool motor in 2025, fresh exterior paint, updated storm windows, a brick-paved driveway, lush landscaping, and a durable tile roof. Located within a top-rated school district and minutes from the Veterans Expressway, upscale shopping, and dining, this rare offering combines luxury, location, and lifestyle. Homes in Carrollwood Crossing are seldom available, schedule your private tour today!
Listing Information
Property Type: Residential, Single Family Residence
Status: Active
Bedrooms: 4
Bathrooms: 3
Lot Size: 0.21 Acres
Square Feet: 3,513 sq ft
Year Built: 2005
Garage: Yes
Stories: 2 Story
Construction: Block,Stucco
Subdivision: Carrollwood Crossing
Foundation: Slab
County: Hillsborough
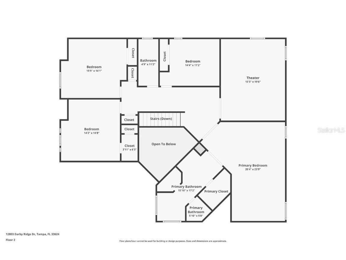
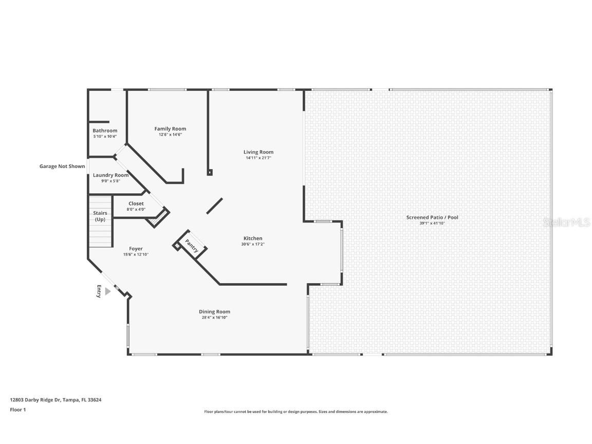
Room Information
Main Floor
Dining Room:
Kitchen:
Living Room:
Upper Floor
Bonus Room: 19x15
Bedroom 4: 14x14
Bedroom 3: 14x15
Bedroom 2: 11x14
Primary Bedroom: 23x20
Bathrooms
Full Baths: 3
Additonal Room Information
Laundry: Laundry Room
Interior Features
Appliances: Electric Water Heater, Washer, Range, Refrigerator, Dishwasher, Disposal, Dryer, Microwave
Flooring: Tile,Wood
Doors/Windows: Storm Window(s)
Additional Interior Features: Eat-In Kitchen, Ceiling Fan(s), Kitchen/Family Room Combo, Upper Level Primary, Stone Counters, Walk-In Closet(s), Living/Dining Room
Utilities
Water: Public
Sewer: Public Sewer
Other Utilities: Cable Available,Electricity Connected,High Speed Internet Available,Sewer Connected
Cooling: Ceiling Fan(s), Central Air
Heating: Central
Exterior / Lot Features
Attached Garage: Attached Garage
Garage Spaces: 3
Roof: Tile
Pool: In Ground, Screen Enclosure, Gunite
Lot View: Pond,Water
Lot Dimensions: 70x130
Additional Exterior/Lot Features: Lighting, Sprinkler/Irrigation, Rear Porch, Screened, Covered, Landscaped
Waterfront Details
Water Front Features: Pond
Community Features
Community Features: Sidewalks
Security Features: Smoke Detector(s)
Homeowners Association: Yes
HOA Dues: $173 / Monthly
Driving Directions
Take N Dale Mabry to Gunn Hwy. Turn on Casey Rd then turn on Lowell Rd. Turn onto Darby Ridge Drive and take it to stop sign and make a right. Home will be on right hand side.
Financial Considerations
Terms: Cash,Conventional,FHA,VA Loan
Tax/Property ID: U-08-28-18-76C-000000-00041.0
Tax Amount: 5966.48
Tax Year: 2024
A broker reciprocity listing courtesy: FUTURE HOME REALTY INC
Based on information provided by Stellar MLS as distributed by the MLS GRID. Information from the Internet Data Exchange is provided exclusively for consumers’ personal, non-commercial use, and such information may not be used for any purpose other than to identify prospective properties consumers may be interested in purchasing. This data is deemed reliable but is not guaranteed to be accurate by Edina Realty, Inc., or by the MLS. Edina Realty, Inc., is not a multiple listing service (MLS), nor does it offer MLS access.
Copyright 2025 Stellar MLS as distributed by the MLS GRID. All Rights Reserved.
Payment Calculator
Interest rate and annual percentage rate (APR) are based on current market conditions, are for informational purposes only, are subject to change without notice and may be subject to pricing add-ons related to property type, loan amount, loan-to-value, credit score and other variables. Estimated closing costs used in the APR calculation are assumed to be paid by the borrower at closing. If the closing costs are financed, the loan, APR and payment amounts will be higher. If the down payment is less than 20%, mortgage insurance may be required and could increase the monthly payment and APR. Contact us for details. Additional loan programs may be available. Accuracy is not guaranteed, and all products may not be available in all borrower's geographical areas and are based on their individual situation. This is not a credit decision or a commitment to lend.
Sales History & Tax Summary for 12803 Darby Ridge Drive
Sales History
| Date | Price | Change |
|---|---|---|
| Currently not available. | ||
Tax Summary
| Tax Year | Estimated Market Value | Total Tax |
|---|---|---|
| Currently not available. | ||
Data powered by ATTOM Data Solutions. Copyright© 2025. Information deemed reliable but not guaranteed.
Schools
Schools nearby 12803 Darby Ridge Drive
| Schools in attendance boundaries | Grades | Distance | Rating |
|---|---|---|---|
| Loading... | |||
| Schools nearby | Grades | Distance | Rating |
|---|---|---|---|
| Loading... | |||
Data powered by ATTOM Data Solutions. Copyright© 2025. Information deemed reliable but not guaranteed.
The schools shown represent both the assigned schools and schools by distance based on local school and district attendance boundaries. Attendance boundaries change based on various factors and proximity does not guarantee enrollment eligibility. Please consult your real estate agent and/or the school district to confirm the schools this property is zoned to attend. Information is deemed reliable but not guaranteed.
SchoolDigger ® Rating
The SchoolDigger rating system is a 1-5 scale with 5 as the highest rating. SchoolDigger ranks schools based on test scores supplied by each state's Department of Education. They calculate an average standard score by normalizing and averaging each school's test scores across all tests and grades.
Coming soon properties will soon be on the market, but are not yet available for showings.