1289 Barrigona Court Naples, FL 34119
For Sale MLS# 225064468
4 beds 3 baths 2,437 sq ft Single Family
Details for 1289 Barrigona Court
MLS# 225064468
Description for 1289 Barrigona Court, Naples, FL, 34119
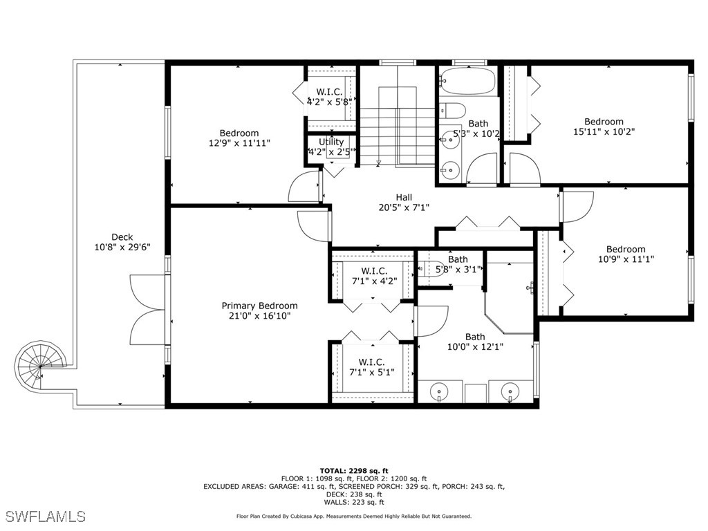
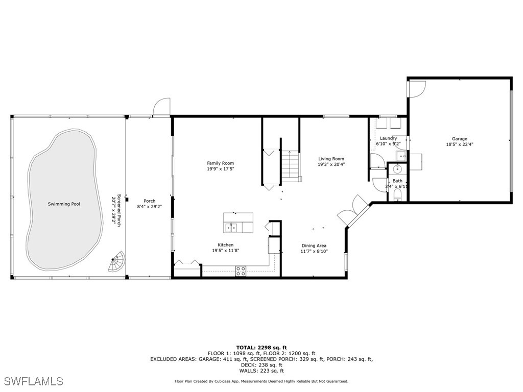
This classic 4 bedroom, 2.5 bath “Monaco” model is ideally located on a quiet cul-de-sac just steps away from the clubhouse and all the ample amenities! This model features a unique second-story balcony, a thoughtful addition that brings extra outdoor space and charm to an already functional floor plan. Step inside to spacious and comfortable main living areas with wood and tile flooring throughout the first floor, neutral finishes, and an abundance of natural light that makes the home feel bright and welcoming. The kitchen has been updated and opens right into the family room, making it perfect for everyday living and entertaining. The first floor is dedicated entirely to living and entertaining space, with no bedrooms located downstairs. Upstairs, you’ll find a spacious primary bedroom offering two walk-in closets, custom dual vanities, and direct access to the balcony overlooking the two story screened-in lanai and pool. The primary bathroom was updated and offers a large shower with double showerhead. The backyard is a private and peaceful setting with a covered patio, heated pool, and above ground spa, all surrounded by beautiful landscaping enhancing privacy and ambiance. This home is in a prime North Naples location, with Logan Landing shopping center just around the corner for convenient access to dining, shopping, and everyday essentials. Zoned for A rated schools, the community also offers a variety of organized neighborhood events that are enjoyable for every resident. Schedule your showing for this unique Monaco model! One or more photo(s) has been virtually staged, AI generated or rendered.
Listing Information
Property Type: Residential, Single Family Residence
Status: Active
Bedrooms: 4
Bathrooms: 3
Lot Size: 0.13 Acres
Square Feet: 2,437 sq ft
Year Built: 2002
Garage: Yes
Stories: 2 Story
Construction: Block,Concrete,Stone,Wood Frame
Subdivision: Saturnia Lakes
Furnished: Yes
County: Collier
Days On Market: 279
Construction Status: Resale
School Information
Elementary: Laurel Oak Elementary School
Middle: Oakridge Middle School
High: Gulf Coast High School
Room Information
Bathrooms
Full Baths: 2
1/2 Baths: 1
Interior Features
Appliances: Ice Maker, Refrigerator, Washer, Dishwasher, Disposal, Dryer, Freezer, Microwave, RefrigeratorWithIce Maker
Flooring: Carpet,Laminate,Tile,Wood
Doors/Windows: Double Hung
Additional Interior Features: Pantry, Split Bedrooms, Cable TV, Breakfast Bar, Built-in Features, Family/Dining Room, French Door(s)/Atrium Door(s), Walk-In Closet(s), Dual Sinks, Separate Shower, Shower Only, Multiple Shower Heads, Living/Dining Room, Upper Level Primary
Utilities
Water: Public
Sewer: Assessment Paid
Other Utilities: Cable Available
Cooling: Electric, Ceiling Fan(s), Central Air
Heating: Central, Electric
Exterior / Lot Features
Attached Garage: Attached Garage
Garage Spaces: 2
Parking Description: Garage, Attached, Garage Door Opener
Roof: Tile
Pool: Community, In Ground
Lot View: Landscaped
Lot Dimensions: 45 x 127 x 45 x 127
Additional Exterior/Lot Features: Shutters Manual, Deck, Deck, Balcony, Porch, Lanai, Screened, Cul-de-Sac
Community Features
Community Features: Street Lights, Gated
Security Features: Security System, Burglar Alarm (Monitored), Key Card Entry, Security Gate, Security Guard, Smoke Detector(s), Gated Community, Gated with Guard
Association Amenities: Management, Sidewalks, Sauna, Business Center, Pool, Tennis Court(s), Clubhouse, Fitness Center, Pickleball, Basketball Court, Spa/Hot Tub, Trail(s), Bike Storage, Billiard Room, Sport Court, Billiards, Park
HOA Dues Include: Street Lights, Maintenance Grounds, Insurance, Irrigation Water, Internet, Cable TV
Homeowners Association: Yes
Driving Directions
Access is only available through the Immokalee Road gate. The Logan Boulevard gate is for residents only. Once through gate take a right on Saturnia Grande Dr followed by a right on Barrigona Ct. Home will be on the left. Be prepared to show gate valid photo ID!
Financial Considerations
Terms: Contract,FHA,VA Loan
Tax/Property ID: 72650002606
Tax Amount: 3022.22
Tax Year: 2024
A broker reciprocity listing courtesy: Downing Frye Realty Inc.
Based on information provided by FGCMLS. Internet Data Exchange information is provided exclusively for consumers’ personal, non-commercial use, and such information may not be used for any purpose other than to identify prospective properties consumers may be interested in purchasing. This data is deemed reliable but is not guaranteed to be accurate by Edina Realty, Inc., or by the MLS. Edina Realty, Inc., is not a multiple listing service (MLS), nor does it offer MLS access.
Copyright 2026 FGCMLS. All Rights Reserved.
Payment Calculator
Interest rate and annual percentage rate (APR) are based on current market conditions, are for informational purposes only, are subject to change without notice and may be subject to pricing add-ons related to property type, loan amount, loan-to-value, credit score and other variables. Estimated closing costs used in the APR calculation are assumed to be paid by the borrower at closing. If the closing costs are financed, the loan, APR and payment amounts will be higher. If the down payment is less than 20%, mortgage insurance may be required and could increase the monthly payment and APR. Contact us for details. Additional loan programs may be available. Accuracy is not guaranteed, and all products may not be available in all borrower's geographical areas and are based on their individual situation. This is not a credit decision or a commitment to lend.
Sales History & Tax Summary for 1289 Barrigona Court
Sales History
| Date | Price | |
|---|---|---|
| Currently not available. | ||
Tax Summary
| Tax Year | Estimated Market Value | Total Tax |
|---|---|---|
| Currently not available. | ||
Data powered by ATTOM Data Solutions. Copyright© 2026. Information deemed reliable but not guaranteed.
Schools
Schools nearby 1289 Barrigona Court
| Schools in attendance boundaries | Grades | Distance | Rating |
|---|---|---|---|
| Loading... | |||
| Schools nearby | Grades | Distance | Rating |
|---|---|---|---|
| Loading... | |||
Data powered by ATTOM Data Solutions. Copyright© 2026. Information deemed reliable but not guaranteed.
The schools shown represent both the assigned schools and schools by distance based on local school and district attendance boundaries. Attendance boundaries change based on various factors and proximity does not guarantee enrollment eligibility. Please consult your real estate agent and/or the school district to confirm the schools this property is zoned to attend. Information is deemed reliable but not guaranteed.
SchoolDigger ® Rating
The SchoolDigger rating system is a 1-5 scale with 5 as the highest rating. SchoolDigger ranks schools based on test scores supplied by each state's Department of Education. They calculate an average standard score by normalizing and averaging each school's test scores across all tests and grades.
Coming soon properties will soon be on the market, but are not yet available for showings.