12904 Darla Drive Riverview, FL 33579
Pending MLS# TB8423347
3 beds 2 baths 1,104 sq ft Single Family
Details for 12904 Darla Drive
MLS# TB8423347
Description for 12904 Darla Drive, Riverview, FL, 33579
Under contract-accepting backup offers. *BUYERS FINANCING FELL THRU! GORGEOUS PROPERTY ! GREAT LOCATION ! NO HOA OR CDD ! NO BACKYARD NEIGHBORS ! FENCED-IN YARD ! VERY PRIVATE SETTING WITH PART OF PROPERTY SITTING ON CONSERVATION AREA ! BRING YOUR RV/BOAT/TRUCK/TRAILERS/PETS AND CHICKENS ! Come See This Beautiful Mobile Home With 3 Bedrooms 2 Bathrooms That Has “Just Over” 1,100+ Square Feet Of Living Area Plus LARGE COVERED CARPORT AND FLORIDA ROOM In Back Of Home ! This Home And Property HAS SOME AMAZING FEATURES: Newer Roof (2022) HVAC (Approx. 8 Years Old) Hot Water Heater (Approx. 5 Years Old) LARGE CIRCULAR DRIVEWAY Front Yard, Nice Size Shed For Additional Storage And Covered Front Porch ! You Can Sit In Your VERY PRIVATE FLORIDA ROOM And Enjoy Relaxing With A Favorite Beverage Or Book ! The Back Yard Offers The Best Of Nature And LIVING THE FLORIDA LIFESTYLE As You Can Entertain Guests/Family/Friends ! There Is Plenty Of Room On This Property To Add A Detached Garage, A Private Pool Or Store Your Vehicles And Adult Recreational Toys ! This Home Has Public Water With Septic Tank So Your Utility Costs Will Be Less ! THIS HOME AND PROPERTY IS A MUST SEE ! Please Call Your Agent Today To Schedule Your Private Showing !
Listing Information
Property Type: Residential, Manufactured Home, Traditional
Status: Pending
Bedrooms: 3
Bathrooms: 2
Lot Size: 1.21 Acres
Square Feet: 1,104 sq ft
Year Built: 1996
Stories: 1 Story
Construction: Vinyl Siding
Construction Display: New Construction
Subdivision: Tropical Acres South Unit 3
Foundation: Crawlspace
County: Hillsborough
Construction Status: New Construction
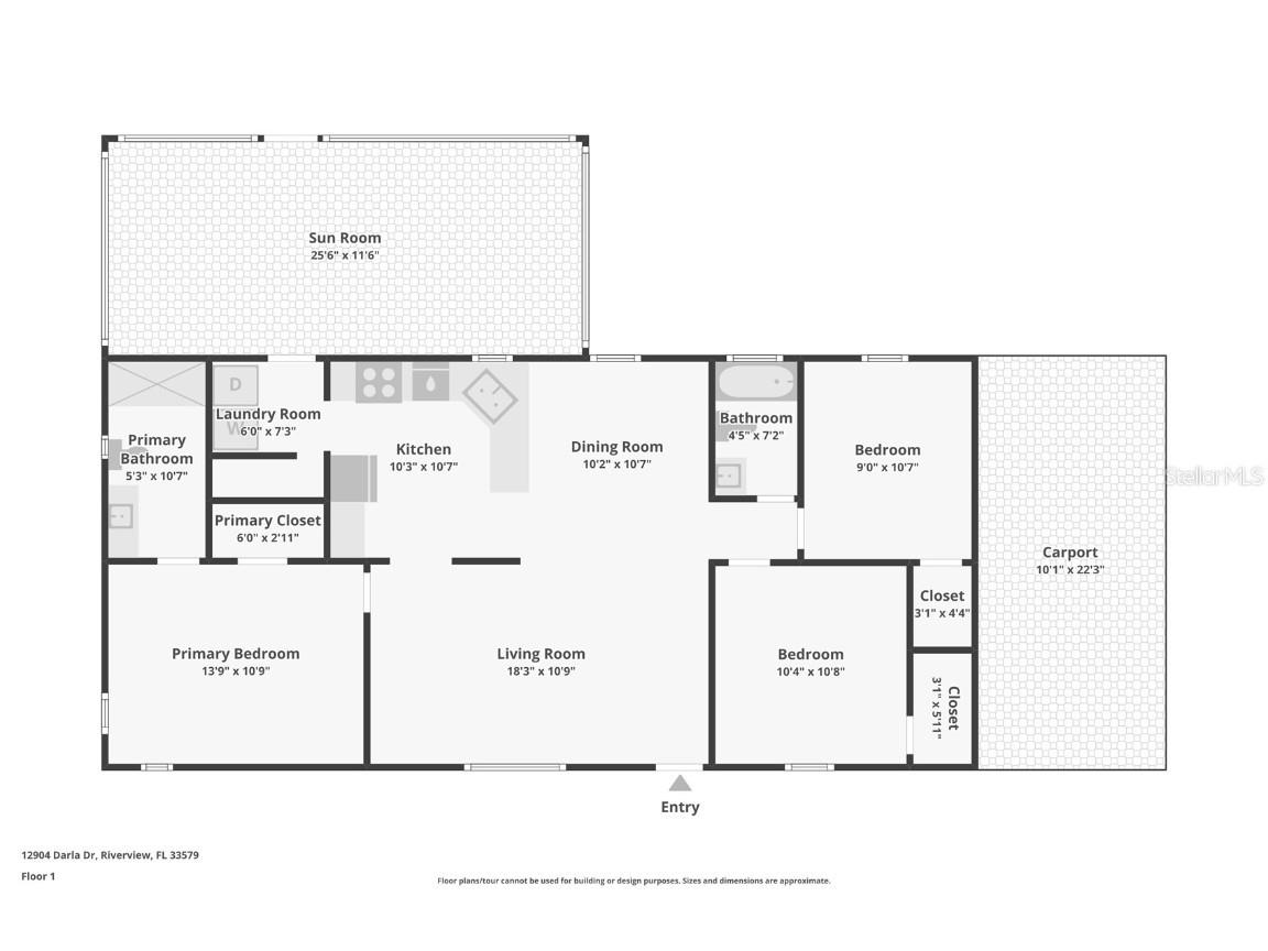
Room Information
Main Floor
Porch: 8x10
Florida Room: 12x25
Laundry: 7x6
Dining Room: 10x10
Bedroom 3: 11x10
Bedroom 2: 11x9
Primary Bedroom: 11x14
Living Room: 11x18
Kitchen: 10x10
Bathrooms
Full Baths: 2
Additonal Room Information
Laundry: Laundry Room, Inside
Interior Features
Appliances: Range, Refrigerator, Dishwasher, Disposal, Range Hood
Flooring: Carpet,Ceramic Tile,Laminate,Linoleum
Basement: Crawl Space
Doors/Windows: Window Treatments
Additional Interior Features: Ceiling Fan(s), Vaulted Ceiling(s), Walk-In Closet(s), Window Treatments, Split Bedrooms, Kitchen/Family Room Combo
Utilities
Water: Public
Sewer: Septic Tank
Other Utilities: Cable Available,Electricity Available,Electricity Connected,High Speed Internet Available,Municipal Utilities,Phone Available,Sewer Available,Sewer Connected,Water Available,Water Connected
Cooling: Central Air, Ceiling Fan(s)
Heating: Central
Exterior / Lot Features
Parking Description: driveway, Circular Driveway
Roof: Shingle
Lot View: Trees/Woods
Lot Dimensions: 434x120
Fencing: Chain Link
Additional Exterior/Lot Features: Rear Porch, Front Porch, Enclosed, Covered, Flat, Level, Landscaped, Conservation Area, Flood Zone, Outside City Limits
Out Buildings: Shed(s)
Driving Directions
Head east on Big Bend to Shelby Dr. Turn left on Shelby. Turn left onto Darla and follow property on right.
Financial Considerations
Terms: Cash,Conventional,FHA,VA Loan
Tax/Property ID: U-02-31-20-2U9-000015-00015.0
Tax Amount: 3236
Tax Year: 2024
A broker reciprocity listing courtesy: FLORIDA EXECUTIVE REALTY
Based on information provided by Stellar MLS as distributed by the MLS GRID. Information from the Internet Data Exchange is provided exclusively for consumers’ personal, non-commercial use, and such information may not be used for any purpose other than to identify prospective properties consumers may be interested in purchasing. This data is deemed reliable but is not guaranteed to be accurate by Edina Realty, Inc., or by the MLS. Edina Realty, Inc., is not a multiple listing service (MLS), nor does it offer MLS access.
Copyright 2026 Stellar MLS as distributed by the MLS GRID. All Rights Reserved.
Sales History & Tax Summary for 12904 Darla Drive
Sales History
| Date | Price | |
|---|---|---|
| Currently not available. | ||
Tax Summary
| Tax Year | Estimated Market Value | Total Tax |
|---|---|---|
| Currently not available. | ||
Data powered by ATTOM Data Solutions. Copyright© 2026. Information deemed reliable but not guaranteed.
Schools
Schools nearby 12904 Darla Drive
| Schools in attendance boundaries | Grades | Distance | Rating |
|---|---|---|---|
| Loading... | |||
| Schools nearby | Grades | Distance | Rating |
|---|---|---|---|
| Loading... | |||
Data powered by ATTOM Data Solutions. Copyright© 2026. Information deemed reliable but not guaranteed.
The schools shown represent both the assigned schools and schools by distance based on local school and district attendance boundaries. Attendance boundaries change based on various factors and proximity does not guarantee enrollment eligibility. Please consult your real estate agent and/or the school district to confirm the schools this property is zoned to attend. Information is deemed reliable but not guaranteed.
SchoolDigger ® Rating
The SchoolDigger rating system is a 1-5 scale with 5 as the highest rating. SchoolDigger ranks schools based on test scores supplied by each state's Department of Education. They calculate an average standard score by normalizing and averaging each school's test scores across all tests and grades.
Coming soon properties will soon be on the market, but are not yet available for showings.