1298 SE Lake Road Arcadia, FL 34266
For Sale MLS# C7511155
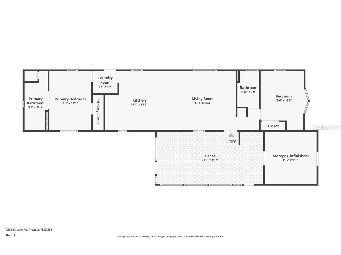
2 beds 2 baths 843 sq ft Single Family
Details for 1298 SE Lake Road
MLS# C7511155
Description for 1298 SE Lake Road, Arcadia, FL, 34266
Looking for a slice of sunny paradise? This gem in a friendly 55+ community has everything you need for easy, breezy Florida living—and it comes with land ownership, no lot rent! With two split bedrooms, two bathrooms, and newer flooring throughout, this home is the perfect retreat for seasonal snowbirds or anyone craving a simpler pace year-round. The open kitchen, living, and dining space is ideal for hosting friends or enjoying peaceful mornings with sunshine pouring in. There’s even an indoor laundry area for added convenience. The screened-in porch is an added bonus along with the serene lake views—a little slice of Old Florida charm right in your backyard. Outside, you’ll appreciate the one-car carport and plenty of room to enjoy the warm breeze. Located less than an hour from I-75, airports, beaches, golf, and top-tier medical care, plus all the antique shops and charm of downtown Arcadia, this home is both a steal and a lifestyle. All this under $90,000? Pack your bags—paradise is calling!
Listing Information
Property Type: Residential, Manufactured Home
Status: Active
Bedrooms: 2
Bathrooms: 2
Lot Size: 0.25 Acres
Square Feet: 843 sq ft
Year Built: 1986
Stories: 1 Story
Construction: Metal Siding
Subdivision: Lake Side Estates
Foundation: Crawlspace
County: Desoto
Room Information
Main Floor
Primary Bedroom: 9x13
Kitchen: 10.5x13
Living Room: 14.5x13
Bathrooms
Full Baths: 2
Additonal Room Information
Laundry: Inside
Interior Features
Appliances: Range, Refrigerator, Washer, Dryer
Flooring: Luxury Vinyl
Basement: Crawl Space
Additional Interior Features: Open Floorplan, Ceiling Fan(s), Eat-In Kitchen, Split Bedrooms
Utilities
Water: Private
Sewer: Septic Tank
Other Utilities: Electricity Connected,Propane,Water Connected
Cooling: Ceiling Fan(s), Wall/Window Unit(s)
Exterior / Lot Features
Roof: Other
Lot View: Lake,Water
Additional Exterior/Lot Features: Storage, Screened, Other, Patio, Outside City Limits
Waterfront Details
Water Front Features: Lake Front
Community Features
HOA Dues Include: Water
Homeowners Association: Yes
HOA Dues: $900 / Annually
Driving Directions
Take HWY 70 E, Turn Right on Airport Rd, Turn Left on Carlstrom Field Rd, Turn Right on Shady Oaks Ave, Turn Left on Rackeweg St, Turn Right on Lake Rd, Property on Right side.
Financial Considerations
Terms: Cash,Conventional
Tax/Property ID: 05-38-25-0211-0000-0120
Tax Amount: 1409.95
Tax Year: 2024
A broker reciprocity listing courtesy: EXP REALTY LLC
Based on information provided by Stellar MLS as distributed by the MLS GRID. Information from the Internet Data Exchange is provided exclusively for consumers’ personal, non-commercial use, and such information may not be used for any purpose other than to identify prospective properties consumers may be interested in purchasing. This data is deemed reliable but is not guaranteed to be accurate by Edina Realty, Inc., or by the MLS. Edina Realty, Inc., is not a multiple listing service (MLS), nor does it offer MLS access.
Copyright 2026 Stellar MLS as distributed by the MLS GRID. All Rights Reserved.
Payment Calculator
Interest rate and annual percentage rate (APR) are based on current market conditions, are for informational purposes only, are subject to change without notice and may be subject to pricing add-ons related to property type, loan amount, loan-to-value, credit score and other variables. Estimated closing costs used in the APR calculation are assumed to be paid by the borrower at closing. If the closing costs are financed, the loan, APR and payment amounts will be higher. If the down payment is less than 20%, mortgage insurance may be required and could increase the monthly payment and APR. Contact us for details. Additional loan programs may be available. Accuracy is not guaranteed, and all products may not be available in all borrower's geographical areas and are based on their individual situation. This is not a credit decision or a commitment to lend.
Sales History & Tax Summary for 1298 SE Lake Road
Sales History
| Date | Price | |
|---|---|---|
| Currently not available. | ||
Tax Summary
| Tax Year | Estimated Market Value | Total Tax |
|---|---|---|
| Currently not available. | ||
Data powered by ATTOM Data Solutions. Copyright© 2026. Information deemed reliable but not guaranteed.
Schools
Schools nearby 1298 SE Lake Road
| Schools in attendance boundaries | Grades | Distance | Rating |
|---|---|---|---|
| Loading... | |||
| Schools nearby | Grades | Distance | Rating |
|---|---|---|---|
| Loading... | |||
Data powered by ATTOM Data Solutions. Copyright© 2026. Information deemed reliable but not guaranteed.
The schools shown represent both the assigned schools and schools by distance based on local school and district attendance boundaries. Attendance boundaries change based on various factors and proximity does not guarantee enrollment eligibility. Please consult your real estate agent and/or the school district to confirm the schools this property is zoned to attend. Information is deemed reliable but not guaranteed.
SchoolDigger ® Rating
The SchoolDigger rating system is a 1-5 scale with 5 as the highest rating. SchoolDigger ranks schools based on test scores supplied by each state's Department of Education. They calculate an average standard score by normalizing and averaging each school's test scores across all tests and grades.
Coming soon properties will soon be on the market, but are not yet available for showings.