13017 N Marsh Drive Port Charlotte, FL 33953
Pending MLS# C7516896
3 beds 2 baths 1,900 sq ft Single Family
Details for 13017 N Marsh Drive
MLS# C7516896
Description for 13017 N Marsh Drive, Port Charlotte, FL, 33953
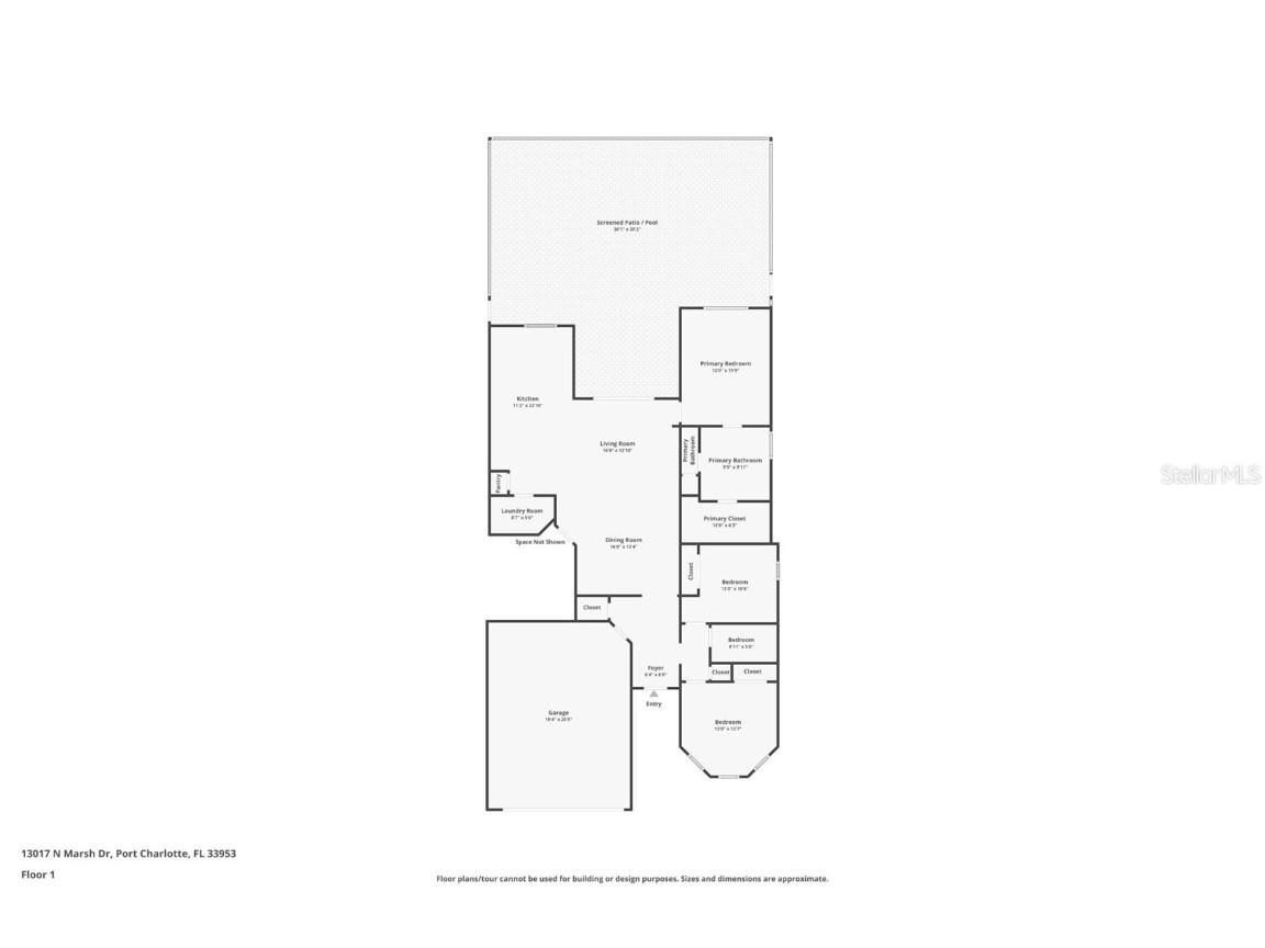
Under contract-accepting backup offers. Set within the private, gated golf course community of Riverwood, this beautifully maintained 3-bedroom plus den, 2-bath home offers the perfect blend of comfort and style. The split, open floor plan features large ceramic tile throughout the main living areas, crown molding, and both tray and coffered ceilings, adding an elegant touch. The kitchen is designed for both everyday living and entertaining, with solid wood cabinets, soft-close drawers, granite countertops, stainless steel appliances, a breakfast bar, and a breakfast nook. Sliders from the living room open to the screened lanai, where a sparkling heated saltwater pool invites you to relax while enjoying peaceful views of the private preserve beyond. A versatile den or office offers flexible space that can easily adapt to your needs. The spacious primary suite features a lovely tray ceiling and provides a serene retreat, complete with a walk-in closet, dual sinks, and an expansive walk-in shower with a built-in bench. The split-bedroom layout ensures privacy, with two comfortable guest rooms on opposite sides of the home. One guest room features a charming bay window that fills the space with natural light, and both share a well-appointed bathroom. Additional highlights include a laundry room with storage, an oversized garage with a utility sink, a new roof (2023), impact windows, and fresh paint outside. The brick driveway and lanai add a classic finishing touch to this lovely home. As part of the vibrant Riverwood community, residents enjoy a par-of-the-72 championship golf course, a state-of-the-art fitness center, a resort-style pool, pickleball courts, Har Tru tennis courts, a dog park, bocce, and more! Beyond the gates, you will find easy access to world-class fishing, boating, waterfront dining, shopping, and the beautiful sandy beaches of the Gulf. Conveniently located between Sarasota and Fort Myers on Florida’s West Coast. This property combines elegance, comfort, and privacy in one of Riverwood’s most desirable settings. Schedule your private showing today and experience it for yourself!
Listing Information
Property Type: Residential, Single Family Residence
Status: Pending
Bedrooms: 3
Bathrooms: 2
Lot Size: 0.24 Acres
Square Feet: 1,900 sq ft
Year Built: 2014
Garage: Yes
Stories: 1 Story
Construction: Block,Stucco
Subdivision: Riverwood
Builder: CENTEX
Foundation: Slab
County: Charlotte
Room Information
Main Floor
Porch: 35x38
Bedroom 3: 12x12
Bedroom 2: 11x10
Primary Bedroom: 13x16
Dining Room: 11x11
Den: 10x10
Kitchen: 10x15
Great Room: 16x21
Bathrooms
Full Baths: 2
Additonal Room Information
Laundry: Laundry Room
Interior Features
Appliances: Electric Water Heater, Microwave, Range, Refrigerator, Dishwasher, Disposal, Dryer, Washer
Flooring: Carpet,Ceramic Tile
Doors/Windows: Storm Window(s)
Additional Interior Features: Walk-In Closet(s), Eat-In Kitchen, Ceiling Fan(s), Crown Molding, High Ceilings, Stone Counters, Main Level Primary, Open Floorplan, Coffered Ceiling(s), Kitchen/Family Room Combo, Split Bedrooms
Utilities
Water: Public
Sewer: Public Sewer
Other Utilities: Cable Available,Electricity Connected,Sewer Connected,Underground Utilities,Water Connected
Cooling: Ceiling Fan(s), Central Air
Heating: Electric
Exterior / Lot Features
Attached Garage: Attached Garage
Garage Spaces: 2
Parking Description: Garage Door Opener, Garage
Roof: Tile
Pool: Association, Heated, Community, In Ground, Salt Water, Screen Enclosure, Gunite
Lot View: Park/Greenbelt,Trees/Woods
Additional Exterior/Lot Features: Sprinkler/Irrigation, Rain Gutters, In-Wall Pest Control System, Rear Porch, Screened, Landscaped, Greenbelt, Near Golf Course
Community Features
Community Features: Fishing, Fitness, Golf Carts OK, Street Lights, Gated, Pool, Sidewalks, Tennis Court(s), Playground, Golf, Clubhouse, Restaurant, Dog Park
Security Features: Gated Community, Gated with Guard
Association Amenities: Recreation Facilities, Tennis Court(s), Playground, Storage, Clubhouse, Fitness Center, Basketball Court, Pool, Maintenance Grounds, Shuffleboard Court, Spa/Hot Tub, Golf Course, Gated, Pickleball
HOA Dues Include: Pool(s), Maintenance Grounds, Recreation Facilities
Homeowners Association: Yes
HOA Dues: $303 / Monthly
Driving Directions
41 To 776 West Travel West Four Miles & Riverwood is on the Right
Financial Considerations
Terms: Cash,Conventional,FHA,VA Loan
Tax/Property ID: 402117160014
Tax Amount: 9522.18
Tax Year: 2024
A broker reciprocity listing courtesy: PEACE HARBOR REAL ESTATE INC.
Based on information provided by Stellar MLS as distributed by the MLS GRID. Information from the Internet Data Exchange is provided exclusively for consumers’ personal, non-commercial use, and such information may not be used for any purpose other than to identify prospective properties consumers may be interested in purchasing. This data is deemed reliable but is not guaranteed to be accurate by Edina Realty, Inc., or by the MLS. Edina Realty, Inc., is not a multiple listing service (MLS), nor does it offer MLS access.
Copyright 2026 Stellar MLS as distributed by the MLS GRID. All Rights Reserved.
Sales History & Tax Summary for 13017 N Marsh Drive
Sales History
| Date | Price | |
|---|---|---|
| Currently not available. | ||
Tax Summary
| Tax Year | Estimated Market Value | Total Tax |
|---|---|---|
| Currently not available. | ||
Data powered by ATTOM Data Solutions. Copyright© 2026. Information deemed reliable but not guaranteed.
Schools
Schools nearby 13017 N Marsh Drive
| Schools in attendance boundaries | Grades | Distance | Rating |
|---|---|---|---|
| Loading... | |||
| Schools nearby | Grades | Distance | Rating |
|---|---|---|---|
| Loading... | |||
Data powered by ATTOM Data Solutions. Copyright© 2026. Information deemed reliable but not guaranteed.
The schools shown represent both the assigned schools and schools by distance based on local school and district attendance boundaries. Attendance boundaries change based on various factors and proximity does not guarantee enrollment eligibility. Please consult your real estate agent and/or the school district to confirm the schools this property is zoned to attend. Information is deemed reliable but not guaranteed.
SchoolDigger ® Rating
The SchoolDigger rating system is a 1-5 scale with 5 as the highest rating. SchoolDigger ranks schools based on test scores supplied by each state's Department of Education. They calculate an average standard score by normalizing and averaging each school's test scores across all tests and grades.
Coming soon properties will soon be on the market, but are not yet available for showings.