13025 Plum Lake Minneola, FL 34715
For Sale MLS# G5101142
4 beds 3 baths 1,960 sq ft Single Family
Details for 13025 Plum Lake
MLS# G5101142
Description for 13025 Plum Lake, Minneola, FL, 34715
**Back on the Market! The more we know, the more you benefit! Completely replumbed AND seller is offering a BRAND NEW ROOF prior to closing!!!** If space is what you've been looking for, look no further! With four bedrooms, three full bathrooms, two living spaces, and a spacious kitchen all situated on over a third of an acre- this house is ready for you to call it home! Located in Plum Lake Estates, you have your pick of schools all within an incredibly short distance including: Grassy Lake Elementary, Minneola Charter, Pinecrest Lakes Academy, and Lake Minneola High School. Pulling into the neighborhood, you'll feel a slower and friendly atmosphere away from the hustle and bustle of city life. The home has a fresh coat of paint, newer flooring, a new septic drainfield (5 years), and a spacious, fenced backyard perfect for play and parties! With almost 2,000 square ft, you'll have space to spread out while still staying connected. This location is highly sought after as it is close to shopping, dining, attractions, the Minneola Turnpike entrance, and so much more. Call to schedule your private showing today!
Listing Information
Property Type: Residential, Manufactured Home
Status: Active
Bedrooms: 4
Bathrooms: 3
Lot Size: 0.38 Acres
Square Feet: 1,960 sq ft
Year Built: 1995
Stories: 1 Story
Construction: Vinyl Siding,Wood Frame
Subdivision: Plum Lake Estates Sub
Foundation: Crawlspace
County: Lake
School Information
Elementary: Grassy Lake Elementary
Middle: East Ridge Middle
High: Lake Minneola High
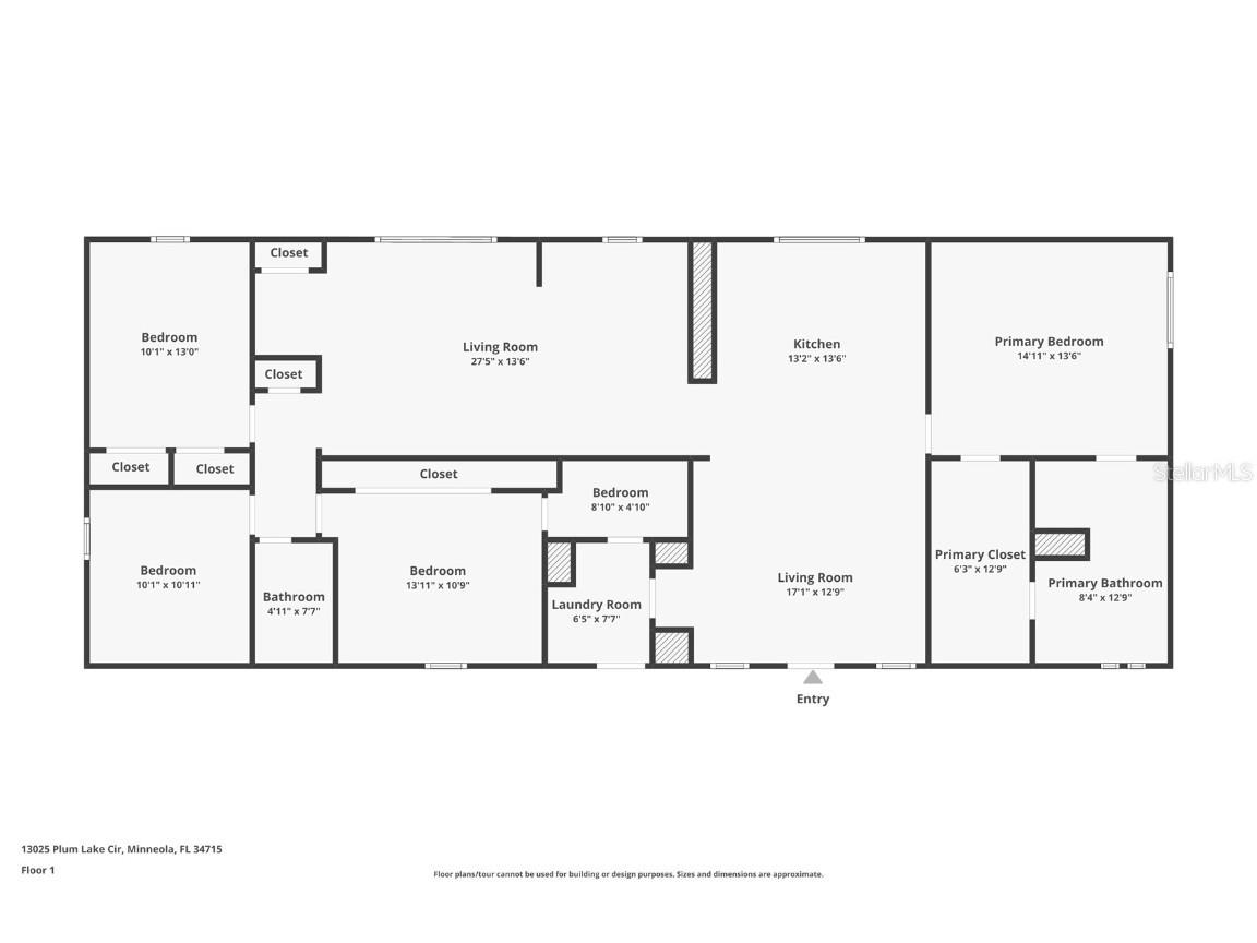
Room Information
Main Floor
Laundry: 6.5x7.7
Kitchen: 13.2x13.6
Family Room: 12.9x17.1
Bathroom 3: 4.1x8.1
Bathroom 2: 4.4x7.7
Bedroom 4: 10.9x13.11
Bedroom 3: 10.1x10.11
Bedroom 2: 10.1x13
Primary Bathroom: 8.4x12.9
Primary Bedroom: 13.6x14.11
Living Room: 13.6x27.5
Bathrooms
Full Baths: 3
Additonal Room Information
Laundry: Inside, Laundry Room
Interior Features
Appliances: Dryer, Dishwasher, Refrigerator, Washer
Flooring: Carpet,Luxury Vinyl,Tile
Basement: Crawl Space
Fireplaces: Electric
Additional Interior Features: Eat-In Kitchen, Ceiling Fan(s), Walk-In Closet(s), Main Level Primary, Kitchen/Family Room Combo
Utilities
Water: Public
Sewer: Septic Tank
Other Utilities: Cable Available,Electricity Connected,Water Connected
Cooling: Ceiling Fan(s), Central Air
Heating: Central
Exterior / Lot Features
Parking Description: driveway
Roof: Shingle
Fencing: Chain Link
Additional Exterior/Lot Features: Lighting, Screened, Side Porch, Covered, Flat, Level, Oversized Lot
Community Features
Community Features: Clubhouse, Boat Facilities, Lake, Dock
Association Amenities: Clubhouse
Homeowners Association: Yes
HOA Dues: $200 / Annually
Driving Directions
From turnpike South going North: Exit 278 on the turnpike. Turn left onto Hancock Rd. then turn right onto Education Ave. Turn left onto Grassy Lake Rd. Turn left onto Plum Lake Circle. Home will be on your left.
Financial Considerations
Terms: Cash,Conventional,FHA,VA Loan
Tax/Property ID: 08-22-26-0200-000-06900
Tax Amount: 3064
Tax Year: 2024
A broker reciprocity listing courtesy: WHEATLEY REALTY GROUP
Based on information provided by Stellar MLS as distributed by the MLS GRID. Information from the Internet Data Exchange is provided exclusively for consumers’ personal, non-commercial use, and such information may not be used for any purpose other than to identify prospective properties consumers may be interested in purchasing. This data is deemed reliable but is not guaranteed to be accurate by Edina Realty, Inc., or by the MLS. Edina Realty, Inc., is not a multiple listing service (MLS), nor does it offer MLS access.
Copyright 2025 Stellar MLS as distributed by the MLS GRID. All Rights Reserved.
Payment Calculator
Interest rate and annual percentage rate (APR) are based on current market conditions, are for informational purposes only, are subject to change without notice and may be subject to pricing add-ons related to property type, loan amount, loan-to-value, credit score and other variables. Estimated closing costs used in the APR calculation are assumed to be paid by the borrower at closing. If the closing costs are financed, the loan, APR and payment amounts will be higher. If the down payment is less than 20%, mortgage insurance may be required and could increase the monthly payment and APR. Contact us for details. Additional loan programs may be available. Accuracy is not guaranteed, and all products may not be available in all borrower's geographical areas and are based on their individual situation. This is not a credit decision or a commitment to lend.
Sales History & Tax Summary for 13025 Plum Lake
Sales History
| Date | Price | Change |
|---|---|---|
| Currently not available. | ||
Tax Summary
| Tax Year | Estimated Market Value | Total Tax |
|---|---|---|
| Currently not available. | ||
Data powered by ATTOM Data Solutions. Copyright© 2025. Information deemed reliable but not guaranteed.
Schools
Schools nearby 13025 Plum Lake
| Schools in attendance boundaries | Grades | Distance | Rating |
|---|---|---|---|
| Loading... | |||
| Schools nearby | Grades | Distance | Rating |
|---|---|---|---|
| Loading... | |||
Data powered by ATTOM Data Solutions. Copyright© 2025. Information deemed reliable but not guaranteed.
The schools shown represent both the assigned schools and schools by distance based on local school and district attendance boundaries. Attendance boundaries change based on various factors and proximity does not guarantee enrollment eligibility. Please consult your real estate agent and/or the school district to confirm the schools this property is zoned to attend. Information is deemed reliable but not guaranteed.
SchoolDigger ® Rating
The SchoolDigger rating system is a 1-5 scale with 5 as the highest rating. SchoolDigger ranks schools based on test scores supplied by each state's Department of Education. They calculate an average standard score by normalizing and averaging each school's test scores across all tests and grades.
Coming soon properties will soon be on the market, but are not yet available for showings.