1306 E Church Street Plant City, FL 33563
For Sale MLS# TB8444572
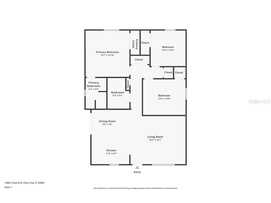
3 beds 2 baths 1,188 sq ft Single Family
Details for 1306 E Church Street
MLS# TB8444572
Description for 1306 E Church Street, Plant City, FL, 33563
One or more photo(s) has been virtually staged. Welcome to this well-kept 3-bedroom, 2-bathroom block home offering comfort and convenience with no flood zone and no HOA. Located just minutes from I-4 and historic downtown Plant City, you’ll enjoy quick access to local shops, dining, and commuter routes. Inside, you’ll find a large eat-in kitchen with a breakfast bar, tile in wet areas, and inside laundry hookups. The primary bathroom features a walk-in shower, and the front porch provides a perfect spot to relax. A Recreation Center is conveniently located nearby.
Listing Information
Property Type: Residential, Single Family Residence
Status: Active
Bedrooms: 3
Bathrooms: 2
Lot Size: 0.12 Acres
Square Feet: 1,188 sq ft
Year Built: 2006
Stories: 1 Story
Construction: Stucco
Subdivision: Lincoln Park
Foundation: Block
County: Hillsborough
Room Information
Main Floor
Living Room: 14x16
Kitchen: 8x12
Dining Room: 12x8
Bedroom 3: 10x10
Bedroom 2: 10x12
Primary Bedroom: 13x12
Bathrooms
Full Baths: 2
Additonal Room Information
Laundry: Inside, Washer Hookup
Interior Features
Appliances: Cooktop, Dishwasher, Disposal, Refrigerator
Flooring: Carpet,Ceramic Tile
Additional Interior Features: Eat-In Kitchen, Other
Utilities
Water: Public
Sewer: Public Sewer
Other Utilities: Electricity Connected
Cooling: Central Air
Heating: Electric
Exterior / Lot Features
Roof: Shingle
Lot Dimensions: 45x115
Driving Directions
FROM PARK RD W ON BAKER TO S ON MARYLAND TO W ON CHURCH STREET
Financial Considerations
Terms: Cash,Conventional,FHA,VA Loan
Tax/Property ID: P-28-28-22-5BY-000002-00008.0
Tax Amount: 2589.49
Tax Year: 2024
A broker reciprocity listing courtesy: EPIQUE REALTY, INC.
Based on information provided by Stellar MLS as distributed by the MLS GRID. Information from the Internet Data Exchange is provided exclusively for consumers’ personal, non-commercial use, and such information may not be used for any purpose other than to identify prospective properties consumers may be interested in purchasing. This data is deemed reliable but is not guaranteed to be accurate by Edina Realty, Inc., or by the MLS. Edina Realty, Inc., is not a multiple listing service (MLS), nor does it offer MLS access.
Copyright 2025 Stellar MLS as distributed by the MLS GRID. All Rights Reserved.
Payment Calculator
Interest rate and annual percentage rate (APR) are based on current market conditions, are for informational purposes only, are subject to change without notice and may be subject to pricing add-ons related to property type, loan amount, loan-to-value, credit score and other variables. Estimated closing costs used in the APR calculation are assumed to be paid by the borrower at closing. If the closing costs are financed, the loan, APR and payment amounts will be higher. If the down payment is less than 20%, mortgage insurance may be required and could increase the monthly payment and APR. Contact us for details. Additional loan programs may be available. Accuracy is not guaranteed, and all products may not be available in all borrower's geographical areas and are based on their individual situation. This is not a credit decision or a commitment to lend.
Sales History & Tax Summary for 1306 E Church Street
Sales History
| Date | Price | Change |
|---|---|---|
| Currently not available. | ||
Tax Summary
| Tax Year | Estimated Market Value | Total Tax |
|---|---|---|
| Currently not available. | ||
Data powered by ATTOM Data Solutions. Copyright© 2025. Information deemed reliable but not guaranteed.
Schools
Schools nearby 1306 E Church Street
| Schools in attendance boundaries | Grades | Distance | Rating |
|---|---|---|---|
| Loading... | |||
| Schools nearby | Grades | Distance | Rating |
|---|---|---|---|
| Loading... | |||
Data powered by ATTOM Data Solutions. Copyright© 2025. Information deemed reliable but not guaranteed.
The schools shown represent both the assigned schools and schools by distance based on local school and district attendance boundaries. Attendance boundaries change based on various factors and proximity does not guarantee enrollment eligibility. Please consult your real estate agent and/or the school district to confirm the schools this property is zoned to attend. Information is deemed reliable but not guaranteed.
SchoolDigger ® Rating
The SchoolDigger rating system is a 1-5 scale with 5 as the highest rating. SchoolDigger ranks schools based on test scores supplied by each state's Department of Education. They calculate an average standard score by normalizing and averaging each school's test scores across all tests and grades.
Coming soon properties will soon be on the market, but are not yet available for showings.