$345,000
13064 Creekside Lane Port Charlotte, FL 33953
For Sale MLS# D6144804
2 beds 2 baths 1,577 sq ft Single Family
Details for 13064 Creekside Lane
MLS# D6144804
Description for 13064 Creekside Lane, Port Charlotte, FL, 33953
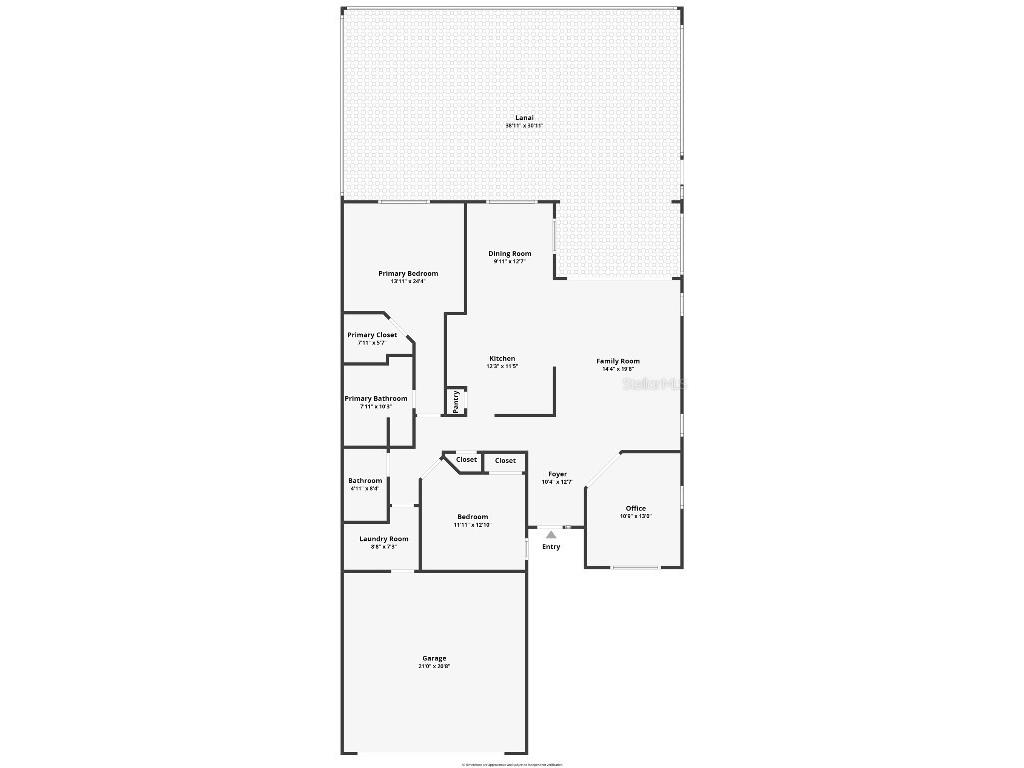
WELCOME to your Slice of Paradise at this stunning 2 Bedroom +Den, 2 Full Bath, Saltwater Pool, Villa home with a 2-Car Garage in the Gorgeous gated Riverwood community. From the paver driveway & walkway, step inside to find a meticulously maintained home complete with today’s trends throughout the home: soaring 10-foot ceilings, 8-foot interior doors, plantation shutters, energy efficient thermopane windows and updated designer ceiling fans. Plus, ceramic tile flooring in all rooms, except for the Guest Bedroom with carpeting. The spacious Living Room offers a perfect setting for entertaining or relaxation. An adjacent Den provides flexible use as workspace, library, craft room or an additional bedroom. Let your culinary adventures come to life in today's kitchen, boasting Stainless Steel appliances, granite countertops, wood Cabinets with 36” upper cabinets with crown molding, and a closet pantry allowing for ample storage space. A comfortable dinette flows seamlessly between the kitchen and living room, with a view of the serene lanai and beautiful pool and deck area. Your private sanctuary is found in the generous primary bedroom and en suite bathroom with a deep walk-in closet and an elegant spa-like bathroom showcasing a wood dual sink vanity with granite counters, upgraded lights and walk-in shower. The guest bedroom is also inviting with upgraded Frieze carpeting and adjacent guest bathroom with a matching wood vanity, granite countertop, upgraded lights and a shower/tub combination. Step outside through sliding glass doors to a very private backyard boasting a beautiful paver lanai with roll down hurricane impact screens, and a paver pool deck with a heated saltwater pool, complete with triple waterfalls, all surrounded by a screened cage. OTHER FEATURES & UPDATES INCLUDE: Pool Heater (2025), Pool Pump (2022), Interior Paint (2024), Microwave (2010), Dishwasher (2020), Water Heater (2024), Utility Sink in a base cabinet in Garage. Roof Inspections (2022 & 2024). ---TURNKEY FURNISHINGS NEGOTIABLE---RIVERWOOD: 1300 acres, gated, golf, resort style community. FITNESS CENTER, PICKLEBALL COURTS, SMALL AND LARGE DOG PARKS! Enjoy all that Riverwood provides in our lush tree lined streets, renovated activity center with all the social activities offered, 6 Har-Tru tennis courts, croquet court Riverwood: 1300 acres, gated, golf, resort style community. NEW RESORT STYLE & LAP POOL. SEPARATE. An Audubon Green Community Award Winner for its natural habitat for Florida Wildlife. Optional amenities: Dog Park, Riverwood Golf Club, Par 72 Championship course & Beach Club on Manasota Key. Close to boating, cultural events, dining, shopping & beautiful beaches of SW FL. Located between Sarasota & Ft Myers on Florida’s West Coast in Paradise!
Listing Information
Property Type: Residential, Villa
Status: Active
Bedrooms: 2
Bathrooms: 2
Lot Size: 0.15 Acres
Square Feet: 1,577 sq ft
Year Built: 2012
Garage: Yes
Stories: 1 Story
Construction: Block,Stucco
Subdivision: Riverwood
Foundation: Slab
County: Charlotte
School Information
Elementary: Liberty Elementary
Middle: Murdock Middle
High: Port Charlotte High
Room Information
Main Floor
Porch: 9x15
Laundry: 15x9
Den: 13x11
Bedroom 2: 11x12
Primary Bedroom: 12x14
Living Room: 20x15
Dinette: 9x10
Kitchen: 11x11
Bathrooms
Full Baths: 2
Additonal Room Information
Laundry: Laundry Room, Inside
Interior Features
Appliances: Electric Water Heater, Microwave, Range, Refrigerator, Dishwasher, Dryer, Washer
Flooring: Carpet,Ceramic Tile,Laminate,Tile
Doors/Windows: Window Treatments, Insulated Windows, Shutters
Additional Interior Features: Walk-In Closet(s), Ceiling Fan(s), Main Level Primary, Open Floorplan, High Ceilings, Living/Dining Room, Window Treatments, Stone Counters
Utilities
Water: Public
Sewer: Public Sewer
Other Utilities: Cable Available,Electricity Connected,High Speed Internet Available,Sewer Connected,Underground Utilities,Water Connected
Cooling: Ceiling Fan(s), Central Air
Heating: Electric, Central
Exterior / Lot Features
Attached Garage: Attached Garage
Garage Spaces: 2
Parking Description: driveway
Roof: Tile
Pool: Association, Heated, In Ground, Community, Salt Water, Screen Enclosure, Gunite
Lot View: Pool,Trees/Woods
Additional Exterior/Lot Features: Storm/Security Shutters, Rain Gutters, Sprinkler/Irrigation, Lighting, Garden, Screened, Covered, Rear Porch, Landscaped, Conservation Area, Near Golf Course, Outside City Limits
Community Features
Community Features: Recreation Area, Fitness, Golf Carts OK, Park, Dog Park, Gated, Pool, Tennis Court(s), Sidewalks, Playground, Golf, Street Lights
Security Features: Gated Community, Gated with Guard, Security Gate, Smoke Detector(s)
Association Amenities: Security, Recreation Facilities, Playground, Fitness Center, Tennis Court(s), Pool, Spa/Hot Tub, Maintenance Grounds, Gated, Pickleball, Park
HOA Dues Include: Reserve Fund, Road Maintenance, Maintenance Structure, Maintenance Grounds, Association Management, Recreation Facilities, Security, Pool(s)
Homeowners Association: Yes
HOA Dues: $573 / Monthly
Driving Directions
From US 41 & 776 head southwest to Riverwood Dr, make a right into the Riverwood Community. After guard gate continue on Riverwood Drive for approx. 2 to a small round-about. Turn Right onto Creekside Ln and follow to the Stillwater Trace villa neighborhood. Villa is on the Left.
Financial Considerations
Terms: Cash,Conventional,VA Loan
Tax/Property ID: 402117103002
Tax Amount: 7131.63
Tax Year: 2025
A broker reciprocity listing courtesy: RIVERWOOD REALTY
Based on information provided by Stellar MLS as distributed by the MLS GRID. Information from the Internet Data Exchange is provided exclusively for consumers’ personal, non-commercial use, and such information may not be used for any purpose other than to identify prospective properties consumers may be interested in purchasing. This data is deemed reliable but is not guaranteed to be accurate by Edina Realty, Inc., or by the MLS. Edina Realty, Inc., is not a multiple listing service (MLS), nor does it offer MLS access.
Copyright 2025 Stellar MLS as distributed by the MLS GRID. All Rights Reserved.
Payment Calculator
Interest rate and annual percentage rate (APR) are based on current market conditions, are for informational purposes only, are subject to change without notice and may be subject to pricing add-ons related to property type, loan amount, loan-to-value, credit score and other variables. Estimated closing costs used in the APR calculation are assumed to be paid by the borrower at closing. If the closing costs are financed, the loan, APR and payment amounts will be higher. If the down payment is less than 20%, mortgage insurance may be required and could increase the monthly payment and APR. Contact us for details. Additional loan programs may be available. Accuracy is not guaranteed, and all products may not be available in all borrower's geographical areas and are based on their individual situation. This is not a credit decision or a commitment to lend.
Sales History & Tax Summary for 13064 Creekside Lane
Sales History
| Date | Price | Change |
|---|---|---|
| Currently not available. | ||
Tax Summary
| Tax Year | Estimated Market Value | Total Tax |
|---|---|---|
| Currently not available. | ||
Data powered by ATTOM Data Solutions. Copyright© 2025. Information deemed reliable but not guaranteed.
Schools
Schools nearby 13064 Creekside Lane
| Schools in attendance boundaries | Grades | Distance | Rating |
|---|---|---|---|
| Loading... | |||
| Schools nearby | Grades | Distance | Rating |
|---|---|---|---|
| Loading... | |||
Data powered by ATTOM Data Solutions. Copyright© 2025. Information deemed reliable but not guaranteed.
The schools shown represent both the assigned schools and schools by distance based on local school and district attendance boundaries. Attendance boundaries change based on various factors and proximity does not guarantee enrollment eligibility. Please consult your real estate agent and/or the school district to confirm the schools this property is zoned to attend. Information is deemed reliable but not guaranteed.
SchoolDigger ® Rating
The SchoolDigger rating system is a 1-5 scale with 5 as the highest rating. SchoolDigger ranks schools based on test scores supplied by each state's Department of Education. They calculate an average standard score by normalizing and averaging each school's test scores across all tests and grades.
Coming soon properties will soon be on the market, but are not yet available for showings.