13074 SW 104th Dunnellon, FL 34432
For Sale MLS# OM711762
3 beds 3 baths 1,818 sq ft Single Family
OPEN HOUSE: Saturday, 12/20 01:00 PM - 03:00 PM
Details for 13074 SW 104th
MLS# OM711762
Description for 13074 SW 104th, Dunnellon, FL, 34432
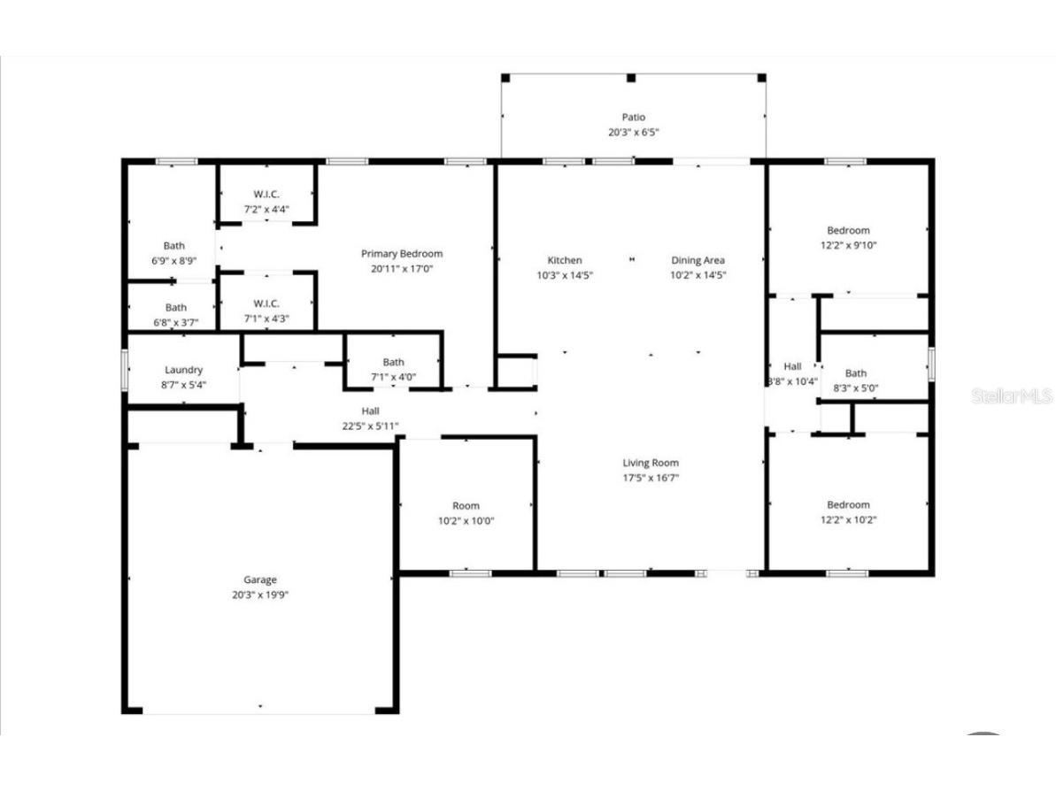
Welcome home to this brand-new construction house built in 2025, offers exceptional quality and thoughtful design spread across 1,818 Sq.Ft. Featuring 3 bedrooms, 2 and a 1/2 bathrooms, and a versatile bonus room, this home was built to exceed expectations. The open floor plan with vaulted ceilings and porcelain tile flooring creates a spacious & elegant feel from the moment you walk in. Kitchen is beautifully appointed with a large center island, 42-inch soft-close cabinets, a walk-in pantry, and quartz countertops that also serve as the backsplash for a seamless look. The primary suite features two walk-in closets and a luxurious ensuite bathroom with double vanities and a custom tile walk-in shower. Split floor plan provides privacy with two additional spacious bedrooms and a full guest bath on the opposite side of the home. The bonus room, located near the half bath and primary bedroom, is ideal for an office, hobby room, or additional bedroom. French doors lead to a tiled rear porch, perfect for relaxing and enjoying the Florida weather. This home is located just minutes from Rainbow Springs State Park, schools, restaurants and stores. For horse lovers the Florida Horse Park is only 17-miles and World Equestrian Center, Ocala is 15-miles away. Designed with attention to detail and modern finishes throughout, this home offers the perfect blend of comfort, style, and convenience. Call us today to schedule a private showing my before it’s too late!
Listing Information
Property Type: Residential, Single Family Residence
Status: Active
Bedrooms: 3
Bathrooms: 3
Lot Size: 0.23 Acres
Square Feet: 1,818 sq ft
Year Built: 2025
Garage: Yes
Stories: 1 Story
Construction: Block,Stucco
Construction Display: New Construction
Subdivision: Rolling Ranch Estate
Builder: DLC Builders Corp
Foundation: Slab
County: Marion
Construction Status: New Construction
School Information
Elementary: Dunnellon Elementary School
Middle: Dunnellon Middle School
High: Dunnellon High School
Room Information
Main Floor
Porch: 20.3x6.5
Office: 10.2x10
Bedroom 3: 12.2x10.2
Bedroom 2: 12.2x9.1
Primary Bedroom: 20.11x17
Kitchen: 14.5x10.3
Living Room: 17.5x16.7
Bathrooms
Full Baths: 2
1/2 Baths: 1
Additonal Room Information
Laundry: Laundry Room, Washer Hookup, Electric Dryer Hookup
Interior Features
Appliances: Electric Water Heater, Range, Refrigerator, Dishwasher
Flooring: Porcelain Tile
Additional Interior Features: Walk-In Closet(s), Eat-In Kitchen, Ceiling Fan(s), High Ceilings, Open Floorplan, Stone Counters
Utilities
Water: Well
Sewer: Septic Tank
Other Utilities: Cable Available,Electricity Connected,High Speed Internet Available,Underground Utilities,Water Connected
Cooling: Ceiling Fan(s), Central Air
Heating: Electric
Exterior / Lot Features
Attached Garage: Attached Garage
Garage Spaces: 2
Roof: Shingle
Lot View: Trees/Woods
Lot Dimensions: 80x125
Additional Exterior/Lot Features: French Patio Doors, Storage, Lighting, Covered, Patio, Front Porch, Flat, Level, Landscaped, Cleared
Community Features
Security Features: Fire Alarm
Driving Directions
Off i75 take a right into SW College Rd, then another right onto SW Hwy 484 in 8.8 miles. Turn right onto SW 136th Court Rd in 3.8 miles, then another right onto SW 106th St in 1.1 miles. Left onto SW 132nd Ave in 0.4 miles and right onto SW 104th Ln and the destination will be on your R in 500ft.
Financial Considerations
Terms: Cash,Conventional,FHA,VA Loan
Tax/Property ID: 3529-063-009
Tax Amount: 191.53
Tax Year: 2024
A broker reciprocity listing courtesy: KELLER WILLIAMS CORNERSTONE RE
Based on information provided by Stellar MLS as distributed by the MLS GRID. Information from the Internet Data Exchange is provided exclusively for consumers’ personal, non-commercial use, and such information may not be used for any purpose other than to identify prospective properties consumers may be interested in purchasing. This data is deemed reliable but is not guaranteed to be accurate by Edina Realty, Inc., or by the MLS. Edina Realty, Inc., is not a multiple listing service (MLS), nor does it offer MLS access.
Copyright 2025 Stellar MLS as distributed by the MLS GRID. All Rights Reserved.
Payment Calculator
Interest rate and annual percentage rate (APR) are based on current market conditions, are for informational purposes only, are subject to change without notice and may be subject to pricing add-ons related to property type, loan amount, loan-to-value, credit score and other variables. Estimated closing costs used in the APR calculation are assumed to be paid by the borrower at closing. If the closing costs are financed, the loan, APR and payment amounts will be higher. If the down payment is less than 20%, mortgage insurance may be required and could increase the monthly payment and APR. Contact us for details. Additional loan programs may be available. Accuracy is not guaranteed, and all products may not be available in all borrower's geographical areas and are based on their individual situation. This is not a credit decision or a commitment to lend.
Sales History & Tax Summary for 13074 SW 104th
Sales History
| Date | Price | Change |
|---|---|---|
| Currently not available. | ||
Tax Summary
| Tax Year | Estimated Market Value | Total Tax |
|---|---|---|
| Currently not available. | ||
Data powered by ATTOM Data Solutions. Copyright© 2025. Information deemed reliable but not guaranteed.
Schools
Schools nearby 13074 SW 104th
| Schools in attendance boundaries | Grades | Distance | Rating |
|---|---|---|---|
| Loading... | |||
| Schools nearby | Grades | Distance | Rating |
|---|---|---|---|
| Loading... | |||
Data powered by ATTOM Data Solutions. Copyright© 2025. Information deemed reliable but not guaranteed.
The schools shown represent both the assigned schools and schools by distance based on local school and district attendance boundaries. Attendance boundaries change based on various factors and proximity does not guarantee enrollment eligibility. Please consult your real estate agent and/or the school district to confirm the schools this property is zoned to attend. Information is deemed reliable but not guaranteed.
SchoolDigger ® Rating
The SchoolDigger rating system is a 1-5 scale with 5 as the highest rating. SchoolDigger ranks schools based on test scores supplied by each state's Department of Education. They calculate an average standard score by normalizing and averaging each school's test scores across all tests and grades.
Coming soon properties will soon be on the market, but are not yet available for showings.