$325,000
13091 Creekside Lane Port Charlotte, FL 33953
For Sale MLS# D6143905
2 beds 2 baths 1,556 sq ft Single Family
Details for 13091 Creekside Lane
MLS# D6143905
Description for 13091 Creekside Lane, Port Charlotte, FL, 33953
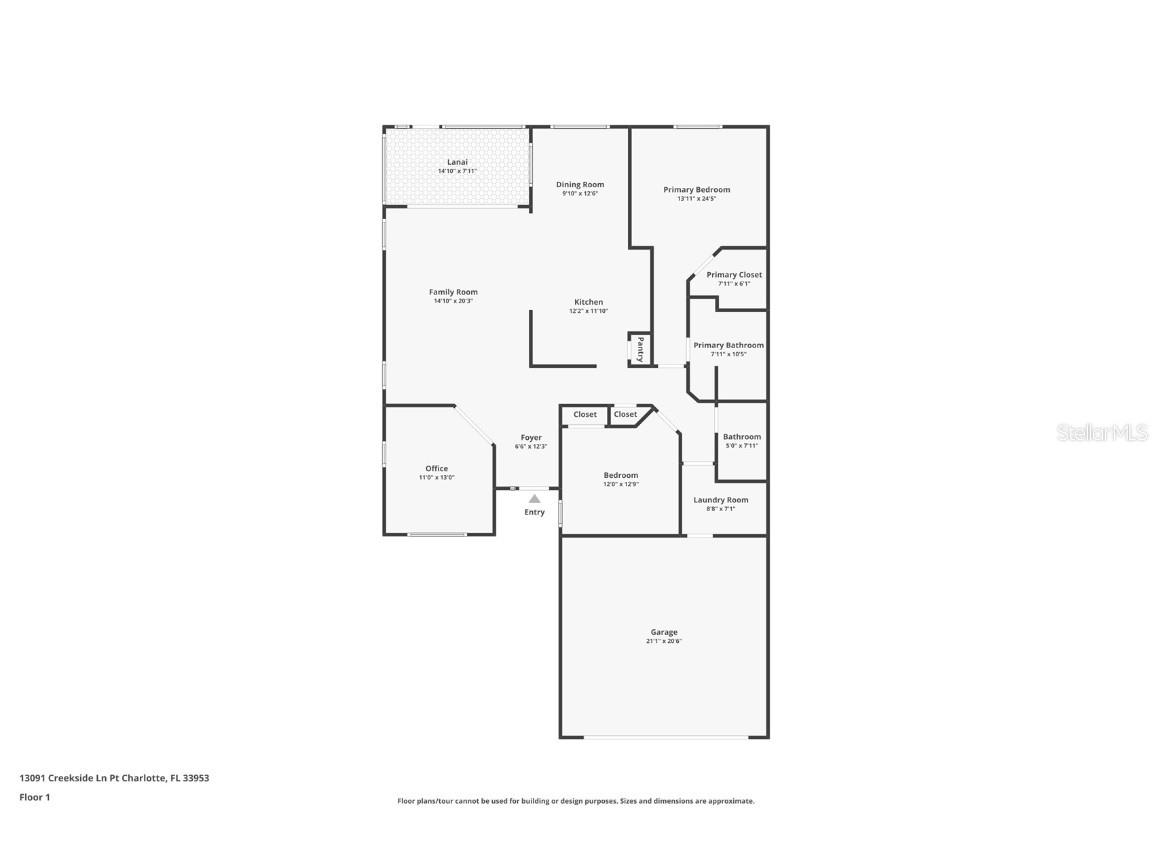
Begin Living the Florida Lifestyle by owning this lovely 2-Bedroom, 2-Bathroom popular VILLA with a versatile Den/Office, located in the private, gated community of Riverwood. Offering scenic water views and a TRANSFERABLE RIVERWOOD BEACH CLUB MEMBERSHIP on Manasota Key, this home offers both comfort and enjoyable Florida outdoor amenities. As you arrive, an oversized paver brick driveway leads to the 2-car garage and sets the tone for this well-maintained property. Inside, the bright and welcoming floor plan features large ceramic tile cut on the diagonal and engineered wood flooring throughout, adding both style and durability. The spacious living room boasts telescoping sliding doors that open to a screened-in patio, where you can relax and enjoy the tranquil water views. Just beyond, a paved outdoor area offers the ideal spot for soaking up the warm Florida sunshine or entertaining guests. The recently updated chef's kitchen is a true highlight, featuring granite countertops, a subway tile backsplash, stainless steel appliances, solid wood cabinets with soft-close drawers, a breakfast bar, and a charming dining nook. The ensuite primary bedroom is a private retreat, complete with a large walk-in closet, double sinks, a walk-in tiled shower, and a garden tub. Your guests will feel at home in the cozy guest bedroom and full bathroom, while French doors at the entry open to a flexible den or office space. Additional features include hurricane protection, a convenient laundry room with storage, and a current, transferable flood insurance policy. Turn-key Furniture Package Available! Call today for a showing. Living in Riverwood means access to exceptional amenities, including a highly acclaimed Par 72 championship golf course, a state-of-the-art fitness center, a resort-style pool with lap lanes and a walk-in shallow end, and a separate hot tub. The community also offers six brand-new pickleball courts and six Har Tru tennis courts. Located conveniently between Sarasota and Fort Myers on Florida’s beautiful West Coast, this home is just minutes from world-class fishing, boating, dining, and shopping. Whether you’re looking for your forever home or a smart investment, this property offers everything you need to enjoy the ultimate Florida lifestyle.
Listing Information
Property Type: Residential, Villa
Status: Active
Bedrooms: 2
Bathrooms: 2
Lot Size: 0.17 Acres
Square Feet: 1,556 sq ft
Year Built: 2010
Garage: Yes
Stories: 1 Story
Construction: Block,Concrete,Stucco
Construction Display: New Construction
Subdivision: Riverwood
Foundation: Block
County: Charlotte
Construction Status: New Construction
School Information
Elementary: Liberty Elementary
Middle: Murdock Middle
High: Port Charlotte High
Room Information
Main Floor
Dinette: 10x10
Bedroom 2: 11x11
Primary Bedroom: 14x13
Den: 11x13
Kitchen: 18x12
Great Room: 13x20
Bathrooms
Full Baths: 2
Additonal Room Information
Laundry: Laundry Room
Interior Features
Appliances: Electric Water Heater, Range, Refrigerator, Washer, Dishwasher, Disposal, Dryer, Microwave
Flooring: Tile,Vinyl
Doors/Windows: Window Treatments, Shutters
Additional Interior Features: Eat-In Kitchen, Ceiling Fan(s), Window Treatments, Built-in Features, High Ceilings, Open Floorplan, Stone Counters, Wood Cabinets
Utilities
Water: Public
Sewer: Public Sewer
Other Utilities: Municipal Utilities,Underground Utilities
Cooling: Ceiling Fan(s), Central Air
Heating: Central
Exterior / Lot Features
Attached Garage: Attached Garage
Garage Spaces: 2
Parking Description: driveway
Roof: Tile
Pool: Community, Association
Lot View: Pond,Water
Additional Exterior/Lot Features: Sprinkler/Irrigation, Screened, Covered, Landscaped, Private Road
Waterfront Details
Water Front Features: Pond
Community Features
Community Features: Clubhouse, Golf, Tennis Court(s), Pool, Sidewalks, Dog Park, Gated, Park, Fitness, Golf Carts OK
Security Features: Gated Community, Gated with Guard
Association Amenities: Security, Clubhouse, Fitness Center, Tennis Court(s), Recreation Facilities, Pool, Pickleball, Spa/Hot Tub, Park, Gated
HOA Dues Include: Insurance, Maintenance Grounds, Sewer, Association Management, Maintenance Structure, Pest Control, Reserve Fund, Common Areas, Water, Recreation Facilities, Trash, Taxes, Security
Homeowners Association: Yes
HOA Dues: $496 / Monthly
Driving Directions
From Port Charlotte head west on 776 El Jobean, turn into Riverwood and stop at security gate for access. Continue on Riverwood Dr and turn right on to Creekside. House is on the right.
Financial Considerations
Terms: Cash,Conventional
Tax/Property ID: 402117127004
Tax Amount: 6702.98
Tax Year: 2024
A broker reciprocity listing courtesy: RIVERWOOD REALTY
Based on information provided by Stellar MLS as distributed by the MLS GRID. Information from the Internet Data Exchange is provided exclusively for consumers’ personal, non-commercial use, and such information may not be used for any purpose other than to identify prospective properties consumers may be interested in purchasing. This data is deemed reliable but is not guaranteed to be accurate by Edina Realty, Inc., or by the MLS. Edina Realty, Inc., is not a multiple listing service (MLS), nor does it offer MLS access.
Copyright 2025 Stellar MLS as distributed by the MLS GRID. All Rights Reserved.
Payment Calculator
Interest rate and annual percentage rate (APR) are based on current market conditions, are for informational purposes only, are subject to change without notice and may be subject to pricing add-ons related to property type, loan amount, loan-to-value, credit score and other variables. Estimated closing costs used in the APR calculation are assumed to be paid by the borrower at closing. If the closing costs are financed, the loan, APR and payment amounts will be higher. If the down payment is less than 20%, mortgage insurance may be required and could increase the monthly payment and APR. Contact us for details. Additional loan programs may be available. Accuracy is not guaranteed, and all products may not be available in all borrower's geographical areas and are based on their individual situation. This is not a credit decision or a commitment to lend.
Sales History & Tax Summary for 13091 Creekside Lane
Sales History
| Date | Price | Change |
|---|---|---|
| Currently not available. | ||
Tax Summary
| Tax Year | Estimated Market Value | Total Tax |
|---|---|---|
| Currently not available. | ||
Data powered by ATTOM Data Solutions. Copyright© 2025. Information deemed reliable but not guaranteed.
Schools
Schools nearby 13091 Creekside Lane
| Schools in attendance boundaries | Grades | Distance | Rating |
|---|---|---|---|
| Loading... | |||
| Schools nearby | Grades | Distance | Rating |
|---|---|---|---|
| Loading... | |||
Data powered by ATTOM Data Solutions. Copyright© 2025. Information deemed reliable but not guaranteed.
The schools shown represent both the assigned schools and schools by distance based on local school and district attendance boundaries. Attendance boundaries change based on various factors and proximity does not guarantee enrollment eligibility. Please consult your real estate agent and/or the school district to confirm the schools this property is zoned to attend. Information is deemed reliable but not guaranteed.
SchoolDigger ® Rating
The SchoolDigger rating system is a 1-5 scale with 5 as the highest rating. SchoolDigger ranks schools based on test scores supplied by each state's Department of Education. They calculate an average standard score by normalizing and averaging each school's test scores across all tests and grades.
Coming soon properties will soon be on the market, but are not yet available for showings.