131 Martinique Road North Port, FL 34287
For Sale MLS# C7497067
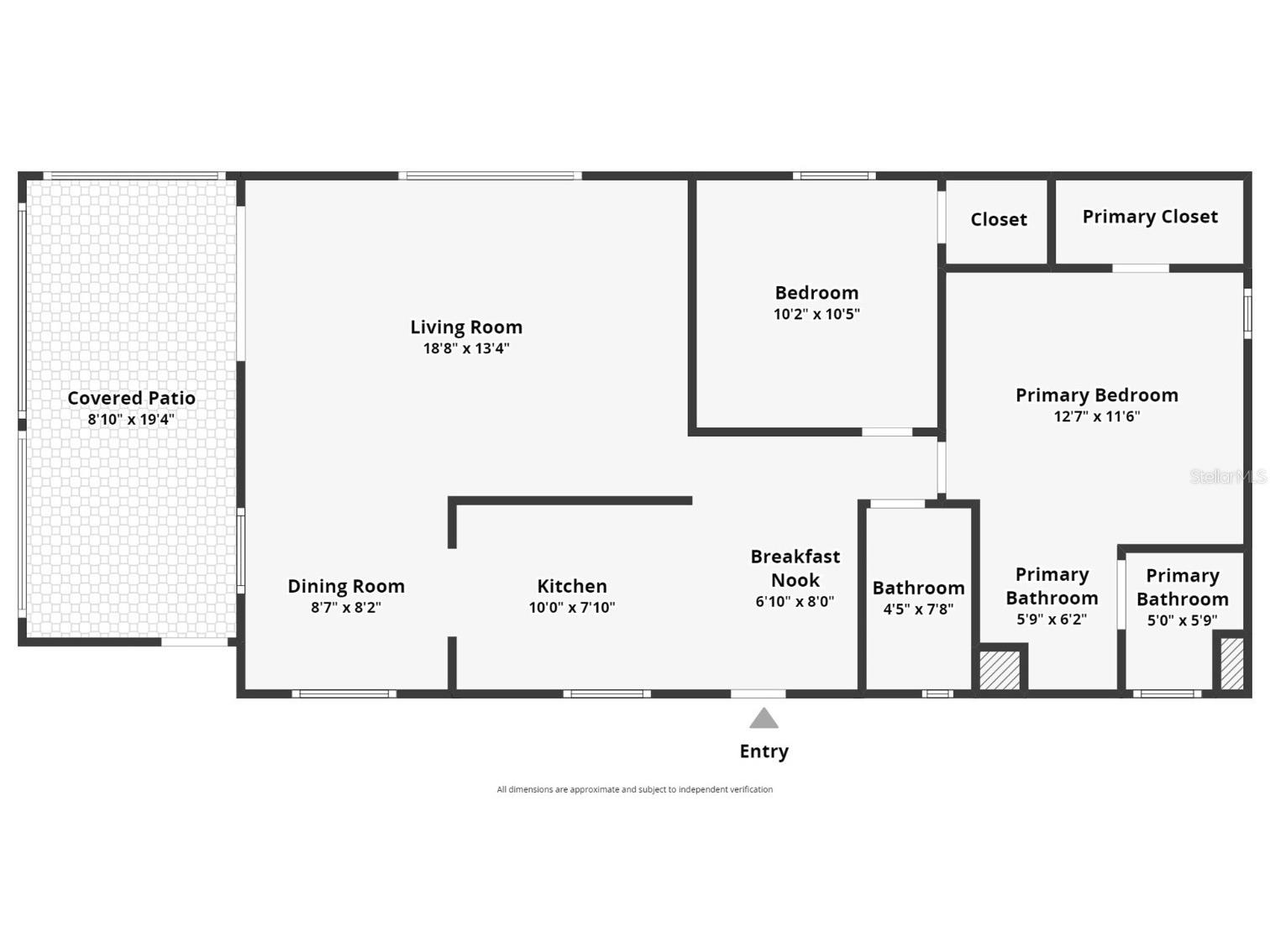
2 beds 2 baths 1,183 sq ft Single Family
Details for 131 Martinique Road
MLS# C7497067
Description for 131 Martinique Road, North Port, FL, 34287
A SUPER CURB APPEAL MOVE-IN-READY 2 bed 2 bath home to enjoy seasonally or full-time! NEW SIDING & SKIRTING, NEWER SUB-FLOOR AND FLOORING, NEW BLINDS! NEW ROOF was installed in 2017. Lifetime roof warranty (transferable to buyers!) NEW 1/2 ROOF replacement in 2023. NEW 2023 ROOF for carport, shed, and lanai! NEW A/C IN 2019! Membership with TriCounty Air transfers to new owners and is valid until January 2026!! NEWER WINDOWS & 4 impact windows replaced in 2015. Lifetime Warranty (transferable to buyer!) on windows, seals and screens. Vapor Barrier-- 2020! All tie-downs replaced in 2014. Contract with Truly Nolan Pest Control is fully paid for until September 2025! This home is as cute as a button, and it comes FURNISHED! Most furnishings, linens, and kitchen equipment are included. Your oasis is ready for you to move right in. Additionally, the golf cart and granny bike are also included. You can quite literally turn the key to the front door and begin your next chapter in Lazy River Village. Well-maintained and well-decorated, this is a dynamite home for a lucky new owner! You're going to love it! Welcome to Lazy River Village! One of the premiere (if not THE best) 55+ waterfront manufactured park in all of Sarasota and Charlotte counties! The BEST amenities, clubs, and selection of activities you will find in any co-op park in all of Sarasota county and even Charlotte County. Lazy River is located on the banks of the beautiful Myakka River. Be prepared to enjoy Florida's wildlife at its finest! The spring training homes of both the Atlanta Braves & the Tampa Bay Rays are just a minutes away. The world-renowned Gulf of Mexico beaches are all within 30 minutes or less! 1) Englewood beach, 2) Casperson Beach (GREAT for shelling), 3) Venice Beach (shark tooth capital of the world), 4) Brohard Paw Park, 5) Nokomis beach (you've GOT to experience the weekly drum circles), 6) the island gem of southwest Florida: Boca Grande... And finally: 7) Siesta Key in Sarasota has been ranked multiple times as the number one beach in the nation and is a mere 35 minutes away. Lazy River Village offers a lifestyle that every retiree dreams of. You have the quaint downtowns of Venice and Punta Gorda--both cities are often ranked as Top 10 destinations in the country for retirement. Another local favorite, Englewood, is a cozy, fun beach town on the Gulf of Mexico. If you enjoy an abundance of activities, you will have plenty to choose from in Lazy River Village: Pickle ball, tennis, bike clubs, card clubs, and pontoon boating. They even have a professional woodworking shop. A low monthly fee of $246 includes all the amenities. There are other amenities for an extra fee, such as a marina slip if your home is not located on the water. The residents of Lazy River Village agree: Lazy River is a community that offers it all. Don't miss your chance to see this home!
Listing Information
Property Type: Residential, Manufactured Home
Status: Active
Bedrooms: 2
Bathrooms: 2
Lot Size: 0.09 Acres
Square Feet: 1,183 sq ft
Year Built: 1981
Stories: 1 Story
Construction: Metal Frame
Subdivision: Lazy River Mhp
Foundation: Pillar/Post/Pier
County: Sarasota
Room Information
Main Floor
Dinette: 8x6.1
Porch: 19.4x8.1
Living Room: 13.4x18.8
Kitchen: 7.1x10
Dining Room: 8.2x8.7
Bedroom 2: 10.5x10.2
Primary Bedroom: 11.6x12.7
Bathrooms
Full Baths: 2
Additonal Room Information
Laundry: Inside
Interior Features
Appliances: Convection Oven, Exhaust Fan, Water Purifier, Electric Water Heater, Microwave, Range, Refrigerator, Washer, Dishwasher, Disposal, Dryer, Freezer
Flooring: Laminate
Doors/Windows: Skylight(s), Window Treatments
Additional Interior Features: Window Treatments, Walk-In Closet(s), Skylights, Ceiling Fan(s), Living/Dining Room, Built-in Features, Solid Surface Counters, Wood Cabinets
Utilities
Water: Public
Sewer: Public Sewer
Other Utilities: Cable Connected,Electricity Connected,High Speed Internet Available,Municipal Utilities,Phone Available,Underground Utilities,Water Connected
Cooling: Ceiling Fan(s), Attic Fan, Central Air
Heating: Central
Exterior / Lot Features
Roof: Roof Over
Pool: Association, Community
Additional Exterior/Lot Features: Rain Gutters, French Patio Doors, Storage, Lighting, Buyer Approval Required
Community Features
Community Features: Fitness, Golf Carts OK, Recreation Area, Water Access, Boat Facilities, Gated, Park, Tennis Court(s), Waterfront, Street Lights
Security Features: Gated Community
Association Amenities: Recreation Facilities, Clubhouse, Fitness Center, Spa/Hot Tub, Tennis Court(s), Pool, Cable TV, Pickleball, Gated, Maintenance Grounds, Park, Shuffleboard Court
HOA Dues Include: Reserve Fund, Maintenance Grounds, Association Management, Common Areas, Pool(s), Internet, Cable TV, Taxes, Recreation Facilities
Homeowners Association: Yes
HOA Dues: $276 / Monthly
Driving Directions
US 41 to 10500 S. Tamiami Trail, North Port
Financial Considerations
Terms: Cash,Conventional
Tax/Property ID: 0789041234
Tax Amount: 1730.15
Tax Year: 2023
A broker reciprocity listing courtesy: RE/MAX PALM REALTY
Based on information provided by Stellar MLS as distributed by the MLS GRID. Information from the Internet Data Exchange is provided exclusively for consumers’ personal, non-commercial use, and such information may not be used for any purpose other than to identify prospective properties consumers may be interested in purchasing. This data is deemed reliable but is not guaranteed to be accurate by Edina Realty, Inc., or by the MLS. Edina Realty, Inc., is not a multiple listing service (MLS), nor does it offer MLS access.
Copyright 2025 Stellar MLS as distributed by the MLS GRID. All Rights Reserved.
Payment Calculator
Interest rate and annual percentage rate (APR) are based on current market conditions, are for informational purposes only, are subject to change without notice and may be subject to pricing add-ons related to property type, loan amount, loan-to-value, credit score and other variables. Estimated closing costs used in the APR calculation are assumed to be paid by the borrower at closing. If the closing costs are financed, the loan, APR and payment amounts will be higher. If the down payment is less than 20%, mortgage insurance may be required and could increase the monthly payment and APR. Contact us for details. Additional loan programs may be available. Accuracy is not guaranteed, and all products may not be available in all borrower's geographical areas and are based on their individual situation. This is not a credit decision or a commitment to lend.
Sales History & Tax Summary for 131 Martinique Road
Sales History
| Date | Price | Change |
|---|---|---|
| Currently not available. | ||
Tax Summary
| Tax Year | Estimated Market Value | Total Tax |
|---|---|---|
| Currently not available. | ||
Data powered by ATTOM Data Solutions. Copyright© 2025. Information deemed reliable but not guaranteed.
Schools
Schools nearby 131 Martinique Road
| Schools in attendance boundaries | Grades | Distance | Rating |
|---|---|---|---|
| Loading... | |||
| Schools nearby | Grades | Distance | Rating |
|---|---|---|---|
| Loading... | |||
Data powered by ATTOM Data Solutions. Copyright© 2025. Information deemed reliable but not guaranteed.
The schools shown represent both the assigned schools and schools by distance based on local school and district attendance boundaries. Attendance boundaries change based on various factors and proximity does not guarantee enrollment eligibility. Please consult your real estate agent and/or the school district to confirm the schools this property is zoned to attend. Information is deemed reliable but not guaranteed.
SchoolDigger ® Rating
The SchoolDigger rating system is a 1-5 scale with 5 as the highest rating. SchoolDigger ranks schools based on test scores supplied by each state's Department of Education. They calculate an average standard score by normalizing and averaging each school's test scores across all tests and grades.
Coming soon properties will soon be on the market, but are not yet available for showings.