$250,000
13101 San Benito Drive Punta Gorda, FL 33955
For Sale MLS# C7522918
2 beds 2 baths 962 sq ft Single Family
Details for 13101 San Benito Drive
MLS# C7522918
Description for 13101 San Benito Drive, Punta Gorda, FL, 33955
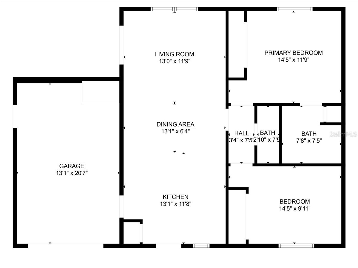
Images shown are from a previously completed model and are provided for reference only. Final design, materials, colors, and features of the subject property may differ. Estimated completion is approximately three weeks from the active date. Skip the stress of building and move right into this brand-new 2-bedroom, 1-and-a-half-bathroom home with an attached garage, nestled in the peaceful rural community of Tropical Gulf Acres. Featuring an open-concept layout with a spacious great room, this home offers versatile living and entertaining space. Interior highlights include elegant wood-look luxury vinyl flooring throughout, tray ceilings in both the great room and primary bedroom, stylish light and ceiling fan fixtures, and recessed lighting for a modern touch. The kitchen is a standout with granite countertops, an abundance of shaker style cabinets, stainless steel appliances, a pantry, built-in buffet, and a breakfast bar that flows seamlessly into the great room—perfect for entertaining guests. The primary suite includes a built-in closet and a private full bath with a granite-topped vanity and linen storage. The guest bedroom also features a built-in closet. Additionally, a half bath in the hall adds to the practicality of the home. The property is further complemented by a single-car garage with ample space and a designated laundry area, providing the perfect combination of functionality and convenience. Hurricane impact windows throughout, provide enhanced storm protection, energy efficiency, and peace of mind year-round. Whether you're enjoying a quiet evening on the patio or entertaining friends in the open and inviting living space, this home is a haven of comfort and style. With its modern amenities, quality finishes, and the charm of being a single-owner property, this residence is ready to welcome its next chapter of memories. Located in a quiet, family-oriented neighborhood with no HOA or CDD. Minutes from historic downtown Punta Gorda, Fisherman's Village Restaurants, shopping, waterfront parks, events, and more. Close to I-75 and US-41. Near two airports: Punta Gorda and Southwest Florida International. Tropical Gulf Acres has a country-like feel, yet in a reasonable commute to Port Charlotte, Fort Myers, or Cape Coral.
Listing Information
Property Type: Residential, Single Family Residence
Status: Active
Bedrooms: 2
Bathrooms: 2
Lot Size: 0.19 Acres
Square Feet: 962 sq ft
Year Built: 2026
Garage: Yes
Stories: 1 Story
Construction: Block,Stucco
Construction Display: New Construction
Subdivision: Trop G A
Foundation: Slab
County: Charlotte
Construction Status: New Construction
Room Information
Main Floor
Bedroom 2: 10x15
Primary Bedroom: 12x15
Kitchen: 12x13
Dining Room: 6x13
Living Room: 12x13
Bathrooms
Full Baths: 1
1/2 Baths: 1
Additonal Room Information
Laundry: In Garage, Inside
Interior Features
Appliances: Electric Water Heater, Microwave, Range, Refrigerator, Dishwasher
Flooring: Luxury Vinyl
Additional Interior Features: Ceiling Fan(s), Tray Ceiling(s), High Ceilings, Main Level Primary, Open Floorplan, Living/Dining Room, Stone Counters
Utilities
Water: Well
Sewer: Septic Tank
Other Utilities: Electricity Available,Electricity Connected
Cooling: Ceiling Fan(s), Central Air
Heating: Central
Exterior / Lot Features
Attached Garage: Attached Garage
Garage Spaces: 1
Parking Description: Garage Door Opener, driveway, Off Street, Garage
Roof: Shingle
Lot View: Trees/Woods
Lot Dimensions: 61X138X60X143
Additional Exterior/Lot Features: Rain Gutters, Lighting, Covered
Driving Directions
FROM US41 SOUTH IN PUNTA GORDA, TURN RIGHT ONTO CHINQUAPIN DR, LEFT ONTO MIZELLA AVE, RIGHT ONTO SAN BENITO DR. HOME IS ON THE RIGHT.
Financial Considerations
Terms: Cash,Conventional,FHA,VA Loan
Tax/Property ID: 422311108030
Tax Amount: 374
Tax Year: 2025
A broker reciprocity listing courtesy: MARINA PARK REALTY LLC
Based on information provided by Stellar MLS as distributed by the MLS GRID. Information from the Internet Data Exchange is provided exclusively for consumers’ personal, non-commercial use, and such information may not be used for any purpose other than to identify prospective properties consumers may be interested in purchasing. This data is deemed reliable but is not guaranteed to be accurate by Edina Realty, Inc., or by the MLS. Edina Realty, Inc., is not a multiple listing service (MLS), nor does it offer MLS access.
Copyright 2026 Stellar MLS as distributed by the MLS GRID. All Rights Reserved.
Payment Calculator
Interest rate and annual percentage rate (APR) are based on current market conditions, are for informational purposes only, are subject to change without notice and may be subject to pricing add-ons related to property type, loan amount, loan-to-value, credit score and other variables. Estimated closing costs used in the APR calculation are assumed to be paid by the borrower at closing. If the closing costs are financed, the loan, APR and payment amounts will be higher. If the down payment is less than 20%, mortgage insurance may be required and could increase the monthly payment and APR. Contact us for details. Additional loan programs may be available. Accuracy is not guaranteed, and all products may not be available in all borrower's geographical areas and are based on their individual situation. This is not a credit decision or a commitment to lend.
Sales History & Tax Summary for 13101 San Benito Drive
Sales History
| Date | Price | |
|---|---|---|
| Currently not available. | ||
Tax Summary
| Tax Year | Estimated Market Value | Total Tax |
|---|---|---|
| Currently not available. | ||
Data powered by ATTOM Data Solutions. Copyright© 2026. Information deemed reliable but not guaranteed.
Schools
Schools nearby 13101 San Benito Drive
| Schools in attendance boundaries | Grades | Distance | Rating |
|---|---|---|---|
| Loading... | |||
| Schools nearby | Grades | Distance | Rating |
|---|---|---|---|
| Loading... | |||
Data powered by ATTOM Data Solutions. Copyright© 2026. Information deemed reliable but not guaranteed.
The schools shown represent both the assigned schools and schools by distance based on local school and district attendance boundaries. Attendance boundaries change based on various factors and proximity does not guarantee enrollment eligibility. Please consult your real estate agent and/or the school district to confirm the schools this property is zoned to attend. Information is deemed reliable but not guaranteed.
SchoolDigger ® Rating
The SchoolDigger rating system is a 1-5 scale with 5 as the highest rating. SchoolDigger ranks schools based on test scores supplied by each state's Department of Education. They calculate an average standard score by normalizing and averaging each school's test scores across all tests and grades.
Coming soon properties will soon be on the market, but are not yet available for showings.