1317 Shinnecock Hills Drive Davenport, FL 33896
For Sale MLS# O6341848
4 beds 4 baths 2,596 sq ft Townhouse/Twinhome
Details for 1317 Shinnecock Hills Drive
MLS# O6341848
Description for 1317 Shinnecock Hills Drive, Davenport, FL, 33896
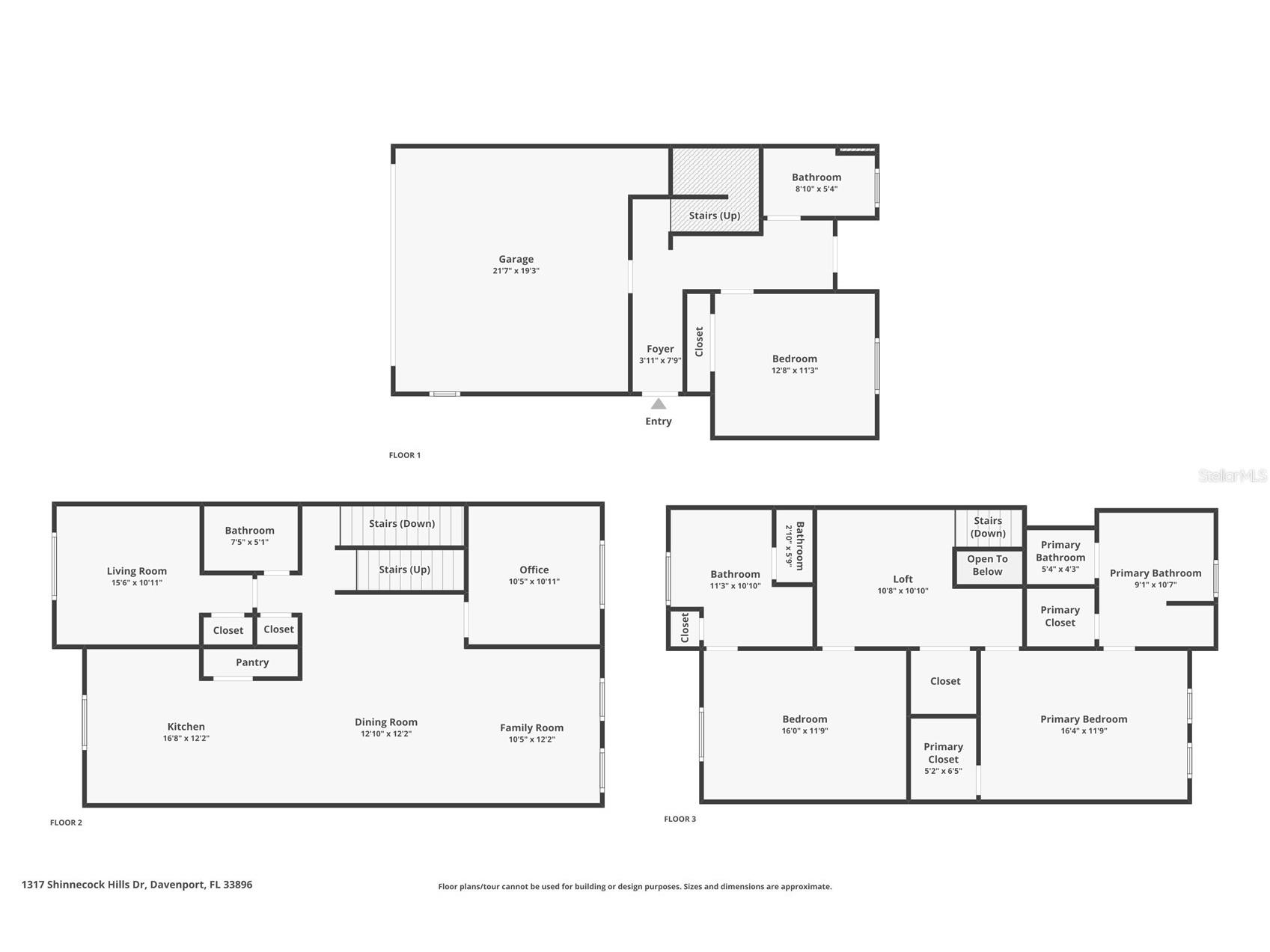
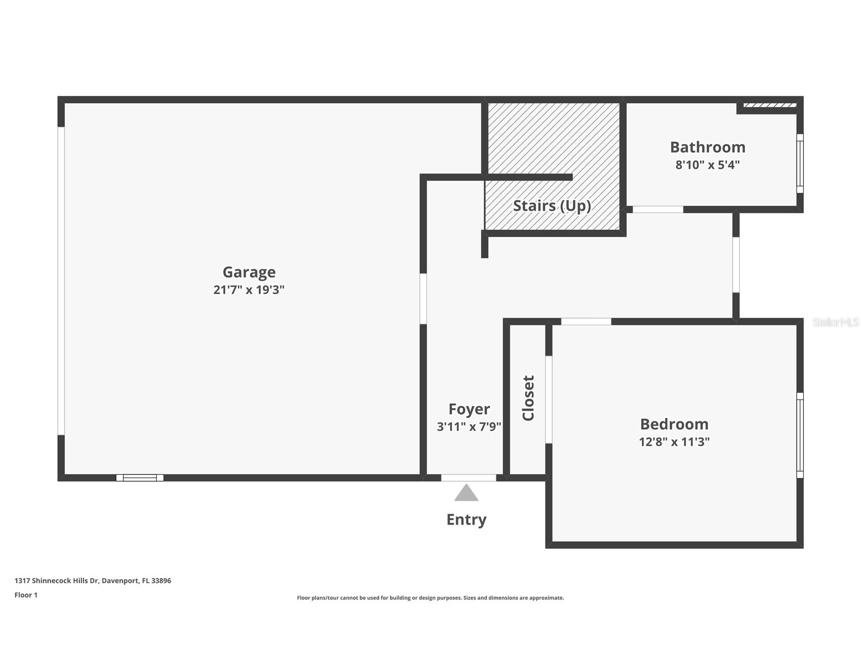
Resort-style living at its finest! This stunning three-story townhome in the highly sought-after Vistas neighborhood of Champions Gate offers the perfect blend of luxury, convenience, and fun—whether you’re looking for a primary residence, vacation retreat, or investment opportunity. Step inside to discover an open and inviting floor plan with 4 spacious bedrooms and 4 full bathrooms, including two master suites with private baths featuring dual sinks, walk-in closets, garden tubs, and separate showers. The second floor boasts a bright, open-concept living and dining area connected to a fully equipped kitchen with granite countertops and stainless steel appliances, ideal for entertaining family and friends. You’ll also enjoy the convenience of an upstairs laundry room and a two-car garage. Living in The Vistas means enjoying exclusive access to world-class amenities. Relax at the resort-style pool and heated spa, unwind in the sauna, play in the game room or golf simulator, or stay active in the state-of-the-art fitness center. Beyond The Vistas Club, residents of Champions Gate have access to two championship golf courses designed by Greg Norman, as well as endless options for dining, shopping, and entertainment just minutes away. Perfectly located just off I-4 at Exit 58, this home provides quick access to 429, 417, and all of Central Florida’s attractions. Walt Disney World, Universal Studios, and International Drive are only a short drive away, and both Orlando and Sanford International Airports are within 45 minutes. Whether you’re relaxing at home, enjoying the amenities, or exploring everything Orlando has to offer, this property delivers a lifestyle that truly feels like a vacation every day. Short term rentals are not permitted.
Listing Information
Property Type: Residential, Townhouse
Status: Active
Bedrooms: 4
Bathrooms: 4
Lot Size: 0.03 Acres
Square Feet: 2,596 sq ft
Year Built: 2015
Garage: Yes
Stories: 3 Story
Construction: Block,Stucco
Property Attached: Yes
Subdivision: Vistas/Championsgate
Foundation: Slab
County: Osceola
Room Information
Upper Floor
Primary Bedroom: 12x16
Kitchen: 12x12
Living Room: 12x14
Bathrooms
Full Baths: 4
Additonal Room Information
Laundry: Inside
Interior Features
Appliances: Microwave, Range, Refrigerator, Dishwasher, Disposal
Flooring: Carpet,Ceramic Tile
Additional Interior Features: High Ceilings, Ceiling Fan(s), Living/Dining Room, Kitchen/Family Room Combo, Solid Surface Counters, Open Floorplan
Utilities
Water: Public
Sewer: Public Sewer
Other Utilities: Cable Connected,Electricity Connected,Sewer Connected,Water Connected
Cooling: Ceiling Fan(s), Central Air
Heating: Central, Electric
Exterior / Lot Features
Attached Garage: Attached Garage
Garage Spaces: 2
Parking Description: driveway, Garage, Garage Door Opener
Roof: Tile
Pool: Community, Association
Additional Exterior/Lot Features: Sprinkler/Irrigation, Level, Flat, Landscaped
Community Features
Community Features: Pool, Sidewalks, Tennis Court(s), Playground, Gated, Fitness, Golf Carts OK, Clubhouse
Security Features: Gated Community, Security System Leased, Smoke Detector(s), Gated with Guard
Association Amenities: Pool, Recreation Facilities, Tennis Court(s), Playground, Gated, Clubhouse
HOA Dues Include: Maintenance Structure, Pool(s), Maintenance Grounds, Recreation Facilities, Trash
Homeowners Association: Yes
HOA Dues: $320 / Monthly
Driving Directions
From I-4 West take exit onto Champions Gate Blvd. Keep right onto Championsgate Blvd. Turn right onto Masters Blvd. Turn left onto White Shark Blvd. Turn right onto Royal Saint George Blvd. Turn right onto Sandwedge St. Turn right onto Shinnecock Hills Dr. Property will be on the left.
Financial Considerations
Terms: Cash,Conventional
Tax/Property ID: 33-25-27-3255-0001-0020
Tax Amount: 3820.36
Tax Year: 2025
A broker reciprocity listing courtesy: STANICA REALTY GROUP
Based on information provided by Stellar MLS as distributed by the MLS GRID. Information from the Internet Data Exchange is provided exclusively for consumers’ personal, non-commercial use, and such information may not be used for any purpose other than to identify prospective properties consumers may be interested in purchasing. This data is deemed reliable but is not guaranteed to be accurate by Edina Realty, Inc., or by the MLS. Edina Realty, Inc., is not a multiple listing service (MLS), nor does it offer MLS access.
Copyright 2026 Stellar MLS as distributed by the MLS GRID. All Rights Reserved.
Payment Calculator
Interest rate and annual percentage rate (APR) are based on current market conditions, are for informational purposes only, are subject to change without notice and may be subject to pricing add-ons related to property type, loan amount, loan-to-value, credit score and other variables. Estimated closing costs used in the APR calculation are assumed to be paid by the borrower at closing. If the closing costs are financed, the loan, APR and payment amounts will be higher. If the down payment is less than 20%, mortgage insurance may be required and could increase the monthly payment and APR. Contact us for details. Additional loan programs may be available. Accuracy is not guaranteed, and all products may not be available in all borrower's geographical areas and are based on their individual situation. This is not a credit decision or a commitment to lend.
Sales History & Tax Summary for 1317 Shinnecock Hills Drive
Sales History
| Date | Price | |
|---|---|---|
| Currently not available. | ||
Tax Summary
| Tax Year | Estimated Market Value | Total Tax |
|---|---|---|
| Currently not available. | ||
Data powered by ATTOM Data Solutions. Copyright© 2026. Information deemed reliable but not guaranteed.
Schools
Schools nearby 1317 Shinnecock Hills Drive
| Schools in attendance boundaries | Grades | Distance | Rating |
|---|---|---|---|
| Loading... | |||
| Schools nearby | Grades | Distance | Rating |
|---|---|---|---|
| Loading... | |||
Data powered by ATTOM Data Solutions. Copyright© 2026. Information deemed reliable but not guaranteed.
The schools shown represent both the assigned schools and schools by distance based on local school and district attendance boundaries. Attendance boundaries change based on various factors and proximity does not guarantee enrollment eligibility. Please consult your real estate agent and/or the school district to confirm the schools this property is zoned to attend. Information is deemed reliable but not guaranteed.
SchoolDigger ® Rating
The SchoolDigger rating system is a 1-5 scale with 5 as the highest rating. SchoolDigger ranks schools based on test scores supplied by each state's Department of Education. They calculate an average standard score by normalizing and averaging each school's test scores across all tests and grades.
Coming soon properties will soon be on the market, but are not yet available for showings.