1320 Moreland Drive #12 Clearwater, FL 33764
For Sale MLS# TB8448901
1 beds 1 baths 720 sq ft Condo
Details for 1320 Moreland Drive #12
MLS# TB8448901
Description for 1320 Moreland Drive #12, Clearwater, FL, 33764
One or more photo(s) has been virtually staged. MAJOR PRICE REDUCTION! Welcome to 1320 Moreland Drive Unit 12, a spacious and light-filled first-floor condo in the heart of Clearwater. This one-bedroom, one-bathroom residence offers nearly 720 square feet of living space and an excellent layout, ideal for those looking to create their own personal haven or seeking a solid investment opportunity. The generously sized living room flows seamlessly into the dining area and kitchen, creating an open feel perfect for entertaining or relaxing at home. The galley-style kitchen is equipped with updated stainless steel appliances, a double sink, and bright cabinetry, providing a solid foundation for future updates. The bedroom offers ample room and closet storage, and the bathroom includes a shower-tub combo and vanity with additional storage. Multiple utility closets throughout the unit add convenience. This condo is in need of flooring and cosmetic updates, presenting the perfect blank slate for customization. The community is well-maintained, with assigned parking, guest spaces, and easy access to nearby shopping, dining, major roadways, and Clearwater’s world-renowned beaches. The monthly condo fee includes water, sewer, trash, exterior maintenance, reserves, and building insurance. The roof was replaced in 2020, the HVAC is estimated to be from 2009, and the electrical panel is original to the unit. The condo is being sold as-is and does not permit short-term rentals; annual leasing is allowed, and one pet up to 25 pounds. Whether you’re a first-time buyer, seasonal resident, or investor, this is a rare opportunity to own in a central Clearwater location with strong long-term potential. Don’t miss your chance to transform this space into something truly special.
Listing Information
Property Type: Residential, Condominium
Status: Active
Bedrooms: 1
Bathrooms: 1
Lot Size: 1 Acres
Square Feet: 720 sq ft
Year Built: 1978
Stories: 1 Story
Construction: Brick,Block
Construction Display: New Construction
Subdivision: Moreland At Morningside Condo
Foundation: Block,Slab
County: Pinellas
Construction Status: Fixer
School Information
Elementary: Belcher Elementary-Pn
Middle: Oak Grove Middle-Pn
High: Clearwater High-Pn
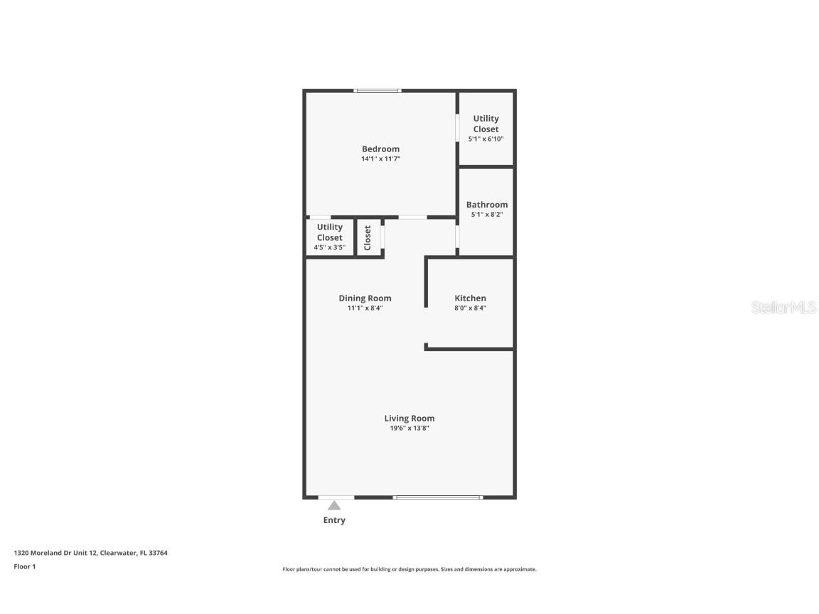
Room Information
Main Floor
Bathroom 1: 8.2x5.1
Primary Bedroom: 11.7x14.1
Kitchen: 8.4x8
Dining Room: 8.4x11.1
Living Room: 13.8x19.6
Bathrooms
Full Baths: 1
Interior Features
Appliances: Range, Refrigerator, Dishwasher, Microwave
Flooring: Concrete,Vinyl
Doors/Windows: Window Treatments
Additional Interior Features: Walk-In Closet(s), Window Treatments, Ceiling Fan(s), Living/Dining Room, Open Floorplan, Stone Counters
Utilities
Water: Public
Sewer: Public Sewer
Other Utilities: Electricity Connected,Sewer Connected,Water Connected
Cooling: Ceiling Fan(s), Central Air
Heating: Central
Exterior / Lot Features
Parking Description: Guest, Assigned
Roof: Shingle
Additional Exterior/Lot Features: Lighting, Front Porch, Covered, Landscaped, City Lot
Community Features
Community Features: Sidewalks
HOA Dues Include: Trash, Water, Sewer, Maintenance Grounds, Pest Control, Maintenance Structure
Driving Directions
Get on I-75 S, Follow I-275 S to FL-690/Gateway Expy in St. Petersburg., Take exit 30 for FL-690 W toward US 19/St Pete - Clwtr Intl Aiport, Continue onto FL-690/Gateway Expy, Keep right to stay on FL-690/Gateway Expy, Keep left to stay on FL-690/Gateway Expy, Merge onto US-19 N, Take the exit toward Seville Blvd, Merge onto U.S. 19 Frontage Rd, Slight left toward U.S. 19 Frontage Rd, Merge onto U.S. 19 Frontage Rd, Turn right onto Harn Blvd, At the traffic circle, take the 1st exit onto Summerlin Dr, Summerlin Dr turns left and becomes Moreland Dr, Keep right, Turn left.
Financial Considerations
Terms: Cash,Conventional
Tax/Property ID: 19-29-16-58928-002-0120
Tax Amount: 4.74
Tax Year: 2025
A broker reciprocity listing courtesy: 54 REALTY LLC
Based on information provided by Stellar MLS as distributed by the MLS GRID. Information from the Internet Data Exchange is provided exclusively for consumers’ personal, non-commercial use, and such information may not be used for any purpose other than to identify prospective properties consumers may be interested in purchasing. This data is deemed reliable but is not guaranteed to be accurate by Edina Realty, Inc., or by the MLS. Edina Realty, Inc., is not a multiple listing service (MLS), nor does it offer MLS access.
Copyright 2025 Stellar MLS as distributed by the MLS GRID. All Rights Reserved.
Payment Calculator
Interest rate and annual percentage rate (APR) are based on current market conditions, are for informational purposes only, are subject to change without notice and may be subject to pricing add-ons related to property type, loan amount, loan-to-value, credit score and other variables. Estimated closing costs used in the APR calculation are assumed to be paid by the borrower at closing. If the closing costs are financed, the loan, APR and payment amounts will be higher. If the down payment is less than 20%, mortgage insurance may be required and could increase the monthly payment and APR. Contact us for details. Additional loan programs may be available. Accuracy is not guaranteed, and all products may not be available in all borrower's geographical areas and are based on their individual situation. This is not a credit decision or a commitment to lend.
Sales History & Tax Summary for 1320 Moreland Drive #12
Sales History
| Date | Price | Change |
|---|---|---|
| Currently not available. | ||
Tax Summary
| Tax Year | Estimated Market Value | Total Tax |
|---|---|---|
| Currently not available. | ||
Data powered by ATTOM Data Solutions. Copyright© 2025. Information deemed reliable but not guaranteed.
Schools
Schools nearby 1320 Moreland Drive #12
| Schools in attendance boundaries | Grades | Distance | Rating |
|---|---|---|---|
| Loading... | |||
| Schools nearby | Grades | Distance | Rating |
|---|---|---|---|
| Loading... | |||
Data powered by ATTOM Data Solutions. Copyright© 2025. Information deemed reliable but not guaranteed.
The schools shown represent both the assigned schools and schools by distance based on local school and district attendance boundaries. Attendance boundaries change based on various factors and proximity does not guarantee enrollment eligibility. Please consult your real estate agent and/or the school district to confirm the schools this property is zoned to attend. Information is deemed reliable but not guaranteed.
SchoolDigger ® Rating
The SchoolDigger rating system is a 1-5 scale with 5 as the highest rating. SchoolDigger ranks schools based on test scores supplied by each state's Department of Education. They calculate an average standard score by normalizing and averaging each school's test scores across all tests and grades.
Coming soon properties will soon be on the market, but are not yet available for showings.