13207 Sunset Shore Circle Riverview, FL 33579
For Sale MLS# TB8436626
5 beds 5 baths 4,953 sq ft Single Family
Details for 13207 Sunset Shore Circle
MLS# TB8436626
Description for 13207 Sunset Shore Circle, Riverview, FL, 33579
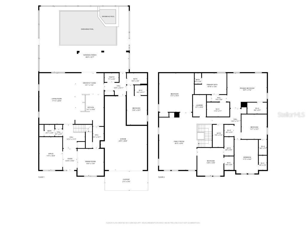
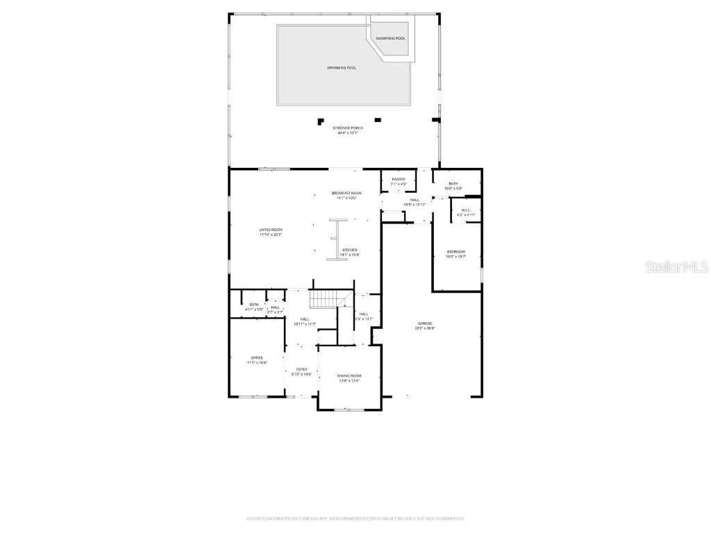
SELLER WILL HELP WITH CLOSING COSTS ~ BRAND NEW ROOF ~ NEW EXTERIOR PAINT ~ POOL/SPA ~ GATED COMMUNITY ~ NO REAR NEIGHBORS ~ DEDICATED OFFICE ~ LARGE LOFT ~ + THEATER/MEDIA ROOM ~ HUGE PRIMARY ~ MOTHER-IN-LAW/GUEST SUITE ~ Welcome to 13207 Sunset Shore Circle, Riverview, FL 33579 — a spectacular residence in the prestigious gated enclave of The Estates at South Cove. This two-story showpiece, blends upscale finishes, smart design, and abundant space to create a home you’ll never want to leave. Grand Curb Appeal & Gated Community, Nestled within a community of just 47 executive homes, privacy and exclusivity underscore the appeal of this address. Elegant stucco exterior, tasteful architectural detailing, and landscaped grounds set the tone for what lies within. Indoor Elegance & Layout. A gracious foyer opens to a formal dining room on one side and a den or office on the other. The heart of the home is a dramatic open-concept family room flowing into the kitchen and casual dining — perfect for entertaining. Chef’s kitchen with expansive island, granite counters, walk-in pantry, butler’s pantry, double ovens, and stainless appliances Guest suite/Mother-in-law suite on the first floor with its own private bath adds flexibility for multi-generational living or guest comfort Upstairs gives rise to a massive bonus/game room, a dedicated media room wired for surround sound, plus three additional bedrooms (all with walk-in closets) and shared baths The master suite is a serene retreat, boasting dual walk-in closets, dual vanities, a garden tub, and walk-in shower Outdoor Oasis Step into your own private haven: a screened lanai overlooking a custom in-ground heated pool & spa, with a privacy fence and conservation view beyond. Covered rear porch for outdoor dining and relaxation. Generous yard space with room for play, gardening, or future enhancements. Three-car tandem garage, ideal for extra storage or workspace. Hardwood, tile, and premium finishes throughout Ample storage, walk-in closets, and built-ins thoughtfully placed throughout Interior laundry on the upper level Location & Community Advantages Situated in the South Cove gated community, offering both privacy and a sense of community Excellent proximity to major roads, shopping, dining, and Tampa-area amenities Schools serving the area: Summerfield Elementary, Eisenhower Middle, East Bay High School
Listing Information
Property Type: Residential, Single Family Residence
Status: Active
Bedrooms: 5
Bathrooms: 5
Lot Size: 0.18 Acres
Square Feet: 4,953 sq ft
Year Built: 2016
Garage: Yes
Stories: 2 Story
Construction: Stucco
Subdivision: South Cove Sub Ph 4
Foundation: Slab
County: Hillsborough
School Information
Elementary: Summerfield-Hb
Middle: Eisenhower-Hb
High: East Bay-Hb
Room Information
Main Floor
Office:
Dining Room:
Bedroom 2:
Kitchen:
Living Room:
Upper Floor
Bedroom 5:
Bedroom 4:
Primary Bedroom:
Media Room:
Bedroom 3:
Loft:
Bathrooms
Full Baths: 4
1/2 Baths: 1
Additonal Room Information
Laundry: Laundry Room
Interior Features
Appliances: Built-In Oven, Washer, Microwave, Refrigerator, Cooktop, Dishwasher, Dryer
Flooring: Carpet,Tile,Wood
Additional Interior Features: Eat-In Kitchen, Ceiling Fan(s), Walk-In Closet(s), Split Bedrooms, High Ceilings, Living/Dining Room, Kitchen/Family Room Combo, Open Floorplan
Utilities
Water: Public
Sewer: Public Sewer
Other Utilities: Electricity Available,Electricity Connected,Propane
Cooling: Ceiling Fan(s), Central Air
Heating: Heat Pump
Exterior / Lot Features
Attached Garage: Attached Garage
Garage Spaces: 3
Parking Description: Tandem, driveway
Roof: Shingle
Pool: Association, Heated, In Ground, Gunite, Community, Screen Enclosure
Lot View: Trees/Woods
Lot Dimensions: 70x110
Additional Exterior/Lot Features: Storm/Security Shutters, Lighting, Conservation Area
Community Features
Community Features: Gated, Street Lights, Sidewalks, Pool, Playground
Security Features: Gated Community
Association Amenities: Pool
Homeowners Association: Yes
HOA Dues: $140 / Monthly
Driving Directions
Take I-75 South to Big Bend Road. Go East on Big Bend for approximately 3 miles to Mistral Cove Place. Turn right to Cedarfield Drive. Turn left to the entry gates of the community.
Financial Considerations
Terms: Cash,Conventional,VA Loan
Tax/Property ID: U-10-31-20-9Y2-000001-00013.0
Tax Amount: 7656.28
Tax Year: 2024
A broker reciprocity listing courtesy: AGILE GROUP REALTY
Based on information provided by Stellar MLS as distributed by the MLS GRID. Information from the Internet Data Exchange is provided exclusively for consumers’ personal, non-commercial use, and such information may not be used for any purpose other than to identify prospective properties consumers may be interested in purchasing. This data is deemed reliable but is not guaranteed to be accurate by Edina Realty, Inc., or by the MLS. Edina Realty, Inc., is not a multiple listing service (MLS), nor does it offer MLS access.
Copyright 2025 Stellar MLS as distributed by the MLS GRID. All Rights Reserved.
Payment Calculator
Interest rate and annual percentage rate (APR) are based on current market conditions, are for informational purposes only, are subject to change without notice and may be subject to pricing add-ons related to property type, loan amount, loan-to-value, credit score and other variables. Estimated closing costs used in the APR calculation are assumed to be paid by the borrower at closing. If the closing costs are financed, the loan, APR and payment amounts will be higher. If the down payment is less than 20%, mortgage insurance may be required and could increase the monthly payment and APR. Contact us for details. Additional loan programs may be available. Accuracy is not guaranteed, and all products may not be available in all borrower's geographical areas and are based on their individual situation. This is not a credit decision or a commitment to lend.
Sales History & Tax Summary for 13207 Sunset Shore Circle
Sales History
| Date | Price | Change |
|---|---|---|
| Currently not available. | ||
Tax Summary
| Tax Year | Estimated Market Value | Total Tax |
|---|---|---|
| Currently not available. | ||
Data powered by ATTOM Data Solutions. Copyright© 2025. Information deemed reliable but not guaranteed.
Schools
Schools nearby 13207 Sunset Shore Circle
| Schools in attendance boundaries | Grades | Distance | Rating |
|---|---|---|---|
| Loading... | |||
| Schools nearby | Grades | Distance | Rating |
|---|---|---|---|
| Loading... | |||
Data powered by ATTOM Data Solutions. Copyright© 2025. Information deemed reliable but not guaranteed.
The schools shown represent both the assigned schools and schools by distance based on local school and district attendance boundaries. Attendance boundaries change based on various factors and proximity does not guarantee enrollment eligibility. Please consult your real estate agent and/or the school district to confirm the schools this property is zoned to attend. Information is deemed reliable but not guaranteed.
SchoolDigger ® Rating
The SchoolDigger rating system is a 1-5 scale with 5 as the highest rating. SchoolDigger ranks schools based on test scores supplied by each state's Department of Education. They calculate an average standard score by normalizing and averaging each school's test scores across all tests and grades.
Coming soon properties will soon be on the market, but are not yet available for showings.