$566,715
Off-Market Date: 09/29/202513217 Hupp Court NE Blaine, MN 55449
Pending MLS# 6796107
2 beds 2 baths 1,968 sq ft Single Family
Details for 13217 Hupp Court NE
MLS# 6796107
Description for 13217 Hupp Court NE, Blaine, MN, 55449
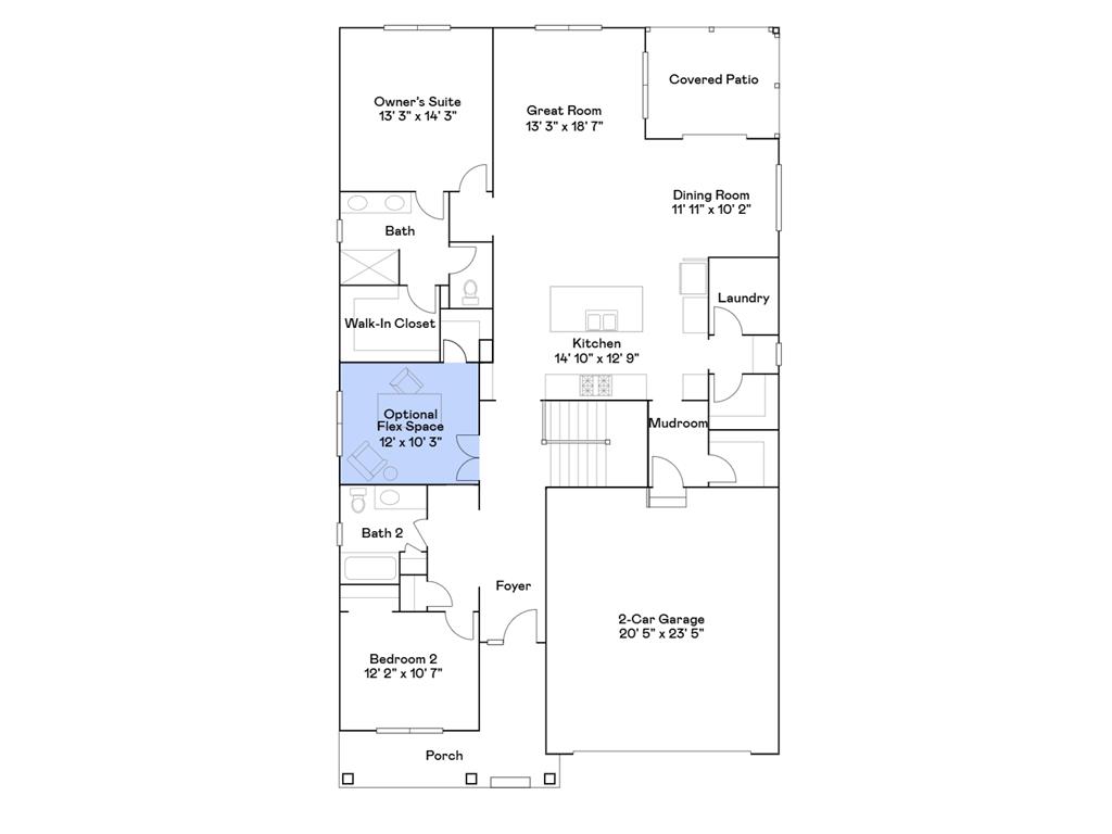
Experience stylish, low-maintenance living in this beautifully crafted 2-bedroom, 2-bath villa in Lexington Waters. The open-concept main level features a modern kitchen with quartz countertops, stainless steel appliances, and a large island that flows seamlessly into the Great Room with an electric fireplace and sun-filled dining area. Step onto the covered patio—ideal for entertaining or quiet relaxation. A full bath is situated between a secondary bedroom and a versatile flex room perfect for a home office or den. The owner’s suite offers a private retreat with an en-suite bath and spacious walk-in closet. The brand new Lexington Waters community is conveniently located near a variety of parks and recreational activities, such as Lochness Park, Sunrise Ponds Park, and Lexington Athletic Complex. Residents also enjoy easy access to shopping and dining in Blaine and the Twin Cities. This home is where modern design meets everyday convenience, don't miss the chance to make it yours!
Listing Information
Property Type: Residential, Single Family
Status: Pending
Bedrooms: 2
Bathrooms: 2
Lot Size: 0.16 Acres
Square Feet: 1,968 sq ft
Year Built: 2025
Foundation: 1,930 sq ft
Garage: Yes
Stories: 1 Story
Construction Display: New Construction
Completion date: 2026-04-24T05:00:00Z
Subdivision: Lexington Waters
County: Anoka
Construction Status: Under Construc/Spec Homes
School Information
District: 11 - Anoka-Hennepin
Room Information
Main Floor
Bedroom 1: 13x14
Bedroom 2: 12x11
Dining Room: 12x10
Flex Room: 12x10
Great Room: 13x19
Kitchen: 15x13
Bathrooms
Full Baths: 1
3/4 Baths: 1
Additonal Room Information
Family: Great Room,Main Level
Dining: Eat In Kitchen,Informal Dining Room
Laundry: Washer Hookup, Laundry Room, Gas Dryer Hookup, Main Level
Bath Description: 3/4 Primary,Main Floor Full Bath,Private Primary
Interior Features
Square Footage above: 1,968 sq ft
Appliances: Stainless Steel Appliances, Range, Refrigerator, Tankless Water Heater, Air-To-Air Exchanger, Dishwasher, Disposal, Furnace Humidifier, Microwave
Basement: Unfinished, Walkout, Storage Space
Fireplaces: 1, Electric
Additional Interior Features: Natural Woodwork, Walk-In Closet, Washer/Dryer Hookup, Kitchen Center Island, Paneled Doors, Main Floor Laundry, All Living Facilities on One Level, Main Floor Bedroom, Main Floor Primary
Utilities
Water: City Water/Connected
Sewer: City Sewer/Connected
Cooling: Central
Heating: Natural Gas, Forced Air
Exterior / Lot Features
Attached Garage: Attached Garage
Garage Spaces: 2
Parking Description: Garage Door Opener, Driveway - Asphalt, Attached Garage, Garage Sq Ft - 509.0
Exterior: Vinyl
Roof: Age 8 Years or Less, Asphalt-Rolled
Lot Dimensions: TBD
Zoning: Residential-Single Family
Additional Exterior/Lot Features: Patio, Porch, In-Ground Sprinkler, Sod Included in Price
Community Features
HOA Dues Include: Snow Removal, Lawn Care, Outside Maintenance
Homeowners Association: Yes
Association Name: New Concepts Management
HOA Dues: $165 / Monthly
Driving Directions
I-35W, take exit 33 for County Hwy 17/Lexington Ave, continue onto Hupp Ct NE, turn left to stay on Hupp Ct NE
Financial Considerations
Tax/Property ID: TBD
Tax Year: 2025
HomeStead Description: Non-Homesteaded
A broker reciprocity listing courtesy: Lennar Sales Corp
The data relating to real estate for sale on this web site comes in part from the Broker Reciprocity℠ Program of the Regional Multiple Listing Service of Minnesota, Inc. Real estate listings held by brokerage firms other than Edina Realty, Inc. are marked with the Broker Reciprocity℠ logo or the Broker Reciprocity℠ thumbnail and detailed information about them includes the name of the listing brokers. Edina Realty, Inc. is not a Multiple Listing Service (MLS), nor does it offer MLS access. This website is a service of Edina Realty, Inc., a broker Participant of the Regional Multiple Listing Service of Minnesota, Inc. IDX information is provided exclusively for consumers personal, non-commercial use and may not be used for any purpose other than to identify prospective properties consumers may be interested in purchasing. Open House information is subject to change without notice. Information deemed reliable but not guaranteed.
Copyright 2026 Regional Multiple Listing Service of Minnesota, Inc. All Rights Reserved.
Sales History & Tax Summary for 13217 Hupp Court NE
Sales History
| Date | Price | |
|---|---|---|
| Currently not available. | ||
Tax Summary
| Tax Year | Estimated Market Value | Total Tax |
|---|---|---|
| Currently not available. | ||
Data powered by ATTOM Data Solutions. Copyright© 2026. Information deemed reliable but not guaranteed.
Schools
Schools nearby 13217 Hupp Court NE
| Schools in attendance boundaries | Grades | Distance | Rating |
|---|---|---|---|
| Loading... | |||
| Schools nearby | Grades | Distance | Rating |
|---|---|---|---|
| Loading... | |||
Data powered by ATTOM Data Solutions. Copyright© 2026. Information deemed reliable but not guaranteed.
The schools shown represent both the assigned schools and schools by distance based on local school and district attendance boundaries. Attendance boundaries change based on various factors and proximity does not guarantee enrollment eligibility. Please consult your real estate agent and/or the school district to confirm the schools this property is zoned to attend. Information is deemed reliable but not guaranteed.
SchoolDigger ® Rating
The SchoolDigger rating system is a 1-5 scale with 5 as the highest rating. SchoolDigger ranks schools based on test scores supplied by each state's Department of Education. They calculate an average standard score by normalizing and averaging each school's test scores across all tests and grades.
Coming soon properties will soon be on the market, but are not yet available for showings.