$277,965
Off-Market Date: 01/27/202613220 SW 58th Court Ocala, FL 34473
Pending MLS# OM717179
4 beds 2 baths 1,498 sq ft Single Family
Details for 13220 SW 58th Court
MLS# OM717179
Description for 13220 SW 58th Court, Ocala, FL, 34473
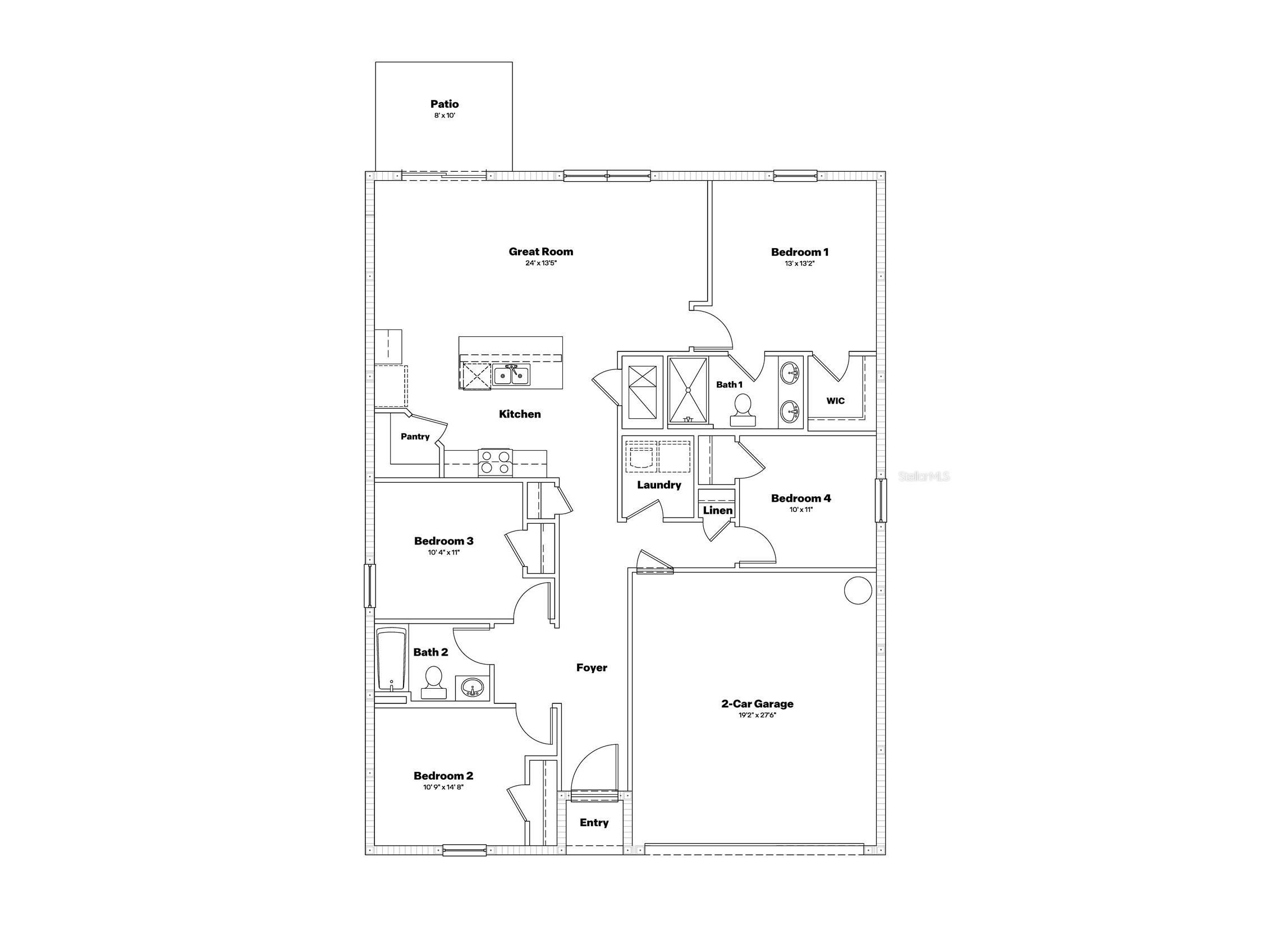
Under Construction. This all concrete block constructed, one-story home optimizes living space, featuring an open-concept kitchen overlooking the great room and outdoor patio. The well-appointed kitchen comes with all stainless-steel appliances, including a built-in dishwasher, range, and microwave. Bedroom 1 is located at the rear of the home for privacy and features an ensuite bathroom and walk-in closet near the bathroom. Two additional bedrooms at the front of the home are separated by the second bathroom. The third bedroom is located across the hallway near the laundry room. Pictures, photographs, colors, features, and sizes are for illustration purposes only and will vary from the homes as built. Home and community information including pricing, included features, terms, availability and amenities are subject to change and prior sale at any time without notice or obligation. CRC057592.
Listing Information
Property Type: Residential, Single Family Residence
Status: Pending
Bedrooms: 4
Bathrooms: 2
Lot Size: 0.13 Acres
Square Feet: 1,498 sq ft
Year Built: 2025
Garage: Yes
Stories: 1 Story
Construction: Block
Construction Display: New Construction
Subdivision: Mcginley Landing
Builder: DR Horton INC
Foundation: Slab
County: Marion
Construction Status: Under Construction
School Information
Elementary: Marion Oaks Elementary School
Middle: Horizon Academy/Mar Oaks
High: West Port High School
Room Information
Main Floor
Primary Bedroom: 13x13
Great Room: 13x24
Kitchen: 8x13
Bathrooms
Full Baths: 2
Additonal Room Information
Laundry: Laundry Room
Interior Features
Appliances: Microwave, Range, Dishwasher
Flooring: Carpet,Luxury Vinyl
Additional Interior Features: Open Floorplan
Utilities
Water: Public
Sewer: Public Sewer
Other Utilities: Other
Cooling: Central Air
Heating: Electric, Heat Pump
Exterior / Lot Features
Attached Garage: Attached Garage
Garage Spaces: 2
Roof: Shingle
Additional Exterior/Lot Features: Sprinkler/Irrigation
Community Features
Homeowners Association: Yes
HOA Dues: $70 / Monthly
Driving Directions
Heading South on I-75, take exit 341 towards Dunnellon and turn right onto SW Hwy 484. Travel for approximately 3.4 miles. At the intersection of SW Hwy 484 and SW 57th Ave. Rd, turn right at the light and continue on SW 57th Ave. Rd for approx. 0.2 miles. Then turn left onto SW 56th Court Rd. The model sales center will be straight ahead on your left.
Financial Considerations
Tax/Property ID: 41200-56-021
Tax Year: 2025
A broker reciprocity listing courtesy: DR HORTON REALTY OF WEST CENTRAL FLORIDA
Based on information provided by Stellar MLS as distributed by the MLS GRID. Information from the Internet Data Exchange is provided exclusively for consumers’ personal, non-commercial use, and such information may not be used for any purpose other than to identify prospective properties consumers may be interested in purchasing. This data is deemed reliable but is not guaranteed to be accurate by Edina Realty, Inc., or by the MLS. Edina Realty, Inc., is not a multiple listing service (MLS), nor does it offer MLS access.
Copyright 2026 Stellar MLS as distributed by the MLS GRID. All Rights Reserved.
Sales History & Tax Summary for 13220 SW 58th Court
Sales History
| Date | Price | |
|---|---|---|
| Currently not available. | ||
Tax Summary
| Tax Year | Estimated Market Value | Total Tax |
|---|---|---|
| Currently not available. | ||
Data powered by ATTOM Data Solutions. Copyright© 2026. Information deemed reliable but not guaranteed.
Schools
Schools nearby 13220 SW 58th Court
| Schools in attendance boundaries | Grades | Distance | Rating |
|---|---|---|---|
| Loading... | |||
| Schools nearby | Grades | Distance | Rating |
|---|---|---|---|
| Loading... | |||
Data powered by ATTOM Data Solutions. Copyright© 2026. Information deemed reliable but not guaranteed.
The schools shown represent both the assigned schools and schools by distance based on local school and district attendance boundaries. Attendance boundaries change based on various factors and proximity does not guarantee enrollment eligibility. Please consult your real estate agent and/or the school district to confirm the schools this property is zoned to attend. Information is deemed reliable but not guaranteed.
SchoolDigger ® Rating
The SchoolDigger rating system is a 1-5 scale with 5 as the highest rating. SchoolDigger ranks schools based on test scores supplied by each state's Department of Education. They calculate an average standard score by normalizing and averaging each school's test scores across all tests and grades.
Coming soon properties will soon be on the market, but are not yet available for showings.