13249 Woodford Street Orlando, FL 32832
Pending MLS# O6346108
4 beds 4 baths 3,920 sq ft Single Family
Details for 13249 Woodford Street
MLS# O6346108
Description for 13249 Woodford Street, Orlando, FL, 32832
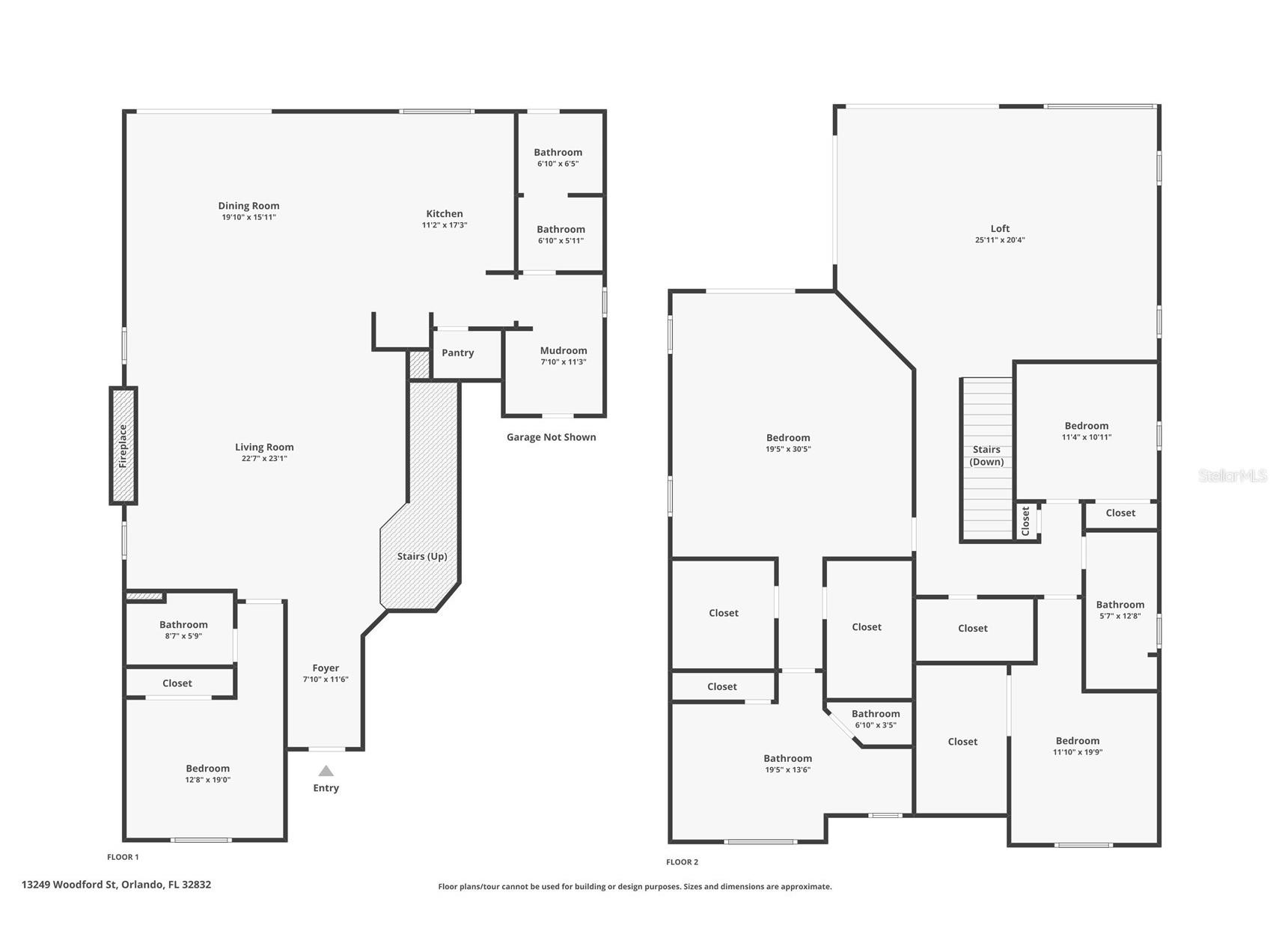
Under contract-accepting backup offers. One or more photo(s) was virtually staged. Welcome to 13249 Woodford Street, where luxury living meets thoughtful design. This stunning 4-bedroom, 4-bathroom residence offers elegant finishes, expansive living spaces, and serene pond views in one of Orlando’s most sought-after communities. From the moment you step into the foyer, this home makes an impression. The wood-look tile flooring is both beautiful and practical—water-resistant, and virtually maintenance-free. An open family room, kitchen, and dining area set the stage for effortless living and entertaining. The chef’s dream kitchen is as functional as it is stylish, featuring top-of-the-line KitchenAid appliances, quartz countertops, an oversized island with seating, 48-inch cabinetry, tile backsplash, and abundant storage with a large walk-in pantry! The island provides space for baking or entertaining, while still offering casual seating for quick meals. Just off the kitchen, a full bath has been thoughtfully designed with future pool living in mind. The separate dining area, flowing between the kitchen and family room, accommodates a large table with ease, making holidays and dinner parties a joy. From here, sliding glass doors lead to a covered lanai that spans the entire width of the home. Facing east, this incredible outdoor living space captures peaceful sunrises and stays shaded through the afternoon and evening, allowing you to relax or entertain comfortably year-round. The family room shines with a custom tiled entertainment wall, complete with an electric fireplace and a designated space for your wall-mounted TV. A separate dry bar area adds both storage and function with counter space, cabinetry, and a beverage refrigerator—perfect for gatherings. A downstairs bedroom with ensuite full bath is ideal for guests or a private home office. Head upstairs to a spacious loft with two sets of sliding glass doors for exceptional views. These doors open up onto the full-length screened balcony with Polywood flooring. Overlooking the tranquil pond, this space provides an incredible extension of your living area—perfect for morning coffee at sunrise or shaded afternoons and evenings spent outdoors, maybe even catching a rocket launch from Cape Canaveral. The primary suite is an oversized retreat with slider doors opening to the balcony water view. Its spa-inspired bath offers dual sinks, a custom walk-in shower with rain head, and a separate water closet. An bonus feature in the bathroom is a vanity island, blending luxury and practicality, with added storage and counter space! Dual walk-in closets between the bedroom and bathroom are convenient and provide more privacy and ease of dressing. Two additional upstairs bedrooms and a full bath complete the perfect family layout. The secondary bathroom upstairs has dual sinks and a shower/tub combination. All showers in the home feature tiled walls all the way from the floor to the ceiling. The laundry room is upstairs with a sink and cabinet/countertop space making folding clothing easy. Additional highlights include high ceilings with 8-foot doors throughout, a 3-car garage (one tandem, ideal for storage, golf cart storage, or a home gym), and a convenient drop zone at the garage entry with low cabinets and regular height cabinets, and a water filtration system serving the entire home! Check out the Matterport 3-D link to see this home NOW! It offers it all—style, function, and a setting you’ll fall in love with.
Listing Information
Property Type: Residential, Single Family Residence
Status: Pending
Bedrooms: 4
Bathrooms: 4
Lot Size: 0.13 Acres
Square Feet: 3,920 sq ft
Year Built: 2018
Garage: Yes
Stories: 2 Story
Construction: Block,Stucco
Subdivision: Eagle Crk Village G Ph 2
Foundation: Slab
County: Orange
School Information
Elementary: Eagle Creek Elementary
Middle: Lake Nona Middle School
High: Lake Nona High
Room Information
Main Floor
Bathroom 4:
Foyer: 8x12
Bedroom 4: 13x19
Great Room: 23x23
Dining Room: 16x20
Kitchen: 11x17
Bathroom 3: 6x14
Bedroom 4: 8x12
Upper Floor
Bathroom 2: 6x13
Bedroom 2: 12x20
Loft: 20x26
Primary Bathroom: 14x20
Primary Bedroom: 19x30
Bedroom 3: 11x11
Bathrooms
Full Baths: 4
Additonal Room Information
Laundry: Laundry Room, Upper Level
Interior Features
Appliances: Wine Refrigerator, Built-In Oven, Water Purifier, Electric Water Heater, Microwave, Cooktop, Dishwasher, Disposal
Flooring: Carpet,Tile,Wood
Fireplaces: Electric, Family Room
Additional Interior Features: Tray Ceiling(s), Built-in Features, Walk-In Closet(s), Ceiling Fan(s), Eat-In Kitchen, High Ceilings, Crown Molding, Dry Bar, Open Floorplan, Upper Level Primary, Stone Counters
Utilities
Water: Public
Sewer: Public Sewer
Other Utilities: Cable Available,Electricity Connected,High Speed Internet Available,Sewer Connected
Cooling: Ceiling Fan(s), Central Air
Heating: Electric
Exterior / Lot Features
Attached Garage: Attached Garage
Garage Spaces: 3
Parking Description: Tandem
Roof: Tile
Pool: Community, Association
Additional Exterior/Lot Features: Sprinkler/Irrigation, Balcony, Balcony
Community Features
Community Features: Sidewalks, Pool, Tennis Court(s), Playground, Golf, Park, Fitness, Golf Carts OK, Recreation Area, Clubhouse, Dog Park, Community Mailbox
Association Amenities: Pickleball, Park, Recreation Facilities, Playground, Clubhouse, Fitness Center, Basketball Court, Trail(s), Tennis Court(s), Pool
HOA Dues Include: Taxes, Association Management, Security, Recreation Facilities, Reserve Fund, Pool(s), Common Areas
Homeowners Association: Yes
HOA Dues: $550 / Quarterly
Driving Directions
From FL 417 take Exit 22 or Narcoossee Rd. Head east. Turn left in approximately 2 miles onto Emerson Lake Blvd. Take the first exit on the roundabout onto Mere Pkwy. In .4 mile, take a left onto Middlewich Dr. Take a right on Woodford St in .3 mile. The home will be on your left in .4 mile on Woodford St.
Financial Considerations
Terms: Cash,Conventional,FHA,VA Loan
Tax/Property ID: 32-24-31-2301-00-370
Tax Amount: 9161.68
Tax Year: 2024
A broker reciprocity listing courtesy: BHHS FLORIDA REALTY
Based on information provided by Stellar MLS as distributed by the MLS GRID. Information from the Internet Data Exchange is provided exclusively for consumers’ personal, non-commercial use, and such information may not be used for any purpose other than to identify prospective properties consumers may be interested in purchasing. This data is deemed reliable but is not guaranteed to be accurate by Edina Realty, Inc., or by the MLS. Edina Realty, Inc., is not a multiple listing service (MLS), nor does it offer MLS access.
Copyright 2026 Stellar MLS as distributed by the MLS GRID. All Rights Reserved.
Sales History & Tax Summary for 13249 Woodford Street
Sales History
| Date | Price | |
|---|---|---|
| Currently not available. | ||
Tax Summary
| Tax Year | Estimated Market Value | Total Tax |
|---|---|---|
| Currently not available. | ||
Data powered by ATTOM Data Solutions. Copyright© 2026. Information deemed reliable but not guaranteed.
Schools
Schools nearby 13249 Woodford Street
| Schools in attendance boundaries | Grades | Distance | Rating |
|---|---|---|---|
| Loading... | |||
| Schools nearby | Grades | Distance | Rating |
|---|---|---|---|
| Loading... | |||
Data powered by ATTOM Data Solutions. Copyright© 2026. Information deemed reliable but not guaranteed.
The schools shown represent both the assigned schools and schools by distance based on local school and district attendance boundaries. Attendance boundaries change based on various factors and proximity does not guarantee enrollment eligibility. Please consult your real estate agent and/or the school district to confirm the schools this property is zoned to attend. Information is deemed reliable but not guaranteed.
SchoolDigger ® Rating
The SchoolDigger rating system is a 1-5 scale with 5 as the highest rating. SchoolDigger ranks schools based on test scores supplied by each state's Department of Education. They calculate an average standard score by normalizing and averaging each school's test scores across all tests and grades.
Coming soon properties will soon be on the market, but are not yet available for showings.