$575,000
1326 NW 57th Street Gainesville, FL 32605
For Sale MLS# GC531054
4 beds 3 baths 2,986 sq ft Single Family
Details for 1326 NW 57th Street
MLS# GC531054
Description for 1326 NW 57th Street, Gainesville, FL, 32605
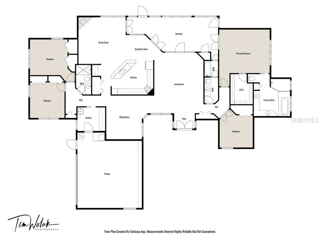
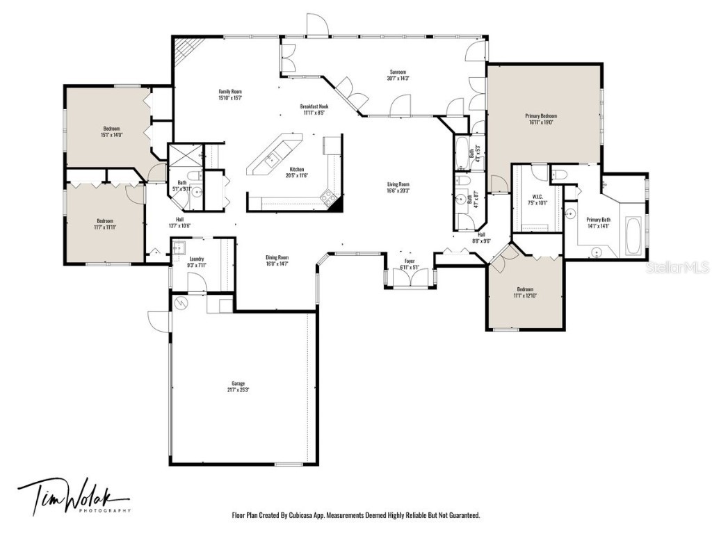
Park Avenue sophistication!! This is a very unique home. It’s a 4/3 triple split plan layout with side entry garage and the roof is only five years old. The living room, family room, hall bath and master all have access to the sun room. The ceilings in the living room and kitchen are cedar giving it a very woodsy elegance. The kitchen has Wi-Fi built in oven, electric cook top, granite counters, stainless steel appliances and a huge pantry. There is a breakfast nook as well as counter space in the kitchen and a computer space for planning meals. The living room features a gas fireplace and great views of the woods with the creek. The master bedroom is in the rear of the home and far from the other areas of the house, making it very private and quiet. French doors lead to the sun room. The master bath has his and her sinks, Jacuzzi tub, granite counters, separate shower and custom tiling and lighting. The second bedroom is in the front of the house and has French entry doors. The other two bedrooms are at the other end of the house. They share the other bathroom. It has handicapped access and grab bars with loads of upgrades and custom tile also. The family room is in the center of the home with views of the backyard. It has custom tile and lighting. The dining room is just off the foyer and could seat 10 comfortably. This is a great floor plan and makes the house very unique. The views from the multi-tiered deck in the backyard are peaceful. From the deck you don’t see anything but a hammock and you only hear birds. This home exudes peacefulness. Plus it’s only 1/2 mile East of North Florida Regional Hospital or the Oaks Mall. A mile and a half to I-75. Professionals have leased the house for the last three years but it has been impeccably maintained. Understated sophistication is what this house is all about. Check it out, you’ll be impressed.
Listing Information
Property Type: Residential, Single Family Residence
Status: Active
Bedrooms: 4
Bathrooms: 3
Lot Size: 1 Acres
Square Feet: 2,986 sq ft
Year Built: 1989
Garage: Yes
Stories: 1 Story
Construction: Brick,Wood Frame
Construction Display: New Construction
Subdivision: Park Ave
Foundation: Slab
County: Alachua
Construction Status: New Construction
School Information
Elementary: Myra Terwilliger Elementary School-Al
Middle: Fort Clarke Middle School-Al
High: F. W. Buchholz High School-Al
Room Information
Main Floor
Primary Bedroom: 18x18
Kitchen: 20x15
Living Room: 20x17
Bathrooms
Full Baths: 3
Additonal Room Information
Laundry: Laundry Room
Interior Features
Appliances: Convection Oven, Gas Water Heater, Built-In Oven, Cooktop, Dishwasher, Disposal, Microwave, Range, Refrigerator
Flooring: Brick,Porcelain Tile
Doors/Windows: Window Treatments, Skylight(s), Insulated Windows, Double Pane Windows
Fireplaces: Gas
Additional Interior Features: Vaulted Ceiling(s), Split Bedrooms, Skylights, Main Level Primary, Stone Counters, High Ceilings, Window Treatments
Utilities
Water: Public
Sewer: Public Sewer
Other Utilities: Cable Connected,Electricity Connected,Natural Gas Connected,Municipal Utilities,Sewer Connected,Water Connected
Cooling: Central Air
Heating: Natural Gas
Exterior / Lot Features
Attached Garage: Attached Garage
Garage Spaces: 2
Parking Description: driveway
Roof: Shingle
Lot View: Trees/Woods
Additional Exterior/Lot Features: Rain Gutters, Sprinkler/Irrigation, Rear Porch, Deck, Landscaped
Waterfront Details
Water Front Features: Creek
Community Features
Community Features: Sidewalks, Street Lights
Security Features: Security System, Smoke Detector(s)
Homeowners Association: Yes
HOA Dues: $285 / Annually
Driving Directions
From Newberry Rd. go north on NW 57th St. to house on the left.
Financial Considerations
Tax/Property ID: 06354-020-027
Tax Amount: 8993.08
Tax Year: 2024
A broker reciprocity listing courtesy: MISNER REAL ESTATE SERVICES LLC
Based on information provided by Stellar MLS as distributed by the MLS GRID. Information from the Internet Data Exchange is provided exclusively for consumers’ personal, non-commercial use, and such information may not be used for any purpose other than to identify prospective properties consumers may be interested in purchasing. This data is deemed reliable but is not guaranteed to be accurate by Edina Realty, Inc., or by the MLS. Edina Realty, Inc., is not a multiple listing service (MLS), nor does it offer MLS access.
Copyright 2025 Stellar MLS as distributed by the MLS GRID. All Rights Reserved.
Payment Calculator
Interest rate and annual percentage rate (APR) are based on current market conditions, are for informational purposes only, are subject to change without notice and may be subject to pricing add-ons related to property type, loan amount, loan-to-value, credit score and other variables. Estimated closing costs used in the APR calculation are assumed to be paid by the borrower at closing. If the closing costs are financed, the loan, APR and payment amounts will be higher. If the down payment is less than 20%, mortgage insurance may be required and could increase the monthly payment and APR. Contact us for details. Additional loan programs may be available. Accuracy is not guaranteed, and all products may not be available in all borrower's geographical areas and are based on their individual situation. This is not a credit decision or a commitment to lend.
Sales History & Tax Summary for 1326 NW 57th Street
Sales History
| Date | Price | Change |
|---|---|---|
| Currently not available. | ||
Tax Summary
| Tax Year | Estimated Market Value | Total Tax |
|---|---|---|
| Currently not available. | ||
Data powered by ATTOM Data Solutions. Copyright© 2025. Information deemed reliable but not guaranteed.
Schools
Schools nearby 1326 NW 57th Street
| Schools in attendance boundaries | Grades | Distance | Rating |
|---|---|---|---|
| Loading... | |||
| Schools nearby | Grades | Distance | Rating |
|---|---|---|---|
| Loading... | |||
Data powered by ATTOM Data Solutions. Copyright© 2025. Information deemed reliable but not guaranteed.
The schools shown represent both the assigned schools and schools by distance based on local school and district attendance boundaries. Attendance boundaries change based on various factors and proximity does not guarantee enrollment eligibility. Please consult your real estate agent and/or the school district to confirm the schools this property is zoned to attend. Information is deemed reliable but not guaranteed.
SchoolDigger ® Rating
The SchoolDigger rating system is a 1-5 scale with 5 as the highest rating. SchoolDigger ranks schools based on test scores supplied by each state's Department of Education. They calculate an average standard score by normalizing and averaging each school's test scores across all tests and grades.
Coming soon properties will soon be on the market, but are not yet available for showings.